Object 19 van 323
Volgende object
Vorige object
Terug naar het overzicht
Terug naar het overzicht



Lingen: Alles auf einer Ebene – gemütlich und unabhängig!
Object-Nr.: 11134
Snel contact
Links
Links
Opties
Opties

Kerngegevens
Adres:
49809 Lingen
Emsland
Niedersachsen
Emsland
Niedersachsen
Stadswijk:
Niedersachsen
Prijs:
215.000 €
Woonoppervlak ca.:
90 m2.
Grondstuk:
440 m2.
Aantal kamers:
4
Verdere gegevens
Verdere gegevens
Woningtype:
Eengezinswoning
Op provisiebasis:
ja
Provisie:
3,57 %
Aantal slaapkamers:
3
Terras:
1
Open Haard:
ja
Aantal parkeerplaatsen:
1
Bouwjaar:
1963
Beschikbaar vanaf:
Absprache
Vloerbedekking:
Vloertegels, Parketvloer, Linoleum
Toestand:
Moet gerenoveerd worden
Verwarming:
Centrale verwarming
Verwarmingssoort:
Gas
Type energiebewijs:
certificaat vraag - geldig vanaf 08.09.2025 tot 07.09.2035
Energie-efficiëntieklasse:
H
Behoefte eindenergie:
352 kWh/(m²*a)
Bouwjaar volgens energiecertificatie:
1963
Uitvoerige beschrijving
Uitvoerige beschrijving
Objectbeschrijving:
Lage und Umfeld
Die Stadt Lingen (Ems) ist mit rund 57.000 Einwohnern die größte Stadt im Landkreis Emsland und ein lebendiger Wirtschafts- und Bildungsstandort. Sie zeichnet sich durch eine attraktive Innenstadt, vielfältige Einkaufsmöglichkeiten, ein reichhaltiges Kulturangebot sowie ein hohes Maß an Lebensqualität aus. Dank ihrer guten Lage zwischen Münster, Osnabrück und den Niederlanden bietet Lingen zudem eine hervorragende regionale wie überregionale Anbindung.
Die Immobilie liegt im Stadtteil Laxten, innerhalb einer beliebten Wohngegend, die sich u.a. durch ihre verkehrsgünstige Lage auszeichnet. Schulen, Kindergärten, Ärzte sowie sämtliche Einrichtungen des täglichen Bedarfs befinden sich in der näheren Umgebung. Auch die überregionale Anbindung ist gut: Der Bahnhof Lingen mit IC-Anschluss und die Autobahnen A31 und A30 sowie die Bundesstraße B70 sind schnell erreichbar.
Die Immobilie
Das Einfamilienhaus wurde ca. 1963 erbaut und ca.1972 um einen Anbau sowie eine Garage erweitert. Es bietet mit rund 90 m² Wohnfläche eine interessante Alternative zu einer Eigentumswohnung, jedoch mit dem Vorteil, ohne Mitglied einer Wohnungseigentümergemeinschaft zu sein und somit frei und unabhängig entscheiden zu können.
Das Haus verfügt über vier Zimmer, eine Küche, ein Tageslichtbad sowie ein Wohnzimmer mit Kamin – alles auf einer Ebene. Ein ausgebautes Dachgeschoss gibt es nicht; aufgrund der starken Dachneigung besteht auch keine Ausbaumöglichkeit. Gerade für Menschen, die Wert auf barrierearmes Wohnen legen, erweist sich die ebenerdige Bauweise als Vorteil.
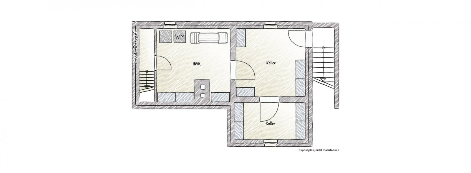
Das Gebäude ist teilunterkellert, hier befinden sich u.a. der Waschkeller und die Heizungsanlage.
Die Immobilie präsentiert sich insgesamt in einem gepflegten Zustand, entspricht jedoch nicht mehr dem heutigen Wohnstandard und ist daher ganz nach persönlichen Vorstellungen renovierungsbedürftig.
Das Grundstück umfasst ca. 440 m², ist damit überschaubar, aber auch pflegeleicht angelegt – ideal für alle, die einen eigenen Garten schätzen, aber keinen großen Pflegeaufwand wünschen.
Zur Ausstattung gehört zudem eine Garage.
Fazit
Ein charmantes Einfamilienhaus mit Potenzial: Überschaubare Größe und eine Lage mit sehr guter Infrastruktur. Perfekt für alle, die den Traum vom Eigenheim verwirklichen und sich mit eigener Gestaltungskraft ein gemütliches Zuhause schaffen möchten.
Die Stadt Lingen (Ems) ist mit rund 57.000 Einwohnern die größte Stadt im Landkreis Emsland und ein lebendiger Wirtschafts- und Bildungsstandort. Sie zeichnet sich durch eine attraktive Innenstadt, vielfältige Einkaufsmöglichkeiten, ein reichhaltiges Kulturangebot sowie ein hohes Maß an Lebensqualität aus. Dank ihrer guten Lage zwischen Münster, Osnabrück und den Niederlanden bietet Lingen zudem eine hervorragende regionale wie überregionale Anbindung.
Die Immobilie liegt im Stadtteil Laxten, innerhalb einer beliebten Wohngegend, die sich u.a. durch ihre verkehrsgünstige Lage auszeichnet. Schulen, Kindergärten, Ärzte sowie sämtliche Einrichtungen des täglichen Bedarfs befinden sich in der näheren Umgebung. Auch die überregionale Anbindung ist gut: Der Bahnhof Lingen mit IC-Anschluss und die Autobahnen A31 und A30 sowie die Bundesstraße B70 sind schnell erreichbar.
Die Immobilie
Das Einfamilienhaus wurde ca. 1963 erbaut und ca.1972 um einen Anbau sowie eine Garage erweitert. Es bietet mit rund 90 m² Wohnfläche eine interessante Alternative zu einer Eigentumswohnung, jedoch mit dem Vorteil, ohne Mitglied einer Wohnungseigentümergemeinschaft zu sein und somit frei und unabhängig entscheiden zu können.
Das Haus verfügt über vier Zimmer, eine Küche, ein Tageslichtbad sowie ein Wohnzimmer mit Kamin – alles auf einer Ebene. Ein ausgebautes Dachgeschoss gibt es nicht; aufgrund der starken Dachneigung besteht auch keine Ausbaumöglichkeit. Gerade für Menschen, die Wert auf barrierearmes Wohnen legen, erweist sich die ebenerdige Bauweise als Vorteil.
Das Gebäude ist teilunterkellert, hier befinden sich u.a. der Waschkeller und die Heizungsanlage.
Die Immobilie präsentiert sich insgesamt in einem gepflegten Zustand, entspricht jedoch nicht mehr dem heutigen Wohnstandard und ist daher ganz nach persönlichen Vorstellungen renovierungsbedürftig.
Das Grundstück umfasst ca. 440 m², ist damit überschaubar, aber auch pflegeleicht angelegt – ideal für alle, die einen eigenen Garten schätzen, aber keinen großen Pflegeaufwand wünschen.
Zur Ausstattung gehört zudem eine Garage.
Fazit
Ein charmantes Einfamilienhaus mit Potenzial: Überschaubare Größe und eine Lage mit sehr guter Infrastruktur. Perfekt für alle, die den Traum vom Eigenheim verwirklichen und sich mit eigener Gestaltungskraft ein gemütliches Zuhause schaffen möchten.
Indeling:
Individuelle Ausstattungsmerkmale:
- Einbauküche
- Rollläden
- DSL
- Markise
- Einbauküche
- Rollläden
- DSL
- Markise
Overige:
VERBRAUCHERINFO
1. Maklerleistung ist der Nachweis der Gelegenheit zum Abschluss eines Vertrages bzw. Vermittlung eines Vertrages über eine Immobilie gegen die Courtagezahlungspflicht des Kunden
2. Unternehmer,Anschrift,Beschwerdeadressat
LBSi NordWest, Himmelreichallee 40, 48149 Münster, Tel:0251/973233-997, eMail:info@lbsi-nw.de
GF:Martin Englert, Volker Goldbeck
3. Es besteht ein Widerrufsrecht
4. Weitere Infos: verbraucherinfo.lbsi-nordwest.de
1. Maklerleistung ist der Nachweis der Gelegenheit zum Abschluss eines Vertrages bzw. Vermittlung eines Vertrages über eine Immobilie gegen die Courtagezahlungspflicht des Kunden
2. Unternehmer,Anschrift,Beschwerdeadressat
LBSi NordWest, Himmelreichallee 40, 48149 Münster, Tel:0251/973233-997, eMail:info@lbsi-nw.de
GF:Martin Englert, Volker Goldbeck
3. Es besteht ein Widerrufsrecht
4. Weitere Infos: verbraucherinfo.lbsi-nordwest.de
Opmerking:
Mocht u interesse aan een van de door ons aangeboden huizen hebben klik op de button vragen over het object in de rechter kolom. Een bezichtiging is voor u geheel vrijblijvend.
Algemene voorwaarden:
Door een klik op de button"Bekijk de locatie van het object op Google maps " ziet u nooit de exacte locatie maar altijd alleen maar de locatie van de dichstbijzijnde plaats / stad
Voor het juiste adres klik in de rechter colom "Vragen over het object"
Alle aanbiedingen zijn onderhevig aan wijzigingen zonder voorafgaande kennisgeving en zijn gebaseerd op door de eigenaar verstrekte informatie; er kan dan ook geen enkele aansprakelijkheid worden aanvaard voor de juistheid en volledigheid ervan. Onder voorbehoud van voorafgaande verkoop of verhuur door de eigenaar.
Voor het juiste adres klik in de rechter colom "Vragen over het object"
Alle aanbiedingen zijn onderhevig aan wijzigingen zonder voorafgaande kennisgeving en zijn gebaseerd op door de eigenaar verstrekte informatie; er kan dan ook geen enkele aansprakelijkheid worden aanvaard voor de juistheid en volledigheid ervan. Onder voorbehoud van voorafgaande verkoop of verhuur door de eigenaar.
Lees meer over de mogelijke valkuilen bij de aankoop van een huis in Duitsland op onze blog
Boordevol informatie m.b.t. een mogelijke emigratie naar Duitsland en over de aankoop of nieuwbouw van een huis in Duitsland:
Meer weten over wonen in Duitsland? Link opent in nieuw venster
Boordevol informatie m.b.t. een mogelijke emigratie naar Duitsland en over de aankoop of nieuwbouw van een huis in Duitsland:
Meer weten over wonen in Duitsland? Link opent in nieuw venster
Uw contactpersoon
Sparkasse Emsland
Mevrouw Karin Schepergerdes
Zum Stadtgraben 1
49716 Meppen
Telefoon: 05931/151-8405
Fax: 05931/151-997327
Mevrouw Karin Schepergerdes
Zum Stadtgraben 1
49716 Meppen
Telefoon: 05931/151-8405
Fax: 05931/151-997327
