Object 22 van 309
Volgende object
Vorige object
Terug naar het overzicht
Terug naar het overzicht



Duisburg: Modern, elegant, einzigartig – Einfamilienhaus mit Wohlfühlgarantie
Object-Nr.: 8430#5EQUu
Snel contact
Opties
Opties

Kerngegevens
Adres:
47228 Duisburg
Nordrhein-Westfalen
Nordrhein-Westfalen
Prijs:
585.000 €
Woonoppervlak ca.:
142 m2.
Grondstuk:
427 m2.
Aantal kamers:
4
Verdere gegevens
Verdere gegevens
Woningtype:
Eengezinswoning
Op provisiebasis:
nee
Keuken:
Inbouwkeuken
Bad:
Douche, Raam
Aantal slaapkamers:
3
Aantal badkamers:
1
Terras:
1
Gastentoilet:
ja
Aantal parkeerplaatsen:
1
Aantal parkeerplaatsen:
1 x Parkeerplaats buiten; 1 x Garage
Bouwjaar:
2009
Beschikbaar vanaf:
nach Vereinbarung
Vloerbedekking:
Vloertegels, Steen
Toestand:
Als nieuw
Verwarmingssoort:
Warmtepomp
Type energiebewijs:
Energiepas ligt ter inzage
Uitvoerige beschrijving
Uitvoerige beschrijving
Objectbeschrijving:
Ein echtes Schmuckstück Nähe Töppersee – Wohnen auf höchstem Niveau
Willkommen in Ihrem neuen Zuhause – einem Einfamilienhaus, das durch Eleganz, Modernität und liebevolle Details überzeugt. Dieses im Jahr 2009 erbaute Massivhaus der renommierten Firma Vierbrockhaus befindet sich in einer begehrten Lage von Duisburg-Bergheim in direkter Nachbarschaft zu Moers-Schwafheim, nur wenige Minuten vom idyllischen Töppersee entfernt. Auf einem Grundstück von ca. 427 m² vereinen sich hier erstklassige Architektur, hochwertige Ausstattung und ein außergewöhnliches Wohngefühl.
Das Objekt vereint modernes Design, erstklassige Materialien und eine durchdachte Architektur. Jeder Raum strahlt Qualität und Behaglichkeit aus – hier merkt man sofort, dass an jedes Detail gedacht wurde. Die großzügigen, lichtdurchfluteten Wohnräume bieten ein Ambiente zum Wohlfühlen und lassen viel Spielraum für individuelle Gestaltung.
Die offene Raumgestaltung im Erdgeschoss schafft eine harmonische Verbindung zwischen Wohnen, Essen und Kochen, während die angrenzende große Sommerterrasse bereits beim Betreten ein Gefühl von Freiheit vermittelt. Durch die direkte Verbindung zum Garten wird das Haus zu einem Ort, an dem drinnen und draußen miteinander verschmelzen – perfekt für gemütliche Abende mit Familie und Freunden.
Im Obergeschoss genießen Sie drei komfortable Schlafzimmer, die Rückzug und Ruhe garantieren, sowie ein erstklassig ausgestattetes Badezimmer, das moderne Eleganz und Funktionalität vereint. Jeder Bereich des Hauses vermittelt ein Gefühl von hochwertigem Wohnkomfort – ein Zuhause, das nicht nur durch seine Ausstattung, sondern auch durch seine Atmosphäre überzeugt.
Ein Einfamilienhaus zum Verlieben – hochwertig ausgestattet, nachhaltig konzipiert und in einer der begehrtesten Lagen von Duisburg. Dieses Haus ist nicht nur ein Ort zum Wohnen, sondern ein Ort zum Ankommen, Wohlfühlen und Genießen.
Willkommen in Ihrem neuen Zuhause – einem Einfamilienhaus, das durch Eleganz, Modernität und liebevolle Details überzeugt. Dieses im Jahr 2009 erbaute Massivhaus der renommierten Firma Vierbrockhaus befindet sich in einer begehrten Lage von Duisburg-Bergheim in direkter Nachbarschaft zu Moers-Schwafheim, nur wenige Minuten vom idyllischen Töppersee entfernt. Auf einem Grundstück von ca. 427 m² vereinen sich hier erstklassige Architektur, hochwertige Ausstattung und ein außergewöhnliches Wohngefühl.
Das Objekt vereint modernes Design, erstklassige Materialien und eine durchdachte Architektur. Jeder Raum strahlt Qualität und Behaglichkeit aus – hier merkt man sofort, dass an jedes Detail gedacht wurde. Die großzügigen, lichtdurchfluteten Wohnräume bieten ein Ambiente zum Wohlfühlen und lassen viel Spielraum für individuelle Gestaltung.
Die offene Raumgestaltung im Erdgeschoss schafft eine harmonische Verbindung zwischen Wohnen, Essen und Kochen, während die angrenzende große Sommerterrasse bereits beim Betreten ein Gefühl von Freiheit vermittelt. Durch die direkte Verbindung zum Garten wird das Haus zu einem Ort, an dem drinnen und draußen miteinander verschmelzen – perfekt für gemütliche Abende mit Familie und Freunden.
Im Obergeschoss genießen Sie drei komfortable Schlafzimmer, die Rückzug und Ruhe garantieren, sowie ein erstklassig ausgestattetes Badezimmer, das moderne Eleganz und Funktionalität vereint. Jeder Bereich des Hauses vermittelt ein Gefühl von hochwertigem Wohnkomfort – ein Zuhause, das nicht nur durch seine Ausstattung, sondern auch durch seine Atmosphäre überzeugt.
Ein Einfamilienhaus zum Verlieben – hochwertig ausgestattet, nachhaltig konzipiert und in einer der begehrtesten Lagen von Duisburg. Dieses Haus ist nicht nur ein Ort zum Wohnen, sondern ein Ort zum Ankommen, Wohlfühlen und Genießen.
Indeling:
Wohnkomfort der Extraklasse
Mit einer Wohnfläche von ca. 142 m² bietet dieses Haus genügend Raum für die ganze Familie. Bereits beim Betreten spürt man die Exklusivität: Im Erdgeschoss prägen hochwertiger Naturschiefer und edles Feinsteinzeug das stilvolle Ambiente. Die Fußbodenheizung, betrieben durch eine effiziente Luft-Wasser-Wärmepumpe, sorgt das ganze Jahr über für behagliche Wärme.
Ein echtes Highlight ist die traumhafte Küche, die bereits im Kaufpreis enthalten ist. Modern, funktional und mit viel Liebe zum Detail geplant, lädt sie zu gemeinsamen Kochabenden mit Familie und Freunden ein.
Ein Zuhause zum Entspannen
2021 wurde das Haus durch eine außergewöhnliche Erweiterung bereichert: die großzügige, überdachte Sommerterrasse mit ca. 30 m² Fläche. Mit Beschattung und Rollos ausgestattet, bietet sie zu jeder Jahreszeit einen geschützten Ort zum Entspannen, Feiern oder Genießen lauer Sommerabende. Von hier aus öffnet sich der Blick auf den pflegeleicht angelegten Garten, der mit seiner offenen Rückseite ohne direkte Nachbarschaft ein Gefühl von Freiheit und Privatsphäre vermittelt.
Obergeschoss – Rückzugsort für die Familie
Im Obergeschoss erwarten Sie drei helle Schlafzimmer sowie ein erstklassiges Badezimmer, das mit stilvollen Materialien und modernem Design überzeugt. Hier finden alle Bewohner ihren persönlichen Rückzugsort.
Technik & Ausstattung – modern und nachhaltig
Das Haus erfüllt höchste Ansprüche an Energieeffizienz und Wohnkomfort:
- Hochwertiger Naturschiefer und Feinsteinzeugböden im Erdgeschoss
- Fußbodenheizung im gesamten Haus, betrieben durch eine effiziente Luft-Wasser-Wärmepumpe
- Traumküche im Kaufpreis enthalten
- Große überdachte Sommerterrasse (ca. 30 m², Baujahr 2021) mit Beschattung und Rollos
- Gemietete PV-Anlage von Enpal (11,87 kW, 10 kW Speicher) – zukunftsorientierte Energieversorgung
- Dezentrale Lüftungsanlage für ein angenehmes Raumklima
- Weiße, stilvolle Innentüren
- Kunststofffenster mit 2-fach Isolierverglasung
- Elektrische Rollläden, steuerbar per WLAN
- 9 m lange Garage mit direktem Zugang zur Sommerterrasse
- Pflegeleicht angelegter Garten, nach hinten ohne direkte Nachbarschaft
Mit einer Wohnfläche von ca. 142 m² bietet dieses Haus genügend Raum für die ganze Familie. Bereits beim Betreten spürt man die Exklusivität: Im Erdgeschoss prägen hochwertiger Naturschiefer und edles Feinsteinzeug das stilvolle Ambiente. Die Fußbodenheizung, betrieben durch eine effiziente Luft-Wasser-Wärmepumpe, sorgt das ganze Jahr über für behagliche Wärme.
Ein echtes Highlight ist die traumhafte Küche, die bereits im Kaufpreis enthalten ist. Modern, funktional und mit viel Liebe zum Detail geplant, lädt sie zu gemeinsamen Kochabenden mit Familie und Freunden ein.
Ein Zuhause zum Entspannen
2021 wurde das Haus durch eine außergewöhnliche Erweiterung bereichert: die großzügige, überdachte Sommerterrasse mit ca. 30 m² Fläche. Mit Beschattung und Rollos ausgestattet, bietet sie zu jeder Jahreszeit einen geschützten Ort zum Entspannen, Feiern oder Genießen lauer Sommerabende. Von hier aus öffnet sich der Blick auf den pflegeleicht angelegten Garten, der mit seiner offenen Rückseite ohne direkte Nachbarschaft ein Gefühl von Freiheit und Privatsphäre vermittelt.
Obergeschoss – Rückzugsort für die Familie
Im Obergeschoss erwarten Sie drei helle Schlafzimmer sowie ein erstklassiges Badezimmer, das mit stilvollen Materialien und modernem Design überzeugt. Hier finden alle Bewohner ihren persönlichen Rückzugsort.
Technik & Ausstattung – modern und nachhaltig
Das Haus erfüllt höchste Ansprüche an Energieeffizienz und Wohnkomfort:
- Hochwertiger Naturschiefer und Feinsteinzeugböden im Erdgeschoss
- Fußbodenheizung im gesamten Haus, betrieben durch eine effiziente Luft-Wasser-Wärmepumpe
- Traumküche im Kaufpreis enthalten
- Große überdachte Sommerterrasse (ca. 30 m², Baujahr 2021) mit Beschattung und Rollos
- Gemietete PV-Anlage von Enpal (11,87 kW, 10 kW Speicher) – zukunftsorientierte Energieversorgung
- Dezentrale Lüftungsanlage für ein angenehmes Raumklima
- Weiße, stilvolle Innentüren
- Kunststofffenster mit 2-fach Isolierverglasung
- Elektrische Rollläden, steuerbar per WLAN
- 9 m lange Garage mit direktem Zugang zur Sommerterrasse
- Pflegeleicht angelegter Garten, nach hinten ohne direkte Nachbarschaft
Ligging:
Lage – naturnah und dennoch zentral
Die Lage in Duisburg-Bergheim, in direkter Nachbarschaft zu Moers-Schwafheim, nahe dem Töppersee ist ein wahres Geschenk: Hier vereinen sich Natur, Freizeit und urbane Anbindung. Spaziergänge am Wasser, sportliche Aktivitäten oder einfach die Ruhe genießen – all das beginnt direkt vor Ihrer Haustür. Gleichzeitig erreichen Sie Einkaufsmöglichkeiten, Schulen, Kindergärten und die Duisburger Innenstadt in kurzer Zeit.
Die Lage in Duisburg-Bergheim, in direkter Nachbarschaft zu Moers-Schwafheim, nahe dem Töppersee ist ein wahres Geschenk: Hier vereinen sich Natur, Freizeit und urbane Anbindung. Spaziergänge am Wasser, sportliche Aktivitäten oder einfach die Ruhe genießen – all das beginnt direkt vor Ihrer Haustür. Gleichzeitig erreichen Sie Einkaufsmöglichkeiten, Schulen, Kindergärten und die Duisburger Innenstadt in kurzer Zeit.
Overige:
Wohnflächenaufteilung:
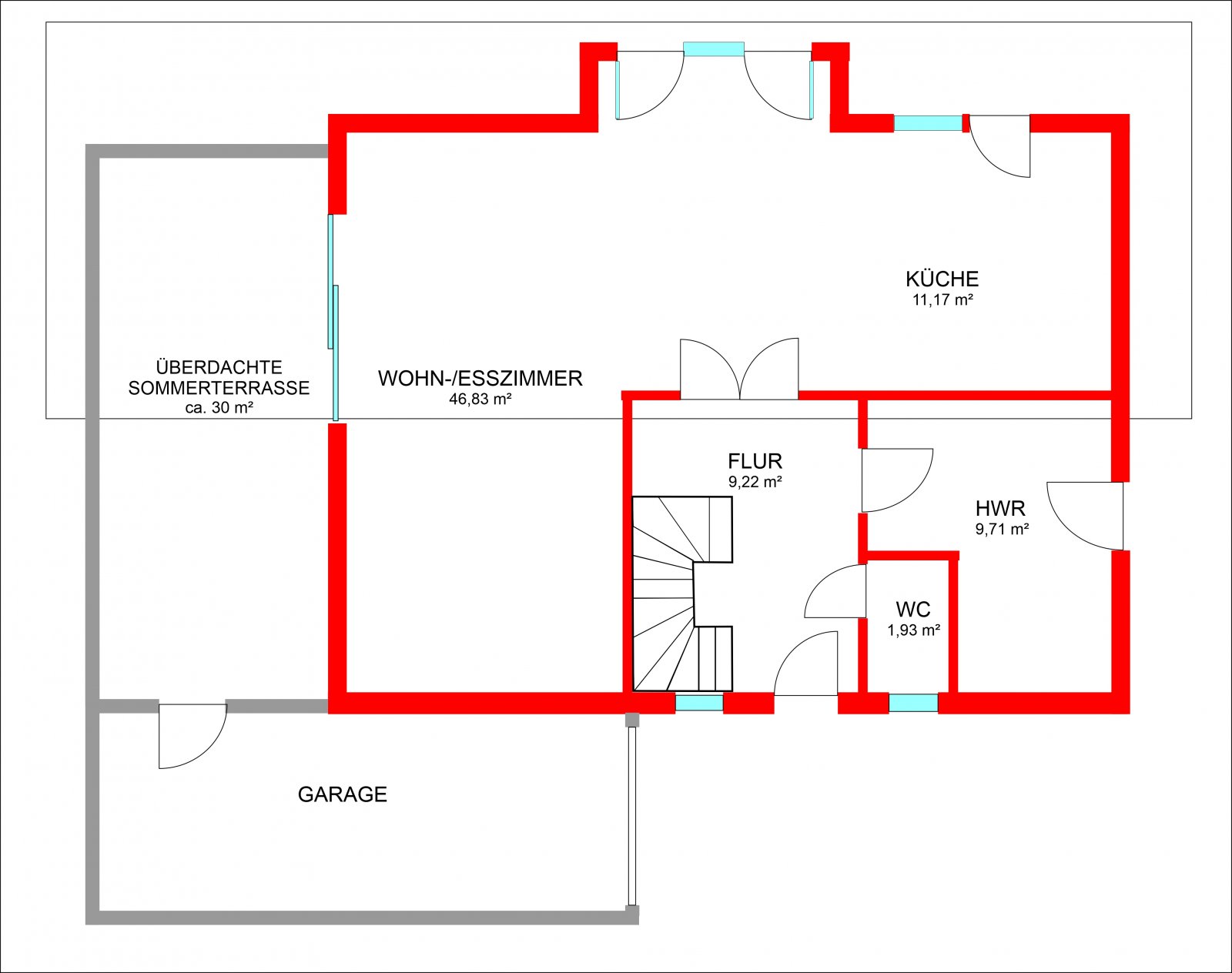
Erdgeschoss:
Diele ca. 9,22 m²
Wohn-Esszimmer ca. 46,83 m²
offene Küche ca. 11,17 m²
Hauswirtschaftsraum ca. 9,71 m²
Gäste-WC ca. 1,93 m²
Obergeschoss:
Flur/Empore ca. 6,90 m²
Schlafzimmer ca. 17,31 m²
Ankleidezimmer ca. 14,15 m²
Schlafzimmer ca. 13,04 m²
Badezimmer ca. 9,26 m²
Nutzflächen:
Garage
Erdgeschoss:
Diele ca. 9,22 m²
Wohn-Esszimmer ca. 46,83 m²
offene Küche ca. 11,17 m²
Hauswirtschaftsraum ca. 9,71 m²
Gäste-WC ca. 1,93 m²
Obergeschoss:
Flur/Empore ca. 6,90 m²
Schlafzimmer ca. 17,31 m²
Ankleidezimmer ca. 14,15 m²
Schlafzimmer ca. 13,04 m²
Badezimmer ca. 9,26 m²
Nutzflächen:
Garage
Opmerking:
Mocht u interesse aan een van de door ons aangeboden huizen hebben klik op de button vragen over het object in de rechter kolom. Een bezichtiging is voor u geheel vrijblijvend.
Algemene voorwaarden:
Door een klik op de button"Bekijk de locatie van het object op Google maps " ziet u nooit de exacte locatie maar altijd alleen maar de locatie van de dichstbijzijnde plaats / stad
Voor het juiste adres klik in de rechter colom "Vragen over het object"
Alle aanbiedingen zijn onderhevig aan wijzigingen zonder voorafgaande kennisgeving en zijn gebaseerd op door de eigenaar verstrekte informatie; er kan dan ook geen enkele aansprakelijkheid worden aanvaard voor de juistheid en volledigheid ervan. Onder voorbehoud van voorafgaande verkoop of verhuur door de eigenaar.
Voor het juiste adres klik in de rechter colom "Vragen over het object"
Alle aanbiedingen zijn onderhevig aan wijzigingen zonder voorafgaande kennisgeving en zijn gebaseerd op door de eigenaar verstrekte informatie; er kan dan ook geen enkele aansprakelijkheid worden aanvaard voor de juistheid en volledigheid ervan. Onder voorbehoud van voorafgaande verkoop of verhuur door de eigenaar.
Lees meer over de mogelijke valkuilen bij de aankoop van een huis in Duitsland op onze blog
Boordevol informatie m.b.t. een mogelijke emigratie naar Duitsland en over de aankoop of nieuwbouw van een huis in Duitsland:
Meer weten over wonen in Duitsland? Link opent in nieuw venster
Boordevol informatie m.b.t. een mogelijke emigratie naar Duitsland en over de aankoop of nieuwbouw van een huis in Duitsland:
Meer weten over wonen in Duitsland? Link opent in nieuw venster
Uw contactpersoon
Gründer-Immobilien
Mijnheer Ralf Gründer
Hauptstraße 97
26892 Dörpen
Telefoon: +49 4963 914923
Mobiele telefoon: +49 171 9912377
Mijnheer Ralf Gründer
Hauptstraße 97
26892 Dörpen
Telefoon: +49 4963 914923
Mobiele telefoon: +49 171 9912377
