Object 109 van 324
Volgende object
Vorige object
Terug naar het overzicht
Terug naar het overzicht
Volgende object
Vorige object
Terug naar het overzichtRhede: Top Kapitalanlage in Rhede – 4 vermietete Wohnungen, fertiggestellt 2025
Object-Nr.: 8448#5EQUu
Snel contact
Opties
Opties
Kerngegevens
Adres:
26899 Rhede
Emsland
Niedersachsen
Emsland
Niedersachsen
Prijs:
1.060.000 €
Woonoppervlak ca.:
339,78 m2.
Grondstuk:
800 m2.
Aantal kamers:
12
Verdere gegevens
Verdere gegevens
Woningtype:
Meergezinswoning
Bad:
Douche, Ligbad, Raam
Aantal slaapkamers:
8
Aantal badkamers:
4
Balkon:
2
Terras:
1
Gastentoilet:
ja
verhuurd:
ja
Aantal parkeerplaatsen:
4
Aantal parkeerplaatsen:
4 x Parkeerplaats buiten
Bouwjaar:
2025
Beschikbaar vanaf:
nach Vereinbarung
Vloerbedekking:
Vloertegels, PVC
Verwarming:
Vloer
Verwarmingssoort:
Warmtepomp
Uitvoerige beschrijving
Uitvoerige beschrijving
Objectbeschrijving:
Modernes Mehrfamilienhaus in Rhede – Kapitalanlage mit sofortigen Mieteinnahmen
Provisionsfrei für den Käufer!
Dieses im Jahr 2025 fertiggestellte Mehrfamilienhaus in Rhede bietet eine einmalige Gelegenheit für Kapitalanleger, die auf der Suche nach einer attraktiven und sofort vermieteten Immobilie sind. Das Objekt überzeugt durch hochwertige Bauqualität, intelligente Grundrissgestaltung und lichtdurchflutete Räume – ein perfektes Zusammenspiel aus Funktionalität und Wohnkomfort.
Die insgesamt vier Wohnungen sind vollständig schlüsselfertig erstellt und bereits alle vermietet. Die Immobilie wurde mit größter Sorgfalt geplant und realisiert – inklusive Malerarbeiten, Gartenanlage und einer modernen Haustechnik, die höchsten Ansprüchen gerecht wird.
Das Mehrfamilienhaus ist perfekt als Kapitalanlage geeignet und verfügt über:
Erdgeschoss: 2 Wohnungen à ca. 89 m² mit teilüberdachter Gartenterrasse
Dachgeschoss: 2 Wohnungen à ca. 80 m² mit Balkon
Jede Wohnung besticht durch eine durchdachte Raumaufteilung, bodentiefe Fenster und helle, lichtdurchflutete Räume. Der Wohn-/Essbereich ist offen zur Küche gestaltet, wodurch ein großzügiges Raumgefühl entsteht. Die bodentiefen Fensterelemente im Erdgeschoss führen direkt auf die teilweise überdachten Terrassen, während die Dachgeschosswohnungen jeweils einen Balkon besitzen.
Dank der intelligent angeordneten Fensterflächen gehen keine Stellmöglichkeiten für Möbel verloren – jede Wohnung bietet maximale Flexibilität bei der Inneneinrichtung.
Dieses Mehrfamilienhaus in Rhede ist die perfekte Kapitalanlage für Investoren, die auf der Suche nach einer modernen, vermieteten Immobilie mit sofortigen Einnahmen sind. Hochwertige Materialien, durchdachte Grundrisse, helle Wohnräume und gepflegte Außenanlagen machen das Objekt zu einem sicheren Investment.
Die Kombination aus ruhiger Lage, vollständiger Vermietung und moderner Ausstattung bietet sowohl langfristige Sicherheit als auch Wertsteigerungspotenzial.
Provisionsfrei für den Käufer!
Dieses im Jahr 2025 fertiggestellte Mehrfamilienhaus in Rhede bietet eine einmalige Gelegenheit für Kapitalanleger, die auf der Suche nach einer attraktiven und sofort vermieteten Immobilie sind. Das Objekt überzeugt durch hochwertige Bauqualität, intelligente Grundrissgestaltung und lichtdurchflutete Räume – ein perfektes Zusammenspiel aus Funktionalität und Wohnkomfort.
Die insgesamt vier Wohnungen sind vollständig schlüsselfertig erstellt und bereits alle vermietet. Die Immobilie wurde mit größter Sorgfalt geplant und realisiert – inklusive Malerarbeiten, Gartenanlage und einer modernen Haustechnik, die höchsten Ansprüchen gerecht wird.
Das Mehrfamilienhaus ist perfekt als Kapitalanlage geeignet und verfügt über:
Erdgeschoss: 2 Wohnungen à ca. 89 m² mit teilüberdachter Gartenterrasse
Dachgeschoss: 2 Wohnungen à ca. 80 m² mit Balkon
Jede Wohnung besticht durch eine durchdachte Raumaufteilung, bodentiefe Fenster und helle, lichtdurchflutete Räume. Der Wohn-/Essbereich ist offen zur Küche gestaltet, wodurch ein großzügiges Raumgefühl entsteht. Die bodentiefen Fensterelemente im Erdgeschoss führen direkt auf die teilweise überdachten Terrassen, während die Dachgeschosswohnungen jeweils einen Balkon besitzen.
Dank der intelligent angeordneten Fensterflächen gehen keine Stellmöglichkeiten für Möbel verloren – jede Wohnung bietet maximale Flexibilität bei der Inneneinrichtung.
Dieses Mehrfamilienhaus in Rhede ist die perfekte Kapitalanlage für Investoren, die auf der Suche nach einer modernen, vermieteten Immobilie mit sofortigen Einnahmen sind. Hochwertige Materialien, durchdachte Grundrisse, helle Wohnräume und gepflegte Außenanlagen machen das Objekt zu einem sicheren Investment.
Die Kombination aus ruhiger Lage, vollständiger Vermietung und moderner Ausstattung bietet sowohl langfristige Sicherheit als auch Wertsteigerungspotenzial.
Indeling:
Die Ausstattung des Hauses wurde sorgfältig ausgewählt, um Komfort und Langlebigkeit zu gewährleisten:
Bodenbeläge:
- Einheitliche Fliesen im Wohnbereich
- Schlafzimmer mit Vinyl-Böden (auf Wunsch auch mit Fliesen möglich)
- Fußbodenheizung in allen Räumen, separat steuerbar
Bäder:
- Modern ausgestattete Badezimmer in jeder Wohnung
- Badewanne, bodentiefe Dusche, Hänge-WC, Waschbecken mit hochwertiger Armatur
- Geschmackvolle Wand- und Bodenkeramik
- Erdgeschosswohnungen mit zusätzlichem Gäste-WC
Küche & Wohnbereich:
- Offene Gestaltung zum Wohn-/Essbereich
- Angrenzender Hauswirtschaftsraum
Fenster & Beschattung:
- Bodentiefe Fenster für lichtdurchflutete Räume
- Elektrische Jalousien, separat von jedem Raum steuerbar
Außenbereiche & Stellplätze:
- 4 PKW-Stellplätze direkt am Haus
- Möglichkeit zur Errichtung eines Carports aus Konstruktionsvollholz mit Abstellräumen gegen Aufpreis
- Pflegeleicht angelegte Gartenflächen mit Rasenflächen
- Einheitlich gepflasterte Terrassen und Hoffläche
- Teilüberdachte Terrassen im Erdgeschoss, Balkone im Dachgeschoss
Bodenbeläge:
- Einheitliche Fliesen im Wohnbereich
- Schlafzimmer mit Vinyl-Böden (auf Wunsch auch mit Fliesen möglich)
- Fußbodenheizung in allen Räumen, separat steuerbar
Bäder:
- Modern ausgestattete Badezimmer in jeder Wohnung
- Badewanne, bodentiefe Dusche, Hänge-WC, Waschbecken mit hochwertiger Armatur
- Geschmackvolle Wand- und Bodenkeramik
- Erdgeschosswohnungen mit zusätzlichem Gäste-WC
Küche & Wohnbereich:
- Offene Gestaltung zum Wohn-/Essbereich
- Angrenzender Hauswirtschaftsraum
Fenster & Beschattung:
- Bodentiefe Fenster für lichtdurchflutete Räume
- Elektrische Jalousien, separat von jedem Raum steuerbar
Außenbereiche & Stellplätze:
- 4 PKW-Stellplätze direkt am Haus
- Möglichkeit zur Errichtung eines Carports aus Konstruktionsvollholz mit Abstellräumen gegen Aufpreis
- Pflegeleicht angelegte Gartenflächen mit Rasenflächen
- Einheitlich gepflasterte Terrassen und Hoffläche
- Teilüberdachte Terrassen im Erdgeschoss, Balkone im Dachgeschoss
Ligging:
Lage:
Die Immobilie befindet sich in einer ruhigen, stadtnahen Wohnlage von Rhede. Trotz der ruhigen Umgebung sind sämtliche Einrichtungen des täglichen Bedarfs nur wenige Minuten entfernt. Dazu zählen:
- Einkaufsmöglichkeiten
- Ärzte, Apotheken und Krankenhaus
- Schulen und Kindergärten
- Öffentliche Verkehrsanbindungen
Die Lage bietet sowohl Ruhe als auch kurze Wege für Familien, Berufstätige und Senioren gleichermaßen.
Die Immobilie befindet sich in einer ruhigen, stadtnahen Wohnlage von Rhede. Trotz der ruhigen Umgebung sind sämtliche Einrichtungen des täglichen Bedarfs nur wenige Minuten entfernt. Dazu zählen:
- Einkaufsmöglichkeiten
- Ärzte, Apotheken und Krankenhaus
- Schulen und Kindergärten
- Öffentliche Verkehrsanbindungen
Die Lage bietet sowohl Ruhe als auch kurze Wege für Familien, Berufstätige und Senioren gleichermaßen.
Overige:
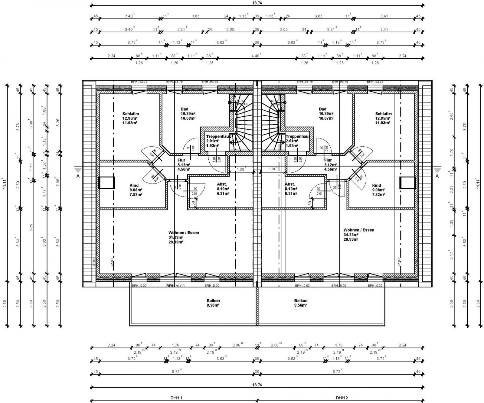
Wohn- u. Nutzflächenaufteilung:
Erdgeschoss:
Raumaufteilung gemeinschaftlich:
Eingang/Treppenhaus ca. 5,09 m²
Hausanschlussraum ca. 6,14 m²
Raumaufteilung Erdgeschoss Wohnung 1+2
Flur ca. 6,21 m²
Gäste WC ca. 2,15 m²
Badezimmer ca. 7,18 m²
Küche/Wohn/Essbereich ca. 32,53 m²
Schlafen I ca. 13,01 m²
Schlafen II ca. 8,04 m²
Abstellraum ca. 6,01 m²
Dachgeschoss:
Raumaufteilung gemeinschaftlich:
Eingang/Treppenhaus ca. 1,93 m²
Raumaufteilung Dachgeschoss Wohnung 3+4
Flur ca. 4,56 m²
Badezimmer ca. 10,08 m²
Küche/Wohn/Essbereich ca. 29,23 m²
Schlafen I ca. 11,03 m²
Schlafen II ca. 7,82 m²
Abstellraum ca. 6,31 m²
Erdgeschoss:
Raumaufteilung gemeinschaftlich:
Eingang/Treppenhaus ca. 5,09 m²
Hausanschlussraum ca. 6,14 m²
Raumaufteilung Erdgeschoss Wohnung 1+2
Flur ca. 6,21 m²
Gäste WC ca. 2,15 m²
Badezimmer ca. 7,18 m²
Küche/Wohn/Essbereich ca. 32,53 m²
Schlafen I ca. 13,01 m²
Schlafen II ca. 8,04 m²
Abstellraum ca. 6,01 m²
Dachgeschoss:
Raumaufteilung gemeinschaftlich:
Eingang/Treppenhaus ca. 1,93 m²
Raumaufteilung Dachgeschoss Wohnung 3+4
Flur ca. 4,56 m²
Badezimmer ca. 10,08 m²
Küche/Wohn/Essbereich ca. 29,23 m²
Schlafen I ca. 11,03 m²
Schlafen II ca. 7,82 m²
Abstellraum ca. 6,31 m²
Opmerking:
Mocht u interesse aan een van de door ons aangeboden huizen hebben klik op de button vragen over het object in de rechter kolom. Een bezichtiging is voor u geheel vrijblijvend.
Algemene voorwaarden:
Door een klik op de button"Bekijk de locatie van het object op Google maps " ziet u nooit de exacte locatie maar altijd alleen maar de locatie van de dichstbijzijnde plaats / stad
Voor het juiste adres klik in de rechter colom "Vragen over het object"
Alle aanbiedingen zijn onderhevig aan wijzigingen zonder voorafgaande kennisgeving en zijn gebaseerd op door de eigenaar verstrekte informatie; er kan dan ook geen enkele aansprakelijkheid worden aanvaard voor de juistheid en volledigheid ervan. Onder voorbehoud van voorafgaande verkoop of verhuur door de eigenaar.
Voor het juiste adres klik in de rechter colom "Vragen over het object"
Alle aanbiedingen zijn onderhevig aan wijzigingen zonder voorafgaande kennisgeving en zijn gebaseerd op door de eigenaar verstrekte informatie; er kan dan ook geen enkele aansprakelijkheid worden aanvaard voor de juistheid en volledigheid ervan. Onder voorbehoud van voorafgaande verkoop of verhuur door de eigenaar.
Lees meer over de mogelijke valkuilen bij de aankoop van een huis in Duitsland op onze blog
Boordevol informatie m.b.t. een mogelijke emigratie naar Duitsland en over de aankoop of nieuwbouw van een huis in Duitsland:
Meer weten over wonen in Duitsland? Link opent in nieuw venster
Boordevol informatie m.b.t. een mogelijke emigratie naar Duitsland en over de aankoop of nieuwbouw van een huis in Duitsland:
Meer weten over wonen in Duitsland? Link opent in nieuw venster
Uw contactpersoon
Gründer-Immobilien
Mijnheer Ralf Gründer
Hauptstraße 97
26892 Dörpen
Telefoon: +49 4963 914923
Mobiele telefoon: +49 171 9912377
Mijnheer Ralf Gründer
Hauptstraße 97
26892 Dörpen
Telefoon: +49 4963 914923
Mobiele telefoon: +49 171 9912377
Terug naar het overzicht























