Object 39 van 324
Volgende object
Vorige object
Terug naar het overzicht
Terug naar het overzicht
Volgende object
Vorige object
Terug naar het overzichtDörpen: Platz zum Durchatmen! Top Bungalow mit großem Grundstück!
Object-Nr.: 8446#5EQUu
Snel contact
Opties
Opties
Kerngegevens
Adres:
26892 Dörpen
Emsland
Niedersachsen
Emsland
Niedersachsen
Prijs:
369.000 €
Woonoppervlak ca.:
185 m2.
Grondstuk:
1.000 m2.
Aantal kamers:
4
Verdere gegevens
Verdere gegevens
Woningtype:
Bungalow
Op provisiebasis:
nee
Keuken:
Inbouwkeuken
Bad:
Douche, Ligbad, Raam
Aantal slaapkamers:
2
Aantal badkamers:
2
Terras:
1
Toegankelijk zonder hindernissen:
ja
Geschikt voor senioren:
ja
Gastentoilet:
ja
Open Haard:
ja
Serre:
ja
Aantal parkeerplaatsen:
2
Aantal parkeerplaatsen:
2 x Parkeerplaats buiten; 1 x Garage
Bouwjaar:
2000
Beschikbaar vanaf:
nach Vereinbarung
Vloerbedekking:
Vloertegels, PVC
Verwarmingssoort:
Gas
Type energiebewijs:
verbruik certificaat - geldig vanaf 16.03.2015 tot 15.03.2025
Energie-efficiëntieklasse:
C
Kengetal energieverbruik:
81,50 kWh/(m²*a)
Energieverbruik voor warm water inbegrepen:
ja
Bouwjaar volgens energiecertificatie:
2000
Uitvoerige beschrijving
Uitvoerige beschrijving
Objectbeschrijving:
Dieser gepflegte Winkelwalmdachbungalow aus dem Jahr 2000 befindet sich in absolut ruhiger Wohnlage am Ende einer Sackgasse in Dörpen – ein idealer Rückzugsort für Menschen, die Komfort, Ruhe und Platz schätzen. Die verkehrsgünstige Lage, die ausschließlich von Anliegern genutzt wird, sorgt für eine angenehme und familienfreundliche Wohnatmosphäre. Einkaufsmöglichkeiten, Schulen und öffentliche Verkehrsmittel sind dennoch schnell erreichbar.
Das Herzstück dieses Bungalows bildet der lichtdurchflutete Wohnbereich mit großen bodentiefen Fensterschiebetüren, die einen fließenden Übergang zur sonnigen Terrasse und zum Wintergarten schaffen. Ein hochwertiger Specksteinofen sorgt in der kühleren Jahreszeit für behagliche Wärme und eine besonders gemütliche Atmosphäre.
Das ca. 1.000 m² große Grundstück beeindruckt mit einer großzügig gepflasterten Zufahrt, viel Rasenfläche und pflegeleicht angelegtem Garten – ein Paradies für Hobbygärtner oder Familien mit Kindern, die viel Platz im Freien schätzen.
Dieser Bungalow vereint Wohnkomfort auf einer Ebene mit Erweiterungsmöglichkeiten, viel Platz im Außenbereich und einer ruhigen, familienfreundlichen Lage. Ideal für Paare oder Familien, die ein gepflegtes Zuhause mit Zukunftspotenzial suchen.
Haben wir Ihr Interesse geweckt?
Gerne senden wir Ihnen weitere Informationen zu oder vereinbaren einen Besichtigungstermin – wir freuen uns auf Ihre Kontaktaufnahme!
Das Herzstück dieses Bungalows bildet der lichtdurchflutete Wohnbereich mit großen bodentiefen Fensterschiebetüren, die einen fließenden Übergang zur sonnigen Terrasse und zum Wintergarten schaffen. Ein hochwertiger Specksteinofen sorgt in der kühleren Jahreszeit für behagliche Wärme und eine besonders gemütliche Atmosphäre.
Das ca. 1.000 m² große Grundstück beeindruckt mit einer großzügig gepflasterten Zufahrt, viel Rasenfläche und pflegeleicht angelegtem Garten – ein Paradies für Hobbygärtner oder Familien mit Kindern, die viel Platz im Freien schätzen.
Dieser Bungalow vereint Wohnkomfort auf einer Ebene mit Erweiterungsmöglichkeiten, viel Platz im Außenbereich und einer ruhigen, familienfreundlichen Lage. Ideal für Paare oder Familien, die ein gepflegtes Zuhause mit Zukunftspotenzial suchen.
Haben wir Ihr Interesse geweckt?
Gerne senden wir Ihnen weitere Informationen zu oder vereinbaren einen Besichtigungstermin – wir freuen uns auf Ihre Kontaktaufnahme!
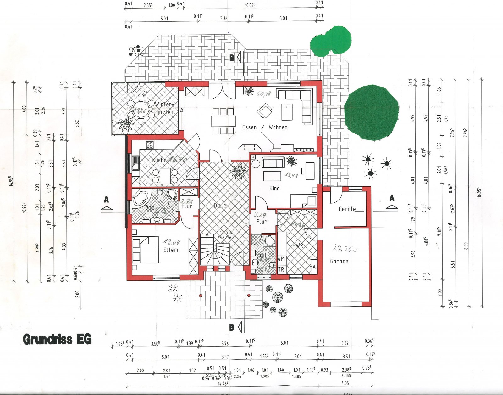
Indeling:
Die Wohnfläche von ca. 185 m² verteilt sich auf ein riesiges Wohnzimmer mit angrenzendem Wintergarten, eine große Küche, zwei ebenerdige Schlafzimmer, ein großzügiges Tageslichtbad mit Badewanne und ebenerdiger Dusche sowie ein zusätzliches Duschbad für Gäste. Alle Räume sind durchdacht geschnitten und bieten viel Wohnkomfort. Die moderne Einbauküche ist im Kaufpreis enthalten und lässt keine Wünsche offen.
Die Beheizung erfolgt größtenteils über eine komfortable Fußbodenheizung – lediglich das Wohnzimmer ist mit Heizkörpern ausgestattet. Die Kunststofffenster verfügen über eine 2-fach-Isolierverglasung, elektrische Rollläden sowie teilweise über Zeitschaltuhren, was den Wohnkomfort zusätzlich erhöht.
Ein weiteres Highlight: Das Dachgeschoss bietet dank Betondecke und massiver Bausubstanz die Möglichkeit zur unkomplizierten Erweiterung – ideal, um zusätzlichen Wohn- oder Arbeitsraum zu schaffen.
Auch praktisch überzeugt dieses Haus: Die direkt ans Wohnhaus angrenzende Garage mit zusätzlichem Geräteraum bietet ausreichend Stauraum und einen direkten Zugang zum Hausinneren. Der Eingangsbereich mit Windfang und Glaselementen empfängt Sie repräsentativ und hell.
Die Ausstattung im Überblick:
- Winkelwalmdachbungalow (Baujahr 2000) in ruhiger Sackgassenlage
- Wohnfläche ca. 185 m², Grundstück ca. 1.000 m²
- Beheizter Wintergarten mit Beschattung und elektrischen Rollos
- Fußbodenheizung (außer Wohnzimmer)
- Specksteinofen im Wohnzimmer
- Zwei Badezimmer (Hauptbad mit Wanne und Dusche, Gästebad mit Dusche)
- Elektrische Rollläden, z. T. mit Zeitschaltuhren
- Kunststofffenster mit 2-fach Isolierverglasung
- Ausbaupotenzial im Dachgeschoss
- Garage mit direktem Zugang zum Haus
- Pflegeleichte Bodenbeläge: Fliesen im Wohnbereich, PVC in den Schlafzimmern
- Repräsentativer Eingangsbereich mit Windfang und Glaselementen
- Einbauküche im Kaufpreis enthalten
Die Beheizung erfolgt größtenteils über eine komfortable Fußbodenheizung – lediglich das Wohnzimmer ist mit Heizkörpern ausgestattet. Die Kunststofffenster verfügen über eine 2-fach-Isolierverglasung, elektrische Rollläden sowie teilweise über Zeitschaltuhren, was den Wohnkomfort zusätzlich erhöht.
Ein weiteres Highlight: Das Dachgeschoss bietet dank Betondecke und massiver Bausubstanz die Möglichkeit zur unkomplizierten Erweiterung – ideal, um zusätzlichen Wohn- oder Arbeitsraum zu schaffen.
Auch praktisch überzeugt dieses Haus: Die direkt ans Wohnhaus angrenzende Garage mit zusätzlichem Geräteraum bietet ausreichend Stauraum und einen direkten Zugang zum Hausinneren. Der Eingangsbereich mit Windfang und Glaselementen empfängt Sie repräsentativ und hell.
Die Ausstattung im Überblick:
- Winkelwalmdachbungalow (Baujahr 2000) in ruhiger Sackgassenlage
- Wohnfläche ca. 185 m², Grundstück ca. 1.000 m²
- Beheizter Wintergarten mit Beschattung und elektrischen Rollos
- Fußbodenheizung (außer Wohnzimmer)
- Specksteinofen im Wohnzimmer
- Zwei Badezimmer (Hauptbad mit Wanne und Dusche, Gästebad mit Dusche)
- Elektrische Rollläden, z. T. mit Zeitschaltuhren
- Kunststofffenster mit 2-fach Isolierverglasung
- Ausbaupotenzial im Dachgeschoss
- Garage mit direktem Zugang zum Haus
- Pflegeleichte Bodenbeläge: Fliesen im Wohnbereich, PVC in den Schlafzimmern
- Repräsentativer Eingangsbereich mit Windfang und Glaselementen
- Einbauküche im Kaufpreis enthalten
Ligging:
Dörpen, eine idyllische Gemeinde im Emsland, bietet eine harmonische Mischung aus ländlicher Ruhe und moderner Infrastruktur. Mit über 5.000 Einwohnern hat Dörpen den idealen Maßstab zwischen einer überschaubaren Gemeinschaft und einem lebendigen Ort, in dem es sich gut leben lässt.
Dörpen liegt verkehrsgünstig an der B70 und nahe der Autobahn A31, was eine schnelle Verbindung zu den umliegenden Städten wie Papenburg, Meppen oder Lingen ermöglicht. Auch die niederländische Grenze ist in kurzer Zeit erreichbar, was Dörpen zu einem idealen Wohnort für Berufspendler macht. Die Bahnanbindung in Richtung Münster und Norddeich Mole erweitert die Mobilität zusätzlich.
Die Gemeinde bietet eine umfassende Infrastruktur mit zahlreichen Einkaufsmöglichkeiten, darunter Supermärkte, Fachgeschäfte und ein wöchentlicher Markt, auf dem frische, regionale Produkte angeboten werden. Darüber hinaus gibt es mehrere Ärzte, Apotheken, Banken und ein breites Angebot an Dienstleistern, die eine komfortable Versorgung sicherstellen.
Für Familien mit Kindern ist Dörpen ein attraktiver Wohnort, da es mehrere Kindergärten, eine Grundschule sowie eine weiterführende Schule gibt. Ein gut ausgestattetes Schulzentrum und verschiedene Vereine bieten Kindern und Jugendlichen zahlreiche Bildungs- und Freizeitmöglichkeiten.
Das Freizeitangebot in Dörpen ist vielfältig. Neben Sportvereinen, einem Hallenbad und einem gut ausgebauten Rad- und Wanderwegenetz bietet die nahe gelegene Emslandschaft Naturfreunden zahlreiche Erholungsmöglichkeiten.
In Dörpen wird Gemeinschaft großgeschrieben. Zahlreiche Feste, Märkte und Veranstaltungen, wie das jährliche Schützenfest oder der Dörper Markt, stärken das Zusammengehörigkeitsgefühl und machen Dörpen zu einem Ort, an dem sich die Bewohner zuhause fühlen.
Mit seiner naturnahen Lage, den gepflegten Wohngebieten und den vielen Grünflächen bietet Dörpen eine hohe Lebensqualität. Hier finden Sie die Ruhe und Erholung, die das Leben auf dem Land so attraktiv macht, ohne auf die Annehmlichkeiten einer modernen Gemeinde verzichten zu müssen.
Dörpen ist ein lebenswerter Ort, der Tradition und Moderne in idealer Weise verbindet. Ob für Familien, Berufstätige oder Ruheständler – Dörpen bietet für jede Lebensphase ein angenehmes Umfeld und ist ein Ort, an dem man gerne zuhause ist.
Dörpen liegt verkehrsgünstig an der B70 und nahe der Autobahn A31, was eine schnelle Verbindung zu den umliegenden Städten wie Papenburg, Meppen oder Lingen ermöglicht. Auch die niederländische Grenze ist in kurzer Zeit erreichbar, was Dörpen zu einem idealen Wohnort für Berufspendler macht. Die Bahnanbindung in Richtung Münster und Norddeich Mole erweitert die Mobilität zusätzlich.
Die Gemeinde bietet eine umfassende Infrastruktur mit zahlreichen Einkaufsmöglichkeiten, darunter Supermärkte, Fachgeschäfte und ein wöchentlicher Markt, auf dem frische, regionale Produkte angeboten werden. Darüber hinaus gibt es mehrere Ärzte, Apotheken, Banken und ein breites Angebot an Dienstleistern, die eine komfortable Versorgung sicherstellen.
Für Familien mit Kindern ist Dörpen ein attraktiver Wohnort, da es mehrere Kindergärten, eine Grundschule sowie eine weiterführende Schule gibt. Ein gut ausgestattetes Schulzentrum und verschiedene Vereine bieten Kindern und Jugendlichen zahlreiche Bildungs- und Freizeitmöglichkeiten.
Das Freizeitangebot in Dörpen ist vielfältig. Neben Sportvereinen, einem Hallenbad und einem gut ausgebauten Rad- und Wanderwegenetz bietet die nahe gelegene Emslandschaft Naturfreunden zahlreiche Erholungsmöglichkeiten.
In Dörpen wird Gemeinschaft großgeschrieben. Zahlreiche Feste, Märkte und Veranstaltungen, wie das jährliche Schützenfest oder der Dörper Markt, stärken das Zusammengehörigkeitsgefühl und machen Dörpen zu einem Ort, an dem sich die Bewohner zuhause fühlen.
Mit seiner naturnahen Lage, den gepflegten Wohngebieten und den vielen Grünflächen bietet Dörpen eine hohe Lebensqualität. Hier finden Sie die Ruhe und Erholung, die das Leben auf dem Land so attraktiv macht, ohne auf die Annehmlichkeiten einer modernen Gemeinde verzichten zu müssen.
Dörpen ist ein lebenswerter Ort, der Tradition und Moderne in idealer Weise verbindet. Ob für Familien, Berufstätige oder Ruheständler – Dörpen bietet für jede Lebensphase ein angenehmes Umfeld und ist ein Ort, an dem man gerne zuhause ist.
Overige:
Wohnflächenaufteilung:
Erdgeschoss:
Diele ca. 20,24 m²
Flur I ca. 2,78 m²
Flur II ca. 3,27 m²
Wohn-/Esszimmer ca. 50,28 m²
Wintergarten ca. 19,26 m²
Küche ca. 16,40 m²
Schlafzimmer ca. 19,04 m²
Schlafzimmer ca. 19,49 m²
Badezimmer ca. 8,96 m²
Gäste-Bad ca. 5,45 m²
Hauswirtschaftsraum ca. 14,26 m²
DG:
Flur ca. 12,30 m²
DG mit Betondecke ausbaubar.
Nutzflächen:
Garage mit Geräteraum ca. 27,25 m²
Erdgeschoss:
Diele ca. 20,24 m²
Flur I ca. 2,78 m²
Flur II ca. 3,27 m²
Wohn-/Esszimmer ca. 50,28 m²
Wintergarten ca. 19,26 m²
Küche ca. 16,40 m²
Schlafzimmer ca. 19,04 m²
Schlafzimmer ca. 19,49 m²
Badezimmer ca. 8,96 m²
Gäste-Bad ca. 5,45 m²
Hauswirtschaftsraum ca. 14,26 m²
DG:
Flur ca. 12,30 m²
DG mit Betondecke ausbaubar.
Nutzflächen:
Garage mit Geräteraum ca. 27,25 m²
Opmerking:
Mocht u interesse aan een van de door ons aangeboden huizen hebben klik op de button vragen over het object in de rechter kolom. Een bezichtiging is voor u geheel vrijblijvend.
Algemene voorwaarden:
Door een klik op de button"Bekijk de locatie van het object op Google maps " ziet u nooit de exacte locatie maar altijd alleen maar de locatie van de dichstbijzijnde plaats / stad
Voor het juiste adres klik in de rechter colom "Vragen over het object"
Alle aanbiedingen zijn onderhevig aan wijzigingen zonder voorafgaande kennisgeving en zijn gebaseerd op door de eigenaar verstrekte informatie; er kan dan ook geen enkele aansprakelijkheid worden aanvaard voor de juistheid en volledigheid ervan. Onder voorbehoud van voorafgaande verkoop of verhuur door de eigenaar.
Voor het juiste adres klik in de rechter colom "Vragen over het object"
Alle aanbiedingen zijn onderhevig aan wijzigingen zonder voorafgaande kennisgeving en zijn gebaseerd op door de eigenaar verstrekte informatie; er kan dan ook geen enkele aansprakelijkheid worden aanvaard voor de juistheid en volledigheid ervan. Onder voorbehoud van voorafgaande verkoop of verhuur door de eigenaar.
Lees meer over de mogelijke valkuilen bij de aankoop van een huis in Duitsland op onze blog
Boordevol informatie m.b.t. een mogelijke emigratie naar Duitsland en over de aankoop of nieuwbouw van een huis in Duitsland:
Meer weten over wonen in Duitsland? Link opent in nieuw venster
Boordevol informatie m.b.t. een mogelijke emigratie naar Duitsland en over de aankoop of nieuwbouw van een huis in Duitsland:
Meer weten over wonen in Duitsland? Link opent in nieuw venster
Uw contactpersoon
Gründer-Immobilien
Mijnheer Ralf Gründer
Hauptstraße 97
26892 Dörpen
Telefoon: +49 4963 914923
Mobiele telefoon: +49 171 9912377
Mijnheer Ralf Gründer
Hauptstraße 97
26892 Dörpen
Telefoon: +49 4963 914923
Mobiele telefoon: +49 171 9912377
Terug naar het overzicht

































