Object 80 van 327
Volgende object
Vorige object
Terug naar het overzicht
Terug naar het overzicht
Volgende object
Vorige object
Terug naar het overzichtSurwold: Charmantes Traumhaus – Großzügiges Zweifamilienhaus mit Weitblick und vielen Möglichkeiten!
Object-Nr.: 8441#5EQUu
Snel contact
Opties
Opties
Kerngegevens
Adres:
26903 Surwold
Emsland
Niedersachsen
Emsland
Niedersachsen
Prijs:
469.000 €
Woonoppervlak ca.:
260 m2.
Grondstuk:
4.695 m2.
Aantal kamers:
10
Verdere gegevens
Verdere gegevens
Woningtype:
Tweegezins woning
Op provisiebasis:
nee
Keuken:
Inbouwkeuken
Bad:
Douche, Raam, Urinoir
Aantal slaapkamers:
5
Aantal badkamers:
3
Balkon:
2
Terras:
1
Kostgangerwoning:
ja
Gastentoilet:
ja
Serre:
ja
Aantal parkeerplaatsen:
5
Aantal parkeerplaatsen:
5 x Parkeerplaats buiten; 3 x Garage
Laatste modernisering/ sanering:
2023
Bouwjaar:
1992
Beschikbaar vanaf:
nach Vereinbarung
Vloerbedekking:
Vloertegels, PVC, Laminaat
Toestand:
Goed onderhouden
Verwarmingssoort:
Gas
Type energiebewijs:
verbruik certificaat - geldig vanaf 23.04.2025 tot 22.04.2035
Energie-efficiëntieklasse:
C
Kengetal energieverbruik:
96,10 kWh/(m²*a)
Energieverbruik voor warm water inbegrepen:
ja
Bouwjaar volgens energiecertificatie:
1992
Uitvoerige beschrijving
Uitvoerige beschrijving
Objectbeschrijving:
Für Käufer Provisionsfrei: Dieses top gepflegte Zweifamilienhaus in Surwold besticht durch seine großzügige Wohnfläche von ca. 260 m², die sowohl für große Familien als auch für mehrere Generationen ideale Wohnmöglichkeiten bietet. Die durchdachte Raumaufteilung ermöglicht eine flexible Nutzung, sei es als Mehrgenerationenhaus, zur Vermietung oder für eine Familie, die Wert auf viel Platz legt.
Das Erdgeschoss umfasst eine großzügige Wohneinheit mit geräumigen, lichtdurchfluteten Zimmern, die eine behagliche Atmosphäre schaffen. Der Wohnbereich ist offen gestaltet und bietet reichlich Platz für gemütliche Stunden mit Familie und Freunden. Die Dachgeschosswohnung verfügt über zwei Loggien, die einen fantastischen Blick in die grüne Umgebung bieten. Hier lassen sich die Sonnenuntergänge besonders genießen.
Das weitläufige Grundstück von rund 4.695 m² bietet eine Vielzahl an Gestaltungsmöglichkeiten. Ob ein großer Garten, eine Spielwiese für Kinder oder Platz für Kleintierhaltung – hier können Sie Ihre individuellen Wohnträume verwirklichen. Ein weiteres Highlight ist das Nebengebäude auf dem Grundstück, das sich ideal als Geräte- oder Hobbyraum nutzen lässt. Mit zwei separaten Zufahrten zu den Garagen bietet das Haus zudem ein hohes Maß an Komfort und Flexibilität.
Dieses gepflegte Zweifamilienhaus vereint großzügiges Wohnen mit naturnahem Lebensgefühl. Die durchgeführten Renovierungen sorgen für modernen Wohnkomfort und machen das Haus sofort bezugsfertig. Besonders hervorzuheben sind das weitläufige Grundstück mit vielen Nutzungsmöglichkeiten, das praktische Nebengebäude sowie die zwei separaten Zufahrten, die zusätzlichen Komfort bieten. Egal, ob als Mehrgenerationenhaus, zur teilweisen Vermietung oder für eine große Familie – hier können Sie sich Ihr persönliches Wohnparadies schaffen.
Lassen Sie sich dieses besondere Angebot nicht entgehen und vereinbaren Sie noch heute einen Besichtigungstermin!
Das Erdgeschoss umfasst eine großzügige Wohneinheit mit geräumigen, lichtdurchfluteten Zimmern, die eine behagliche Atmosphäre schaffen. Der Wohnbereich ist offen gestaltet und bietet reichlich Platz für gemütliche Stunden mit Familie und Freunden. Die Dachgeschosswohnung verfügt über zwei Loggien, die einen fantastischen Blick in die grüne Umgebung bieten. Hier lassen sich die Sonnenuntergänge besonders genießen.
Das weitläufige Grundstück von rund 4.695 m² bietet eine Vielzahl an Gestaltungsmöglichkeiten. Ob ein großer Garten, eine Spielwiese für Kinder oder Platz für Kleintierhaltung – hier können Sie Ihre individuellen Wohnträume verwirklichen. Ein weiteres Highlight ist das Nebengebäude auf dem Grundstück, das sich ideal als Geräte- oder Hobbyraum nutzen lässt. Mit zwei separaten Zufahrten zu den Garagen bietet das Haus zudem ein hohes Maß an Komfort und Flexibilität.
Dieses gepflegte Zweifamilienhaus vereint großzügiges Wohnen mit naturnahem Lebensgefühl. Die durchgeführten Renovierungen sorgen für modernen Wohnkomfort und machen das Haus sofort bezugsfertig. Besonders hervorzuheben sind das weitläufige Grundstück mit vielen Nutzungsmöglichkeiten, das praktische Nebengebäude sowie die zwei separaten Zufahrten, die zusätzlichen Komfort bieten. Egal, ob als Mehrgenerationenhaus, zur teilweisen Vermietung oder für eine große Familie – hier können Sie sich Ihr persönliches Wohnparadies schaffen.
Lassen Sie sich dieses besondere Angebot nicht entgehen und vereinbaren Sie noch heute einen Besichtigungstermin!
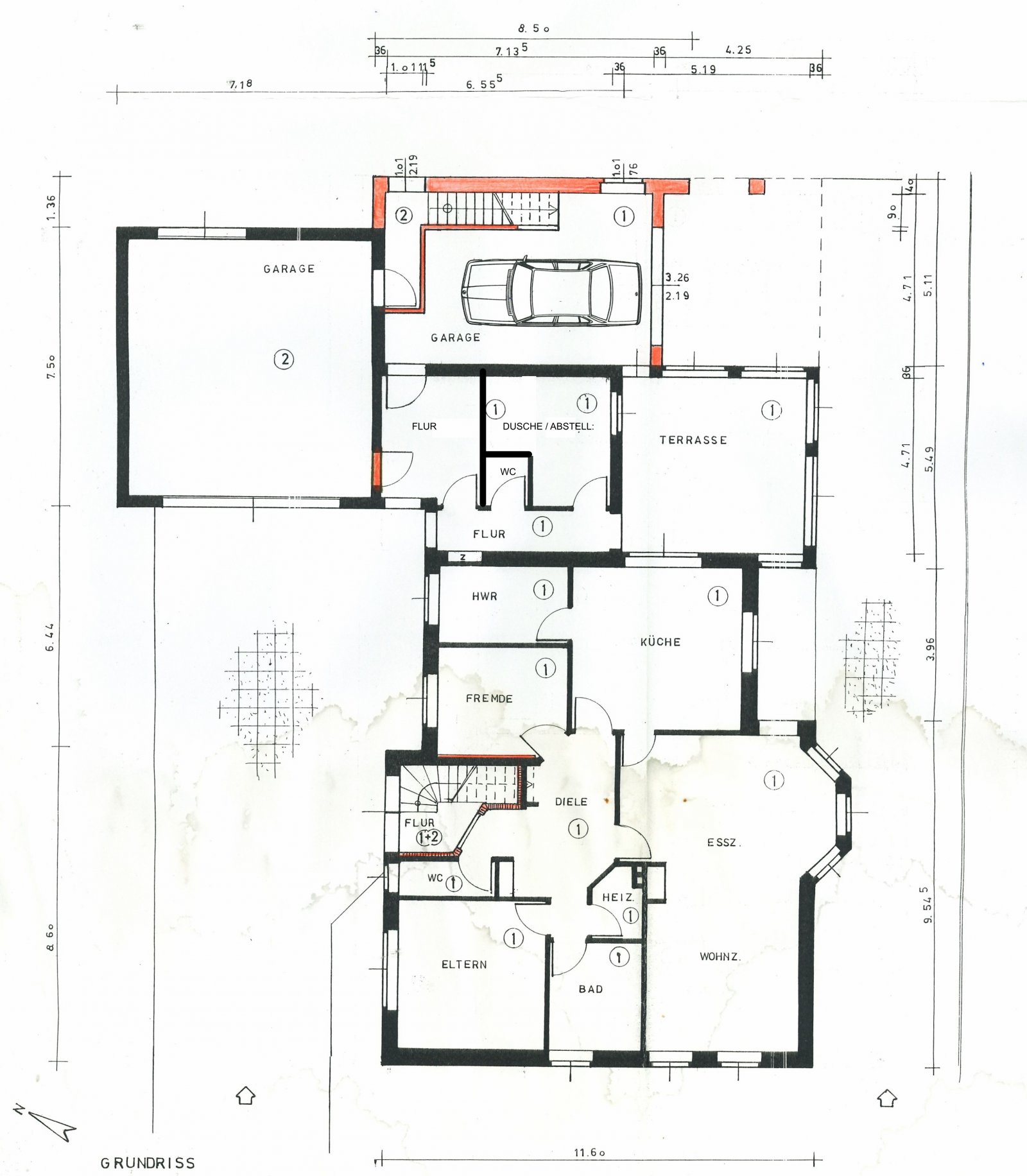
Indeling:
Ausstattung & Highlights
Das Haus überzeugt durch seine großzügigen und lichtdurchfluteten Wohnräume, die eine angenehme Wohnatmosphäre schaffen. Der Wohnbereich im Erdgeschoss ist ideal für geselliges Beisammensein und bietet dank seiner offenen Gestaltung eine einladende Atmosphäre. Die Dachgeschosswohnung mit ihren zwei Loggien sorgt für zusätzlichen Wohnkomfort und einen wunderbaren Ausblick auf das grüne Umland. Ein weiteres Highlight ist der große Wintergarten, welcher auch an weniger sonnigen Tagen als Rückzugsort dienen kann.
Die moderne Heiztechnik mit einer Erdgasheizung sorgt für wohlige Wärme im gesamten Haus, während die Photovoltaikanlage mit einer Leistung von 8 kWh die Energiekosten reduziert und einen nachhaltigen Beitrag zur Umwelt leistet. Alle Fenster des Hauses sind aus hochwertigem Kunststoff gefertigt, verfügen über eine Zweifachverglasung und sind mit Rollläden ausgestattet, die für zusätzlichen Komfort und Sicherheit sorgen.
2 Einbauküchen und 3 Bäder sorgen dafür, dass die Dinge des täglichen Bedarfs schnell zu erreichen und erledigen sind und somit ihren Alltag erleichtern. Die Einbauküche und die Badmöbel im EG sind im Kaufpreis enthalten.
Die gepflegte Außenanlage bietet reichlich Platz für individuelle Gestaltungsmöglichkeiten. Das weitläufige Grundstück ist ideal für Hobbygärtner oder Tierliebhaber und lädt dazu ein, die Natur in vollen Zügen zu genießen. Ein Nebengebäude dient als praktischer Geräte- und Hobbyraum und bietet zusätzliche Nutzfläche.
Für Fahrzeuge stehen sowohl eine Doppelgarage als auch eine Einzelgarage zur Verfügung, die ausreichend Platz für Autos, Fahrräder oder eine kleine Werkstatt bieten. Zwei separate Zufahrten sorgen für eine bequeme Erreichbarkeit und erleichtern den Alltag. Beide Garagen sind über elektrische Sektionaltore schnell zugänglich. Von der Einzelgarage aus führt ein zweiter Treppenaufgang direkt in die Dachgeschosswohnung.
Renovierungen und Erneuerungen in den letzten Jahren:
2013: Installation der Photovoltaikanlage zur nachhaltigen Energiegewinnung
2017: Erneuerung der Heizung im Dachgeschoss für eine effizientere Wärmeversorgung
2018: Modernisierung des Duschbades mit hochwertigen Armaturen und stilvollen Fliesen
2019: Neuer Vinylboden im Wohnzimmer für ein modernes und pflegeleichtes Ambiente
2022: Austausch aller Innentüren im Erdgeschoss für ein frisches und zeitgemäßes Wohngefühl
2023: Installation einer neuen Heizungsanlage im Erdgeschoss zur Optimierung der Energieeffizienz
Das Haus überzeugt durch seine großzügigen und lichtdurchfluteten Wohnräume, die eine angenehme Wohnatmosphäre schaffen. Der Wohnbereich im Erdgeschoss ist ideal für geselliges Beisammensein und bietet dank seiner offenen Gestaltung eine einladende Atmosphäre. Die Dachgeschosswohnung mit ihren zwei Loggien sorgt für zusätzlichen Wohnkomfort und einen wunderbaren Ausblick auf das grüne Umland. Ein weiteres Highlight ist der große Wintergarten, welcher auch an weniger sonnigen Tagen als Rückzugsort dienen kann.
Die moderne Heiztechnik mit einer Erdgasheizung sorgt für wohlige Wärme im gesamten Haus, während die Photovoltaikanlage mit einer Leistung von 8 kWh die Energiekosten reduziert und einen nachhaltigen Beitrag zur Umwelt leistet. Alle Fenster des Hauses sind aus hochwertigem Kunststoff gefertigt, verfügen über eine Zweifachverglasung und sind mit Rollläden ausgestattet, die für zusätzlichen Komfort und Sicherheit sorgen.
2 Einbauküchen und 3 Bäder sorgen dafür, dass die Dinge des täglichen Bedarfs schnell zu erreichen und erledigen sind und somit ihren Alltag erleichtern. Die Einbauküche und die Badmöbel im EG sind im Kaufpreis enthalten.
Die gepflegte Außenanlage bietet reichlich Platz für individuelle Gestaltungsmöglichkeiten. Das weitläufige Grundstück ist ideal für Hobbygärtner oder Tierliebhaber und lädt dazu ein, die Natur in vollen Zügen zu genießen. Ein Nebengebäude dient als praktischer Geräte- und Hobbyraum und bietet zusätzliche Nutzfläche.
Für Fahrzeuge stehen sowohl eine Doppelgarage als auch eine Einzelgarage zur Verfügung, die ausreichend Platz für Autos, Fahrräder oder eine kleine Werkstatt bieten. Zwei separate Zufahrten sorgen für eine bequeme Erreichbarkeit und erleichtern den Alltag. Beide Garagen sind über elektrische Sektionaltore schnell zugänglich. Von der Einzelgarage aus führt ein zweiter Treppenaufgang direkt in die Dachgeschosswohnung.
Renovierungen und Erneuerungen in den letzten Jahren:
2013: Installation der Photovoltaikanlage zur nachhaltigen Energiegewinnung
2017: Erneuerung der Heizung im Dachgeschoss für eine effizientere Wärmeversorgung
2018: Modernisierung des Duschbades mit hochwertigen Armaturen und stilvollen Fliesen
2019: Neuer Vinylboden im Wohnzimmer für ein modernes und pflegeleichtes Ambiente
2022: Austausch aller Innentüren im Erdgeschoss für ein frisches und zeitgemäßes Wohngefühl
2023: Installation einer neuen Heizungsanlage im Erdgeschoss zur Optimierung der Energieeffizienz
Ligging:
Das Haus befindet sich in einer idyllischen und ruhigen Wohnlage in Surwold, direkt an einem kleinen Kanal. Die naturnahe Umgebung bietet eine hohe Lebensqualität und lädt zu zahlreichen Freizeitaktivitäten wie Spaziergängen, Radtouren oder Wassersport ein. Trotz der ruhigen Lage sind Einkaufsmöglichkeiten, Schulen, Ärzte und weitere Einrichtungen des täglichen Bedarfs schnell erreichbar. Die gute Verkehrsanbindung ermöglicht zudem eine schnelle Anbindung an umliegende Städte.
Surwold selbst ist eine charmante Gemeinde im Emsland, die durch ihre naturnahe Umgebung und eine hohe Lebensqualität überzeugt. Die Region bietet eine hervorragende Infrastruktur mit Kindergärten, Schulen, Ärzten und vielfältigen Einkaufsmöglichkeiten. Freizeitangebote wie Wanderwege, Radstrecken und Sportvereine machen Surwold besonders attraktiv für Familien und Naturliebhaber. Der bekannte Freizeitpark Surwold mit seinem Märchenwald und Aussichtsturm ist ein beliebtes Ausflugsziel in der Umgebung. Gleichzeitig profitieren Bewohner von der guten Anbindung an die nächstgelegenen Städte wie Papenburg und Meppen, die weitere kulturelle und wirtschaftliche Möglichkeiten bieten.
Surwold selbst ist eine charmante Gemeinde im Emsland, die durch ihre naturnahe Umgebung und eine hohe Lebensqualität überzeugt. Die Region bietet eine hervorragende Infrastruktur mit Kindergärten, Schulen, Ärzten und vielfältigen Einkaufsmöglichkeiten. Freizeitangebote wie Wanderwege, Radstrecken und Sportvereine machen Surwold besonders attraktiv für Familien und Naturliebhaber. Der bekannte Freizeitpark Surwold mit seinem Märchenwald und Aussichtsturm ist ein beliebtes Ausflugsziel in der Umgebung. Gleichzeitig profitieren Bewohner von der guten Anbindung an die nächstgelegenen Städte wie Papenburg und Meppen, die weitere kulturelle und wirtschaftliche Möglichkeiten bieten.
Overige:
Wohnflächenaufteilung:
Erdgeschoss:
Windfang/Flur ca. 2,00 m²
Wohn-Esszimmer ca. 40,44 m²
Küche ca. 19,17 m²
Duschbad ca. 7,24 m2
Schlafzimmer ca. 16,08 m²
Schlafzimmer ca. 10,05 m²
Hauswirtschaftsraum ca. 7,06 m²
Gäste-WC ca. 2,66 m²
Wintergarten ca. 22,75 m²
Flur ca. 12,14 m²
Heizungsraum ca. 1,00 m²
Abstellraum ca. 4,00 m²
Toilette ca. 1,00 m²
Dusche ca. 3,00 m²
Obergeschoss:
Flur ca. 24,79 m²
Wohn/Esszimmer ca. 32,18 m²
Küche ca. 16,84 m²
Schlafzimmer ca. 16,58 m²
Schlafzimmer ca. 17,98 m²
Schlafzimmer ca. 15,00 m²
Dusche 3,00 m²
Hauswirtschaftsraum ca. 9,74 m²
Badezimmer ca. 7,16 m²
Abstellraum ca. 1,96 m²
Nutzflächen:
Doppelgarage, Garage, Geräte- und Hobbyraum im Nebengebäude
Erdgeschoss:
Windfang/Flur ca. 2,00 m²
Wohn-Esszimmer ca. 40,44 m²
Küche ca. 19,17 m²
Duschbad ca. 7,24 m2
Schlafzimmer ca. 16,08 m²
Schlafzimmer ca. 10,05 m²
Hauswirtschaftsraum ca. 7,06 m²
Gäste-WC ca. 2,66 m²
Wintergarten ca. 22,75 m²
Flur ca. 12,14 m²
Heizungsraum ca. 1,00 m²
Abstellraum ca. 4,00 m²
Toilette ca. 1,00 m²
Dusche ca. 3,00 m²
Obergeschoss:
Flur ca. 24,79 m²
Wohn/Esszimmer ca. 32,18 m²
Küche ca. 16,84 m²
Schlafzimmer ca. 16,58 m²
Schlafzimmer ca. 17,98 m²
Schlafzimmer ca. 15,00 m²
Dusche 3,00 m²
Hauswirtschaftsraum ca. 9,74 m²
Badezimmer ca. 7,16 m²
Abstellraum ca. 1,96 m²
Nutzflächen:
Doppelgarage, Garage, Geräte- und Hobbyraum im Nebengebäude
Opmerking:
Mocht u interesse aan een van de door ons aangeboden huizen hebben klik op de button vragen over het object in de rechter kolom. Een bezichtiging is voor u geheel vrijblijvend.
Algemene voorwaarden:
Door een klik op de button"Bekijk de locatie van het object op Google maps " ziet u nooit de exacte locatie maar altijd alleen maar de locatie van de dichstbijzijnde plaats / stad
Voor het juiste adres klik in de rechter colom "Vragen over het object"
Alle aanbiedingen zijn onderhevig aan wijzigingen zonder voorafgaande kennisgeving en zijn gebaseerd op door de eigenaar verstrekte informatie; er kan dan ook geen enkele aansprakelijkheid worden aanvaard voor de juistheid en volledigheid ervan. Onder voorbehoud van voorafgaande verkoop of verhuur door de eigenaar.
Voor het juiste adres klik in de rechter colom "Vragen over het object"
Alle aanbiedingen zijn onderhevig aan wijzigingen zonder voorafgaande kennisgeving en zijn gebaseerd op door de eigenaar verstrekte informatie; er kan dan ook geen enkele aansprakelijkheid worden aanvaard voor de juistheid en volledigheid ervan. Onder voorbehoud van voorafgaande verkoop of verhuur door de eigenaar.
Lees meer over de mogelijke valkuilen bij de aankoop van een huis in Duitsland op onze blog
Boordevol informatie m.b.t. een mogelijke emigratie naar Duitsland en over de aankoop of nieuwbouw van een huis in Duitsland:
Meer weten over wonen in Duitsland? Link opent in nieuw venster
Boordevol informatie m.b.t. een mogelijke emigratie naar Duitsland en over de aankoop of nieuwbouw van een huis in Duitsland:
Meer weten over wonen in Duitsland? Link opent in nieuw venster
Uw contactpersoon
Gründer-Immobilien
Mijnheer Ralf Gründer
Hauptstraße 97
26892 Dörpen
Telefoon: +49 4963 914923
Mobiele telefoon: +49 171 9912377
Mijnheer Ralf Gründer
Hauptstraße 97
26892 Dörpen
Telefoon: +49 4963 914923
Mobiele telefoon: +49 171 9912377
Terug naar het overzicht

























































