Object 1 van 27
Volgende object
Terug naar het overzicht
Terug naar het overzicht


Kalkar: Niedermörmter: Verwirklichen Sie Ihren Traum vom Eigenheim
Object-Nr.: 382709
Snel contact
Opties
Opties

Kerngegevens
Adres:
47546 Kalkar
Kleve
Nordrhein-Westfalen
Kleve
Nordrhein-Westfalen
Stadswijk:
Nordrhein-Westfalen
Grondstuk:
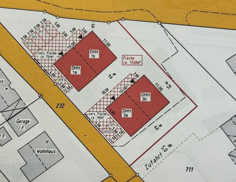
1.260 m2.
Prijs:
139.000 €
Verdere gegevens
Verdere gegevens
Soort exploitatie:
Wonen
Op provisiebasis:
ja
Provisie:
2,38% vom Kaufpreis (inkl. MwSt.)
Uitvoerige beschrijving
Uitvoerige beschrijving
Objectbeschrijving:
Willkommen in Niedermörmter – Baugrundstück in idyllischer Lage
Inmitten der reizvollen niederrheinischen Landschaft, im charmanten Ortsteil Niedermörmter der Stadt Kalkar, erwartet Sie dieses attraktive Grundstück mit vielfältigen Möglichkeiten. Umgeben von Natur, Ruhe und ländlichem Flair bietet es die ideale Basis für Ihr zukünftiges Zuhause oder ein individuelles Bauprojekt.
Die ruhige Lage in einer gewachsenen Wohngegend vereint naturnahes Wohnen mit guter Anbindung an die umliegenden Städte wie Kalkar, Xanten und Rees. Ob als Kapitalanlage oder zur Realisierung Ihres Wohntraums – dieses Grundstück bietet Ihnen eine hervorragende Gelegenheit in einer der schönsten Regionen des Niederrheins.
Grundstücksgröße:
ca. 1.260 m² (noch zu vermessen)
Bebaubare Fläche:
ca. 330 m² Grundfläche zzgl. ca. 250 m² Garagenfläche
Sie erwerben das Grundstück ohne Bindung an einen Architekten, Projektentwickler oder Bauunternehmer.
Gerne begleiten wir Sie bei der Planung und Umsetzung Ihrer Traumimmobilie – gemeinsam mit unseren erfahrenen Partnern. Wir freuen uns auf Ihre Kontaktaufnahme!
Laut Anfrage beim zuständigen Bauamt ist die Bebauung mit vier Doppelhaushälften inklusive Stellplätzen möglich. Alternativ besteht die Option, das Grundstück zu teilen und jeweils zwei Doppelhaushälften zu errichten.
Kaufpreis:
€ 139.000,–
Inmitten der reizvollen niederrheinischen Landschaft, im charmanten Ortsteil Niedermörmter der Stadt Kalkar, erwartet Sie dieses attraktive Grundstück mit vielfältigen Möglichkeiten. Umgeben von Natur, Ruhe und ländlichem Flair bietet es die ideale Basis für Ihr zukünftiges Zuhause oder ein individuelles Bauprojekt.
Die ruhige Lage in einer gewachsenen Wohngegend vereint naturnahes Wohnen mit guter Anbindung an die umliegenden Städte wie Kalkar, Xanten und Rees. Ob als Kapitalanlage oder zur Realisierung Ihres Wohntraums – dieses Grundstück bietet Ihnen eine hervorragende Gelegenheit in einer der schönsten Regionen des Niederrheins.
Grundstücksgröße:
ca. 1.260 m² (noch zu vermessen)
Bebaubare Fläche:
ca. 330 m² Grundfläche zzgl. ca. 250 m² Garagenfläche
Sie erwerben das Grundstück ohne Bindung an einen Architekten, Projektentwickler oder Bauunternehmer.
Gerne begleiten wir Sie bei der Planung und Umsetzung Ihrer Traumimmobilie – gemeinsam mit unseren erfahrenen Partnern. Wir freuen uns auf Ihre Kontaktaufnahme!
Laut Anfrage beim zuständigen Bauamt ist die Bebauung mit vier Doppelhaushälften inklusive Stellplätzen möglich. Alternativ besteht die Option, das Grundstück zu teilen und jeweils zwei Doppelhaushälften zu errichten.
Kaufpreis:
€ 139.000,–
Overige:
Übernahme:
Nach Absprache mit dem Verkäufer
Besichtigungen:
Nur nach vorheriger Terminabsprache mit Rücksicht auf den Verkäufer. Terminabsprache unter: +49 2828 92199 (Büro Emmerich-Elten), +49 2824-965211 (Büro Kalkar), +49 2874 902572 (Büro Isselburg-Bocholt)
Provision:
Vom Verkäufer sowie Käufer sind mit Abschluss des Kaufvertrages eine Vermittlungs- bzw. Nachweisprovision vom Gesamtkaufpreis an die Rainer Elsmann Immobilien - Immobilienteam Niederrhein GmbH zu zahlen. Die Provisionshöhe entnehmen Sie bitte den Angaben in der Broschüre bzw. auf unserer Webseite.
Hinweis:
Sind mehrere Kaufinteressenten für die Immobilie vorhanden, wird der Verkäufer seine Verkaufsentscheidung treffen; gegebenenfalls kann es zu einem Bieterverfahren kommen.
Der Makler wird die Entscheidungen den Kaufinteressenten übermitteln. Wir weisen daraufhin, dass den Kaufinteressenten keine Schadensersatzansprüche zustehen weder gegen den Verkäufer noch gegen den Makler. Deshalb Vorsicht bei Vorleistungen (z.B. Gutachterkosten)
Allgemein:
Sämtliche, in diesem Angebot enthaltenen Angaben, Zeichnungen, Abmessungen und Preisangaben beruhen auf Angaben des Verkäufers, oder eines Dritten. Die Benennungen der Räume/Zimmer beziehen sich auf die aktuelle Nutzung und ggf. nicht auf die baurechtlichen Genehmigungen. Insbesondere im Falle älterer, bewohnter oder umgebauter Immobilien kann letzten Endes nicht immer gewährleistet werden, dass der neueste Stand der Technik eingehalten ist und das Objekt daneben allen Anforderungen Stand hält. Der Makler übernimmt in der Folge keine Gewähr für die Richtigkeit der von ihm lediglich weitergegebenen Informationen zur Beschaffenheit der Immobilie und/oder deren uneingeschränkter Eignung zu einer vorgesehenen Nutzung. Soweit der Makler neben der eigenen Sorgfalt auch für eigene Auskünfte haftet, ist diese Haftung auf grobe Fahrlässigkeit oder vorsätzliches Handeln beschränkt. Es gelten die allgemeinen Geschäftsbedingungen.
Übersetzungen:
Die Übersetzungen auf unserer Webseite erfolgen automatisch mit Deepl.
Informatie voor Nederlanders:
Wij spreken Nederlands!
Daarnaast begeleiden wij Nederlanders niet alleen bij de aankoop van een huis in Duitsland en alles wat daarbij komt kijken maar ook bij de emigratie naar Duitsland. Neem gewoon contact met ons op en laat u informeren!
. Info zum Energieausweis: nicht erforderlich (z. Bsp. Grundstück, Denkmal,…)
Nach Absprache mit dem Verkäufer
Besichtigungen:
Nur nach vorheriger Terminabsprache mit Rücksicht auf den Verkäufer. Terminabsprache unter: +49 2828 92199 (Büro Emmerich-Elten), +49 2824-965211 (Büro Kalkar), +49 2874 902572 (Büro Isselburg-Bocholt)
Provision:
Vom Verkäufer sowie Käufer sind mit Abschluss des Kaufvertrages eine Vermittlungs- bzw. Nachweisprovision vom Gesamtkaufpreis an die Rainer Elsmann Immobilien - Immobilienteam Niederrhein GmbH zu zahlen. Die Provisionshöhe entnehmen Sie bitte den Angaben in der Broschüre bzw. auf unserer Webseite.
Hinweis:
Sind mehrere Kaufinteressenten für die Immobilie vorhanden, wird der Verkäufer seine Verkaufsentscheidung treffen; gegebenenfalls kann es zu einem Bieterverfahren kommen.
Der Makler wird die Entscheidungen den Kaufinteressenten übermitteln. Wir weisen daraufhin, dass den Kaufinteressenten keine Schadensersatzansprüche zustehen weder gegen den Verkäufer noch gegen den Makler. Deshalb Vorsicht bei Vorleistungen (z.B. Gutachterkosten)
Allgemein:
Sämtliche, in diesem Angebot enthaltenen Angaben, Zeichnungen, Abmessungen und Preisangaben beruhen auf Angaben des Verkäufers, oder eines Dritten. Die Benennungen der Räume/Zimmer beziehen sich auf die aktuelle Nutzung und ggf. nicht auf die baurechtlichen Genehmigungen. Insbesondere im Falle älterer, bewohnter oder umgebauter Immobilien kann letzten Endes nicht immer gewährleistet werden, dass der neueste Stand der Technik eingehalten ist und das Objekt daneben allen Anforderungen Stand hält. Der Makler übernimmt in der Folge keine Gewähr für die Richtigkeit der von ihm lediglich weitergegebenen Informationen zur Beschaffenheit der Immobilie und/oder deren uneingeschränkter Eignung zu einer vorgesehenen Nutzung. Soweit der Makler neben der eigenen Sorgfalt auch für eigene Auskünfte haftet, ist diese Haftung auf grobe Fahrlässigkeit oder vorsätzliches Handeln beschränkt. Es gelten die allgemeinen Geschäftsbedingungen.
Übersetzungen:
Die Übersetzungen auf unserer Webseite erfolgen automatisch mit Deepl.
Informatie voor Nederlanders:
Wij spreken Nederlands!
Daarnaast begeleiden wij Nederlanders niet alleen bij de aankoop van een huis in Duitsland en alles wat daarbij komt kijken maar ook bij de emigratie naar Duitsland. Neem gewoon contact met ons op en laat u informeren!
. Info zum Energieausweis: nicht erforderlich (z. Bsp. Grundstück, Denkmal,…)
Provisie:
Bij de aankoop van een huis in Duitsland moet u rekening houden met in totaal +- 9,5 % bijkomende kosten zoals :
- Notaris- en Grundbuchkosten 1,5%
- 5% overdrachtsbelasting (ook deze is nog al verschillend in de deelstaten "Bundesländer"
(lees meer op ons blog)
- De makelaars provisie
De hoogte van de makelaarsprovisie is per regio en object nogal verschillend) maar let op:
Bij sommige woningen is de provisie van de makelaar al in de koopprijs inbegrepen !
Bij de nieuwbouw van een woning betaalt u alleen kosten koper over de prijs van de kavel
- Notaris- en Grundbuchkosten 1,5%
- 5% overdrachtsbelasting (ook deze is nog al verschillend in de deelstaten "Bundesländer"
(lees meer op ons blog)
- De makelaars provisie
De hoogte van de makelaarsprovisie is per regio en object nogal verschillend) maar let op:
Bij sommige woningen is de provisie van de makelaar al in de koopprijs inbegrepen !
Bij de nieuwbouw van een woning betaalt u alleen kosten koper over de prijs van de kavel
Opmerking:
Mocht u interesse aan een van de door ons aangeboden huizen hebben klik op de button vragen over het object in de rechter kolom. Een bezichtiging is voor u geheel vrijblijvend.
Algemene voorwaarden:
Door een klik op de button"Bekijk de locatie van het object op Google maps " ziet u nooit de exacte locatie maar altijd alleen maar de locatie van de dichstbijzijnde plaats / stad
Voor het juiste adres klik in de rechter colom "Vragen over het object"
Alle aanbiedingen zijn onderhevig aan wijzigingen zonder voorafgaande kennisgeving en zijn gebaseerd op door de eigenaar verstrekte informatie; er kan dan ook geen enkele aansprakelijkheid worden aanvaard voor de juistheid en volledigheid ervan. Onder voorbehoud van voorafgaande verkoop of verhuur door de eigenaar.
Voor het juiste adres klik in de rechter colom "Vragen over het object"
Alle aanbiedingen zijn onderhevig aan wijzigingen zonder voorafgaande kennisgeving en zijn gebaseerd op door de eigenaar verstrekte informatie; er kan dan ook geen enkele aansprakelijkheid worden aanvaard voor de juistheid en volledigheid ervan. Onder voorbehoud van voorafgaande verkoop of verhuur door de eigenaar.
Lees meer over de mogelijke valkuilen bij de aankoop van een huis in Duitsland op onze blog
Boordevol informatie m.b.t. een mogelijke emigratie naar Duitsland en over de aankoop of nieuwbouw van een huis in Duitsland:
Meer weten over wonen in Duitsland? Link opent in nieuw venster
Boordevol informatie m.b.t. een mogelijke emigratie naar Duitsland en over de aankoop of nieuwbouw van een huis in Duitsland:
Meer weten over wonen in Duitsland? Link opent in nieuw venster
Uw contactpersoon
Rainer Elsmann Immobilien
Büro Emmerich
Eltener Markt 15
46446 Emmerich
Telefoon: +49 2828 92199
Fax: +49 2828 93699
Büro Emmerich
Eltener Markt 15
46446 Emmerich
Telefoon: +49 2828 92199
Fax: +49 2828 93699
