Object 17 van 76
Volgende object
Vorige object
Terug naar het overzicht
Terug naar het overzicht
Volgende object
Vorige object
Terug naar het overzichtSchüttorf: Flexible Praxis- oder Bürofläche in zentraler Lage von Schüttorf zur Miete
Object-Nr.: 25942
Snel contact
Opties
Opties
Kerngegevens
Adres:
48465 Schüttorf
Grafschaft Bentheim
Niedersachsen
Grafschaft Bentheim
Niedersachsen
Stadswijk:
Niedersachsen
Objecttype:
Kantoor
Huurprijs incl. gebr.kosten:
1.150 € per maand
Totaal oppervlakte:
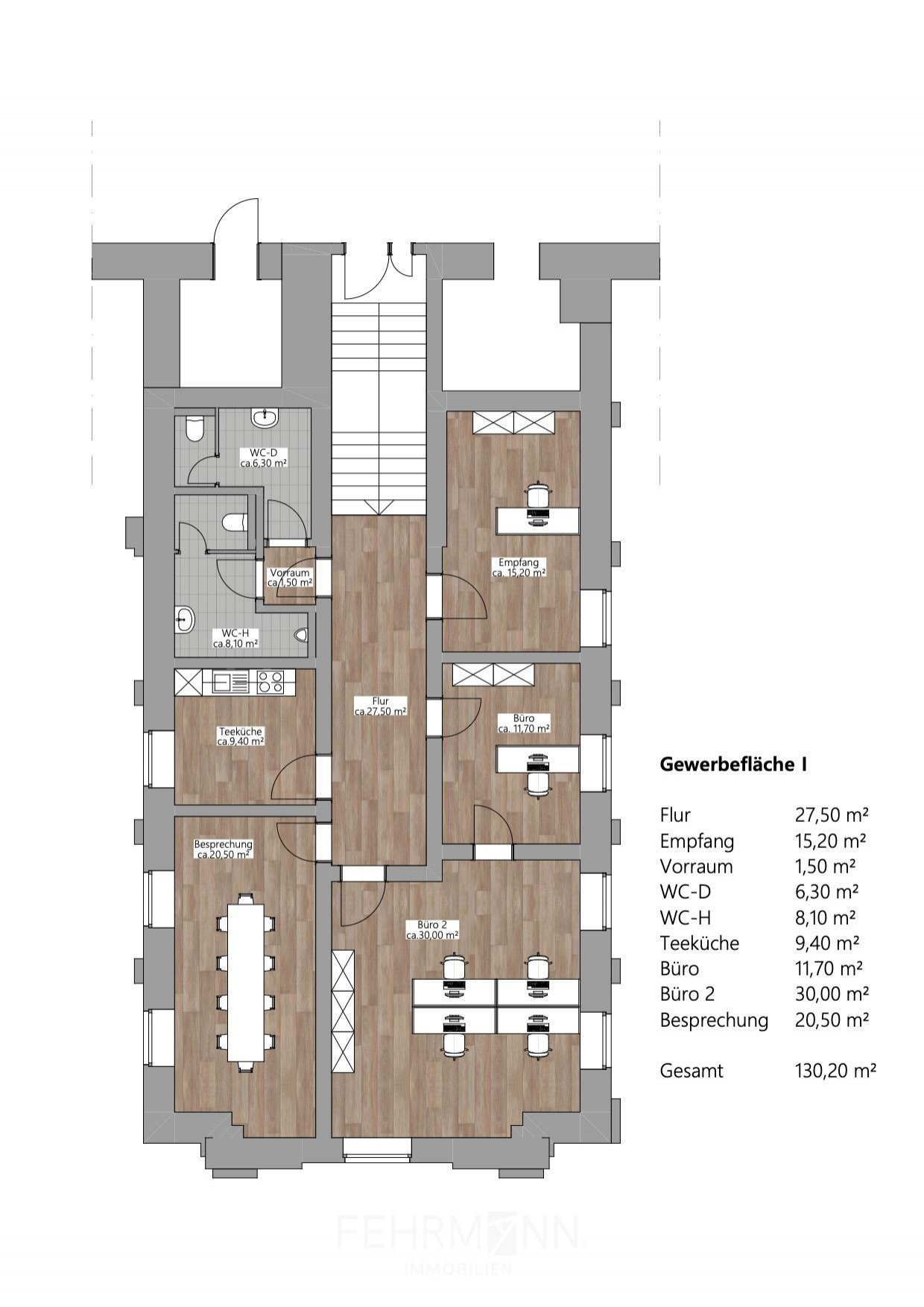
130,20 m2.
Kantoor-/praktijkruimte:
130,20 m2.
Beschikbaar vanaf:
sofort
Verdere gegevens
Verdere gegevens
Nevenkosten:
250 € per maand
Provisie:
3 Nettokaltmieten
Waarborg:
3 Nettokaltmieten
Kwaliteit van de uitrusting:
Normaal
Bouwjaar gebouw:
1900
Kelder:
nee
Vloerbedekking:
Vloertegels, PVC
Toestand:
Goed onderhouden
Verwarming:
Centrale verwarming
Verwarmingssoort:
Gas
Type energiebewijs:
verbruik certificaat - vervaldatum 18.03.2035
Eindenergieverbruik warmte:
76,60 kWh/(m²*a)
Eindenergieverbruik stroom:
48,10 kWh/(m²*a)
Bouwjaar volgens energiecertificatie:
1900
Reistijd naar het dichtstbijzijnde station:
1 Minuten
Waarborg:
3 Nettokaltmieten
Uitvoerige beschrijving
Uitvoerige beschrijving
Objectbeschrijving:
Zur Vermietung steht eine vielseitig nutzbare Gewerbefläche mit einer Gesamtgröße von 130,20 Quadratmetern.
Die helle und lichtdurchflutete Fläche verfügt über mehrere separate Räume, die flexibel als Büroräume oder für medizinische Praxiseinrichtungen genutzt werden können.
Die durchdachte Raumaufteilung ermöglicht Ihnen eine individuelle Anpassung an unterschiedliche Nutzungskonzepte.
Wünsche zur Ausstattung und Inneneinrichtung der Gewerbefläche können nach Absprache gegen Aufpreis der Miete umgesetzt werden.
Der Energieausweis (Verbrauch) liegt vor und kann bei der Besichtigung eingesehen werden. Der wesentliche Energieträger für die Heizung ist Erdgas (H).
Die wesentlichen Energieträger für Warmwasser sind Erdgas (H) und Strom.
Der Endenergieverbrauch dieses Gebäudes für Wärme beträgt 76,6 kWh/(m²*a).
Der Endenergieverbrauch dieses Gebäudes für Strom beträgt 48,1 kWh/(m²*a).
Die helle und lichtdurchflutete Fläche verfügt über mehrere separate Räume, die flexibel als Büroräume oder für medizinische Praxiseinrichtungen genutzt werden können.
Die durchdachte Raumaufteilung ermöglicht Ihnen eine individuelle Anpassung an unterschiedliche Nutzungskonzepte.
Wünsche zur Ausstattung und Inneneinrichtung der Gewerbefläche können nach Absprache gegen Aufpreis der Miete umgesetzt werden.
Der Energieausweis (Verbrauch) liegt vor und kann bei der Besichtigung eingesehen werden. Der wesentliche Energieträger für die Heizung ist Erdgas (H).
Die wesentlichen Energieträger für Warmwasser sind Erdgas (H) und Strom.
Der Endenergieverbrauch dieses Gebäudes für Wärme beträgt 76,6 kWh/(m²*a).
Der Endenergieverbrauch dieses Gebäudes für Strom beträgt 48,1 kWh/(m²*a).
Ligging:
Das Gesundheits- und Dienstleistungszentrum liegt zentral in der niedersächsischen Stadt Schüttorf im Landkreis Grafschaft Bentheim.
Die Immobilie liegt in der Graf-Egbert-Straße, einer gut frequentierten Straße, die eine optimale Erreichbarkeit sowohl mit dem Auto als auch mit öffentlichen Verkehrsmitteln gewährleistet.
Das Umfeld des Zentrums ist geprägt von einer Mischung aus Gesundheits-, Dienstleistungs- und Einzelhandelseinrichtungen.
Verschiedene medizinische Versorgungsangebote, Apotheken sowie weitere Dienstleistungsunternehmen befinden sich in unmittelbarer Nähe. Diese Vielfalt schafft eine hohe Besucherfrequenz und ergänzt die Angebote des Gesundheits- und Dienstleistungszentrums ideal.
Ein Unternehmen profitiert außerdem von den vielen Einzelhändlern, welche direkt vor Ort liegen und für eine gute Versorgungsmöglichkeit darstellen.
Das Objekt überzeugt vor allem durch die nahe Lage zum Schüttorfer Kreuz, wo die Autobahnen A30 und A31 aufeinandertreffen.
Diese sind in unter 5 Minuten mit dem PKW erreichbar und bieten eine sehr gute, überregionale Verkehrsanbindung zu umliegenden Städten und den Niederlanden.
Ausreichend Parkplätze stehen den Kunden und Mitarbeitern zur Verfügung, was die Zugänglichkeit für Besucher und Mitarbeiter erleichtert.
Insgesamt zeichnet sich die Lage des Gesundheits- und Dienstleistungszentrums durch eine hervorragende Erreichbarkeit, eine zentrale Position in Schüttorf und eine Vielzahl von umliegenden Gesundheits- und Einzelhandelseinrichtungen aus, die den Standort sowohl für Dienstleister als auch für Kunden attraktiv machen.
Die Immobilie liegt in der Graf-Egbert-Straße, einer gut frequentierten Straße, die eine optimale Erreichbarkeit sowohl mit dem Auto als auch mit öffentlichen Verkehrsmitteln gewährleistet.
Das Umfeld des Zentrums ist geprägt von einer Mischung aus Gesundheits-, Dienstleistungs- und Einzelhandelseinrichtungen.
Verschiedene medizinische Versorgungsangebote, Apotheken sowie weitere Dienstleistungsunternehmen befinden sich in unmittelbarer Nähe. Diese Vielfalt schafft eine hohe Besucherfrequenz und ergänzt die Angebote des Gesundheits- und Dienstleistungszentrums ideal.
Ein Unternehmen profitiert außerdem von den vielen Einzelhändlern, welche direkt vor Ort liegen und für eine gute Versorgungsmöglichkeit darstellen.
Das Objekt überzeugt vor allem durch die nahe Lage zum Schüttorfer Kreuz, wo die Autobahnen A30 und A31 aufeinandertreffen.
Diese sind in unter 5 Minuten mit dem PKW erreichbar und bieten eine sehr gute, überregionale Verkehrsanbindung zu umliegenden Städten und den Niederlanden.
Ausreichend Parkplätze stehen den Kunden und Mitarbeitern zur Verfügung, was die Zugänglichkeit für Besucher und Mitarbeiter erleichtert.
Insgesamt zeichnet sich die Lage des Gesundheits- und Dienstleistungszentrums durch eine hervorragende Erreichbarkeit, eine zentrale Position in Schüttorf und eine Vielzahl von umliegenden Gesundheits- und Einzelhandelseinrichtungen aus, die den Standort sowohl für Dienstleister als auch für Kunden attraktiv machen.
Provisie:
Bij de aankoop van een huis in Duitsland moet u rekening houden met in totaal +- 9,5 % bijkomende kosten zoals :
- Notaris- en Grundbuchkosten 1,5%
- 5% overdrachtsbelasting (ook deze is nog al verschillend in de deelstaten "Bundesländer"
(lees meer op ons blog)
- De makelaars provisie
De hoogte van de makelaarsprovisie is per regio en object nogal verschillend) maar let op:
Bij sommige woningen is de provisie van de makelaar al in de koopprijs inbegrepen !
Bij de nieuwbouw van een woning betaalt u alleen kosten koper over de prijs van de kavel
- Notaris- en Grundbuchkosten 1,5%
- 5% overdrachtsbelasting (ook deze is nog al verschillend in de deelstaten "Bundesländer"
(lees meer op ons blog)
- De makelaars provisie
De hoogte van de makelaarsprovisie is per regio en object nogal verschillend) maar let op:
Bij sommige woningen is de provisie van de makelaar al in de koopprijs inbegrepen !
Bij de nieuwbouw van een woning betaalt u alleen kosten koper over de prijs van de kavel
Opmerking:
Mocht u interesse aan een van de door ons aangeboden huizen hebben klik op de button vragen over het object in de rechter kolom. Een bezichtiging is voor u geheel vrijblijvend.
Algemene voorwaarden:
Door een klik op de button"Bekijk de locatie van het object op Google maps " ziet u nooit de exacte locatie maar altijd alleen maar de locatie van de dichstbijzijnde plaats / stad
Voor het juiste adres klik in de rechter colom "Vragen over het object"
Alle aanbiedingen zijn onderhevig aan wijzigingen zonder voorafgaande kennisgeving en zijn gebaseerd op door de eigenaar verstrekte informatie; er kan dan ook geen enkele aansprakelijkheid worden aanvaard voor de juistheid en volledigheid ervan. Onder voorbehoud van voorafgaande verkoop of verhuur door de eigenaar.
Voor het juiste adres klik in de rechter colom "Vragen over het object"
Alle aanbiedingen zijn onderhevig aan wijzigingen zonder voorafgaande kennisgeving en zijn gebaseerd op door de eigenaar verstrekte informatie; er kan dan ook geen enkele aansprakelijkheid worden aanvaard voor de juistheid en volledigheid ervan. Onder voorbehoud van voorafgaande verkoop of verhuur door de eigenaar.
Lees meer over de mogelijke valkuilen bij de aankoop van een huis in Duitsland op onze blog
Boordevol informatie m.b.t. een mogelijke emigratie naar Duitsland en over de aankoop of nieuwbouw van een huis in Duitsland:
Meer weten over wonen in Duitsland? Link opent in nieuw venster
Boordevol informatie m.b.t. een mogelijke emigratie naar Duitsland en over de aankoop of nieuwbouw van een huis in Duitsland:
Meer weten over wonen in Duitsland? Link opent in nieuw venster
Uw contactpersoon
FEHRMANN Immobilienvermittlungs GmbH & Co. KG
Firma Julian Fehrmann
Boschstr. 15
49733 Haren (Ems)
Telefoon: 004959325009550
Firma Julian Fehrmann
Boschstr. 15
49733 Haren (Ems)
Telefoon: 004959325009550
Terug naar het overzicht












