Object 199 van 382
Volgende object
Vorige object
Terug naar het overzicht
Terug naar het overzicht
Volgende object
Vorige object
Terug naar het overzichtEmden: Ihr neues Zuhause in Emden – Modern, energieeffizient und familienfreundlich
Object-Nr.: 2_2611
Snel contact
Opties
Opties
Kerngegevens
Adres:
26721 Emden
Niedersachsen
Niedersachsen
Stadswijk:
Niedersachsen
Prijs:
449.500 €
Woonoppervlak ca.:
137,71 m2.
Grondstuk:
285 m2.
Aantal kamers:
4
Verdere gegevens
Verdere gegevens
Woningtype:
Rijhuis in midden
Op provisiebasis:
nee
Provisie:
prov.frei
Nuttig oppervlak.:
31,13 m2.
Keuken:
Inbouwkeuken
Bad:
Douche, Ligbad, Raam
Aantal slaapkamers:
3
Aantal badkamers:
1
Terras:
1
Gastentoilet:
ja
Tuin:
ja
Kelder:
nee
verhuurd:
ja
Aantal parkeerplaatsen:
1
Bouwjaar:
2023
Vloerbedekking:
Vloertegels
Toestand:
Als nieuw
Verwarming:
Vloer
Verwarmingssoort:
Elektra, Warmtepomp
Type energiebewijs:
certificaat vraag - geldig vanaf 10.06.2022 tot 10.06.2032
Energie-efficiëntieklasse:
A+
Behoefte eindenergie:
12 kWh/(m²*a)
Bouwjaar volgens energiecertificatie:
2022
Uitvoerige beschrijving
Uitvoerige beschrijving
Objectbeschrijving:
Willkommen im Wohnquartier am Steinweg! Dieses neuwertige Reihenmittelhaus ist der ideale Lebensmittelpunkt für die junge Familie. Hier erwartet Sie nicht nur ein lebenswertes Eigenheim, sondern auch die Möglichkeit, umweltbewusst und zukunftsorientiert zu wohnen. Perfekt als Kapitalanlage bringt die aktuelle Vermietung dauerhaft Einnahmen (mtl. Kaltmiete € 1.552,95).
Ein Zuhause, das begeistert: Das Effizienzhaus-Stufe-40-Plus überzeugt durch seinen durchdachten Grundriss, hochwertige Ausstattung und modernste Energietechnologie. Mit einer Photovoltaikanlage, einem leistungsstarken Stromspeicher und einer Qualitäts-Wärmepumpe – komplett ohne fossile Brennstoffe. Dies garantiert nicht nur niedrige Energiekosten, sondern auch ein nachhaltiges Wohnerlebnis für Sie oder Ihre Mieter.
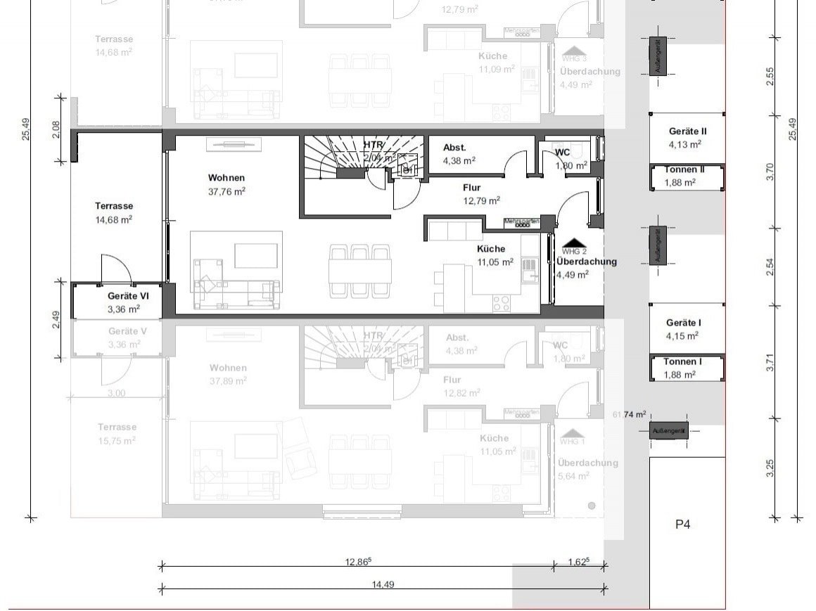
Familienfreundliches Raumkonzept: Der Mittelpunkt des Hauses ist das offene Wohn- und Esszimmer mit integrierter Küche. Die hochwertige Einbauküche lässt kaum Wünsche offen. Vinylböden und ausgewählte Fliesen verleihen dem Haus eine stilvolle Note. Ein Gäste-WC, Platz für die Garderobe und ein praktischer Abstellraum machen die untere Etage komplett.
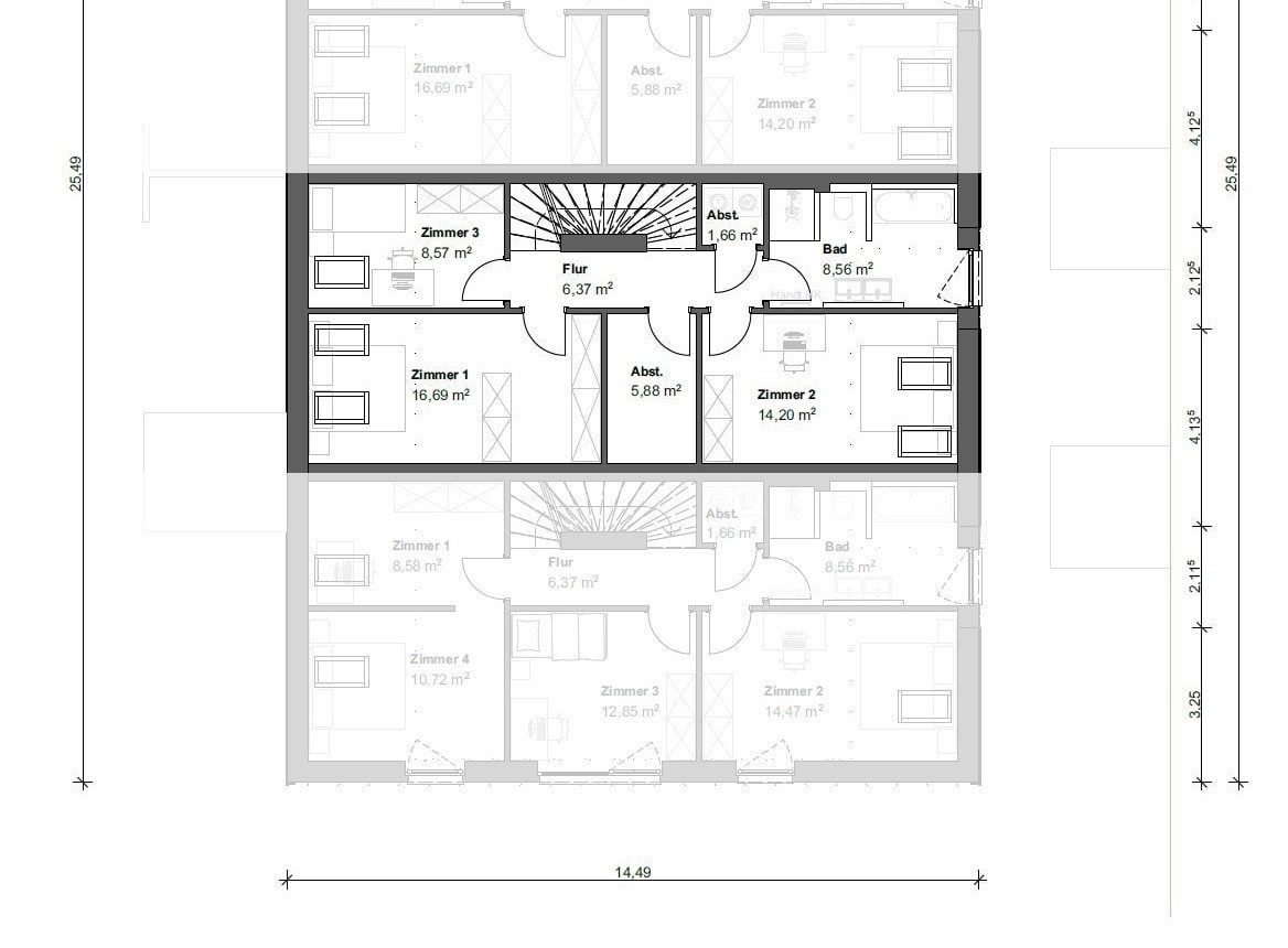
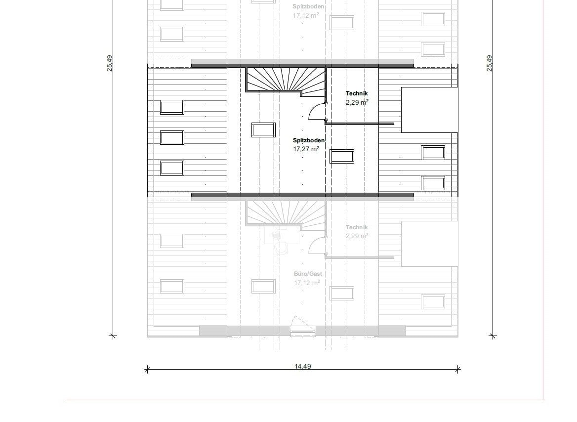
In der oberen Etage finden Sie drei helle Schlafzimmer, ein großzügiges Badezimmer mit Badewanne, Dusche und einer zweiten Toilette. Ein geräumiger Abstellraum ist auch hier vorhanden. Der Spitzgiebel ist durch eine massive Treppe bequem erreichbar - ein Plus an Nutzungsmöglichkeiten.
Die sonnige Terrasse und der pflegeleichte Garten bieten ausreichend Platz für Erholung. Abstellmöglichkeiten für Fahrräder und der eigene Pkw-Stellplatz mit vorbereiteter Ladeeinrichtung für Elektrofahrzeuge sind vorhanden.
Beste Lage – alles in Ihrer Nähe: Das Wohnquartier am Steinweg überzeugt durch seine hervorragende Anbindung. Bildungsstätten wie Schulen und Kitas sind fußläufig erreichbar, und auch Einkaufsmöglichkeiten, Freizeitangebote und die Anbindung an öffentliche Verkehrsmittel befinden sich in unmittelbarer Nähe.
Besondere Highlights im Überblick:
- Energieeffizientes Wohnen (Effizienzhaus-Stufe 40 Plus)
- Photovoltaikanlage mit Stromspeicher
- Hochwertige Einbauküche und Bodenbeläge
- Terrasse und Garten
- Glasfaseranschluss für schnelles Internet
- Vorbereitung für E-Auto-Ladestation
Dieses moderne Reihenendhaus verbindet Familienleben, Komfort und Nachhaltigkeit auf einzigartige Weise. Interesse geweckt? - Sprechen Sie uns gerne an: Telefon 04921 8903-4921
Ein Zuhause, das begeistert: Das Effizienzhaus-Stufe-40-Plus überzeugt durch seinen durchdachten Grundriss, hochwertige Ausstattung und modernste Energietechnologie. Mit einer Photovoltaikanlage, einem leistungsstarken Stromspeicher und einer Qualitäts-Wärmepumpe – komplett ohne fossile Brennstoffe. Dies garantiert nicht nur niedrige Energiekosten, sondern auch ein nachhaltiges Wohnerlebnis für Sie oder Ihre Mieter.
Familienfreundliches Raumkonzept: Der Mittelpunkt des Hauses ist das offene Wohn- und Esszimmer mit integrierter Küche. Die hochwertige Einbauküche lässt kaum Wünsche offen. Vinylböden und ausgewählte Fliesen verleihen dem Haus eine stilvolle Note. Ein Gäste-WC, Platz für die Garderobe und ein praktischer Abstellraum machen die untere Etage komplett.
In der oberen Etage finden Sie drei helle Schlafzimmer, ein großzügiges Badezimmer mit Badewanne, Dusche und einer zweiten Toilette. Ein geräumiger Abstellraum ist auch hier vorhanden. Der Spitzgiebel ist durch eine massive Treppe bequem erreichbar - ein Plus an Nutzungsmöglichkeiten.
Die sonnige Terrasse und der pflegeleichte Garten bieten ausreichend Platz für Erholung. Abstellmöglichkeiten für Fahrräder und der eigene Pkw-Stellplatz mit vorbereiteter Ladeeinrichtung für Elektrofahrzeuge sind vorhanden.
Beste Lage – alles in Ihrer Nähe: Das Wohnquartier am Steinweg überzeugt durch seine hervorragende Anbindung. Bildungsstätten wie Schulen und Kitas sind fußläufig erreichbar, und auch Einkaufsmöglichkeiten, Freizeitangebote und die Anbindung an öffentliche Verkehrsmittel befinden sich in unmittelbarer Nähe.
Besondere Highlights im Überblick:
- Energieeffizientes Wohnen (Effizienzhaus-Stufe 40 Plus)
- Photovoltaikanlage mit Stromspeicher
- Hochwertige Einbauküche und Bodenbeläge
- Terrasse und Garten
- Glasfaseranschluss für schnelles Internet
- Vorbereitung für E-Auto-Ladestation
Dieses moderne Reihenendhaus verbindet Familienleben, Komfort und Nachhaltigkeit auf einzigartige Weise. Interesse geweckt? - Sprechen Sie uns gerne an: Telefon 04921 8903-4921
Indeling:
Individuelle Ausstattungsmerkmale:
- Glasfaseranschluss
- PV-Anlage inkl. Stromspeicher
- Glasfaseranschluss
- PV-Anlage inkl. Stromspeicher
Ligging:
Attraktiv und lebendig, liebens- und lebenswert, im Herzen Ostfrieslands = Willkommen in der Seehafenstadt Emden!
Emden ist die größte Stadt Ostfrieslands und die zweitgrößte Stadt an der niedersächsischen Küste. Sie befindet sich in einer ökologisch und touristisch attraktiven Region und hat auch als Wirtschaftsstandort eine überragende Bedeutung, geprägt vom Seehafen der Stadt. Emden versorgt weite Teile Ostfrieslands mit Arbeitsplätzen und bietet eine vielfältige Schul- und Bildungslandschaft. Emden hat etwa 52.000 Einwohner und bietet eine hervorragende Infrastruktur. Das Wohnquartier am Steinweg liegt in einer bevorzugten Wohnlage. Das Stadtzentrum mit allen Einrichtungen des öffentlichen Lebens ist in wenigen Minuten erreichbar. Als bevölkerungsreichste Stadt Ostfrieslands ist immer was los. Viele maritime Veranstaltungen charakterisieren das Stadtleben. Unterhaltsam und sportlich bietet die Stadt eine Vielzahl an kulturellen Möglichkeiten, Veranstaltungen, Freizeitaktivitäten und vieles mehr. Mit der Fähre auf die Insel Borkum oder rüber nach Holland oder einfach mit dem Kanu durch die Grachten, Emden ist geprägt von Wasser und Hafen. Ein kleiner Sandstrand an der Knock lädt zum Entspannen ein, über die langen Deiche kann man sich bei einem Sparziergang den Wind um die Ohren wehen lassen.
Emden und die umliegende Küstenregion zeichnet sich durch ihre hohe Lebensqualität aus, die Sie in Ihrem neuen Zuhause im Wohnquartier am Steinweg voll ausschöpfen können. Durch die Autobahn A31 sowie Bahnhof und Flugplatz ist eine hervorragende Verkehrsanbindung gegeben.
Emden ist die größte Stadt Ostfrieslands und die zweitgrößte Stadt an der niedersächsischen Küste. Sie befindet sich in einer ökologisch und touristisch attraktiven Region und hat auch als Wirtschaftsstandort eine überragende Bedeutung, geprägt vom Seehafen der Stadt. Emden versorgt weite Teile Ostfrieslands mit Arbeitsplätzen und bietet eine vielfältige Schul- und Bildungslandschaft. Emden hat etwa 52.000 Einwohner und bietet eine hervorragende Infrastruktur. Das Wohnquartier am Steinweg liegt in einer bevorzugten Wohnlage. Das Stadtzentrum mit allen Einrichtungen des öffentlichen Lebens ist in wenigen Minuten erreichbar. Als bevölkerungsreichste Stadt Ostfrieslands ist immer was los. Viele maritime Veranstaltungen charakterisieren das Stadtleben. Unterhaltsam und sportlich bietet die Stadt eine Vielzahl an kulturellen Möglichkeiten, Veranstaltungen, Freizeitaktivitäten und vieles mehr. Mit der Fähre auf die Insel Borkum oder rüber nach Holland oder einfach mit dem Kanu durch die Grachten, Emden ist geprägt von Wasser und Hafen. Ein kleiner Sandstrand an der Knock lädt zum Entspannen ein, über die langen Deiche kann man sich bei einem Sparziergang den Wind um die Ohren wehen lassen.
Emden und die umliegende Küstenregion zeichnet sich durch ihre hohe Lebensqualität aus, die Sie in Ihrem neuen Zuhause im Wohnquartier am Steinweg voll ausschöpfen können. Durch die Autobahn A31 sowie Bahnhof und Flugplatz ist eine hervorragende Verkehrsanbindung gegeben.
Overige:
Bitte nutzen Sie das entsprechende Kontaktformular, damit wir Ihnen unser ausführliches Exposé zur Verfügung stellen können. Wir bitten um Verständnis, dass wir Informationen zu unseren Objekten nur erteilen, wenn Sie bei Ihrer Anfrage Ihre vollständige Adresse, E-Mail und Telefonnummer angeben. Telefonisch erreichen Sie die Ansprechpartner für diese Immobilie unter 04921/8903-4921.
Sämtliche Angaben in diesem Exposé dienen lediglich einer Vorabinformation. Für die Richtigkeit und Vollständigkeit der zeichnerischen Darstellungen, der Grundrisse sowie deren Farbgestaltung, Größen- und Preisangaben sowie die mit Grundrissplänen, Detailzeichnungen und der Projektübersicht verbundenen Angaben wird keine Haftung übernommen. Dieses Exposé stellt ausdrücklich kein Vertragsangebot dar. Dargestellte Möblierungen und Einbauten gehören nicht zum Ausstattungsumfang. Die Abbildungen können teilweise Sonderausstattungen zeigen, die nicht Bestandteil des vertraglichen Umfangs sind. Maßgeblich sind alleine der Inhalt des notariellen Kaufvertrages nebst Plänen, Urkunden und Baubeschreibung.
PROVISIONSHINWEIS:
Diese Immobilie wird so angeboten, dass kein Maklervertrag mit dem Kaufinteressenten abgeschlossen wird. Die Vergütung bei der Vermittlung dieser Immobilie trägt ausschließlich der Verkäufer. Wir sind einseitiger Interessenvertreter des Verkäufers und vereinbaren mit dem Kaufinteressenten weder eine Vergütung, noch wird ein Maklervertrag abgeschlossen. Auch durch die Vereinbarung eines Besichtigungstermins oder die Übermittlung von Unterlagen sowie die Entgegennahme eines Kaufpreisangebots kommt kein Maklervertrag mit dem Kaufinteressenten zustande.
VERBRAUCHERINFO:
1. Maklerleistung ist der Nachweis der Gelegenheit zum Abschluss eines Vertrages bzw. Vermittlung eines Vertrages über eine Immobilie gegen die Courtagezahlungspflicht des Kunden
2. Unternehmer, Anschrift, Beschwerdeadressat
OVB-Immobilien GmbH, Mühlenstraße 6-12, 26789 Leer
Tel.: 0491-92 72 4900, Fax: 0491-9272 202
GF: Georg Alder, Thomas Lüken, Carola Meyer-Diekmann
3. Wir verweisen auf unsere Allgemeinen Geschäftsbedingungen
Sämtliche Angaben in diesem Exposé dienen lediglich einer Vorabinformation. Für die Richtigkeit und Vollständigkeit der zeichnerischen Darstellungen, der Grundrisse sowie deren Farbgestaltung, Größen- und Preisangaben sowie die mit Grundrissplänen, Detailzeichnungen und der Projektübersicht verbundenen Angaben wird keine Haftung übernommen. Dieses Exposé stellt ausdrücklich kein Vertragsangebot dar. Dargestellte Möblierungen und Einbauten gehören nicht zum Ausstattungsumfang. Die Abbildungen können teilweise Sonderausstattungen zeigen, die nicht Bestandteil des vertraglichen Umfangs sind. Maßgeblich sind alleine der Inhalt des notariellen Kaufvertrages nebst Plänen, Urkunden und Baubeschreibung.
PROVISIONSHINWEIS:
Diese Immobilie wird so angeboten, dass kein Maklervertrag mit dem Kaufinteressenten abgeschlossen wird. Die Vergütung bei der Vermittlung dieser Immobilie trägt ausschließlich der Verkäufer. Wir sind einseitiger Interessenvertreter des Verkäufers und vereinbaren mit dem Kaufinteressenten weder eine Vergütung, noch wird ein Maklervertrag abgeschlossen. Auch durch die Vereinbarung eines Besichtigungstermins oder die Übermittlung von Unterlagen sowie die Entgegennahme eines Kaufpreisangebots kommt kein Maklervertrag mit dem Kaufinteressenten zustande.
VERBRAUCHERINFO:
1. Maklerleistung ist der Nachweis der Gelegenheit zum Abschluss eines Vertrages bzw. Vermittlung eines Vertrages über eine Immobilie gegen die Courtagezahlungspflicht des Kunden
2. Unternehmer, Anschrift, Beschwerdeadressat
OVB-Immobilien GmbH, Mühlenstraße 6-12, 26789 Leer
Tel.: 0491-92 72 4900, Fax: 0491-9272 202
GF: Georg Alder, Thomas Lüken, Carola Meyer-Diekmann
3. Wir verweisen auf unsere Allgemeinen Geschäftsbedingungen
Opmerking:
Mocht u interesse aan een van de door ons aangeboden huizen hebben klik op de button vragen over het object in de rechter kolom. Een bezichtiging is voor u geheel vrijblijvend.
Algemene voorwaarden:
Door een klik op de button"Bekijk de locatie van het object op Google maps " ziet u nooit de exacte locatie maar altijd alleen maar de locatie van de dichstbijzijnde plaats / stad
Voor het juiste adres klik in de rechter colom "Vragen over het object"
Alle aanbiedingen zijn onderhevig aan wijzigingen zonder voorafgaande kennisgeving en zijn gebaseerd op door de eigenaar verstrekte informatie; er kan dan ook geen enkele aansprakelijkheid worden aanvaard voor de juistheid en volledigheid ervan. Onder voorbehoud van voorafgaande verkoop of verhuur door de eigenaar.
Voor het juiste adres klik in de rechter colom "Vragen over het object"
Alle aanbiedingen zijn onderhevig aan wijzigingen zonder voorafgaande kennisgeving en zijn gebaseerd op door de eigenaar verstrekte informatie; er kan dan ook geen enkele aansprakelijkheid worden aanvaard voor de juistheid en volledigheid ervan. Onder voorbehoud van voorafgaande verkoop of verhuur door de eigenaar.
Lees meer over de mogelijke valkuilen bij de aankoop van een huis in Duitsland op onze blog
Boordevol informatie m.b.t. een mogelijke emigratie naar Duitsland en over de aankoop of nieuwbouw van een huis in Duitsland:
Meer weten over wonen in Duitsland? Link opent in nieuw venster
Boordevol informatie m.b.t. een mogelijke emigratie naar Duitsland en over de aankoop of nieuwbouw van een huis in Duitsland:
Meer weten over wonen in Duitsland? Link opent in nieuw venster
Uw contactpersoon
OVB-Immobilien GmbH
Mijnheer Dirk Will
Alter Markt 1
26721 Emden
Telefoon: 04921 8903 4921
Mobiele telefoon: 0151 21492199
Fax: 0491 9272 202
Mijnheer Dirk Will
Alter Markt 1
26721 Emden
Telefoon: 04921 8903 4921
Mobiele telefoon: 0151 21492199
Fax: 0491 9272 202
Terug naar het overzicht














