Object 130 van 367
Volgende object
Vorige object
Terug naar het overzicht
Terug naar het overzicht
Volgende object
Vorige object
Terug naar het overzichtSögel: RESERVIERT - Stilvolles Einfamilienhaus in ruhiger Wohngegend von Sögel zum Kauf
Object-Nr.: 251089
Snel contact
Opties
Opties
Kerngegevens
Adres:
49751 Sögel
Emsland
Niedersachsen
Emsland
Niedersachsen
Stadswijk:
Niedersachsen
Prijs:
499.000 €
Woonoppervlak ca.:
259,47 m2.
Grondstuk:
812 m2.
Aantal kamers:
6
Verdere gegevens
Verdere gegevens
Woningtype:
Eengezinswoning
Aantal etages:
2
Provisie:
3,57 % inkl. der gesetzlichen MwSt.
Nuttig oppervlak.:
60 m2.
Keuken:
Inbouwkeuken
Aantal slaapkamers:
4
Aantal badkamers:
2
Terras:
1
Gastentoilet:
ja
Zolder:
ja
Kelder:
nee
Aantal parkeerplaatsen:
4
Aantal parkeerplaatsen:
4 x Parkeerplaats buiten; 4 x Garage
Kwaliteit van de uitrusting:
Gedistingeerd
Bouwjaar:
2017
Beschikbaar vanaf:
sofort
Vloerbedekking:
Vloertegels
Toestand:
Als nieuw
Verwarming:
Centrale verwarming, Vloer
Verwarmingssoort:
Gas
Uitvoerige beschrijving
Uitvoerige beschrijving
Objectbeschrijving:
Dieses moderne Einfamilienhaus in der Samtgemeinde Sögel überzeugt durch hochwertige Ausstattung und vielseitige Nutzungsmöglichkeiten. Ob als Mehrgenerationenhaus, Kapitalanlage oder großzügiges Eigenheim. Hier eröffnen sich zahlreiche Optionen für unterschiedliche Lebenssituationen.
Das Haus befindet sich in einer ruhigen Neubaugegend mit gepflegter Nachbarschaft und bietet dank seiner Lage eine angenehme Wohnatmosphäre - ideal für Familien, Paare oder Menschen, die Wert auf Ruhe und Wohnqualität legen.
Beim Betreten des Hauses fällt sofort die hochwertige Ausstattung auf:
Eine Fußbodenheizung sorgt in allen Räumen für behagliche Wärme, während die Be- und Entlüftungsanlage ein angenehmes Raumklima garantiert. Sämtliche Fenster sind dreifach verglast und mit elektrischen Jalousien ausgestattet. Die Gasheizung mit Solarthermie ermöglicht eine effiziente und nachhaltige Energieversorgung.
Alle Badezimmer sind raumhoch gefliest, verfügen über ein Fenster und sind mit Badewannen ausgestattet. Die Duschen sind mit hochwertigen Fliesen versehen und bieten ein modernes, ansprechendes Design.
Auch das Gäste-WC verfügt über ein Fenster, raumhohe Fliesen und einer separaten Dusche.
Ein pflegeleichter Fliesenboden zieht sich harmonisch durch das gesamte Gebäude. Darüber hinaus ist bereits Glasfaser an der Straße vorhanden und ermöglicht zukunftssicheres Highspeed-Internet.
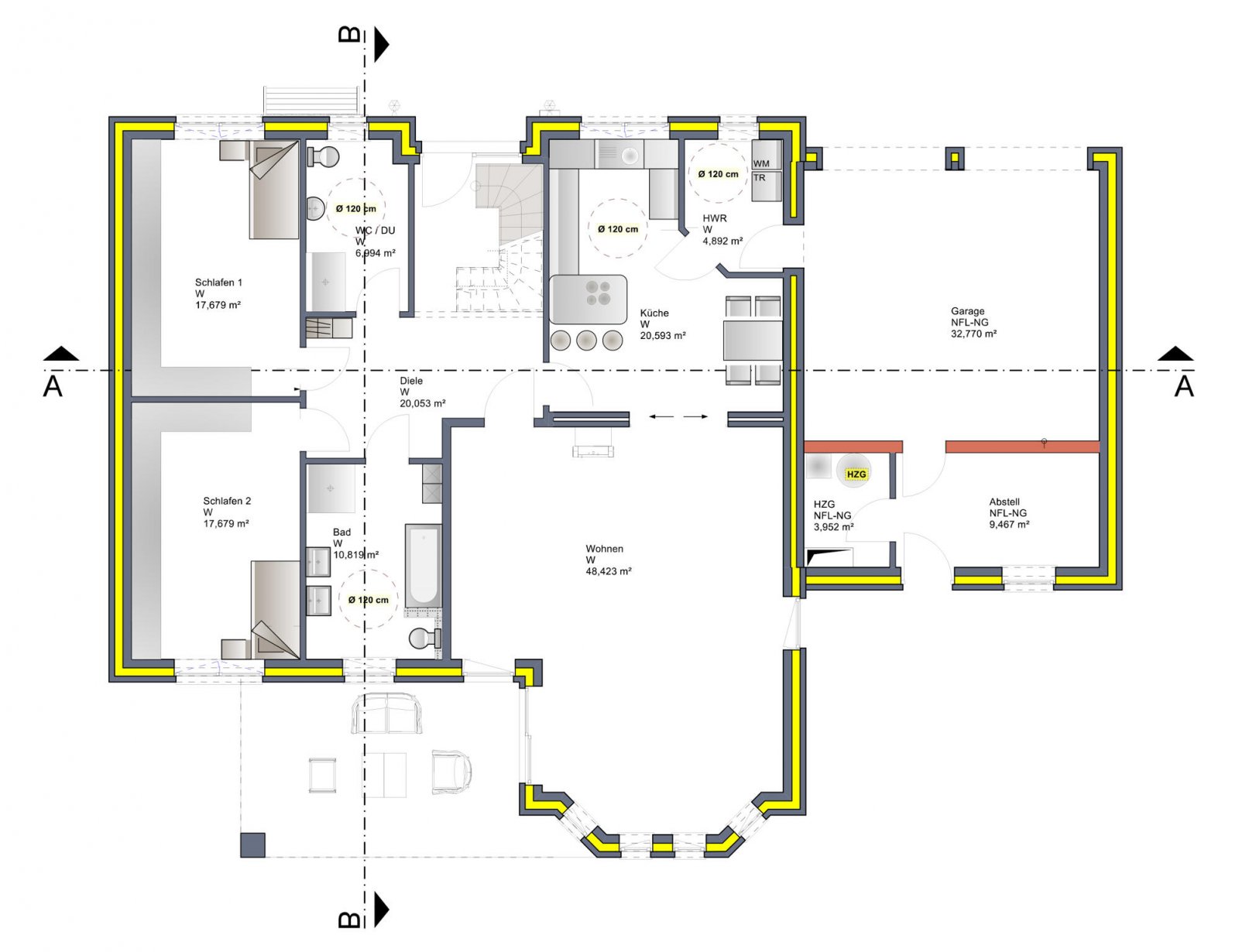
Im Erdgeschoss befinden sich zwei Schlafzimmer, ein großzügiges Wohnzimmer mit Zugang zur überdachten Terrasse und zum Garten, eine Küche, ein Badezimmer, ein Gäste-WC sowie ein Hauswirtschaftsraum mit Anschlüssen für Waschmaschine und Trockner. Über den HWR gelangt man direkt in die Garage. Zusätzlich sind ein Abstellraum mit der Heizungsanlage sowie ein separater Zugang zum Garten vorhanden.
Das Obergeschoss bietet einen großzügigen Flur, ein Schlafzimmer, ein Gästezimmer, ein Badezimmer sowie einen offenen Wohn- und Essbereich mit integrierter Küche. Große Dachfenster sorgen hier für lichtdurchflutete Räume. Im Badezimmer des Obergeschosses befinden sich ebenfalls Anschlüsse für Waschmaschine und Trockner, was den Alltag besonders komfortabel gestaltet.
Ergänzend stehen ein separater Heizungsraum sowie eine großzügige Abstellfläche über der Garage zur Verfügung, die bei Bedarf auch zu Wohnzwecken ausgebaut werden kann.
Der Dachboden bietet zusätzliches Ausbaupotenzial.
Der Gartenbereich kann bei Bedarf getrennt werden und verfügt über einen großen Schuppen mit drei Abteilungen, ideal für Gartengeräte, Fahrräder oder Hobbybedarf.
Die Garage ist mit Sektionaltoren ausgestattet und bieten bequemen Zugang. Davor befinden sich weitere Stellflächen, sodass insgesamt bis zu vier Fahrzeuge Platz finden.
Der wesentliche Energieträger ist Gas.
Das Warmwasser wird dabei über die Solarthermieanlage bereitgestellt.
Ein Energieausweis ist in Vorbereitung und kann bei einer Besichtigung eingesehen werden.
Das Haus befindet sich in einer ruhigen Neubaugegend mit gepflegter Nachbarschaft und bietet dank seiner Lage eine angenehme Wohnatmosphäre - ideal für Familien, Paare oder Menschen, die Wert auf Ruhe und Wohnqualität legen.
Beim Betreten des Hauses fällt sofort die hochwertige Ausstattung auf:
Eine Fußbodenheizung sorgt in allen Räumen für behagliche Wärme, während die Be- und Entlüftungsanlage ein angenehmes Raumklima garantiert. Sämtliche Fenster sind dreifach verglast und mit elektrischen Jalousien ausgestattet. Die Gasheizung mit Solarthermie ermöglicht eine effiziente und nachhaltige Energieversorgung.
Alle Badezimmer sind raumhoch gefliest, verfügen über ein Fenster und sind mit Badewannen ausgestattet. Die Duschen sind mit hochwertigen Fliesen versehen und bieten ein modernes, ansprechendes Design.
Auch das Gäste-WC verfügt über ein Fenster, raumhohe Fliesen und einer separaten Dusche.
Ein pflegeleichter Fliesenboden zieht sich harmonisch durch das gesamte Gebäude. Darüber hinaus ist bereits Glasfaser an der Straße vorhanden und ermöglicht zukunftssicheres Highspeed-Internet.
Im Erdgeschoss befinden sich zwei Schlafzimmer, ein großzügiges Wohnzimmer mit Zugang zur überdachten Terrasse und zum Garten, eine Küche, ein Badezimmer, ein Gäste-WC sowie ein Hauswirtschaftsraum mit Anschlüssen für Waschmaschine und Trockner. Über den HWR gelangt man direkt in die Garage. Zusätzlich sind ein Abstellraum mit der Heizungsanlage sowie ein separater Zugang zum Garten vorhanden.
Das Obergeschoss bietet einen großzügigen Flur, ein Schlafzimmer, ein Gästezimmer, ein Badezimmer sowie einen offenen Wohn- und Essbereich mit integrierter Küche. Große Dachfenster sorgen hier für lichtdurchflutete Räume. Im Badezimmer des Obergeschosses befinden sich ebenfalls Anschlüsse für Waschmaschine und Trockner, was den Alltag besonders komfortabel gestaltet.
Ergänzend stehen ein separater Heizungsraum sowie eine großzügige Abstellfläche über der Garage zur Verfügung, die bei Bedarf auch zu Wohnzwecken ausgebaut werden kann.
Der Dachboden bietet zusätzliches Ausbaupotenzial.
Der Gartenbereich kann bei Bedarf getrennt werden und verfügt über einen großen Schuppen mit drei Abteilungen, ideal für Gartengeräte, Fahrräder oder Hobbybedarf.
Die Garage ist mit Sektionaltoren ausgestattet und bieten bequemen Zugang. Davor befinden sich weitere Stellflächen, sodass insgesamt bis zu vier Fahrzeuge Platz finden.
Der wesentliche Energieträger ist Gas.
Das Warmwasser wird dabei über die Solarthermieanlage bereitgestellt.
Ein Energieausweis ist in Vorbereitung und kann bei einer Besichtigung eingesehen werden.
Ligging:
Das Einfamilienhaus befindet sich in der Samtgemeinde Sögel, einer lebenswerten Gemeinde auf dem Hümmling im Emsland mit rd. 7.700 Einwohnern.
Sögel bietet eine sehr gute Infrastruktur mit zahlreichen Einkaufsmöglichkeiten des täglichen Bedarfs. Supermärkte, Bäckereien, Apotheken und verschiedene Dienstleister sind in wenigen Minuten erreichbar.
Auch das Bildungsangebot ist breit gefächert: Kindertagesstätten, Grundschulen und weiterführende Schulen befinden sich in unmittelbarer Nähe des Objektes.
Die Wohnlage zeichnet sich durch ihre Zentrumsnähe aus. Die Sögeler Innenstadt ist bequem zu Fuß oder mit dem Fahrrad erreichbar. Ärzte, Apotheken sowie das Hümmlinger Krankenhaus befinden sich ebenfalls im direkten Umfeld und tragen dazu bei, dass die Lage sowohl für Senioren als auch für junge Familien besonders attraktiv ist.
Darüber hinaus bietet Sögel ein vielfältiges Freizeit- und Kulturangebot. Das barocke Schloss Clemenswerth, zahlreiche Rad- und Wanderwege sowie verschiedene Vereins- und Sportangebote sorgen für hohe Lebensqualität und machen den Ort auch für Besucher interessant.
Auch die verkehrstechnische Anbindung ist günstig: Die Samtgemeinde Sögel liegt nur etwa 20 Minuten von der Autobahn 31 und rund 15 Minuten von der Bundesstraße 70 entfernt. Damit sind umliegende Städte wie Meppen, Papenburg oder Lingen schnell erreichbar.
Sögel bietet eine sehr gute Infrastruktur mit zahlreichen Einkaufsmöglichkeiten des täglichen Bedarfs. Supermärkte, Bäckereien, Apotheken und verschiedene Dienstleister sind in wenigen Minuten erreichbar.
Auch das Bildungsangebot ist breit gefächert: Kindertagesstätten, Grundschulen und weiterführende Schulen befinden sich in unmittelbarer Nähe des Objektes.
Die Wohnlage zeichnet sich durch ihre Zentrumsnähe aus. Die Sögeler Innenstadt ist bequem zu Fuß oder mit dem Fahrrad erreichbar. Ärzte, Apotheken sowie das Hümmlinger Krankenhaus befinden sich ebenfalls im direkten Umfeld und tragen dazu bei, dass die Lage sowohl für Senioren als auch für junge Familien besonders attraktiv ist.
Darüber hinaus bietet Sögel ein vielfältiges Freizeit- und Kulturangebot. Das barocke Schloss Clemenswerth, zahlreiche Rad- und Wanderwege sowie verschiedene Vereins- und Sportangebote sorgen für hohe Lebensqualität und machen den Ort auch für Besucher interessant.
Auch die verkehrstechnische Anbindung ist günstig: Die Samtgemeinde Sögel liegt nur etwa 20 Minuten von der Autobahn 31 und rund 15 Minuten von der Bundesstraße 70 entfernt. Damit sind umliegende Städte wie Meppen, Papenburg oder Lingen schnell erreichbar.
Overige:
Erdgeschoss:
Diele: rd. 19,91 qm
Gäste-WC: rd. 7,00 qm
Badezimmer: rd. 10,82 qm
Schlafzimmer 1: rd. 17,68 qm
Schlafzimmer 2: rd. 17,68 qm
Küche: rd. 20,27 qm
Wohnen: rd. 48,72 qm
HWR: rd. 4,89 qm
Terrasse überdacht: 10,28 qm
––––––––––––––––––––––
Gesamt: rd. 157,24 qm
Dachgeschoss:
Flur: rd. 15,73 qm
Schlafzimmer: rd. 17,11 qm
Gästezimmer: rd. 9,40 qm
Badezimmer: rd. 15,68 qm
Wohnen / Kochen: rd. 44,31 qm
––––––––––––––––––––––
Gesamt: rd. 102,23 qm
Die angegebenen Werte orientieren sich an den uns vorliegenden Grundrissen und Informationen des Eigentümers. Eine Richtigkeit kann und wird nicht garantiert.
Diele: rd. 19,91 qm
Gäste-WC: rd. 7,00 qm
Badezimmer: rd. 10,82 qm
Schlafzimmer 1: rd. 17,68 qm
Schlafzimmer 2: rd. 17,68 qm
Küche: rd. 20,27 qm
Wohnen: rd. 48,72 qm
HWR: rd. 4,89 qm
Terrasse überdacht: 10,28 qm
––––––––––––––––––––––
Gesamt: rd. 157,24 qm
Dachgeschoss:
Flur: rd. 15,73 qm
Schlafzimmer: rd. 17,11 qm
Gästezimmer: rd. 9,40 qm
Badezimmer: rd. 15,68 qm
Wohnen / Kochen: rd. 44,31 qm
––––––––––––––––––––––
Gesamt: rd. 102,23 qm
Die angegebenen Werte orientieren sich an den uns vorliegenden Grundrissen und Informationen des Eigentümers. Eine Richtigkeit kann und wird nicht garantiert.
Opmerking:
Mocht u interesse aan een van de door ons aangeboden huizen hebben klik op de button vragen over het object in de rechter kolom. Een bezichtiging is voor u geheel vrijblijvend.
Algemene voorwaarden:
Door een klik op de button"Bekijk de locatie van het object op Google maps " ziet u nooit de exacte locatie maar altijd alleen maar de locatie van de dichstbijzijnde plaats / stad
Voor het juiste adres klik in de rechter colom "Vragen over het object"
Alle aanbiedingen zijn onderhevig aan wijzigingen zonder voorafgaande kennisgeving en zijn gebaseerd op door de eigenaar verstrekte informatie; er kan dan ook geen enkele aansprakelijkheid worden aanvaard voor de juistheid en volledigheid ervan. Onder voorbehoud van voorafgaande verkoop of verhuur door de eigenaar.
Voor het juiste adres klik in de rechter colom "Vragen over het object"
Alle aanbiedingen zijn onderhevig aan wijzigingen zonder voorafgaande kennisgeving en zijn gebaseerd op door de eigenaar verstrekte informatie; er kan dan ook geen enkele aansprakelijkheid worden aanvaard voor de juistheid en volledigheid ervan. Onder voorbehoud van voorafgaande verkoop of verhuur door de eigenaar.
Lees meer over de mogelijke valkuilen bij de aankoop van een huis in Duitsland op onze blog
Boordevol informatie m.b.t. een mogelijke emigratie naar Duitsland en over de aankoop of nieuwbouw van een huis in Duitsland:
Meer weten over wonen in Duitsland? Link opent in nieuw venster
Boordevol informatie m.b.t. een mogelijke emigratie naar Duitsland en over de aankoop of nieuwbouw van een huis in Duitsland:
Meer weten over wonen in Duitsland? Link opent in nieuw venster
Terug naar het overzicht







































