Object 288 van 380
Volgende object
Vorige object
Terug naar het overzicht
Terug naar het overzicht
Volgende object
Vorige object
Terug naar het overzichtMeppen / Esterfeld: Gepflegtes Reihenmittelhaus in zentraler Lage in Meppen-Esterfeld zum Kauf
Object-Nr.: 251135
Snel contact
Opties
Opties
Kerngegevens
Adres:
49716 Meppen / Esterfeld
Emsland
Niedersachsen
Emsland
Niedersachsen
Stadswijk:
Niedersachsen
Prijs:
249.000 €
Woonoppervlak ca.:
102,34 m2.
Aantal kamers:
4
Verdere gegevens
Verdere gegevens
Woningtype:
Rijtjeswoning
Aantal etages:
2
Provisie:
3,57% inkl. der gesetzlichen MwSt.
Keuken:
Inbouwkeuken
Aantal slaapkamers:
3
Aantal badkamers:
1
Terras:
1
Gastentoilet:
ja
Zolder:
ja
Kelder:
deels onderkelderd
Aantal parkeerplaatsen:
1
Kwaliteit van de uitrusting:
Gedistingeerd
Bouwjaar:
1997
Beschikbaar vanaf:
01.10.2026
Vloerbedekking:
Vloertegels, PVC
Toestand:
Goed onderhouden
Type energiebewijs:
verbruik certificaat - vervaldatum 10.12.2035
Energie-efficiëntieklasse:
D
Kengetal energieverbruik:
126,80 kWh/(m²*a)
Bouwjaar volgens energiecertificatie:
1997
Uitvoerige beschrijving
Uitvoerige beschrijving
Objectbeschrijving:
Das angebotene Reihenmittelhaus wurde im Jahr 1997 errichtet und präsentiert sich in einem sehr gepflegten Gesamtzustand. Die Immobilie bietet eine durchdachte Raumaufteilung und eignet sich ideal für Paare oder Familien, die ein komfortables und gut strukturiertes Zuhause suchen.
Im Erdgeschoss befindet sich ein großzügiger Wohn und Essbereich mit direktem Zugang zur Terrasse und dem kleinen, pflegeleichten Gartenanteil. Die separate Küche ist mit einer Einbauküche ausgestattet und bietet ausreichend Stauraum sowie Platz für die tägliche Nutzung. Ein Gäste WC ergänzt das Raumangebot sinnvoll.
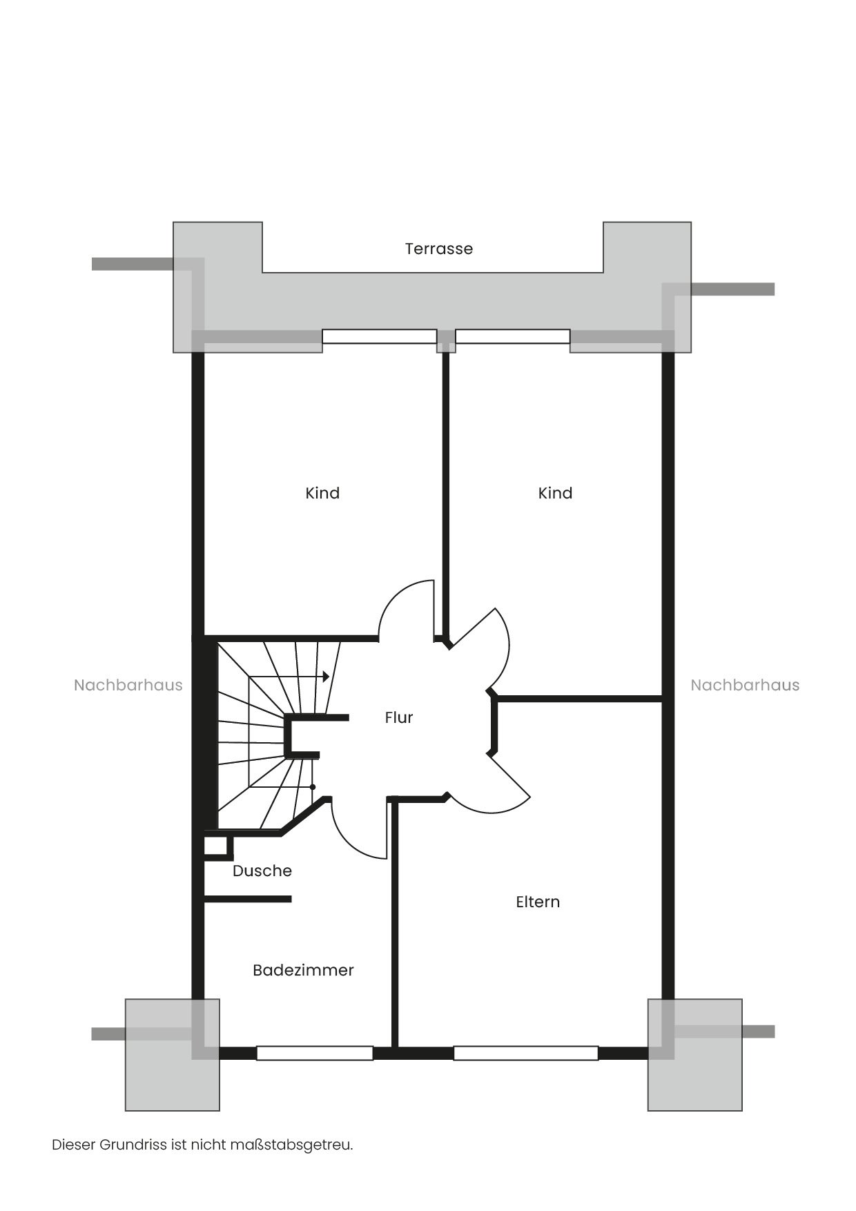
Das Dachgeschoss verfügt über drei gut geschnittene Schlafzimmer, die vielseitig als Kinder-, Arbeits- oder Gästezimmer genutzt werden können. Das angrenzende Badezimmer ist mit einer Dusche sowie einer Badewanne ausgestattet und erfüllt damit alle Ansprüche an Komfort und Funktionalität.
Zusätzliche Abstellflächen bietet der hauseigene Keller, der sich ideal für Vorräte, Hobby oder Lagerzwecke eignet. Darüber hinaus steht ein Dachboden mit weiterem Stauraum zur Verfügung.
Beheizt wird das Haus über eine Gasheizung aus dem Jahr 1996. Ein Außenstellplatz gehört zur Immobilie. Ein Gemeinschaftskellerraum kann mitgenutzt werden.
Insgesamt überzeugt das Haus durch seinen gepflegten Zustand, die familienfreundliche Raumaufteilung sowie die angenehme Kombination aus Innen und Außenbereich.
Im Erdgeschoss befindet sich ein großzügiger Wohn und Essbereich mit direktem Zugang zur Terrasse und dem kleinen, pflegeleichten Gartenanteil. Die separate Küche ist mit einer Einbauküche ausgestattet und bietet ausreichend Stauraum sowie Platz für die tägliche Nutzung. Ein Gäste WC ergänzt das Raumangebot sinnvoll.
Das Dachgeschoss verfügt über drei gut geschnittene Schlafzimmer, die vielseitig als Kinder-, Arbeits- oder Gästezimmer genutzt werden können. Das angrenzende Badezimmer ist mit einer Dusche sowie einer Badewanne ausgestattet und erfüllt damit alle Ansprüche an Komfort und Funktionalität.
Zusätzliche Abstellflächen bietet der hauseigene Keller, der sich ideal für Vorräte, Hobby oder Lagerzwecke eignet. Darüber hinaus steht ein Dachboden mit weiterem Stauraum zur Verfügung.
Beheizt wird das Haus über eine Gasheizung aus dem Jahr 1996. Ein Außenstellplatz gehört zur Immobilie. Ein Gemeinschaftskellerraum kann mitgenutzt werden.
Insgesamt überzeugt das Haus durch seinen gepflegten Zustand, die familienfreundliche Raumaufteilung sowie die angenehme Kombination aus Innen und Außenbereich.
Indeling:
Kabel Sat TV •
Das Reihenmittelhaus ist Teil einer Wohnungseigentümergemeinschaft mit sieben Einheiten und bietet trotz WEG-Struktur einen eigenständigen Hauscharakter.
Das monatliche Hausgeld beträgt 105,00 € monatlich und beinhaltet bereits die Zuführung zur Erhaltungsrücklage. Sonderumlagen sind nicht bekannt.
Der Miteigentumsanteile betragen 142,33/1.000 und sind mit einem soliden Rücklagenanteil an der Instandhaltungsrücklage verbunden.
Der Energieverbrauchsausweis liegt vor und kann bei der Besichtigung eingesehen werden. Der Endenergieverbrauch beträgt 126,8 kWh/(m2*a), Energieeffizienzklasse D. Der wesentliche Energieträger ist Erdgas E.
Das Reihenmittelhaus ist Teil einer Wohnungseigentümergemeinschaft mit sieben Einheiten und bietet trotz WEG-Struktur einen eigenständigen Hauscharakter.
Das monatliche Hausgeld beträgt 105,00 € monatlich und beinhaltet bereits die Zuführung zur Erhaltungsrücklage. Sonderumlagen sind nicht bekannt.
Der Miteigentumsanteile betragen 142,33/1.000 und sind mit einem soliden Rücklagenanteil an der Instandhaltungsrücklage verbunden.
Der Energieverbrauchsausweis liegt vor und kann bei der Besichtigung eingesehen werden. Der Endenergieverbrauch beträgt 126,8 kWh/(m2*a), Energieeffizienzklasse D. Der wesentliche Energieträger ist Erdgas E.
Ligging:
Dieses gepflegte Reihenmittelhaus befindet sich im Meppener Stadtteil Esterfeld, einer etablierten und sehr beliebten Wohnlage mit ausgezeichneter Infrastruktur. Die Umgebung ist geprägt von gepflegter Wohnbebauung und kurzen Wegen zu sämtlichen Einrichtungen des täglichen Bedarfs.
Einkaufsmöglichkeiten wie Supermärkte, Bäckereien und Drogerien sind in wenigen Minuten erreichbar. Ein Supermarkt befindet sich in rd. 100 m Entfernung, weitere Einkaufsmöglichkeiten liegen im direkten Umkreis. Apotheken sowie allgemeinmedizinische und fachärztliche Praxen sind ebenfalls fußläufig bzw. in wenigen Fahrminuten erreichbar.
Kindergärten befinden sich im unmittelbaren Wohnumfeld. Grundschulen sowie weiterführende Schulen sind ebenfalls gut erreichbar und liegen je nach Schulform etwa 1 bis 2 km entfernt. Dies macht die Lage ebenfalls besonders attraktiv für Familien mit Kindern.
Die Meppener Innenstadt mit ihrem vielfältigen Angebot an Einzelhandel, Gastronomie, Cafés und kulturellen Einrichtungen ist rd. 2 km entfernt und sowohl mit dem Fahrrad als auch mit dem Auto schnell zu erreichen. Eine Bushaltestelle befindet sich in der Nähe und sorgt für eine gute Anbindung an den öffentlichen Nahverkehr.
Darüber hinaus besteht eine sehr gute Verkehrsanbindung an die Bundesstraßen sowie an die Autobahn A31, die in wenigen Minuten erreichbar ist und eine schnelle Verbindung in Richtung Ruhrgebiet und Nordseeküste ermöglicht. Insgesamt überzeugt die Lage durch ihre Kombination aus zentraler Erreichbarkeit, hervorragender Infrastruktur und hoher Wohnqualität.
Einkaufsmöglichkeiten wie Supermärkte, Bäckereien und Drogerien sind in wenigen Minuten erreichbar. Ein Supermarkt befindet sich in rd. 100 m Entfernung, weitere Einkaufsmöglichkeiten liegen im direkten Umkreis. Apotheken sowie allgemeinmedizinische und fachärztliche Praxen sind ebenfalls fußläufig bzw. in wenigen Fahrminuten erreichbar.
Kindergärten befinden sich im unmittelbaren Wohnumfeld. Grundschulen sowie weiterführende Schulen sind ebenfalls gut erreichbar und liegen je nach Schulform etwa 1 bis 2 km entfernt. Dies macht die Lage ebenfalls besonders attraktiv für Familien mit Kindern.
Die Meppener Innenstadt mit ihrem vielfältigen Angebot an Einzelhandel, Gastronomie, Cafés und kulturellen Einrichtungen ist rd. 2 km entfernt und sowohl mit dem Fahrrad als auch mit dem Auto schnell zu erreichen. Eine Bushaltestelle befindet sich in der Nähe und sorgt für eine gute Anbindung an den öffentlichen Nahverkehr.
Darüber hinaus besteht eine sehr gute Verkehrsanbindung an die Bundesstraßen sowie an die Autobahn A31, die in wenigen Minuten erreichbar ist und eine schnelle Verbindung in Richtung Ruhrgebiet und Nordseeküste ermöglicht. Insgesamt überzeugt die Lage durch ihre Kombination aus zentraler Erreichbarkeit, hervorragender Infrastruktur und hoher Wohnqualität.
Overige:
Erdgeschoss:
Küche: rd. 12,07 qm
Wohnen/Essen: rd. 30,18 qm
Diele/Garderobe: rd. 8,85 qm
WC: rd. 2,19 qm
Terrasse: rd. 4,00 qm
- 3% für Putz: 1,72 qm
––––––––––––––––––––––
EG gesamt: rd. 55,57 qm
Dachgeschoss:
Bad: rd. 6,14 qm
Eltern: rd. 14,04 qm
Kind 1: rd. 12,22 qm
Kind 2: rd. 11,65 qm
Flur: rd. 4,17 qm
- 3% für Putz: 1,45 qm
––––––––––––––––––––––
DG gesamt: rd. 46,77 qm
EG + DG gesamt: rd. 102,34 qm
Kellergeschoss:
Flur: rd. 4,50 qm
Vorrat: rd. 12,00 qm
Abst.: rd. 8,23 qm
- 3% für Putz: 0,74 qm
––––––––––––––––––––––
KG gesamt: rd. 23,99 qm
Wohnflächenberechnung nach WoFlV, laut der Unterlagen des Auftraggebers.
Küche: rd. 12,07 qm
Wohnen/Essen: rd. 30,18 qm
Diele/Garderobe: rd. 8,85 qm
WC: rd. 2,19 qm
Terrasse: rd. 4,00 qm
- 3% für Putz: 1,72 qm
––––––––––––––––––––––
EG gesamt: rd. 55,57 qm
Dachgeschoss:
Bad: rd. 6,14 qm
Eltern: rd. 14,04 qm
Kind 1: rd. 12,22 qm
Kind 2: rd. 11,65 qm
Flur: rd. 4,17 qm
- 3% für Putz: 1,45 qm
––––––––––––––––––––––
DG gesamt: rd. 46,77 qm
EG + DG gesamt: rd. 102,34 qm
Kellergeschoss:
Flur: rd. 4,50 qm
Vorrat: rd. 12,00 qm
Abst.: rd. 8,23 qm
- 3% für Putz: 0,74 qm
––––––––––––––––––––––
KG gesamt: rd. 23,99 qm
Wohnflächenberechnung nach WoFlV, laut der Unterlagen des Auftraggebers.
Opmerking:
Mocht u interesse aan een van de door ons aangeboden huizen hebben klik op de button vragen over het object in de rechter kolom. Een bezichtiging is voor u geheel vrijblijvend.
Algemene voorwaarden:
Door een klik op de button"Bekijk de locatie van het object op Google maps " ziet u nooit de exacte locatie maar altijd alleen maar de locatie van de dichstbijzijnde plaats / stad
Voor het juiste adres klik in de rechter colom "Vragen over het object"
Alle aanbiedingen zijn onderhevig aan wijzigingen zonder voorafgaande kennisgeving en zijn gebaseerd op door de eigenaar verstrekte informatie; er kan dan ook geen enkele aansprakelijkheid worden aanvaard voor de juistheid en volledigheid ervan. Onder voorbehoud van voorafgaande verkoop of verhuur door de eigenaar.
Voor het juiste adres klik in de rechter colom "Vragen over het object"
Alle aanbiedingen zijn onderhevig aan wijzigingen zonder voorafgaande kennisgeving en zijn gebaseerd op door de eigenaar verstrekte informatie; er kan dan ook geen enkele aansprakelijkheid worden aanvaard voor de juistheid en volledigheid ervan. Onder voorbehoud van voorafgaande verkoop of verhuur door de eigenaar.
Lees meer over de mogelijke valkuilen bij de aankoop van een huis in Duitsland op onze blog
Boordevol informatie m.b.t. een mogelijke emigratie naar Duitsland en over de aankoop of nieuwbouw van een huis in Duitsland:
Meer weten over wonen in Duitsland? Link opent in nieuw venster
Boordevol informatie m.b.t. een mogelijke emigratie naar Duitsland en over de aankoop of nieuwbouw van een huis in Duitsland:
Meer weten over wonen in Duitsland? Link opent in nieuw venster
Uw contactpersoon
FEHRMANN Immobilienvermittlungs GmbH & Co. KG
Firma Julian Fehrmann
Boschstr. 15
49733 Haren (Ems)
Telefoon: 004959325009550
Firma Julian Fehrmann
Boschstr. 15
49733 Haren (Ems)
Telefoon: 004959325009550
Terug naar het overzicht
























