Object 24 van 382
Volgende object
Vorige object
Terug naar het overzicht
Terug naar het overzicht
Volgende object
Vorige object
Terug naar het overzichtKlein Berssen: Gepflegtes Einfamilienhaus mit Potenzial
Object-Nr.: 238#TXSo2A
Snel contact
Extra Infomateriaal
Extra Infomateriaal
Links
Links
Opties
Opties
Kerngegevens
Adres:
49777 Klein Berssen
Emsland
Niedersachsen
Emsland
Niedersachsen
Gebied:
Woonwijk
Prijs:
199.000 €
Woonoppervlak ca.:
154 m2.
Grondstuk:
506 m2.
Aantal kamers:
7
Verdere gegevens
Verdere gegevens
Woningtype:
Eengezinswoning
Aantal etages:
2
Op provisiebasis:
ja
Provisie:
2,975% (inkl. MwSt.)
Keuken:
Inbouwkeuken
Bad:
Douche, Raam, Urinoir
Aantal slaapkamers:
5
Aantal badkamers:
2
Terras:
1
Gastentoilet:
ja
Kelder:
volledig onderkelderd
Aantal parkeerplaatsen:
1
Aantal parkeerplaatsen:
1 x Parkeerplaats buiten; 1 x Garage
Bouwjaar:
1963
Beschikbaar vanaf:
sofort
Vloerbedekking:
Vloertegels, Vast tapijt
Toestand:
Goed onderhouden
Verwarmingssoort:
Gas
Type energiebewijs:
certificaat vraag - geldig vanaf 08.04.2026 tot 07.04.2036
Energie-efficiëntieklasse:
H
Behoefte eindenergie:
262,50 kWh/(m²*a)
Uitvoerige beschrijving
Uitvoerige beschrijving
Objectbeschrijving:
Gepflegtes Einfamilienhaus mit durchdachter Raumaufteilung und schönem Grundstück
Dieses Einfamilienhaus aus dem Baujahr 1963 überzeugt durch seinen gepflegten Gesamtzustand, eine funktionale Raumaufteilung sowie ein ansprechend gestaltetes Grundstück mit ca. 506 m². Die Immobilie wurde laufend instand gehalten und bietet eine solide Grundlage für komfortables Wohnen. Der Wärmeerzeuger wurde im Jahr 2012 installiert und wird über eine Gasbrennwertheizung betrieben.
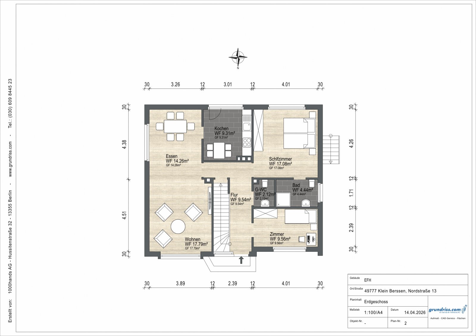
Im Erdgeschoss erwartet Sie eine praktische und gut durchdachte Aufteilung: Die Küche liegt direkt angrenzend an die Terrasse und ermöglicht einen bequemen Zugang nach draußen. Von der Küche gelangen Sie unmittelbar in das Wohn- und Esszimmer, das als zentraler Lebensmittelpunkt des Hauses dient. Von hier aus erschließt sich der Eingangsflur, der zu weiteren Räumen im Erdgeschoss führt.
Neben einem flexibel nutzbaren Mehrzweckzimmer stehen Ihnen ein Gäste-WC sowie ein Schlafzimmer zur Verfügung. Das Schlafzimmer verfügt über ein angrenzendes kleines Badezimmer mit moderner, begehbarer Dusche und bietet somit komfortables Wohnen auf einer Ebene.
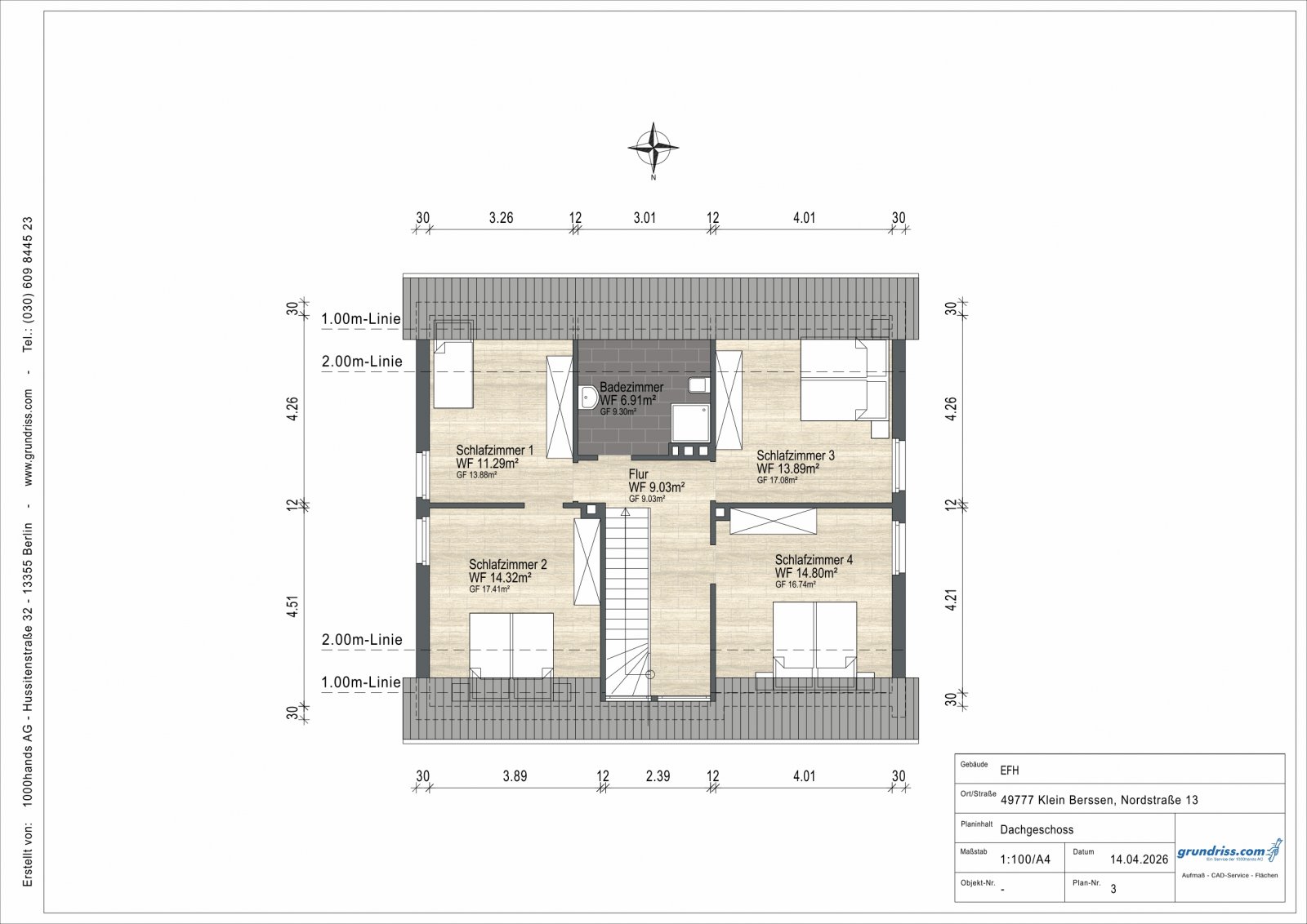
Das Dachgeschoss ergänzt das Raumangebot um ein großzügiges Schlafzimmer, ein weiteres Zimmer sowie zwei zusätzliche Räume, die durch eine Tür miteinander verbunden sind und sich ideal als Kinder-, Arbeits- oder Hobbyzimmer nutzen lassen. Ein weiteres kleines Badezimmer mit Dusche ist ebenfalls vorhanden.
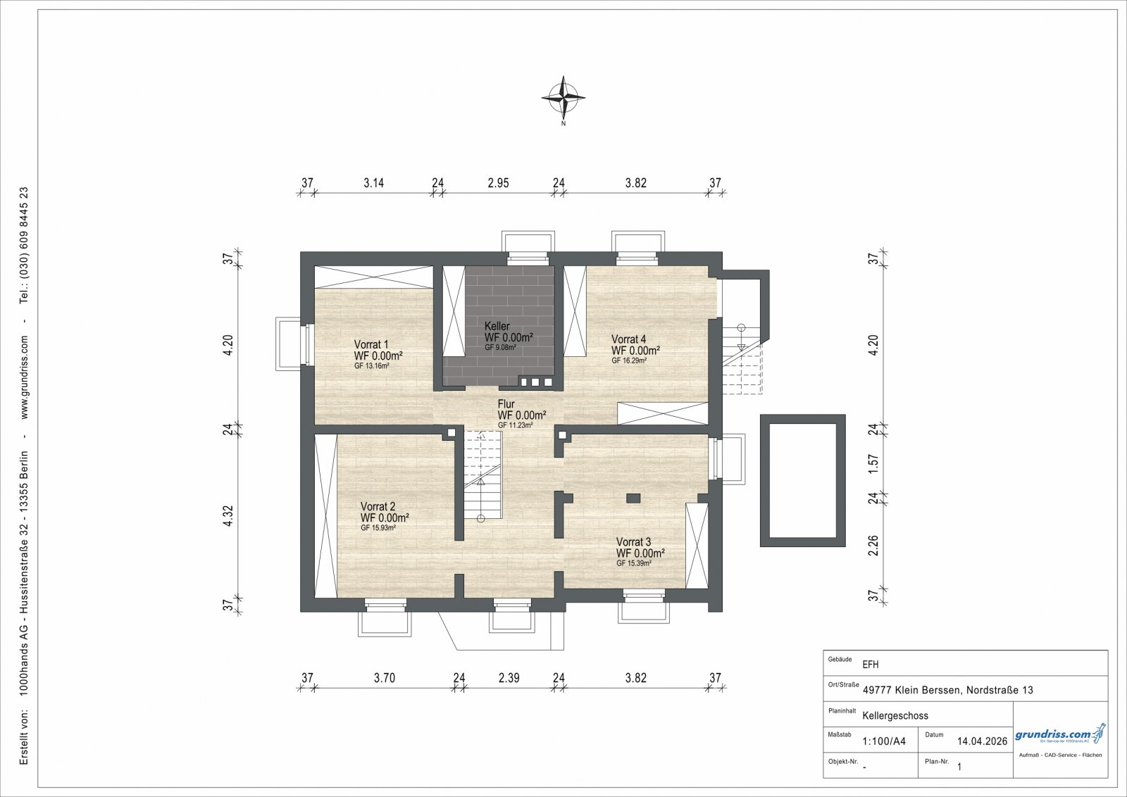
Im Kellergeschoss stehen mehrere Räume zur Verfügung, die ausreichend Platz für Vorräte, Hauswirtschaft oder Hobby bieten.
Abgerundet wird dieses attraktive Angebot durch eine Garage sowie einen praktischen Holzschuppen. Der Außenbereich präsentiert sich in einem sehr gepflegten Zustand und ist gleichzeitig pflegeleicht angelegt.
Insgesamt handelt es sich um eine solide und gepflegte Immobilie mit viel Platz und Potenzial – ideal für Familien oder Paare, die ein gut strukturiertes Zuhause mit schönem Garten suchen.
Dieses Einfamilienhaus aus dem Baujahr 1963 überzeugt durch seinen gepflegten Gesamtzustand, eine funktionale Raumaufteilung sowie ein ansprechend gestaltetes Grundstück mit ca. 506 m². Die Immobilie wurde laufend instand gehalten und bietet eine solide Grundlage für komfortables Wohnen. Der Wärmeerzeuger wurde im Jahr 2012 installiert und wird über eine Gasbrennwertheizung betrieben.
Im Erdgeschoss erwartet Sie eine praktische und gut durchdachte Aufteilung: Die Küche liegt direkt angrenzend an die Terrasse und ermöglicht einen bequemen Zugang nach draußen. Von der Küche gelangen Sie unmittelbar in das Wohn- und Esszimmer, das als zentraler Lebensmittelpunkt des Hauses dient. Von hier aus erschließt sich der Eingangsflur, der zu weiteren Räumen im Erdgeschoss führt.
Neben einem flexibel nutzbaren Mehrzweckzimmer stehen Ihnen ein Gäste-WC sowie ein Schlafzimmer zur Verfügung. Das Schlafzimmer verfügt über ein angrenzendes kleines Badezimmer mit moderner, begehbarer Dusche und bietet somit komfortables Wohnen auf einer Ebene.
Das Dachgeschoss ergänzt das Raumangebot um ein großzügiges Schlafzimmer, ein weiteres Zimmer sowie zwei zusätzliche Räume, die durch eine Tür miteinander verbunden sind und sich ideal als Kinder-, Arbeits- oder Hobbyzimmer nutzen lassen. Ein weiteres kleines Badezimmer mit Dusche ist ebenfalls vorhanden.
Im Kellergeschoss stehen mehrere Räume zur Verfügung, die ausreichend Platz für Vorräte, Hauswirtschaft oder Hobby bieten.
Abgerundet wird dieses attraktive Angebot durch eine Garage sowie einen praktischen Holzschuppen. Der Außenbereich präsentiert sich in einem sehr gepflegten Zustand und ist gleichzeitig pflegeleicht angelegt.
Insgesamt handelt es sich um eine solide und gepflegte Immobilie mit viel Platz und Potenzial – ideal für Familien oder Paare, die ein gut strukturiertes Zuhause mit schönem Garten suchen.
Ligging:
Klein Berßen ist eine kleine, ländlich geprägte Gemeinde im Landkreis Emsland in Niedersachsen. Sie liegt etwa 15 Kilometer nordöstlich von Meppen und gehört zur Samtgemeinde Sögel. Die Region ist typisch für das Emsland, geprägt von flachen Feldern, Wiesen und vereinzelten Waldgebieten, die eine ruhige und naturnahe Umgebung schaffen.
Trotz der ländlichen Idylle ist Klein Berßen gut in das regionale Verkehrsnetz eingebunden. Über die Bundesstraße 402 und die nahegelegene B70 ist die Gemeinde gut mit den umliegenden Städten und Gemeinden verbunden. Größere Orte wie Meppen und Sögel sind mit dem Auto in kurzer Zeit erreichbar, was den Bewohnern eine gewisse Flexibilität bietet, sowohl in Bezug auf Arbeit als auch auf Freizeitmöglichkeiten.
Die Infrastruktur in Klein Berßen selbst ist eher überschaubar, bietet jedoch das Nötigste für den Alltag. Für größere Einkäufe, ärztliche Versorgung und schulische Bildung fahren die Einwohner meist nach Meppen oder Sögel. Dort stehen zahlreiche Supermärkte, Fachgeschäfte, Ärzte, Apotheken und jeweils ein Krankenhaus zur Verfügung, ebenso wie Schulen und Kindergärten.
Klein Berßen ist somit ein Ort für Menschen, die die Ruhe und die Nähe zur Natur schätzen, gleichzeitig aber die gute Anbindung an größere Städte und die dort vorhandene Infrastruktur nutzen möchten.
Trotz der ländlichen Idylle ist Klein Berßen gut in das regionale Verkehrsnetz eingebunden. Über die Bundesstraße 402 und die nahegelegene B70 ist die Gemeinde gut mit den umliegenden Städten und Gemeinden verbunden. Größere Orte wie Meppen und Sögel sind mit dem Auto in kurzer Zeit erreichbar, was den Bewohnern eine gewisse Flexibilität bietet, sowohl in Bezug auf Arbeit als auch auf Freizeitmöglichkeiten.
Die Infrastruktur in Klein Berßen selbst ist eher überschaubar, bietet jedoch das Nötigste für den Alltag. Für größere Einkäufe, ärztliche Versorgung und schulische Bildung fahren die Einwohner meist nach Meppen oder Sögel. Dort stehen zahlreiche Supermärkte, Fachgeschäfte, Ärzte, Apotheken und jeweils ein Krankenhaus zur Verfügung, ebenso wie Schulen und Kindergärten.
Klein Berßen ist somit ein Ort für Menschen, die die Ruhe und die Nähe zur Natur schätzen, gleichzeitig aber die gute Anbindung an größere Städte und die dort vorhandene Infrastruktur nutzen möchten.
Overige:
Die in diesem Exposé enthaltenen Angaben beruhen auf Informationen des Eigentümers und dienen ausschließlich der unverbindlichen Vorabinformation. Für die Richtigkeit und Vollständigkeit wird keine Haftung übernommen. Irrtum und Zwischenverkauf vorbehalten.
Provisie:
Provisionsteilung
Opmerking:
Mocht u interesse aan een van de door ons aangeboden huizen hebben klik op de button vragen over het object in de rechter kolom. Een bezichtiging is voor u geheel vrijblijvend.
Algemene voorwaarden:
Door een klik op de button"Bekijk de locatie van het object op Google maps " ziet u nooit de exacte locatie maar altijd alleen maar de locatie van de dichstbijzijnde plaats / stad
Voor het juiste adres klik in de rechter colom "Vragen over het object"
Alle aanbiedingen zijn onderhevig aan wijzigingen zonder voorafgaande kennisgeving en zijn gebaseerd op door de eigenaar verstrekte informatie; er kan dan ook geen enkele aansprakelijkheid worden aanvaard voor de juistheid en volledigheid ervan. Onder voorbehoud van voorafgaande verkoop of verhuur door de eigenaar.
Voor het juiste adres klik in de rechter colom "Vragen over het object"
Alle aanbiedingen zijn onderhevig aan wijzigingen zonder voorafgaande kennisgeving en zijn gebaseerd op door de eigenaar verstrekte informatie; er kan dan ook geen enkele aansprakelijkheid worden aanvaard voor de juistheid en volledigheid ervan. Onder voorbehoud van voorafgaande verkoop of verhuur door de eigenaar.
Lees meer over de mogelijke valkuilen bij de aankoop van een huis in Duitsland op onze blog
Boordevol informatie m.b.t. een mogelijke emigratie naar Duitsland en over de aankoop of nieuwbouw van een huis in Duitsland:
Meer weten over wonen in Duitsland? Link opent in nieuw venster
Boordevol informatie m.b.t. een mogelijke emigratie naar Duitsland en over de aankoop of nieuwbouw van een huis in Duitsland:
Meer weten over wonen in Duitsland? Link opent in nieuw venster
Uw contactpersoon
Raiffeisenbank Ems-Vechte eG
Mijnheer Bernd Sieve
Am Markt 5
49751 Sögel
Mijnheer Bernd Sieve
Am Markt 5
49751 Sögel
Terug naar het overzicht








































