Object 5 van 38
Volgende object
Vorige object
Terug naar het overzicht
Terug naar het overzicht
Volgende object
Vorige object
Terug naar het overzichtHaren / Emmeln: Lichtdurchflutete & stilvolle Obergeschosswohnung in Haren/Emmeln – zur Miete!
Object-Nr.: 251133_8
Snel contact
Opties
Opties
Kerngegevens
Adres:
49733 Haren / Emmeln
Emsland
Niedersachsen
Emsland
Niedersachsen
Stadswijk:
Niedersachsen
Maandelijkse basishuur excl. bijkomende kosten:
1.000 €
Woonoppervlak ca.:
85,48 m2.
Aantal kamers:
3
Verdere gegevens
Verdere gegevens
Aantal etages:
1
Huur incl. verwarming en bijkomende kosten:
1.200 €
Nevenkosten:
200 €
Waarborg of coöperatieve aandelen:
2 Nettokaltmieten
Verwarmingskosten:
Zijn in de bijkomende kosten inbegrepen
Op provisiebasis:
nee
Keuken:
Inbouwkeuken
Aantal slaapkamers:
2
Aantal badkamers:
1
Galerij:
1
Kelder:
nee
Lift:
ja
Toegankelijk zonder hindernissen:
ja
Geschikt voor senioren:
ja
Aantal parkeerplaatsen:
1
Aantal parkeerplaatsen:
1 x Parkeerplaats buiten
Kwaliteit van de uitrusting:
Gedistingeerd
Bouwjaar:
2025
Te betrekken vanaf:
ab sofort
Vloerbedekking:
Vloertegels, Laminaat
Toestand:
Gesaneerd
Verwarming:
Vloer
Verwarmingssoort:
Warmtepomp
Type energiebewijs:
certificaat vraag - vervaldatum 11.03.2034
Energie-efficiëntieklasse:
A+
Behoefte eindenergie:
12,35 kWh/(m²*a)
Bouwjaar volgens energiecertificatie:
1956
Waarborg of coöperatieve aandelen:
2 Nettokaltmieten
Uitvoerige beschrijving
Uitvoerige beschrijving
Objectbeschrijving:
In zentraler Lage von Haren-Emmeln wurde ein modernisiertes und erweitertes Mehrfamilienhaus mit insgesamt 13 Wohneinheiten fertiggestellt. Das Gebäude ist umfassend kernsaniert und technisch auf den neuesten Stand gebracht worden – inklusive energieeffizienter Maßnahmen im KfW 55 EE-Standard.
Die Wohnungen sind barrierefrei gestaltet und verfügen über eine hochwertige Ausstattung, die modernen Wohnansprüchen gerecht wird. Ein Personenaufzug, Fußbodenheizung, eine Lüftungsanlage mit Wärmerückgewinnung, dreifach verglaste Fenster sowie elektrische Jalousien sorgen für hohen Wohnkomfort und ein angenehmes Raumklima.
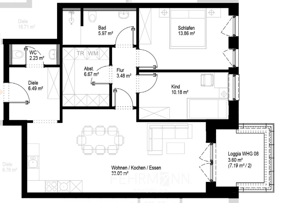
Die Wohnungsgrößen und Grundrisse sind vielfältig gestaltet und bieten für unterschiedliche Bedürfnisse das passende Zuhause – vom kompakten Apartment bis zur großzügigen Familienwohnung. Im Erdgeschoss laden sonnige Terrassen zum Entspannen ein, während in den oberen Etagen Loggien oder Dachterrassen für ein offenes und helles Wohngefühl sorgen. Die drei Penthäuser im Dachgeschoss bieten darüber hinaus ein exklusives Wohnambiente mit besonderem Ausblick.
Hier ist ein Zuhause entstanden, das modernen Wohnkomfort, hohe Energieeffizienz und eine zentrale Lage ideal miteinander verbindet.
Die Mindestmietzeit beträgt 24 Monate.
Die Energiebedarfsberechnung liegt vor und kann bei der Besichtigung eingesehen werden.
Der wesentliche Energieträger ist Strom-Mix. Der Energieendbedarf dieses Gebäudes beträgt 12,35 kWh/(m²*a). Das Gebäude entspricht der Energieeffizienzklasse A+.
Die Wohnungen sind barrierefrei gestaltet und verfügen über eine hochwertige Ausstattung, die modernen Wohnansprüchen gerecht wird. Ein Personenaufzug, Fußbodenheizung, eine Lüftungsanlage mit Wärmerückgewinnung, dreifach verglaste Fenster sowie elektrische Jalousien sorgen für hohen Wohnkomfort und ein angenehmes Raumklima.
Die Wohnungsgrößen und Grundrisse sind vielfältig gestaltet und bieten für unterschiedliche Bedürfnisse das passende Zuhause – vom kompakten Apartment bis zur großzügigen Familienwohnung. Im Erdgeschoss laden sonnige Terrassen zum Entspannen ein, während in den oberen Etagen Loggien oder Dachterrassen für ein offenes und helles Wohngefühl sorgen. Die drei Penthäuser im Dachgeschoss bieten darüber hinaus ein exklusives Wohnambiente mit besonderem Ausblick.
Hier ist ein Zuhause entstanden, das modernen Wohnkomfort, hohe Energieeffizienz und eine zentrale Lage ideal miteinander verbindet.
Die Mindestmietzeit beträgt 24 Monate.
Die Energiebedarfsberechnung liegt vor und kann bei der Besichtigung eingesehen werden.
Der wesentliche Energieträger ist Strom-Mix. Der Energieendbedarf dieses Gebäudes beträgt 12,35 kWh/(m²*a). Das Gebäude entspricht der Energieeffizienzklasse A+.
Indeling:
Kabel Sat TV •
• Terrasse, Loggia oder Dachterrasse
• Barrierefreier und rollstuhlgerechter Zugang
• Fußbodenheizung in allen Räumlichkeiten
• Dezentrale Lüftungsanlage mit Wärmerückgewinnung
• Smarte Steuerung für Licht, Jalousien und Fußbodenheizung
• Videoklingelanlage
• Terrasse, Loggia oder Dachterrasse
• Barrierefreier und rollstuhlgerechter Zugang
• Fußbodenheizung in allen Räumlichkeiten
• Dezentrale Lüftungsanlage mit Wärmerückgewinnung
• Smarte Steuerung für Licht, Jalousien und Fußbodenheizung
• Videoklingelanlage
Ligging:
Das Wohnhaus befindet sich im beliebten Ortsteil Emmeln der Stadt Haren (Ems) – einer Lage, die Komfort und dörflichen Charme vereint. Durch die zentrale Position profitieren zukünftige Bewohner von kurzen Wegen zu allen wichtigen Einrichtungen des täglichen Bedarfs.
In direkter Umgebung befinden sich Hausarztpraxen, Apotheken, Kindertagesstätten, eine Grundschule sowie verschiedene Einkaufsmöglichkeiten. Auch Gastronomie, ein Imbiss und eine Tankstelle sind bequem zu Fuß erreichbar.
Für Pendler bietet die Lage hervorragende Voraussetzungen: Der Bahnhof Haren und mehrere Bushaltestellen befinden sich in unmittelbarer Nähe. Das Stadtzentrum von Haren mit weiterführenden Schulen, Fachärzten und zusätzlichen Einkaufsmöglichkeiten ist in wenigen Minuten erreichbar. Zudem besteht eine sehr gute Verkehrsanbindung an die B408 und die A31, wodurch auch die umliegenden Städte schnell zu erreichen sind.
Die Kombination aus zentraler, aber ruhiger Wohnlage und der hervorragenden Infrastruktur macht Emmeln zu einem besonders attraktiven Wohnstandort für Familien, Berufspendler und Paare jeden Alters.
In direkter Umgebung befinden sich Hausarztpraxen, Apotheken, Kindertagesstätten, eine Grundschule sowie verschiedene Einkaufsmöglichkeiten. Auch Gastronomie, ein Imbiss und eine Tankstelle sind bequem zu Fuß erreichbar.
Für Pendler bietet die Lage hervorragende Voraussetzungen: Der Bahnhof Haren und mehrere Bushaltestellen befinden sich in unmittelbarer Nähe. Das Stadtzentrum von Haren mit weiterführenden Schulen, Fachärzten und zusätzlichen Einkaufsmöglichkeiten ist in wenigen Minuten erreichbar. Zudem besteht eine sehr gute Verkehrsanbindung an die B408 und die A31, wodurch auch die umliegenden Städte schnell zu erreichen sind.
Die Kombination aus zentraler, aber ruhiger Wohnlage und der hervorragenden Infrastruktur macht Emmeln zu einem besonders attraktiven Wohnstandort für Familien, Berufspendler und Paare jeden Alters.
Overige:
Wohnflächenberechnung nach WoFlV, laut der Unterlagen des Auftraggebers.
Provisie:
Bij de aankoop van een huis in Duitsland moet u rekening houden met in totaal +- 9,5 % bijkomende kosten zoals :
- Notaris- en Grundbuchkosten 1,5%
- 5% overdrachtsbelasting (ook deze is nog al verschillend in de deelstaten "Bundesländer"
(lees meer op ons blog)
- De makelaars provisie
De hoogte van de makelaarsprovisie is per regio en object nogal verschillend) maar let op:
Bij sommige woningen is de provisie van de makelaar al in de koopprijs inbegrepen !
Bij de nieuwbouw van een woning betaalt u alleen kosten koper over de prijs van de kavel
- Notaris- en Grundbuchkosten 1,5%
- 5% overdrachtsbelasting (ook deze is nog al verschillend in de deelstaten "Bundesländer"
(lees meer op ons blog)
- De makelaars provisie
De hoogte van de makelaarsprovisie is per regio en object nogal verschillend) maar let op:
Bij sommige woningen is de provisie van de makelaar al in de koopprijs inbegrepen !
Bij de nieuwbouw van een woning betaalt u alleen kosten koper over de prijs van de kavel
Opmerking:
Mocht u interesse aan een van de door ons aangeboden huizen hebben klik op de button vragen over het object in de rechter kolom. Een bezichtiging is voor u geheel vrijblijvend.
Algemene voorwaarden:
Door een klik op de button"Bekijk de locatie van het object op Google maps " ziet u nooit de exacte locatie maar altijd alleen maar de locatie van de dichstbijzijnde plaats / stad
Voor het juiste adres klik in de rechter colom "Vragen over het object"
Alle aanbiedingen zijn onderhevig aan wijzigingen zonder voorafgaande kennisgeving en zijn gebaseerd op door de eigenaar verstrekte informatie; er kan dan ook geen enkele aansprakelijkheid worden aanvaard voor de juistheid en volledigheid ervan. Onder voorbehoud van voorafgaande verkoop of verhuur door de eigenaar.
Voor het juiste adres klik in de rechter colom "Vragen over het object"
Alle aanbiedingen zijn onderhevig aan wijzigingen zonder voorafgaande kennisgeving en zijn gebaseerd op door de eigenaar verstrekte informatie; er kan dan ook geen enkele aansprakelijkheid worden aanvaard voor de juistheid en volledigheid ervan. Onder voorbehoud van voorafgaande verkoop of verhuur door de eigenaar.
Lees meer over de mogelijke valkuilen bij de aankoop van een huis in Duitsland op onze blog
Boordevol informatie m.b.t. een mogelijke emigratie naar Duitsland en over de aankoop of nieuwbouw van een huis in Duitsland:
Meer weten over wonen in Duitsland? Link opent in nieuw venster
Boordevol informatie m.b.t. een mogelijke emigratie naar Duitsland en over de aankoop of nieuwbouw van een huis in Duitsland:
Meer weten over wonen in Duitsland? Link opent in nieuw venster
Uw contactpersoon
FEHRMANN Immobilienvermittlungs GmbH & Co. KG
Firma Julian Fehrmann
Boschstr. 15
49733 Haren (Ems)
Telefoon: 004959325009550
Firma Julian Fehrmann
Boschstr. 15
49733 Haren (Ems)
Telefoon: 004959325009550
Terug naar het overzicht












