Object 25 van 382
Volgende object
Vorige object
Terug naar het overzicht
Terug naar het overzicht
Volgende object
Vorige object
Terug naar het overzichtWestoverledingen: Zentrum von Ihrhove - Wohnhaus mit Potenzial und interessantem Grundstück
Object-Nr.: RVB-196
Snel contact
Opties
Opties
Kerngegevens
Adres:
26810 Westoverledingen
Leer
Niedersachsen
Leer
Niedersachsen
Stadswijk:
Ihrhove
Prijs:
209.000 €
Woonoppervlak ca.:
138,70 m2.
Grondstuk:
981 m2.
Aantal kamers:
6
Verdere gegevens
Verdere gegevens
Woningtype:
Eengezinswoning
Provisie:
zzgl. 3,57 % Käuferprovision inkl. MwSt.
Nuttig oppervlak.:
51 m2.
Keuken:
Inbouwkeuken
Aantal slaapkamers:
4
Aantal badkamers:
1
Balkon:
1
Terras:
1
Kelder:
deels onderkelderd
Aantal parkeerplaatsen:
5
Aantal parkeerplaatsen:
5 x Parkeerplaats buiten; 5 x Garage
Bouwjaar:
1964
Beschikbaar vanaf:
sofort
Verwarming:
Centrale verwarming
Verwarmingssoort:
Gas
Type energiebewijs:
certificaat vraag - geldig vanaf 07.08.2025 tot 07.08.2035
Energie-efficiëntieklasse:
H
Behoefte eindenergie:
844,80 kWh/(m²*a)
Bouwjaar volgens energiecertificatie:
1964
Uitvoerige beschrijving
Uitvoerige beschrijving
Objectbeschrijving:
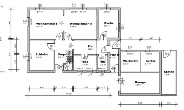
Dieses Einfamilienhaus aus dem Jahr 1964 bietet mit ca. 135 m² Wohnfläche und insgesamt vier Schlafzimmern reichlich Raum für die ganze Familie. Besonders praktisch: Ein Schlafzimmer befindet sich im Erdgeschoss – ideal für ebenerdiges Wohnen im Alter oder als Gästezimmer.
Der Wohnbereich überzeugt durch eine durchdachte Raumaufteilung: Küche, Esszimmer und Wohnzimmer sind miteinander verbunden und schaffen ein großzügiges und offenes Wohnambiente – perfekt für gemeinsame Stunden mit der Familie oder gemütliche Abende mit Freunden. Mit ein wenig handwerklichem Geschick können Sie den Räumlichkeiten Ihre ganz persönliche Note einhauchen.
Zusätzlichen Stauraum bietet ein kleiner Keller, ein unausgebauter Dachboden sowie eine praktische Werkstatt. Auch für Fahrzeuge ist bestens gesorgt: Etwa fünf Stellplätze, darunter eine geräumige Garage, stehen zur Verfügung.
Der grüne Garten lädt zum Entspannen, Spielen oder Gärtnern ein. Eine überdachte Terrasse aus dem Jahr 2019 erweitert den Wohnraum ins Freie und bietet einen geschützten Platz für jede Jahreszeit. Auch auf der Dachterrasse mit Blick in den Garten, können Sie entspannte Stunden verbringen.
Der B-Plan macht dieses Grundstück ebenfalls für den Investor sehr interessant (WA / II / GFZ 0,4 / GRZ 0,6). Prüfen Sie gerne in enger Abstimmung mit dem Landkreis Leer die weiteren Möglichkeiten.
In den vergangenen Jahren wurden bereits einige wichtige Modernisierungen vorgenommen: Die Heizungsanlage wurde etwa im Jahr 2015 erneuert und sorgt für zeitgemäßen Wohnkomfort. Die Fenster stammen teilweise aus dem Jahr 1998.
Ein Highlight dieser Immobilie ist außerdem die tolle Lage im Zentrum von Ihrhove, welches zu Fuß zu erreichen ist. Dort befinden sich Mediziner, eine Apotheke und Lebensmittelgeschäfte. Die nächsten größeren Städte, Leer und Papenburg mit weiterführenden Schulen und kulturellen Angeboten, sind in wenigen Minuten mit dem Auto über die Bundesstraße 70 sowie mit dem öffentlichen Nahverkehr zu erreichen. Die Bushaltestelle befindet sich schräg gegenüber der Einfahrt.
Dieses Haus vereint großzügiges Wohnen, praktische Raumlösungen und eine tolle Lage – ideal für Familien oder Paare, die heute schon an morgen denken. Vereinbaren Sie noch heute einen Besichtigungstermin!
Der Wohnbereich überzeugt durch eine durchdachte Raumaufteilung: Küche, Esszimmer und Wohnzimmer sind miteinander verbunden und schaffen ein großzügiges und offenes Wohnambiente – perfekt für gemeinsame Stunden mit der Familie oder gemütliche Abende mit Freunden. Mit ein wenig handwerklichem Geschick können Sie den Räumlichkeiten Ihre ganz persönliche Note einhauchen.
Zusätzlichen Stauraum bietet ein kleiner Keller, ein unausgebauter Dachboden sowie eine praktische Werkstatt. Auch für Fahrzeuge ist bestens gesorgt: Etwa fünf Stellplätze, darunter eine geräumige Garage, stehen zur Verfügung.
Der grüne Garten lädt zum Entspannen, Spielen oder Gärtnern ein. Eine überdachte Terrasse aus dem Jahr 2019 erweitert den Wohnraum ins Freie und bietet einen geschützten Platz für jede Jahreszeit. Auch auf der Dachterrasse mit Blick in den Garten, können Sie entspannte Stunden verbringen.
Der B-Plan macht dieses Grundstück ebenfalls für den Investor sehr interessant (WA / II / GFZ 0,4 / GRZ 0,6). Prüfen Sie gerne in enger Abstimmung mit dem Landkreis Leer die weiteren Möglichkeiten.
In den vergangenen Jahren wurden bereits einige wichtige Modernisierungen vorgenommen: Die Heizungsanlage wurde etwa im Jahr 2015 erneuert und sorgt für zeitgemäßen Wohnkomfort. Die Fenster stammen teilweise aus dem Jahr 1998.
Ein Highlight dieser Immobilie ist außerdem die tolle Lage im Zentrum von Ihrhove, welches zu Fuß zu erreichen ist. Dort befinden sich Mediziner, eine Apotheke und Lebensmittelgeschäfte. Die nächsten größeren Städte, Leer und Papenburg mit weiterführenden Schulen und kulturellen Angeboten, sind in wenigen Minuten mit dem Auto über die Bundesstraße 70 sowie mit dem öffentlichen Nahverkehr zu erreichen. Die Bushaltestelle befindet sich schräg gegenüber der Einfahrt.
Dieses Haus vereint großzügiges Wohnen, praktische Raumlösungen und eine tolle Lage – ideal für Familien oder Paare, die heute schon an morgen denken. Vereinbaren Sie noch heute einen Besichtigungstermin!
Indeling:
helle Einbauküche, überdachte Terrasse, Dachterrasse
Ligging:
Im Zentrum von Ihrhove gelegen. Einkaufsmöglichkeiten, Schulen und Ärzte sind bequem erreichbar. Die Städte Leer und Papenburg sind mit dem Auto über die Bundesstraße 70 in wenigen Minuten zu erreichen.
Provisie:
Bij de aankoop van een huis in Duitsland moet u rekening houden met in totaal +- 9,5 % bijkomende kosten zoals :
- Notaris- en Grundbuchkosten 1,5%
- 5% overdrachtsbelasting (ook deze is nog al verschillend in de deelstaten "Bundesländer"
(lees meer op ons blog)
- De makelaars provisie
De hoogte van de makelaarsprovisie is per regio en object nogal verschillend) maar let op:
Bij sommige woningen is de provisie van de makelaar al in de koopprijs inbegrepen !
Bij de nieuwbouw van een woning betaalt u alleen kosten koper over de prijs van de kavel
- Notaris- en Grundbuchkosten 1,5%
- 5% overdrachtsbelasting (ook deze is nog al verschillend in de deelstaten "Bundesländer"
(lees meer op ons blog)
- De makelaars provisie
De hoogte van de makelaarsprovisie is per regio en object nogal verschillend) maar let op:
Bij sommige woningen is de provisie van de makelaar al in de koopprijs inbegrepen !
Bij de nieuwbouw van een woning betaalt u alleen kosten koper over de prijs van de kavel
Opmerking:
Mocht u interesse aan een van de door ons aangeboden huizen hebben klik op de button vragen over het object in de rechter kolom. Een bezichtiging is voor u geheel vrijblijvend.
Algemene voorwaarden:
Door een klik op de button"Bekijk de locatie van het object op Google maps " ziet u nooit de exacte locatie maar altijd alleen maar de locatie van de dichstbijzijnde plaats / stad
Voor het juiste adres klik in de rechter colom "Vragen over het object"
Alle aanbiedingen zijn onderhevig aan wijzigingen zonder voorafgaande kennisgeving en zijn gebaseerd op door de eigenaar verstrekte informatie; er kan dan ook geen enkele aansprakelijkheid worden aanvaard voor de juistheid en volledigheid ervan. Onder voorbehoud van voorafgaande verkoop of verhuur door de eigenaar.
Voor het juiste adres klik in de rechter colom "Vragen over het object"
Alle aanbiedingen zijn onderhevig aan wijzigingen zonder voorafgaande kennisgeving en zijn gebaseerd op door de eigenaar verstrekte informatie; er kan dan ook geen enkele aansprakelijkheid worden aanvaard voor de juistheid en volledigheid ervan. Onder voorbehoud van voorafgaande verkoop of verhuur door de eigenaar.
Lees meer over de mogelijke valkuilen bij de aankoop van een huis in Duitsland op onze blog
Boordevol informatie m.b.t. een mogelijke emigratie naar Duitsland en over de aankoop of nieuwbouw van een huis in Duitsland:
Meer weten over wonen in Duitsland? Link opent in nieuw venster
Boordevol informatie m.b.t. een mogelijke emigratie naar Duitsland en over de aankoop of nieuwbouw van een huis in Duitsland:
Meer weten over wonen in Duitsland? Link opent in nieuw venster
Uw contactpersoon
Mevrouw Wiebke Foorden
Ostertorstraße 100
26670 Uplengen
Telefoon: 00491716707057
Mobiele telefoon: 00491716707057
Ostertorstraße 100
26670 Uplengen
Telefoon: 00491716707057
Mobiele telefoon: 00491716707057
Terug naar het overzicht



































