Object 131 van 374
Volgende object
Vorige object
Terug naar het overzicht
Terug naar het overzicht
Volgende object
Vorige object
Terug naar het overzichtHerzlake: Provisionsfrei für Käufer! Ebenerdiges Traumhaus in einmaliger Seelage !
Object-Nr.: 8309
Snel contact
Opties
Opties
Kerngegevens
Adres:
49770 Herzlake
Emsland
Niedersachsen
Emsland
Niedersachsen
Prijs:
699.000 €
Woonoppervlak ca.:
126 m2.
Grondstuk:
679 m2.
Aantal kamers:
3
Verdere gegevens
Verdere gegevens
Woningtype:
Eengezinswoning
Op provisiebasis:
nee
Bad:
Douche, Raam
Aantal slaapkamers:
2
Aantal badkamers:
1
Toegankelijk zonder hindernissen:
ja
Gastentoilet:
ja
Aantal parkeerplaatsen:
2
Aantal parkeerplaatsen:
2 x Garage
Kwaliteit van de uitrusting:
Gedistingeerd
Bouwjaar:
2025
Beschikbaar vanaf:
nach Vereinbarung
Vloerbedekking:
Vloertegels
Toestand:
Nieuw te betrekken
Verwarmingssoort:
Warmtepomp
Type energiebewijs:
Energiepas ligt ter inzage
Uitvoerige beschrijving
Uitvoerige beschrijving
Objectbeschrijving:
Ihr Traumhaus am See – Exklusives Wohnen in Herzlake
Willkommen in Ihrem neuen Zuhause! Dieses hochmoderne Einfamilienhaus mit Garage liegt in einer privilegierten Lage direkt am Ufer des Sees in Herzlake. Hier verschmelzen Ruhe, Natur und exklusives Wohnen zu einer perfekten Einheit, während Sie dennoch die Annehmlichkeiten der Stadt in unmittelbarer Nähe genießen.
Das Haus wird schlüsselfertig mit zwei großzügigen Schlafzimmern übergeben – für einen sofortigen Einzug und höchsten Wohnkomfort.
Nach Fertigstellung erhalten Sie einen Energieausweis, der die herausragenden energetischen Eigenschaften des Hauses dokumentiert.
Perfekte Lage mit Naturidylle und optimaler Anbindung
Die naturnahe Südlage direkt am See bietet Ihnen eine Oase der Entspannung mit traumhaftem Ausblick. Gleichzeitig profitieren Sie von der Nähe zur Hasenähe in Herzlake sowie einer hervorragenden Infrastruktur: Der Stadtkern ist in nur fünf Minuten erreichbar, und die gute Anbindung an die B213 sorgt für kurze Wege in alle Richtungen.
Erleben Sie modernes Wohnen in einer einzigartigen Umgebung – vereinbaren Sie noch heute einen Besichtigungstermin und lassen Sie sich von diesem besonderen Angebot begeistern!
Willkommen in Ihrem neuen Zuhause! Dieses hochmoderne Einfamilienhaus mit Garage liegt in einer privilegierten Lage direkt am Ufer des Sees in Herzlake. Hier verschmelzen Ruhe, Natur und exklusives Wohnen zu einer perfekten Einheit, während Sie dennoch die Annehmlichkeiten der Stadt in unmittelbarer Nähe genießen.
Das Haus wird schlüsselfertig mit zwei großzügigen Schlafzimmern übergeben – für einen sofortigen Einzug und höchsten Wohnkomfort.
Nach Fertigstellung erhalten Sie einen Energieausweis, der die herausragenden energetischen Eigenschaften des Hauses dokumentiert.
Perfekte Lage mit Naturidylle und optimaler Anbindung
Die naturnahe Südlage direkt am See bietet Ihnen eine Oase der Entspannung mit traumhaftem Ausblick. Gleichzeitig profitieren Sie von der Nähe zur Hasenähe in Herzlake sowie einer hervorragenden Infrastruktur: Der Stadtkern ist in nur fünf Minuten erreichbar, und die gute Anbindung an die B213 sorgt für kurze Wege in alle Richtungen.
Erleben Sie modernes Wohnen in einer einzigartigen Umgebung – vereinbaren Sie noch heute einen Besichtigungstermin und lassen Sie sich von diesem besonderen Angebot begeistern!
Indeling:
Exklusive Ausstattungsmerkmale:
Sicherheit & Komfort: Hochwertige, einbruchssichere Kunststofffenster in stilvollem Schwarz mit dreifacher Isolierverglasung und Raffstores bieten optimalen Schutz und höchsten Wohnkomfort.
Smart Home-Technologie: Die moderne Elektroinstallation inklusive Smarthome-System ermöglicht eine intelligente Steuerung sämtlicher Haustechnik – für maximalen Wohnkomfort und Energieeffizienz.
Wohnambiente mit Seeblick: Die offene Wohn-/Essküche beeindruckt mit einer großzügigen Glasfront und einer eleganten Schiebetür, die einen atemberaubenden Blick auf den See freigibt und eine lichtdurchflutete Wohlfühlatmosphäre schafft.
Hochwertige Bodenbeläge: Das gesamte Erdgeschoss ist mit edlem Feinsteinzeug gefliest – eine Kombination aus stilvoller Optik und pflegeleichter Handhabung.
Modernste Bauweise & Energieeffizienz:
Architektonisches Highlight: Das moderne Pultdach mit hochwertigen schwarzen Tondachpfannen verleiht dem Haus eine markante Optik und eignet sich ideal für die Installation einer Photovoltaikanlage zur nachhaltigen Energiegewinnung.
Energieeffizienz KfW 40: Eine innovative Luftwärmepumpe in Kombination mit einer Fußbodenheizung sorgt für eine nachhaltige, kosteneffiziente Beheizung und ein angenehmes Raumklima.
Glasfaser-Highspeed-Internet: Perfekte digitale Vernetzung dank ultraschnellem Glasfaseranschluss für maximale Konnektivität.
Exklusives Design & Wohnkomfort:
Barrierefreies Designbad: Das modern gestaltete Badezimmer überzeugt mit einer großzügigen, bodengleichen Dusche und stilvoller Ausstattung für höchsten Komfort.
Edle Innenraumgestaltung: Designer-Holzinnentüren mit einer imposanten Höhe von 2,50 m setzen elegante Akzente und verleihen dem Haus eine exklusive Note.
Hochwertige Malerarbeiten: Wände mit hochwertiger, weißer Vliestapete sorgen für ein helles, modernes und harmonisches Wohnambiente.
Perfekt durchdachte Außenanlage:
Gartenidylle & Privatsphäre: Eine liebevoll gestaltete Gartenanlage inklusive Pflasterarbeiten und Zaunanlage schafft eine einladende Wohlfühloase.
Zusätzlicher Raum: Das Dachgeschoss mit Fensteroption bietet Potenzial für einen individuellen Ausbau – ob als Hobbyraum, Abstellfläche oder weiteres Wohnareal.
Sicherheit & Komfort: Hochwertige, einbruchssichere Kunststofffenster in stilvollem Schwarz mit dreifacher Isolierverglasung und Raffstores bieten optimalen Schutz und höchsten Wohnkomfort.
Smart Home-Technologie: Die moderne Elektroinstallation inklusive Smarthome-System ermöglicht eine intelligente Steuerung sämtlicher Haustechnik – für maximalen Wohnkomfort und Energieeffizienz.
Wohnambiente mit Seeblick: Die offene Wohn-/Essküche beeindruckt mit einer großzügigen Glasfront und einer eleganten Schiebetür, die einen atemberaubenden Blick auf den See freigibt und eine lichtdurchflutete Wohlfühlatmosphäre schafft.
Hochwertige Bodenbeläge: Das gesamte Erdgeschoss ist mit edlem Feinsteinzeug gefliest – eine Kombination aus stilvoller Optik und pflegeleichter Handhabung.
Modernste Bauweise & Energieeffizienz:
Architektonisches Highlight: Das moderne Pultdach mit hochwertigen schwarzen Tondachpfannen verleiht dem Haus eine markante Optik und eignet sich ideal für die Installation einer Photovoltaikanlage zur nachhaltigen Energiegewinnung.
Energieeffizienz KfW 40: Eine innovative Luftwärmepumpe in Kombination mit einer Fußbodenheizung sorgt für eine nachhaltige, kosteneffiziente Beheizung und ein angenehmes Raumklima.
Glasfaser-Highspeed-Internet: Perfekte digitale Vernetzung dank ultraschnellem Glasfaseranschluss für maximale Konnektivität.
Exklusives Design & Wohnkomfort:
Barrierefreies Designbad: Das modern gestaltete Badezimmer überzeugt mit einer großzügigen, bodengleichen Dusche und stilvoller Ausstattung für höchsten Komfort.
Edle Innenraumgestaltung: Designer-Holzinnentüren mit einer imposanten Höhe von 2,50 m setzen elegante Akzente und verleihen dem Haus eine exklusive Note.
Hochwertige Malerarbeiten: Wände mit hochwertiger, weißer Vliestapete sorgen für ein helles, modernes und harmonisches Wohnambiente.
Perfekt durchdachte Außenanlage:
Gartenidylle & Privatsphäre: Eine liebevoll gestaltete Gartenanlage inklusive Pflasterarbeiten und Zaunanlage schafft eine einladende Wohlfühloase.
Zusätzlicher Raum: Das Dachgeschoss mit Fensteroption bietet Potenzial für einen individuellen Ausbau – ob als Hobbyraum, Abstellfläche oder weiteres Wohnareal.
Ligging:
Willkommen in Herzlake, einem charmanten Ort, der seinen Bewohnern und Besuchern eine perfekte Mischung aus ländlicher Idylle und modernem Lebensstil bietet. Gelegen in der Region Emsland in Niedersachsen, ist Herzlake nicht nur für seine malerische Landschaft bekannt, sondern auch für seine lebendige Gemeinschaft und seine vielfältigen Freizeitmöglichkeiten. Herzlake liegt eingebettet in eine reizvolle Umgebung aus Wäldern, Wiesen und Seen, die zu ausgedehnten Spaziergängen, Fahrradtouren und erholsamen Stunden in der Natur einladen. Der nahe gelegene See bietet nicht nur eine traumhafte Kulisse, sondern auch Gelegenheiten zum Angeln, Schwimmen und Wassersport.
Herzlake ist eine lebendige Gemeinde, die das ganze Jahr über eine Vielzahl von Veranstaltungen und Festen bietet. Ob traditionelle Volksfeste, kulturelle Events oder sportliche Wettbewerbe – hier ist für jeden Geschmack etwas dabei. Tauchen Sie ein in das bunte Treiben und erleben Sie die herzliche Gastfreundschaft der Einheimischen.
Trotz seiner ländlichen Lage bietet Herzlake eine hervorragende Infrastruktur und alle Annehmlichkeiten des modernen Lebens. Einkaufsmöglichkeiten, Schulen, Ärzte und Freizeiteinrichtungen sind gut erreichbar und tragen zum hohen Lebensstandard in der Region bei.
Dank seiner verkehrsgünstigen Lage ist Herzlake optimal an das regionale und überregionale Verkehrsnetz angebunden. Die B213 ermöglicht eine schnelle Anbindung an umliegende Städte und Ortschaften, während der nahegelegene Bahnhof für eine bequeme Anreise mit dem Zug sorgt.
Herzlake ist mehr als nur ein Ort – es ist ein Lebensgefühl. Hier finden Sie die perfekte Balance zwischen Natur und urbanem Leben, zwischen Tradition und Moderne. Erleben Sie die Schönheit und Vielfalt von Herzlake und lassen Sie sich von seiner einzigartigen Atmosphäre verzaubern.
Herzlake ist eine lebendige Gemeinde, die das ganze Jahr über eine Vielzahl von Veranstaltungen und Festen bietet. Ob traditionelle Volksfeste, kulturelle Events oder sportliche Wettbewerbe – hier ist für jeden Geschmack etwas dabei. Tauchen Sie ein in das bunte Treiben und erleben Sie die herzliche Gastfreundschaft der Einheimischen.
Trotz seiner ländlichen Lage bietet Herzlake eine hervorragende Infrastruktur und alle Annehmlichkeiten des modernen Lebens. Einkaufsmöglichkeiten, Schulen, Ärzte und Freizeiteinrichtungen sind gut erreichbar und tragen zum hohen Lebensstandard in der Region bei.
Dank seiner verkehrsgünstigen Lage ist Herzlake optimal an das regionale und überregionale Verkehrsnetz angebunden. Die B213 ermöglicht eine schnelle Anbindung an umliegende Städte und Ortschaften, während der nahegelegene Bahnhof für eine bequeme Anreise mit dem Zug sorgt.
Herzlake ist mehr als nur ein Ort – es ist ein Lebensgefühl. Hier finden Sie die perfekte Balance zwischen Natur und urbanem Leben, zwischen Tradition und Moderne. Erleben Sie die Schönheit und Vielfalt von Herzlake und lassen Sie sich von seiner einzigartigen Atmosphäre verzaubern.
Overige:
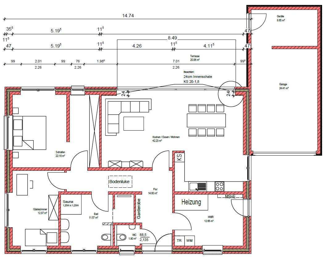
Wohnflächenaufteilung:
Erdgeschoss:
Flur ca. 14,30 qm
Wohnen / Essen ca. 41,75 qm
Schlafen/Ankleide ca. 21,90 qm
Gästezimmer ca. 12,64 qm
Bad ca. 11,19 qm
Gäste-WC ca. 1,79 qm
HWR ca. 12,44 qm
Terrasse ca. 9,90 qm (50%)
Erdgeschoss:
Flur ca. 14,30 qm
Wohnen / Essen ca. 41,75 qm
Schlafen/Ankleide ca. 21,90 qm
Gästezimmer ca. 12,64 qm
Bad ca. 11,19 qm
Gäste-WC ca. 1,79 qm
HWR ca. 12,44 qm
Terrasse ca. 9,90 qm (50%)
Provisie:
Bij de aankoop van een huis in Duitsland moet u rekening houden met in totaal +- 9,5 % bijkomende kosten zoals :
- Notaris- en Grundbuchkosten 1,5%
- 5% overdrachtsbelasting (ook deze is nog al verschillend in de deelstaten "Bundesländer"
(lees meer op ons blog)
- De makelaars provisie
De hoogte van de makelaarsprovisie is per regio en object nogal verschillend) maar let op:
Bij sommige woningen is de provisie van de makelaar al in de koopprijs inbegrepen !
Bij de nieuwbouw van een woning betaalt u alleen kosten koper over de prijs van de kavel
- Notaris- en Grundbuchkosten 1,5%
- 5% overdrachtsbelasting (ook deze is nog al verschillend in de deelstaten "Bundesländer"
(lees meer op ons blog)
- De makelaars provisie
De hoogte van de makelaarsprovisie is per regio en object nogal verschillend) maar let op:
Bij sommige woningen is de provisie van de makelaar al in de koopprijs inbegrepen !
Bij de nieuwbouw van een woning betaalt u alleen kosten koper over de prijs van de kavel
Opmerking:
Mocht u interesse aan een van de door ons aangeboden huizen hebben klik op de button vragen over het object in de rechter kolom. Een bezichtiging is voor u geheel vrijblijvend.
Algemene voorwaarden:
Door een klik op de button"Bekijk de locatie van het object op Google maps " ziet u nooit de exacte locatie maar altijd alleen maar de locatie van de dichstbijzijnde plaats / stad
Voor het juiste adres klik in de rechter colom "Vragen over het object"
Alle aanbiedingen zijn onderhevig aan wijzigingen zonder voorafgaande kennisgeving en zijn gebaseerd op door de eigenaar verstrekte informatie; er kan dan ook geen enkele aansprakelijkheid worden aanvaard voor de juistheid en volledigheid ervan. Onder voorbehoud van voorafgaande verkoop of verhuur door de eigenaar.
Voor het juiste adres klik in de rechter colom "Vragen over het object"
Alle aanbiedingen zijn onderhevig aan wijzigingen zonder voorafgaande kennisgeving en zijn gebaseerd op door de eigenaar verstrekte informatie; er kan dan ook geen enkele aansprakelijkheid worden aanvaard voor de juistheid en volledigheid ervan. Onder voorbehoud van voorafgaande verkoop of verhuur door de eigenaar.
Lees meer over de mogelijke valkuilen bij de aankoop van een huis in Duitsland op onze blog
Boordevol informatie m.b.t. een mogelijke emigratie naar Duitsland en over de aankoop of nieuwbouw van een huis in Duitsland:
Meer weten over wonen in Duitsland? Link opent in nieuw venster
Boordevol informatie m.b.t. een mogelijke emigratie naar Duitsland en over de aankoop of nieuwbouw van een huis in Duitsland:
Meer weten over wonen in Duitsland? Link opent in nieuw venster
Uw contactpersoon
Terug naar het overzicht






























