Object 137 van 374
Volgende object
Vorige object
Terug naar het overzicht
Terug naar het overzicht
Volgende object
Vorige object
Terug naar het overzichtWalchum: Provisionsfrei für Käufer! "Zuhause dort, wo die Sonne über der Ems aufgeht“ Ihr Neubau-EFH
Object-Nr.: 8418
Snel contact
Opties
Opties
Kerngegevens
Adres:
26907 Walchum
Emsland
Niedersachsen
Emsland
Niedersachsen
Prijs:
269.000 €
Woonoppervlak ca.:
90 m2.
Grondstuk:
250 m2.
Aantal kamers:
4
Verdere gegevens
Verdere gegevens
Woningtype:
Eengezinswoning
Aantal etages:
1
Op provisiebasis:
nee
Keuken:
Inbouwkeuken
Bad:
Douche, Raam
Aantal slaapkamers:
3
Aantal badkamers:
2
Aantal parkeerplaatsen:
2
Aantal parkeerplaatsen:
2 x Parkeerplaats buiten
Kwaliteit van de uitrusting:
Normaal
Bouwjaar:
2025
Beschikbaar vanaf:
Nach Vereinbarung
Vloerbedekking:
Vloertegels
Toestand:
Nieuw te betrekken
Verwarming:
Vloer
Verwarmingssoort:
Gas
Type energiebewijs:
Energiepas ligt ter inzage
Uitvoerige beschrijving
Uitvoerige beschrijving
Objectbeschrijving:
Provisionsfrei für Käufer: Dieses attraktive Einfamilienhaus entsteht 2025 (kurz vor Fertigstellung) als moderner Neubau in massiver Bauweise und bietet Ihnen die Möglichkeit des Erstbezugs. Auf ca. 90 m² Wohnfläche erwartet Sie ein durchdachtes Raumkonzept, das sowohl für Familien als auch für Paare oder Einzelpersonen ideale Wohnbedingungen schafft.
Im Erdgeschoss empfängt Sie ein großzügig geschnittener, offener Wohn-, Ess- und Küchenbereich, der durch bodentiefe Fensterelemente lichtdurchflutet ist und einen direkten Zugang zum Garten bietet. Die moderne, hochwertige Einbauküche ist bereits im Kaufpreis enthalten und fügt sich perfekt in das offene Raumkonzept ein. Hier verbinden sich Kochen, Wohnen und Entspannen auf harmonische Weise.
Zudem befinden sich im Erdgeschoss ein helles Schlafzimmer sowie ein modernes Duschbad – ideal, um komfortables Wohnen auf einer Ebene zu ermöglichen. Eine stilvolle Treppe aus Holz führt in das Dachgeschoss, wo Sie ein weiteres Schlafzimmer sowie ein zweites, modernes Duschbad erwarten. Besonders hervorzuheben ist das Schlafzimmer im Dachgeschoss mit seinen bodentiefen Fenstern und dem schönen Ausblick in die freie Natur.
Der Gartenbereich kann nach Ihren eigenen Vorstellungen gestaltet werden und bietet – dank der ruhigen Anliegerlage – einen unverbaubaren Blick in die Natur. Das Grundstück befindet sich auf einem Erbpachtgrundstück mit mit einer jährlichen Erbpacht von ca. 2.700 €.
Dieses Haus vereint modernes Wohnen, durchdachte Ausstattung und eine naturnahe Lage in einem attraktiven Gesamtpaket.
Im Erdgeschoss empfängt Sie ein großzügig geschnittener, offener Wohn-, Ess- und Küchenbereich, der durch bodentiefe Fensterelemente lichtdurchflutet ist und einen direkten Zugang zum Garten bietet. Die moderne, hochwertige Einbauküche ist bereits im Kaufpreis enthalten und fügt sich perfekt in das offene Raumkonzept ein. Hier verbinden sich Kochen, Wohnen und Entspannen auf harmonische Weise.
Zudem befinden sich im Erdgeschoss ein helles Schlafzimmer sowie ein modernes Duschbad – ideal, um komfortables Wohnen auf einer Ebene zu ermöglichen. Eine stilvolle Treppe aus Holz führt in das Dachgeschoss, wo Sie ein weiteres Schlafzimmer sowie ein zweites, modernes Duschbad erwarten. Besonders hervorzuheben ist das Schlafzimmer im Dachgeschoss mit seinen bodentiefen Fenstern und dem schönen Ausblick in die freie Natur.
Der Gartenbereich kann nach Ihren eigenen Vorstellungen gestaltet werden und bietet – dank der ruhigen Anliegerlage – einen unverbaubaren Blick in die Natur. Das Grundstück befindet sich auf einem Erbpachtgrundstück mit mit einer jährlichen Erbpacht von ca. 2.700 €.
Dieses Haus vereint modernes Wohnen, durchdachte Ausstattung und eine naturnahe Lage in einem attraktiven Gesamtpaket.
Indeling:
Dieses Einfamilienhaus überzeugt durch eine hochwertige, moderne Ausstattung, die Komfort und Qualität vereint.
Das Gebäude wird in massiver Bauweise errichtet und mit einem stilvollen schwarzen Satteldach versehen, das dem Haus eine elegante und zeitgemäße Optik verleiht. Alle Fenster bestehen aus pflegeleichtem Kunststoff und sind mit einer hochwertigen 3-fach-Isolierverglasung ausgestattet. Zusätzlich sind sämtliche Fenster mit elektrisch betriebenen Rollläden versehen, die sich komfortabel steuern lassen und sowohl Sicht- als auch Wärmeschutz bieten.
Beheizt wird das Haus über eine moderne Gasheizung in Kombination mit einer kompletten Fußbodenheizung, die in allen Räumen separat regulierbar ist. So lässt sich in jedem Raum individuell eine angenehme Wohlfühltemperatur einstellen.
Die Bodenbeläge sind mit einheitlichen, hochwertigen Fliesen ausgestattet, die dem gesamten Wohnbereich eine klare, harmonische Linie verleihen. Besonders ins Auge fällt die geschmackvolle Treppe aus Holz, die als gestalterisches Highlight den Zugang zum Dachgeschoss bildet.
Das Haus verfügt über zwei vollwertige, modern ausgestattete Duschbäder – jeweils eines im Erdgeschoss und eines im Dachgeschoss. Durchdacht ist vor allem der Grundriss im Erdgeschoss, der neben dem offenen Wohn- und Essbereich auch ein Schlafzimmer und ein Duschbad umfasst. Somit ist bei Bedarf ein ebenerdiges Wohnen problemlos möglich.
Die bodentiefen Fensterelemente im Wohnbereich sorgen für helle, lichtdurchflutete Räume und eröffnen den direkten Zugang zum Garten, der nach eigenen Wünschen und Vorstellungen gestaltet werden kann. Auch das Schlafzimmer im Dachgeschoss ist mit bodentiefen Fenstern ausgestattet und bietet einen traumhaften Ausblick in die freie Natur.
Die gesamte Ausstattung kombiniert Funktionalität, modernen Wohnkomfort und ansprechendes Design – perfekt für alle, die Wert auf Qualität und stilvolles Wohnen legen.
Das Gebäude wird in massiver Bauweise errichtet und mit einem stilvollen schwarzen Satteldach versehen, das dem Haus eine elegante und zeitgemäße Optik verleiht. Alle Fenster bestehen aus pflegeleichtem Kunststoff und sind mit einer hochwertigen 3-fach-Isolierverglasung ausgestattet. Zusätzlich sind sämtliche Fenster mit elektrisch betriebenen Rollläden versehen, die sich komfortabel steuern lassen und sowohl Sicht- als auch Wärmeschutz bieten.
Beheizt wird das Haus über eine moderne Gasheizung in Kombination mit einer kompletten Fußbodenheizung, die in allen Räumen separat regulierbar ist. So lässt sich in jedem Raum individuell eine angenehme Wohlfühltemperatur einstellen.
Die Bodenbeläge sind mit einheitlichen, hochwertigen Fliesen ausgestattet, die dem gesamten Wohnbereich eine klare, harmonische Linie verleihen. Besonders ins Auge fällt die geschmackvolle Treppe aus Holz, die als gestalterisches Highlight den Zugang zum Dachgeschoss bildet.
Das Haus verfügt über zwei vollwertige, modern ausgestattete Duschbäder – jeweils eines im Erdgeschoss und eines im Dachgeschoss. Durchdacht ist vor allem der Grundriss im Erdgeschoss, der neben dem offenen Wohn- und Essbereich auch ein Schlafzimmer und ein Duschbad umfasst. Somit ist bei Bedarf ein ebenerdiges Wohnen problemlos möglich.
Die bodentiefen Fensterelemente im Wohnbereich sorgen für helle, lichtdurchflutete Räume und eröffnen den direkten Zugang zum Garten, der nach eigenen Wünschen und Vorstellungen gestaltet werden kann. Auch das Schlafzimmer im Dachgeschoss ist mit bodentiefen Fenstern ausgestattet und bietet einen traumhaften Ausblick in die freie Natur.
Die gesamte Ausstattung kombiniert Funktionalität, modernen Wohnkomfort und ansprechendes Design – perfekt für alle, die Wert auf Qualität und stilvolles Wohnen legen.
Ligging:
Walchum ist eine kleine Gemeinde im Nordwesten Niedersachsens, nahe der niederländischen Grenze. Sie gehört zur Samtgemeinde Dörpen im Landkreis Emsland und liegt zwischen der Ems im Osten und den Moor- und Waldgebieten im Westen. Die landschaftlich reizvolle Umgebung mit Flussauen, Wäldern und dem Seepark Eiken macht den Ort zu einem beliebten Ziel für Naturfreunde, Radfahrer und Wassersportler.
Der Marinapark Emstal befindet sich in traumhafter Lage direkt am Ufer der Ems in Walchum, im Herzen des idyllischen Emslands. Eingebettet in eine ruhige Naturlandschaft mit Wiesen, Auen und weitläufigen Waldgebieten, bietet der Standort ideale Voraussetzungen für alle, die Ruhe, Natur und Wassernähe schätzen.
Der Park verbindet naturnahes Wohnen mit bester Erreichbarkeit: Über die Bundesstraße B70 und die Autobahn A31 ist das Areal bequem und schnell erreichbar. Die Zufahrt erfolgt über klar gekennzeichnete Einfahrten mit Schrankenanlagen – direkt hinter der markanten grünen Fahrradbrücke, die als Orientierungspunkt dient.
Hier finden Sie einen außergewöhnlichen Standort, der Ruhe, Erholung und Naturerlebnis perfekt vereint – ideal für Freizeit, Wassersport und naturnahes Wohnen.
Der Marinapark Emstal befindet sich in traumhafter Lage direkt am Ufer der Ems in Walchum, im Herzen des idyllischen Emslands. Eingebettet in eine ruhige Naturlandschaft mit Wiesen, Auen und weitläufigen Waldgebieten, bietet der Standort ideale Voraussetzungen für alle, die Ruhe, Natur und Wassernähe schätzen.
Der Park verbindet naturnahes Wohnen mit bester Erreichbarkeit: Über die Bundesstraße B70 und die Autobahn A31 ist das Areal bequem und schnell erreichbar. Die Zufahrt erfolgt über klar gekennzeichnete Einfahrten mit Schrankenanlagen – direkt hinter der markanten grünen Fahrradbrücke, die als Orientierungspunkt dient.
Hier finden Sie einen außergewöhnlichen Standort, der Ruhe, Erholung und Naturerlebnis perfekt vereint – ideal für Freizeit, Wassersport und naturnahes Wohnen.
Overige:
Wohnflächenaufteilung:
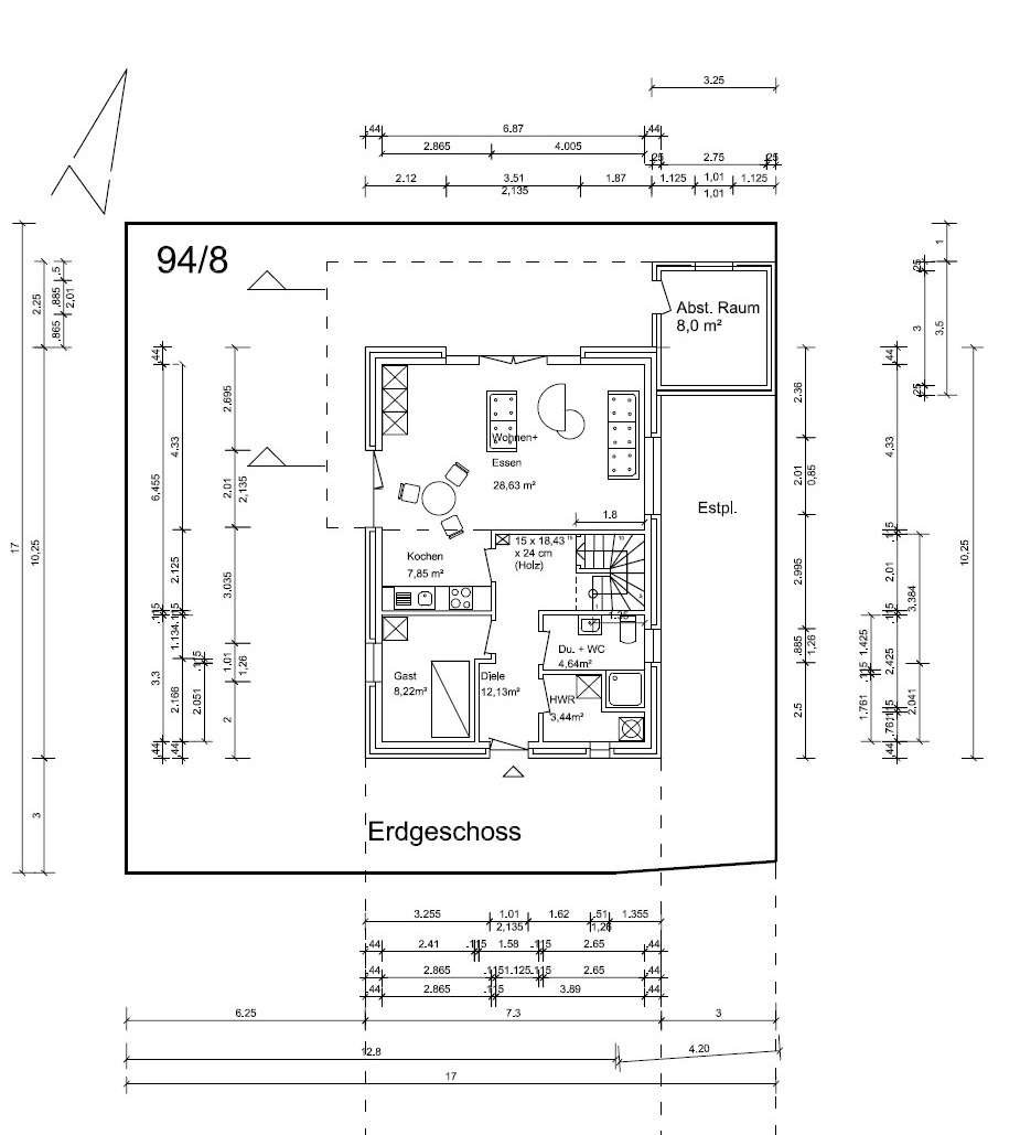
Erdgeschoss:
Diele ca. 9,00 m²
Wohn & Esszimmer/Küche ca. 26,00 m²
Duschbad ca. 3,00 m²
Schlafen I ca. 9,00 m²
Hauswirtschaftsraum ca. 4,00 m²
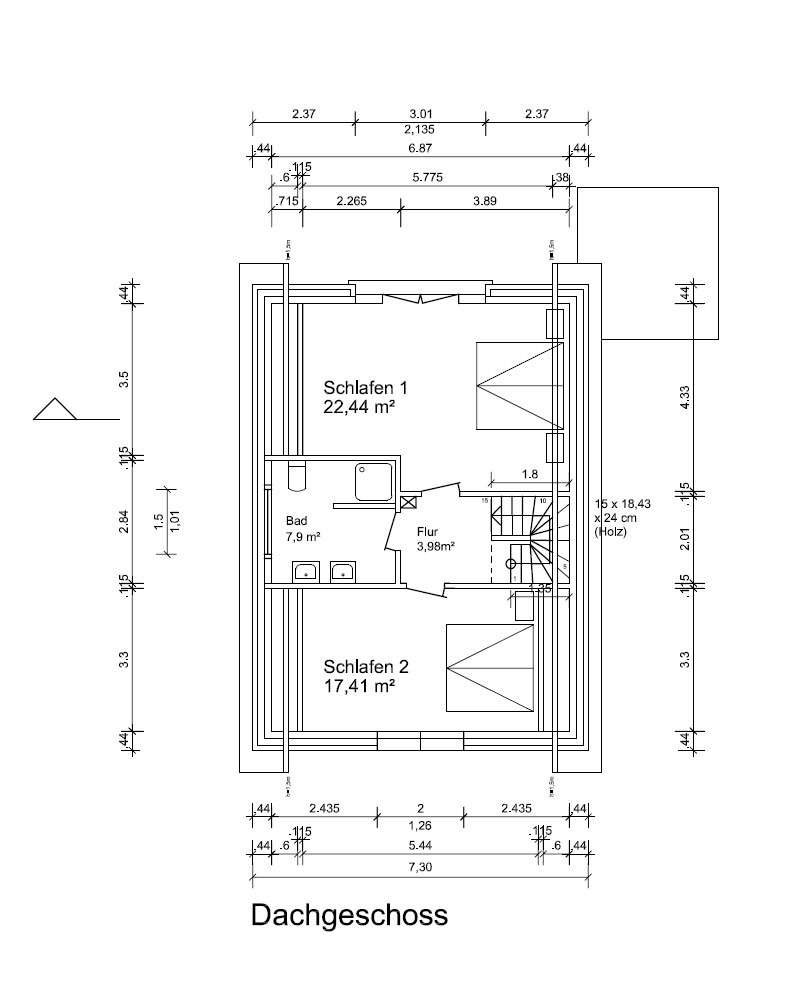
Dachgeschoss:
Flur ca. 5,00 m²
Duschbad ca. 5,00 m²
Schlafen I ca. 16,00 m²
Schlafen II ca. 13,00 m²
Erdgeschoss:
Diele ca. 9,00 m²
Wohn & Esszimmer/Küche ca. 26,00 m²
Duschbad ca. 3,00 m²
Schlafen I ca. 9,00 m²
Hauswirtschaftsraum ca. 4,00 m²
Dachgeschoss:
Flur ca. 5,00 m²
Duschbad ca. 5,00 m²
Schlafen I ca. 16,00 m²
Schlafen II ca. 13,00 m²
Provisie:
Bij de aankoop van een huis in Duitsland moet u rekening houden met in totaal +- 9,5 % bijkomende kosten zoals :
- Notaris- en Grundbuchkosten 1,5%
- 5% overdrachtsbelasting (ook deze is nog al verschillend in de deelstaten "Bundesländer"
(lees meer op ons blog)
- De makelaars provisie
De hoogte van de makelaarsprovisie is per regio en object nogal verschillend) maar let op:
Bij sommige woningen is de provisie van de makelaar al in de koopprijs inbegrepen !
Bij de nieuwbouw van een woning betaalt u alleen kosten koper over de prijs van de kavel
- Notaris- en Grundbuchkosten 1,5%
- 5% overdrachtsbelasting (ook deze is nog al verschillend in de deelstaten "Bundesländer"
(lees meer op ons blog)
- De makelaars provisie
De hoogte van de makelaarsprovisie is per regio en object nogal verschillend) maar let op:
Bij sommige woningen is de provisie van de makelaar al in de koopprijs inbegrepen !
Bij de nieuwbouw van een woning betaalt u alleen kosten koper over de prijs van de kavel
Opmerking:
Mocht u interesse aan een van de door ons aangeboden huizen hebben klik op de button vragen over het object in de rechter kolom. Een bezichtiging is voor u geheel vrijblijvend.
Algemene voorwaarden:
Door een klik op de button"Bekijk de locatie van het object op Google maps " ziet u nooit de exacte locatie maar altijd alleen maar de locatie van de dichstbijzijnde plaats / stad
Voor het juiste adres klik in de rechter colom "Vragen over het object"
Alle aanbiedingen zijn onderhevig aan wijzigingen zonder voorafgaande kennisgeving en zijn gebaseerd op door de eigenaar verstrekte informatie; er kan dan ook geen enkele aansprakelijkheid worden aanvaard voor de juistheid en volledigheid ervan. Onder voorbehoud van voorafgaande verkoop of verhuur door de eigenaar.
Voor het juiste adres klik in de rechter colom "Vragen over het object"
Alle aanbiedingen zijn onderhevig aan wijzigingen zonder voorafgaande kennisgeving en zijn gebaseerd op door de eigenaar verstrekte informatie; er kan dan ook geen enkele aansprakelijkheid worden aanvaard voor de juistheid en volledigheid ervan. Onder voorbehoud van voorafgaande verkoop of verhuur door de eigenaar.
Lees meer over de mogelijke valkuilen bij de aankoop van een huis in Duitsland op onze blog
Boordevol informatie m.b.t. een mogelijke emigratie naar Duitsland en over de aankoop of nieuwbouw van een huis in Duitsland:
Meer weten over wonen in Duitsland? Link opent in nieuw venster
Boordevol informatie m.b.t. een mogelijke emigratie naar Duitsland en over de aankoop of nieuwbouw van een huis in Duitsland:
Meer weten over wonen in Duitsland? Link opent in nieuw venster
Uw contactpersoon
Terug naar het overzicht





























