Object 148 van 380
Volgende object
Vorige object
Terug naar het overzicht
Terug naar het overzicht
Volgende object
Vorige object
Terug naar het overzichtHerzlake: Provisionsfrei für Käufer! Neubau-Walmdachbungalow - Wünsche können berücksichtigt werden!
Object-Nr.: 8478
Snel contact
Opties
Opties
Kerngegevens
Adres:
49770 Herzlake
Emsland
Niedersachsen
Emsland
Niedersachsen
Prijs:
362.000 €
Woonoppervlak ca.:
109,74 m2.
Aantal kamers:
3
Verdere gegevens
Verdere gegevens
Woningtype:
Bungalow
Op provisiebasis:
nee
Bad:
Douche, Ligbad, Raam
Aantal slaapkamers:
2
Toegankelijk zonder hindernissen:
ja
Gastentoilet:
ja
Aantal parkeerplaatsen:
1
Aantal parkeerplaatsen:
1 x Garage
Kwaliteit van de uitrusting:
Gedistingeerd
Bouwjaar:
2026
Beschikbaar vanaf:
nach Fertigstelllung
Vloerbedekking:
Vloertegels, Laminaat
Toestand:
Nieuw te betrekken
Verwarming:
Vloer
Verwarmingssoort:
Warmtepomp
Type energiebewijs:
certificaat vraag
Energie-efficiëntieklasse:
A_PLUS
Uitvoerige beschrijving
Uitvoerige beschrijving
Objectbeschrijving:
Provisionsfrei für den Käufer: Dieser exklusive komfortable Neubau Winkelwalmdachbungalow kann auf einem Grundstück ihrer Wahl bzw. auf einem von ihnen zur Verfügung gestellten Grundstück im Emsland oder Ostfriesland erstellt werden. Der Kaufpreis bezieht sich auf das reine Wohnhaus das Grundstück ist nicht im Kaufpreis enthalten.
Die gesamte Grundrissgestaltung ist durchdacht und vor allem lichtdurchflutet, perfekte Anordnung der Fensterflächen bzw. Elemente. Im Dielenbereich befindet sich eine Aussparung (Treppenloch) in der Betondecke, hier wäre der Einbau einer formschönen Treppenanlage möglich. Der gesamte Dachgeschossbereich ist ausbaufähig, ca. 50 m² Ausbaureserve. Bei dem Ausbau des Dachgeschoss können die Wünsche oder Vorstellungen des Erwerbers berücksichtigt werden. Das Wohn/Esszimmer verfügt über bodentiefe Fensterelemente (kleiner Glaserker) von hier aus hat man einen traumhaften Blick auf das Gartengrundstück und betritt die großzügige und teilüberdachte Gartenterrasse. Das integrierte Esszimmer ist zur Küche hin mit einer Doppel-Schiebetür versehen. Durch die intelligent angeordneten Fensterflächen geht keine Stellplatzmöglichkeit verloren. Sie haben die Möglichkeit einen Kaminofen zu installieren, da ein Schornstein im Wohn-/Essbereich installiert wird. Es befinden sich 2 Schlafzimmer sowie ein großzügiges Bad im Objekt. Durchdachte Deckenspots Anordnung in der Immobilie sowie in den Dachüberständen von außen! Dieser Winkelwalmdachbungalow wird komplett schlüsselfertig inkl. Maler- & Gartenarbeiten erstellt. Auf eine hochwertige und einwandfreie Bauqualität wird geachtet.
Daten Energieausweis: In Vorbereitung!
Grundlegend erstellen wir klimafreundliche Gebäude nach BEG EH40 Standard
Die gesamte Grundrissgestaltung ist durchdacht und vor allem lichtdurchflutet, perfekte Anordnung der Fensterflächen bzw. Elemente. Im Dielenbereich befindet sich eine Aussparung (Treppenloch) in der Betondecke, hier wäre der Einbau einer formschönen Treppenanlage möglich. Der gesamte Dachgeschossbereich ist ausbaufähig, ca. 50 m² Ausbaureserve. Bei dem Ausbau des Dachgeschoss können die Wünsche oder Vorstellungen des Erwerbers berücksichtigt werden. Das Wohn/Esszimmer verfügt über bodentiefe Fensterelemente (kleiner Glaserker) von hier aus hat man einen traumhaften Blick auf das Gartengrundstück und betritt die großzügige und teilüberdachte Gartenterrasse. Das integrierte Esszimmer ist zur Küche hin mit einer Doppel-Schiebetür versehen. Durch die intelligent angeordneten Fensterflächen geht keine Stellplatzmöglichkeit verloren. Sie haben die Möglichkeit einen Kaminofen zu installieren, da ein Schornstein im Wohn-/Essbereich installiert wird. Es befinden sich 2 Schlafzimmer sowie ein großzügiges Bad im Objekt. Durchdachte Deckenspots Anordnung in der Immobilie sowie in den Dachüberständen von außen! Dieser Winkelwalmdachbungalow wird komplett schlüsselfertig inkl. Maler- & Gartenarbeiten erstellt. Auf eine hochwertige und einwandfreie Bauqualität wird geachtet.
Daten Energieausweis: In Vorbereitung!
Grundlegend erstellen wir klimafreundliche Gebäude nach BEG EH40 Standard
Indeling:
Bodenbeläge:
Der gesamte Wohnbereich wird mit einer großformatigen und einheitlichen Bodenfliese bestückt. Die Schlafzimmer werden mit hochwertigen Laminatböden ausgelegt. Alle Räume des Wohnhauses verfügen über eine Fußbodenheizung.
Küche:
Angrenzend an dem Küchenbereich befindet sich ein großzügiger Hauswirtschaftsraum (Einbauschrank, Hauptanschlüsse Gas, Wasser und Stromzähler), direkter Zugang in den Garten sowie in die Garage. Gerne sind wir Ihnen auch bei der Wahl einer neuen Einbauküche behilflich, unser Küchenstudio wird Sie auch in diesem Punkt professionell beraten.
Bäder:
Das Top exklusive Badezimmer wird wie folgt ausgestattet: Wannenanlage, Waschbecken mit Halbsäule (Ablagefläche), bodentiefe Dusche mit Glastür, Hänge WC, deckenhohe und sehr geschmackvolle Verfliesung. Hochwertige Elemente und Armaturen. Das Gäste Dusch/WC wird gleichwertig ausgestattet, Hänge WC, Waschbecken mit Halbsäule sowie geschmackvoller Verfliesung.
Garage:
Die großzügige Garage mit angrenzendem Geräteraum hat einen direkten Zugang ins Objekt sowie in den hinteren Gartenbereich. Es wird ein hochwertiges Elektro-Sektionaltor eingebaut.
Grundstück:
Das Gartengrundstück wird komplett angelegt. Die Freiflächen werden mit Rasensaat versehen. Die Grundstücksgrenzen werden mit einer Lebensbaumhecke eingefriedet. Die teilüberdachte Gartenterrasse (Massivsäule) wird großzügig bepflastert. Ein Pflasterweg läuft um das gesamte Objekt. Die Hoffläche wird ebenfalls bepflastert.
Dieser Neubau Winkelwalmdachbungalow wird in einer hochwertigen Bauweise komplett schlüsselfertig nach BEG EH40 Standard erstellt. Eine ausführliche Baubeschreibung zum Objekt sowie eine aussagekräftige Bauzeichnung können wir Ihnen gerne bei Bedarf per Mail oder auf dem Postweg zukommen lassen. Lassen Sie sich bei einer Besichtigung von uns inspirieren damit Ihr Traum vom Eigenheim wahr wird. Bei weiteren Fragen steht Ihnen das Gründer-Immobilienmakler Team aus Dörpen im Emsland jeder Zeit zur Verfügung!
Der gesamte Wohnbereich wird mit einer großformatigen und einheitlichen Bodenfliese bestückt. Die Schlafzimmer werden mit hochwertigen Laminatböden ausgelegt. Alle Räume des Wohnhauses verfügen über eine Fußbodenheizung.
Küche:
Angrenzend an dem Küchenbereich befindet sich ein großzügiger Hauswirtschaftsraum (Einbauschrank, Hauptanschlüsse Gas, Wasser und Stromzähler), direkter Zugang in den Garten sowie in die Garage. Gerne sind wir Ihnen auch bei der Wahl einer neuen Einbauküche behilflich, unser Küchenstudio wird Sie auch in diesem Punkt professionell beraten.
Bäder:
Das Top exklusive Badezimmer wird wie folgt ausgestattet: Wannenanlage, Waschbecken mit Halbsäule (Ablagefläche), bodentiefe Dusche mit Glastür, Hänge WC, deckenhohe und sehr geschmackvolle Verfliesung. Hochwertige Elemente und Armaturen. Das Gäste Dusch/WC wird gleichwertig ausgestattet, Hänge WC, Waschbecken mit Halbsäule sowie geschmackvoller Verfliesung.
Garage:
Die großzügige Garage mit angrenzendem Geräteraum hat einen direkten Zugang ins Objekt sowie in den hinteren Gartenbereich. Es wird ein hochwertiges Elektro-Sektionaltor eingebaut.
Grundstück:
Das Gartengrundstück wird komplett angelegt. Die Freiflächen werden mit Rasensaat versehen. Die Grundstücksgrenzen werden mit einer Lebensbaumhecke eingefriedet. Die teilüberdachte Gartenterrasse (Massivsäule) wird großzügig bepflastert. Ein Pflasterweg läuft um das gesamte Objekt. Die Hoffläche wird ebenfalls bepflastert.
Dieser Neubau Winkelwalmdachbungalow wird in einer hochwertigen Bauweise komplett schlüsselfertig nach BEG EH40 Standard erstellt. Eine ausführliche Baubeschreibung zum Objekt sowie eine aussagekräftige Bauzeichnung können wir Ihnen gerne bei Bedarf per Mail oder auf dem Postweg zukommen lassen. Lassen Sie sich bei einer Besichtigung von uns inspirieren damit Ihr Traum vom Eigenheim wahr wird. Bei weiteren Fragen steht Ihnen das Gründer-Immobilienmakler Team aus Dörpen im Emsland jeder Zeit zur Verfügung!
Overige:
Wohnflächenaufteilung:
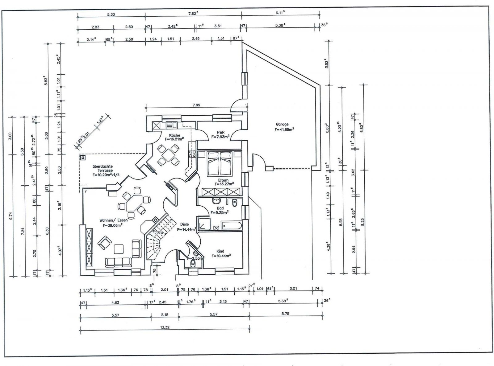
Erdgeschoss:
Diele ca. 14,44 m²
Gäste WC ca. 2,53 m²
Badezimmer ca. 9,25 m²
Küche ca. 16,21 m²
Wohnzimmer/Esszimmer ca. 39,06 m²
Schlafen I ca. 13,27 m²
Schlafen II ca. 10,44 m²
Hauswirtschaftsraum ca. 7,93 m²
Dachgeschoss:
Ausbaureserve ca. 50,00 m²
Erdgeschoss:
Diele ca. 14,44 m²
Gäste WC ca. 2,53 m²
Badezimmer ca. 9,25 m²
Küche ca. 16,21 m²
Wohnzimmer/Esszimmer ca. 39,06 m²
Schlafen I ca. 13,27 m²
Schlafen II ca. 10,44 m²
Hauswirtschaftsraum ca. 7,93 m²
Dachgeschoss:
Ausbaureserve ca. 50,00 m²
Provisie:
Bij de aankoop van een huis in Duitsland moet u rekening houden met in totaal +- 9,5 % bijkomende kosten zoals :
- Notaris- en Grundbuchkosten 1,5%
- 5% overdrachtsbelasting (ook deze is nog al verschillend in de deelstaten "Bundesländer"
(lees meer op ons blog)
- De makelaars provisie
De hoogte van de makelaarsprovisie is per regio en object nogal verschillend) maar let op:
Bij sommige woningen is de provisie van de makelaar al in de koopprijs inbegrepen !
Bij de nieuwbouw van een woning betaalt u alleen kosten koper over de prijs van de kavel
- Notaris- en Grundbuchkosten 1,5%
- 5% overdrachtsbelasting (ook deze is nog al verschillend in de deelstaten "Bundesländer"
(lees meer op ons blog)
- De makelaars provisie
De hoogte van de makelaarsprovisie is per regio en object nogal verschillend) maar let op:
Bij sommige woningen is de provisie van de makelaar al in de koopprijs inbegrepen !
Bij de nieuwbouw van een woning betaalt u alleen kosten koper over de prijs van de kavel
Opmerking:
Mocht u interesse aan een van de door ons aangeboden huizen hebben klik op de button vragen over het object in de rechter kolom. Een bezichtiging is voor u geheel vrijblijvend.
Algemene voorwaarden:
Door een klik op de button"Bekijk de locatie van het object op Google maps " ziet u nooit de exacte locatie maar altijd alleen maar de locatie van de dichstbijzijnde plaats / stad
Voor het juiste adres klik in de rechter colom "Vragen over het object"
Alle aanbiedingen zijn onderhevig aan wijzigingen zonder voorafgaande kennisgeving en zijn gebaseerd op door de eigenaar verstrekte informatie; er kan dan ook geen enkele aansprakelijkheid worden aanvaard voor de juistheid en volledigheid ervan. Onder voorbehoud van voorafgaande verkoop of verhuur door de eigenaar.
Voor het juiste adres klik in de rechter colom "Vragen over het object"
Alle aanbiedingen zijn onderhevig aan wijzigingen zonder voorafgaande kennisgeving en zijn gebaseerd op door de eigenaar verstrekte informatie; er kan dan ook geen enkele aansprakelijkheid worden aanvaard voor de juistheid en volledigheid ervan. Onder voorbehoud van voorafgaande verkoop of verhuur door de eigenaar.
Lees meer over de mogelijke valkuilen bij de aankoop van een huis in Duitsland op onze blog
Boordevol informatie m.b.t. een mogelijke emigratie naar Duitsland en over de aankoop of nieuwbouw van een huis in Duitsland:
Meer weten over wonen in Duitsland? Link opent in nieuw venster
Boordevol informatie m.b.t. een mogelijke emigratie naar Duitsland en over de aankoop of nieuwbouw van een huis in Duitsland:
Meer weten over wonen in Duitsland? Link opent in nieuw venster
Uw contactpersoon
Terug naar het overzicht



















