Object 17 van 40
Volgende object
Vorige object
Terug naar het overzicht
Terug naar het overzicht
Volgende object
Vorige object
Terug naar het overzichtLingen: Modernes WG-Zimmer in Lingen (Ems) – zur Miete!
Object-Nr.: 251066_08_3
Snel contact
Opties
Opties
Kerngegevens
Adres:
49809 Lingen
Emsland
Niedersachsen
Emsland
Niedersachsen
Stadswijk:
Niedersachsen
Maandelijkse basishuur excl. bijkomende kosten:
325 €
Woonoppervlak ca.:
13,83 m2.
Aantal kamers:
2
Verdere gegevens
Verdere gegevens
Etage:
1
Huur incl. verwarming en bijkomende kosten:
410 €
Nevenkosten:
85 €
Waarborg of coöperatieve aandelen:
2 Nettokaltmieten
Verwarmingskosten:
Zijn in de bijkomende kosten inbegrepen
Op provisiebasis:
nee
Keuken:
Inbouwkeuken, Open
Kelder:
nee
Lift:
ja
Aantal parkeerplaatsen:
1
Aantal parkeerplaatsen:
1 x Parkeerplaats buiten
Kwaliteit van de uitrusting:
Gedistingeerd
Bouwjaar:
2022
Te betrekken vanaf:
Ab Sofort
Toestand:
Goed onderhouden
Verwarming:
Centrale verwarming, Vloer
Verwarmingssoort:
Gas, Warmtepomp
Type energiebewijs:
certificaat vraag - vervaldatum 03.08.2032
Energie-efficiëntieklasse:
A+
Behoefte eindenergie:
10 kWh/(m²*a)
Bouwjaar volgens energiecertificatie:
2022
Waarborg of coöperatieve aandelen:
2 Nettokaltmieten
Uitvoerige beschrijving
Uitvoerige beschrijving
Objectbeschrijving:
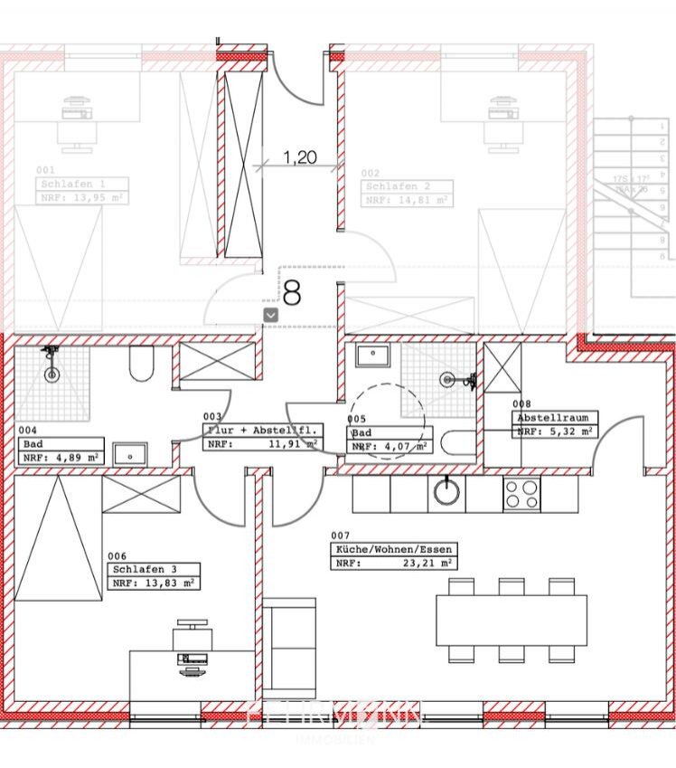
Das angebotene WG-Zimmer ist mit einem Anschluss für TV sowie Glasfaser-Internet ausgestattet und bietet durch seinen guten Zuschnitt ausreichend Platz für ein Bett, einen Schreibtisch und einen Kleiderschrank. Damit eignet es sich ideal zum Wohnen, Lernen oder Arbeiten.
Die Wohnung verfügt insgesamt über zwei moderne Badezimmer, die gemeinschaftlich genutzt werden. Beide Bäder sind zeitgemäß gestaltet und mit bodengleichen Duschen sowie Handtuchheizkörpern ausgestattet, was den Alltag komfortabel und praktikabel macht.
Der gemeinschaftliche Mittelpunkt der WG ist die moderne Einbauküche. Sie bietet ausreichend Platz für gemeinsames Kochen und einen angenehmen Austausch mit den Mitbewohnern.
Ergänzt wird das Raumangebot durch einen separaten Hauswirtschaftsraum mit Anschlüssen für Waschmaschine und Trockner sowie zusätzlichem Stauraum für Haushaltsutensilien.
Das gesamte Objekt ist hochwertig ausgestattet. Fußbodenheizung, elektrische Rollläden und eine kontrollierte Be- und Entlüftungsanlage sorgen ganzjährig für ein angenehmes Wohnklima.
Abgerundet wird das Angebot durch einen vorhandenen Stellplatz für Pkw und Fahrrad direkt am Gebäude.
Bei den angezeigten Bildern handelt es sich um Beispielbilder.
Der Energiebedarfsausweis ist vorhanden und kann bei der Besichtigung eingesehen werden.
Der Endenergiebedarf dieses Gebäudes liegt bei 10,0 kWh/(m2*a), Energieklasse A+.
Der wesentliche Energieträger ist Strom-Mix, Erdgas E.
Die Wohnung verfügt insgesamt über zwei moderne Badezimmer, die gemeinschaftlich genutzt werden. Beide Bäder sind zeitgemäß gestaltet und mit bodengleichen Duschen sowie Handtuchheizkörpern ausgestattet, was den Alltag komfortabel und praktikabel macht.
Der gemeinschaftliche Mittelpunkt der WG ist die moderne Einbauküche. Sie bietet ausreichend Platz für gemeinsames Kochen und einen angenehmen Austausch mit den Mitbewohnern.
Ergänzt wird das Raumangebot durch einen separaten Hauswirtschaftsraum mit Anschlüssen für Waschmaschine und Trockner sowie zusätzlichem Stauraum für Haushaltsutensilien.
Das gesamte Objekt ist hochwertig ausgestattet. Fußbodenheizung, elektrische Rollläden und eine kontrollierte Be- und Entlüftungsanlage sorgen ganzjährig für ein angenehmes Wohnklima.
Abgerundet wird das Angebot durch einen vorhandenen Stellplatz für Pkw und Fahrrad direkt am Gebäude.
Bei den angezeigten Bildern handelt es sich um Beispielbilder.
Der Energiebedarfsausweis ist vorhanden und kann bei der Besichtigung eingesehen werden.
Der Endenergiebedarf dieses Gebäudes liegt bei 10,0 kWh/(m2*a), Energieklasse A+.
Der wesentliche Energieträger ist Strom-Mix, Erdgas E.
Indeling:
Kabel Sat TV •
Ligging:
PÜNKTLICH IN DER VORLESUNG OHNE AKADEMISCHE VIERTELSTUNDE
Für ein Studentenwohnheim in Lingen (Ems) könnte die Lage an der Rheiner Str. 35 kaum besser sein.
Mit nur rund 500 Meter Luftlinie zum hochmodernen Campus der Hochschule Osnabrück ist die Studienzeit vor Ort auch mit dem Rad oder zu Fuß problemlos zu erledigen.
Durch die Rheiner Str. sind auch die überregionalen Anbindungen der B70 sowie des Bahnhofs Lingen unkompliziert und schnell erreichbar, mit dem Fußgängerüberweg an der Kurt-Schuhmacher-Brücke ist die Innenstadt nur wenige Minuten entfernt - eine viel bessere Anbindung kann man sich kaum wünschen.
Ob nun dauerhaft vor Ort, als „Wechselwohner“ im Dualen Studium oder nebenberuflich - die Lage ist für jeden Studententypen geeignet.
Für ein Studentenwohnheim in Lingen (Ems) könnte die Lage an der Rheiner Str. 35 kaum besser sein.
Mit nur rund 500 Meter Luftlinie zum hochmodernen Campus der Hochschule Osnabrück ist die Studienzeit vor Ort auch mit dem Rad oder zu Fuß problemlos zu erledigen.
Durch die Rheiner Str. sind auch die überregionalen Anbindungen der B70 sowie des Bahnhofs Lingen unkompliziert und schnell erreichbar, mit dem Fußgängerüberweg an der Kurt-Schuhmacher-Brücke ist die Innenstadt nur wenige Minuten entfernt - eine viel bessere Anbindung kann man sich kaum wünschen.
Ob nun dauerhaft vor Ort, als „Wechselwohner“ im Dualen Studium oder nebenberuflich - die Lage ist für jeden Studententypen geeignet.
Opmerking:
Mocht u interesse aan een van de door ons aangeboden huizen hebben klik op de button vragen over het object in de rechter kolom. Een bezichtiging is voor u geheel vrijblijvend.
Algemene voorwaarden:
Door een klik op de button"Bekijk de locatie van het object op Google maps " ziet u nooit de exacte locatie maar altijd alleen maar de locatie van de dichstbijzijnde plaats / stad
Voor het juiste adres klik in de rechter colom "Vragen over het object"
Alle aanbiedingen zijn onderhevig aan wijzigingen zonder voorafgaande kennisgeving en zijn gebaseerd op door de eigenaar verstrekte informatie; er kan dan ook geen enkele aansprakelijkheid worden aanvaard voor de juistheid en volledigheid ervan. Onder voorbehoud van voorafgaande verkoop of verhuur door de eigenaar.
Voor het juiste adres klik in de rechter colom "Vragen over het object"
Alle aanbiedingen zijn onderhevig aan wijzigingen zonder voorafgaande kennisgeving en zijn gebaseerd op door de eigenaar verstrekte informatie; er kan dan ook geen enkele aansprakelijkheid worden aanvaard voor de juistheid en volledigheid ervan. Onder voorbehoud van voorafgaande verkoop of verhuur door de eigenaar.
Lees meer over de mogelijke valkuilen bij de aankoop van een huis in Duitsland op onze blog
Boordevol informatie m.b.t. een mogelijke emigratie naar Duitsland en over de aankoop of nieuwbouw van een huis in Duitsland:
Meer weten over wonen in Duitsland? Link opent in nieuw venster
Boordevol informatie m.b.t. een mogelijke emigratie naar Duitsland en over de aankoop of nieuwbouw van een huis in Duitsland:
Meer weten over wonen in Duitsland? Link opent in nieuw venster
Uw contactpersoon
FEHRMANN Immobilienvermittlungs GmbH & Co. KG
Firma Julian Fehrmann
Boschstr. 15
49733 Haren (Ems)
Telefoon: 004959325009550
Firma Julian Fehrmann
Boschstr. 15
49733 Haren (Ems)
Telefoon: 004959325009550
Terug naar het overzicht








