Object 21 van 76
Volgende object
Vorige object
Terug naar het overzicht
Terug naar het overzicht
Volgende object
Vorige object
Terug naar het overzichtHaselünne: Kapitalanlage – Pflegeapartement in Haselünne
Object-Nr.: 11329
Snel contact
Links
Links
Opties
Opties
Kerngegevens
Adres:
49740 Haselünne
Emsland
Niedersachsen
Emsland
Niedersachsen
Stadswijk:
Niedersachsen
Objecttype:
Speciaal object
Totaal oppervlakte:
18,33 m2.
Prijs:
160.000 €
Beschikbaar vanaf:
Absprache
Verdere gegevens
Verdere gegevens
Grondstuk:
1.211 m2.
Op provisiebasis:
ja
Provisie:
7,14 % (inkl. MwSt.)
Bouwjaar:
2005
verhuurd:
ja
Toestand:
Goed onderhouden
Verwarming:
Centrale verwarming
Verwarmingssoort:
Gas
Type energiebewijs:
verbruik certificaat - geldig vanaf 22.02.2019 tot 21.02.2029
Energie-efficiëntieklasse:
D
Kengetal energieverbruik:
108 kWh/(m²*a)
Energieverbruik voor warm water inbegrepen:
ja
Bouwjaar volgens energiecertificatie:
2005
Uitvoerige beschrijving
Uitvoerige beschrijving
Objectbeschrijving:
Zum Verkauf steht ein Pflegeapartment in einer modernen Senioren- und Pflegeeinrichtung in Haselünne. Die Anlage wurde ca. im Jahr 2005 errichtet und bietet eine zeitgemäße sowie altersgerechte Infrastruktur für Senioren und pflegebedürftige Menschen.
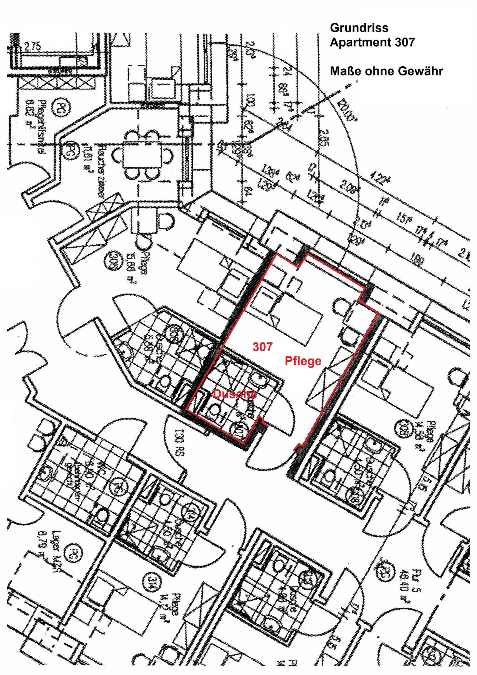
Das angebotene Apartment verfügt über eine Wohnfläche von ca. 18,33 m² und ist Teil einer professionell betriebenen Pflegeeinrichtung. Pflegeapartments gelten als attraktive Kapitalanlage, da sie in der Regel langfristig vermietet sind und von einem Betreiber verwaltet werden. Dadurch entsteht für Investoren eine stabile und vergleichsweise planbare Einnahmesituation.
Die gesamte Pflegeeinrichtung verfügt über eine Gesamtwohnfläche von 1.211,03 m² und bietet Platz für insgesamt 64 Bewohner. Zur Verfügung stehen 48 Einzelzimmer sowie 8 Doppelzimmer. Den Bewohnern wird eine professionelle Betreuung in einem gepflegten und sicheren Umfeld geboten.
⸻
Eckdaten der Immobilie
Objektart: Pflegeapartment in einer Senioren- und Pflegeeinrichtung
Ort: Haselünne, Hasestraße 16
Wohnfläche (Apartment): ca. 18,33 m²
Gesamtwohnfläche der Anlage: ca. 1.211,03 m²
Zimmeraufteilung der Einrichtung:
• 48 Einzelzimmer
• 8 Doppelzimmer
Jahresmieteinnahmen: ca. 5.615,08 €
(nach Abzug von Hausgeld und Verwaltung)
⸻
Lage
Die Pflegeeinrichtung befindet sich in ruhiger Lage in Haselünne.
Die Umgebung zeichnet sich durch eine angenehme Wohnatmosphäre aus. In unmittelbarer Nähe befinden sich unter anderem der Fluss Hase sowie eine Kirche, was zu einem ruhigen und gepflegten Umfeld beiträgt und den Bewohnern eine hohe Lebensqualität bietet.
⸻
Fazit
Pflegeimmobilien gewinnen aufgrund des demografischen Wandels zunehmend an Bedeutung. Die steigende Nachfrage nach Pflegeplätzen sorgt dafür, dass Investitionen in Pflegeimmobilien für Kapitalanleger immer attraktiver werden.
Das hier angebotene Pflegeapartment in Haselünne stellt eine interessante Investitionsmöglichkeit für Kapitalanleger dar. Die Kombination aus moderner Bauweise, professioneller Betreuung, ruhiger Lage sowie der dauerhaft hohen Nachfrage nach Pflegeplätzen macht diese Investition zu einer attraktiven und stabilen Kapitalanlage.
Das angebotene Apartment verfügt über eine Wohnfläche von ca. 18,33 m² und ist Teil einer professionell betriebenen Pflegeeinrichtung. Pflegeapartments gelten als attraktive Kapitalanlage, da sie in der Regel langfristig vermietet sind und von einem Betreiber verwaltet werden. Dadurch entsteht für Investoren eine stabile und vergleichsweise planbare Einnahmesituation.
Die gesamte Pflegeeinrichtung verfügt über eine Gesamtwohnfläche von 1.211,03 m² und bietet Platz für insgesamt 64 Bewohner. Zur Verfügung stehen 48 Einzelzimmer sowie 8 Doppelzimmer. Den Bewohnern wird eine professionelle Betreuung in einem gepflegten und sicheren Umfeld geboten.
⸻
Eckdaten der Immobilie
Objektart: Pflegeapartment in einer Senioren- und Pflegeeinrichtung
Ort: Haselünne, Hasestraße 16
Wohnfläche (Apartment): ca. 18,33 m²
Gesamtwohnfläche der Anlage: ca. 1.211,03 m²
Zimmeraufteilung der Einrichtung:
• 48 Einzelzimmer
• 8 Doppelzimmer
Jahresmieteinnahmen: ca. 5.615,08 €
(nach Abzug von Hausgeld und Verwaltung)
⸻
Lage
Die Pflegeeinrichtung befindet sich in ruhiger Lage in Haselünne.
Die Umgebung zeichnet sich durch eine angenehme Wohnatmosphäre aus. In unmittelbarer Nähe befinden sich unter anderem der Fluss Hase sowie eine Kirche, was zu einem ruhigen und gepflegten Umfeld beiträgt und den Bewohnern eine hohe Lebensqualität bietet.
⸻
Fazit
Pflegeimmobilien gewinnen aufgrund des demografischen Wandels zunehmend an Bedeutung. Die steigende Nachfrage nach Pflegeplätzen sorgt dafür, dass Investitionen in Pflegeimmobilien für Kapitalanleger immer attraktiver werden.
Das hier angebotene Pflegeapartment in Haselünne stellt eine interessante Investitionsmöglichkeit für Kapitalanleger dar. Die Kombination aus moderner Bauweise, professioneller Betreuung, ruhiger Lage sowie der dauerhaft hohen Nachfrage nach Pflegeplätzen macht diese Investition zu einer attraktiven und stabilen Kapitalanlage.
Overige:
VERBRAUCHERINFO
1. Maklerleistung ist der Nachweis der Gelegenheit zum Abschluss eines Vertrages bzw. Vermittlung eines Vertrages über eine Immobilie gegen die Courtagezahlungspflicht des Kunden
2. Unternehmer,Anschrift,Beschwerdeadressat
LBSi NordWest, Himmelreichallee 40, 48149 Münster, Tel:0251/973233-997, eMail:info@lbsi-nw.de
GF:Martin Englert, Volker Goldbeck
3. Es besteht ein Widerrufsrecht
4. Weitere Infos: verbraucherinfo.lbsi-nordwest.de
1. Maklerleistung ist der Nachweis der Gelegenheit zum Abschluss eines Vertrages bzw. Vermittlung eines Vertrages über eine Immobilie gegen die Courtagezahlungspflicht des Kunden
2. Unternehmer,Anschrift,Beschwerdeadressat
LBSi NordWest, Himmelreichallee 40, 48149 Münster, Tel:0251/973233-997, eMail:info@lbsi-nw.de
GF:Martin Englert, Volker Goldbeck
3. Es besteht ein Widerrufsrecht
4. Weitere Infos: verbraucherinfo.lbsi-nordwest.de
Provisie:
Bij de aankoop van een huis in Duitsland moet u rekening houden met in totaal +- 9,5 % bijkomende kosten zoals :
- Notaris- en Grundbuchkosten 1,5%
- 5% overdrachtsbelasting (ook deze is nog al verschillend in de deelstaten "Bundesländer"
(lees meer op ons blog)
- De makelaars provisie
De hoogte van de makelaarsprovisie is per regio en object nogal verschillend) maar let op:
Bij sommige woningen is de provisie van de makelaar al in de koopprijs inbegrepen !
Bij de nieuwbouw van een woning betaalt u alleen kosten koper over de prijs van de kavel
- Notaris- en Grundbuchkosten 1,5%
- 5% overdrachtsbelasting (ook deze is nog al verschillend in de deelstaten "Bundesländer"
(lees meer op ons blog)
- De makelaars provisie
De hoogte van de makelaarsprovisie is per regio en object nogal verschillend) maar let op:
Bij sommige woningen is de provisie van de makelaar al in de koopprijs inbegrepen !
Bij de nieuwbouw van een woning betaalt u alleen kosten koper over de prijs van de kavel
Opmerking:
Mocht u interesse aan een van de door ons aangeboden huizen hebben klik op de button vragen over het object in de rechter kolom. Een bezichtiging is voor u geheel vrijblijvend.
Algemene voorwaarden:
Door een klik op de button"Bekijk de locatie van het object op Google maps " ziet u nooit de exacte locatie maar altijd alleen maar de locatie van de dichstbijzijnde plaats / stad
Voor het juiste adres klik in de rechter colom "Vragen over het object"
Alle aanbiedingen zijn onderhevig aan wijzigingen zonder voorafgaande kennisgeving en zijn gebaseerd op door de eigenaar verstrekte informatie; er kan dan ook geen enkele aansprakelijkheid worden aanvaard voor de juistheid en volledigheid ervan. Onder voorbehoud van voorafgaande verkoop of verhuur door de eigenaar.
Voor het juiste adres klik in de rechter colom "Vragen over het object"
Alle aanbiedingen zijn onderhevig aan wijzigingen zonder voorafgaande kennisgeving en zijn gebaseerd op door de eigenaar verstrekte informatie; er kan dan ook geen enkele aansprakelijkheid worden aanvaard voor de juistheid en volledigheid ervan. Onder voorbehoud van voorafgaande verkoop of verhuur door de eigenaar.
Lees meer over de mogelijke valkuilen bij de aankoop van een huis in Duitsland op onze blog
Boordevol informatie m.b.t. een mogelijke emigratie naar Duitsland en over de aankoop of nieuwbouw van een huis in Duitsland:
Meer weten over wonen in Duitsland? Link opent in nieuw venster
Boordevol informatie m.b.t. een mogelijke emigratie naar Duitsland en over de aankoop of nieuwbouw van een huis in Duitsland:
Meer weten over wonen in Duitsland? Link opent in nieuw venster
Uw contactpersoon
Sparkasse Emsland
Mijnheer Oliver Rohn
Zum Stadtgraben 1
49716 Meppen
Telefoon: 05931/151-7312
Fax: 05931/151-997327
Mijnheer Oliver Rohn
Zum Stadtgraben 1
49716 Meppen
Telefoon: 05931/151-7312
Fax: 05931/151-997327
Terug naar het overzicht






