Object 19 van 103
Volgende object
Vorige object
Terug naar het overzicht
Terug naar het overzicht
Volgende object
Vorige object
Terug naar het overzichtHerzlake: Käufer Provisionsfrei! Stilvoll wohnen in Herzlake – moderne Eigentumswohnung top ausgestattet
Object-Nr.: 8462
Snel contact
Opties
Opties
Kerngegevens
Adres:
49770 Herzlake
Emsland
Niedersachsen
Emsland
Niedersachsen
Prijs:
242.000 €
Woonoppervlak ca.:
72,18 m2.
Aantal kamers:
2
Verdere gegevens
Verdere gegevens
Woningtype:
Begane grond
Op provisiebasis:
nee
Bad:
Douche, Raam
Aantal slaapkamers:
1
Aantal badkamers:
1
Tuin:
ja
Toegankelijk zonder hindernissen:
ja
verhuurd:
ja
Aantal parkeerplaatsen:
1
Aantal parkeerplaatsen:
1 x Parkeerplaats buiten
Kwaliteit van de uitrusting:
Gedistingeerd
Bouwjaar:
2023
Te betrekken vanaf:
nach Vereinbarung
Vloerbedekking:
Vloertegels
Verwarmingssoort:
Warmtepomp
Uitvoerige beschrijving
Uitvoerige beschrijving
Objectbeschrijving:
Stilvoll wohnen in Herzlake – moderne 2-Zimmer-Wohnung mit Terrasse, Garten & Top-Ausstattung
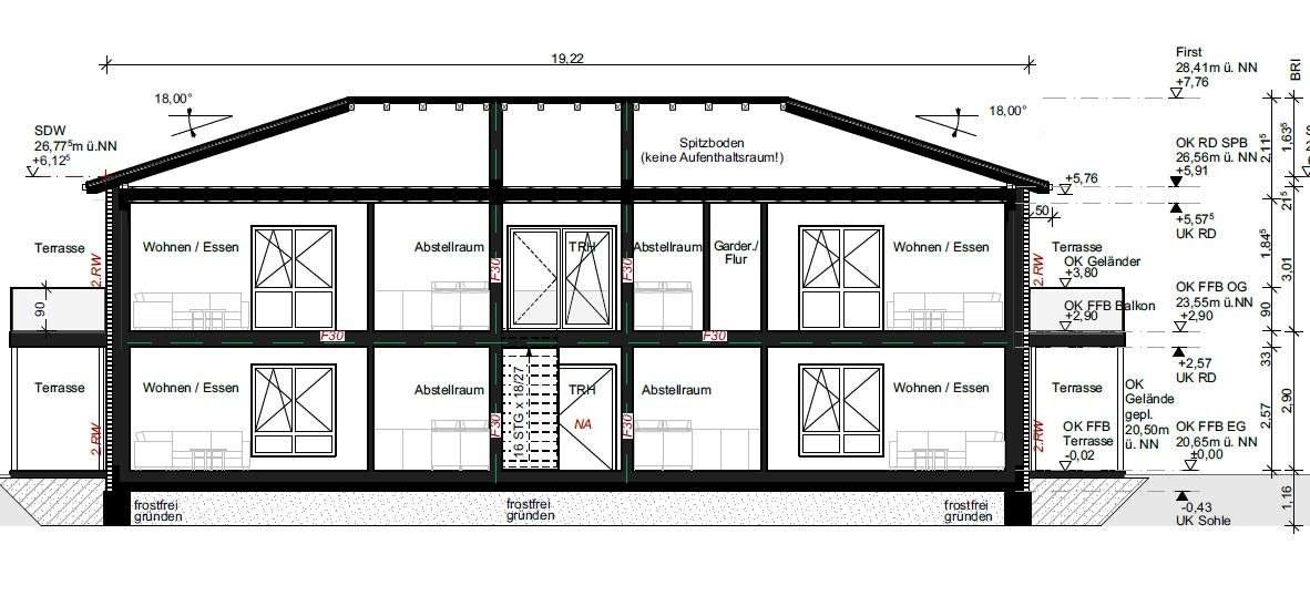
Diese moderne und äußerst gepflegte 2-Zimmer-Eigentumswohnung im Erdgeschoss eines im Jahr 2023 errichteten Wohnhauses vereint Komfort, Effizienz und zeitloses Design – ideal für Kapitalanleger oder Eigennutzer, die Wert auf Qualität legen. Auf ca. 72,18 m² bietet die Wohnung eine durchdachte Raumaufteilung, helle Wohnbereiche und eine hochwertige Ausstattung, die ein zeitgemäßes Wohngefühl schafft.
Bereits beim Betreten fällt die moderne Gestaltung ins Auge: Der großzügige Wohn- und Essbereich ist mit hochwertigen Vinyl-Designböden ausgestattet, die nicht nur edel wirken, sondern auch pflegeleicht und langlebig sind. Große Fensterflächen mit Isolierverglasung und elektrischen Rollläden sorgen für eine angenehme Lichtstimmung und ermöglichen gleichzeitig einen hohen Wohnkomfort.
Die offene Küche fügt sich harmonisch in den Wohnbereich ein und lässt viel Raum für individuelle Gestaltung. Von hier gelangen Sie direkt auf die überdachte Terrasse, die in den gepflegten, komplett mit einem Stabgitterzaun eingezäunten Gartenbereich übergeht. Die Gartenmitbenutzung bietet zusätzlichen Wohnwert – ideal für entspannte Stunden im Freien.
Die Wohnung ist derzeit für 10,00 €/m² Kaltmiete vermietet – eine solide, nachhaltige Kapitalanlage in einer stetig nachgefragten Wohnlage.
Diese moderne und äußerst gepflegte 2-Zimmer-Eigentumswohnung im Erdgeschoss eines im Jahr 2023 errichteten Wohnhauses vereint Komfort, Effizienz und zeitloses Design – ideal für Kapitalanleger oder Eigennutzer, die Wert auf Qualität legen. Auf ca. 72,18 m² bietet die Wohnung eine durchdachte Raumaufteilung, helle Wohnbereiche und eine hochwertige Ausstattung, die ein zeitgemäßes Wohngefühl schafft.
Bereits beim Betreten fällt die moderne Gestaltung ins Auge: Der großzügige Wohn- und Essbereich ist mit hochwertigen Vinyl-Designböden ausgestattet, die nicht nur edel wirken, sondern auch pflegeleicht und langlebig sind. Große Fensterflächen mit Isolierverglasung und elektrischen Rollläden sorgen für eine angenehme Lichtstimmung und ermöglichen gleichzeitig einen hohen Wohnkomfort.
Die offene Küche fügt sich harmonisch in den Wohnbereich ein und lässt viel Raum für individuelle Gestaltung. Von hier gelangen Sie direkt auf die überdachte Terrasse, die in den gepflegten, komplett mit einem Stabgitterzaun eingezäunten Gartenbereich übergeht. Die Gartenmitbenutzung bietet zusätzlichen Wohnwert – ideal für entspannte Stunden im Freien.
Die Wohnung ist derzeit für 10,00 €/m² Kaltmiete vermietet – eine solide, nachhaltige Kapitalanlage in einer stetig nachgefragten Wohnlage.
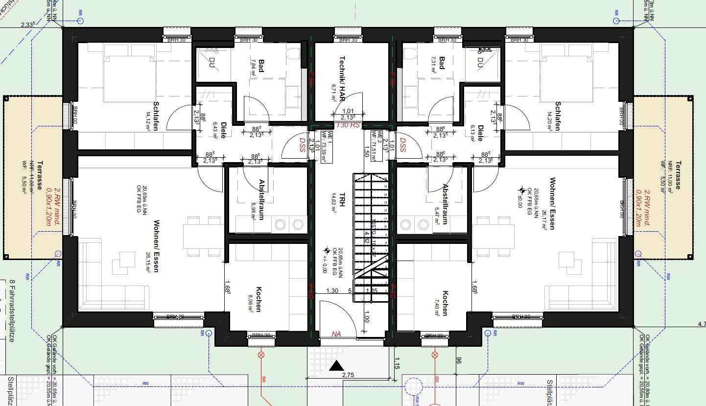
Indeling:
Ausstattung – modern, komfortabel und auf lange Lebensdauer ausgelegt
Diese Erdgeschosswohnung überzeugt durch eine hochwertige, zeitgemäße Ausstattung, die sowohl optisch als auch funktional höchsten Wohnansprüchen gerecht wird. Im gesamten Wohn- und Schlafbereich sind hochwertige Vinyl-Designböden verlegt, die eine warme, moderne Atmosphäre schaffen und gleichzeitig besonders pflegeleicht, strapazierfähig und langlebig sind – ideal für einen dauerhaften und komfortablen Wohnalltag. Die hellen Oberflächen und klaren Linien unterstreichen das zeitgemäße Wohnkonzept und sorgen für ein harmonisches Gesamtbild.
Das Badezimmer präsentiert sich in einem ebenso eleganten wie zeitlosen Stil: formschöne, moderne Wand- und Bodenfliesen sowie eine ebenerdige Dusche verleihen dem Raum ein edles Ambiente und erleichtern die tägliche Nutzung. Die großzügige Gestaltung und die hochwertige Ausstattung bieten ein Plus an Komfort und unterstützen ein barrierearmes Wohnen.
Für ein angenehmes Wohnklima sorgt die energieeffiziente Luftwärmepumpe, die in Kombination mit der komfortablen Fußbodenheizung ein gleichmäßiges Wärmebild erzeugt und gleichzeitig die laufenden Energiekosten niedrig hält. Alle Räume sind damit bestens für die Zukunft ausgestattet.
Die Wohnung verfügt über moderne Kunststofffenster mit Isolierverglasung, die hervorragende Dämmwerte bieten und durch elektrische Rollläden ergänzt werden – ideal für zusätzlichen Schallschutz, Sicherheit und ein bequemes Handling im Alltag.
Ein weiteres Highlight ist der direkte Zugang zur überdachten Terrasse, die den Wohnraum harmonisch erweitert und zu entspannten Stunden im Freien einlädt. Die angrenzende Gartenfläche, komplett mit einem stabilen Stabgitterzaun eingefriedet, steht zur Mitbenutzung bereit und steigert den Erholungswert der Wohnung erheblich.
Abgerundet wird die Ausstattung durch einen PKW-Stellplatz direkt vor der Haustür, der kurze Wege garantiert und den Wohnkomfort zusätzlich erhöht. Dank der vorliegenden Teilungserklärung und der klaren Strukturen innerhalb der Eigentümergemeinschaft lässt sich die Wohnung zudem optimal als Kapitalanlage oder zur Eigennutzung verwalten.
Diese Erdgeschosswohnung überzeugt durch eine hochwertige, zeitgemäße Ausstattung, die sowohl optisch als auch funktional höchsten Wohnansprüchen gerecht wird. Im gesamten Wohn- und Schlafbereich sind hochwertige Vinyl-Designböden verlegt, die eine warme, moderne Atmosphäre schaffen und gleichzeitig besonders pflegeleicht, strapazierfähig und langlebig sind – ideal für einen dauerhaften und komfortablen Wohnalltag. Die hellen Oberflächen und klaren Linien unterstreichen das zeitgemäße Wohnkonzept und sorgen für ein harmonisches Gesamtbild.
Das Badezimmer präsentiert sich in einem ebenso eleganten wie zeitlosen Stil: formschöne, moderne Wand- und Bodenfliesen sowie eine ebenerdige Dusche verleihen dem Raum ein edles Ambiente und erleichtern die tägliche Nutzung. Die großzügige Gestaltung und die hochwertige Ausstattung bieten ein Plus an Komfort und unterstützen ein barrierearmes Wohnen.
Für ein angenehmes Wohnklima sorgt die energieeffiziente Luftwärmepumpe, die in Kombination mit der komfortablen Fußbodenheizung ein gleichmäßiges Wärmebild erzeugt und gleichzeitig die laufenden Energiekosten niedrig hält. Alle Räume sind damit bestens für die Zukunft ausgestattet.
Die Wohnung verfügt über moderne Kunststofffenster mit Isolierverglasung, die hervorragende Dämmwerte bieten und durch elektrische Rollläden ergänzt werden – ideal für zusätzlichen Schallschutz, Sicherheit und ein bequemes Handling im Alltag.
Ein weiteres Highlight ist der direkte Zugang zur überdachten Terrasse, die den Wohnraum harmonisch erweitert und zu entspannten Stunden im Freien einlädt. Die angrenzende Gartenfläche, komplett mit einem stabilen Stabgitterzaun eingefriedet, steht zur Mitbenutzung bereit und steigert den Erholungswert der Wohnung erheblich.
Abgerundet wird die Ausstattung durch einen PKW-Stellplatz direkt vor der Haustür, der kurze Wege garantiert und den Wohnkomfort zusätzlich erhöht. Dank der vorliegenden Teilungserklärung und der klaren Strukturen innerhalb der Eigentümergemeinschaft lässt sich die Wohnung zudem optimal als Kapitalanlage oder zur Eigennutzung verwalten.
Ligging:
Herzlake – Wohnen im charmanten Erholungsort
Herzlake ist eine lebenswerte Gemeinde im Landkreis Emsland, die für ihre naturnahe Lage, ihre sehr gute Infrastruktur und einen hohen Freizeitwert bekannt ist. Der Ort bietet eine perfekte Mischung aus ländlicher Ruhe und moderner Wohnqualität. Dank zahlreicher Einkaufsmöglichkeiten, Ärzten, Restaurants, Kindergärten und Schulen ist der tägliche Bedarf problemlos fußläufig oder in wenigen Minuten erreichbar.
Geprägt von Wäldern, Flussläufen und weitläufigen Radwegen ist Herzlake besonders bei Naturliebhabern und Erholungssuchenden beliebt. Die Hase, die den Ort durchzieht, lädt zu Spaziergängen und Aktivitäten an der frischen Luft ein. Gleichzeitig profitieren Bewohner von einer verkehrsgünstigen Lage mit schnellen Anbindungen nach Haselünne, Löningen, Meppen oder Lingen.
Herzlake überzeugt als Wohnort durch ein starkes Gemeinschaftsgefühl, vielfältige Vereine und eine hohe Lebensqualität – ein Ort, an dem man sich schnell zuhause fühlt.
Herzlake ist eine lebenswerte Gemeinde im Landkreis Emsland, die für ihre naturnahe Lage, ihre sehr gute Infrastruktur und einen hohen Freizeitwert bekannt ist. Der Ort bietet eine perfekte Mischung aus ländlicher Ruhe und moderner Wohnqualität. Dank zahlreicher Einkaufsmöglichkeiten, Ärzten, Restaurants, Kindergärten und Schulen ist der tägliche Bedarf problemlos fußläufig oder in wenigen Minuten erreichbar.
Geprägt von Wäldern, Flussläufen und weitläufigen Radwegen ist Herzlake besonders bei Naturliebhabern und Erholungssuchenden beliebt. Die Hase, die den Ort durchzieht, lädt zu Spaziergängen und Aktivitäten an der frischen Luft ein. Gleichzeitig profitieren Bewohner von einer verkehrsgünstigen Lage mit schnellen Anbindungen nach Haselünne, Löningen, Meppen oder Lingen.
Herzlake überzeugt als Wohnort durch ein starkes Gemeinschaftsgefühl, vielfältige Vereine und eine hohe Lebensqualität – ein Ort, an dem man sich schnell zuhause fühlt.
Overige:
Wohnflächenaufteilung:
Erdgeschosswohnung:
Diele ca. 6,13 m²
Wohnzimmer ca. 26,17 m²
Offene Küche ca. 7,40 m²
Schlafen ca. 14,20 m²
Badezimmer ca. 7,31 m²
Abstell./HWR ca.5,47 m²
Terrasse anteilig ca.5,50 m²
Erdgeschosswohnung:
Diele ca. 6,13 m²
Wohnzimmer ca. 26,17 m²
Offene Küche ca. 7,40 m²
Schlafen ca. 14,20 m²
Badezimmer ca. 7,31 m²
Abstell./HWR ca.5,47 m²
Terrasse anteilig ca.5,50 m²
Provisie:
Bij de aankoop van een huis in Duitsland moet u rekening houden met in totaal +- 9,5 % bijkomende kosten zoals :
- Notaris- en Grundbuchkosten 1,5%
- 5% overdrachtsbelasting (ook deze is nog al verschillend in de deelstaten "Bundesländer"
(lees meer op ons blog)
- De makelaars provisie
De hoogte van de makelaarsprovisie is per regio en object nogal verschillend) maar let op:
Bij sommige woningen is de provisie van de makelaar al in de koopprijs inbegrepen !
Bij de nieuwbouw van een woning betaalt u alleen kosten koper over de prijs van de kavel
- Notaris- en Grundbuchkosten 1,5%
- 5% overdrachtsbelasting (ook deze is nog al verschillend in de deelstaten "Bundesländer"
(lees meer op ons blog)
- De makelaars provisie
De hoogte van de makelaarsprovisie is per regio en object nogal verschillend) maar let op:
Bij sommige woningen is de provisie van de makelaar al in de koopprijs inbegrepen !
Bij de nieuwbouw van een woning betaalt u alleen kosten koper over de prijs van de kavel
Opmerking:
Mocht u interesse aan een van de door ons aangeboden huizen hebben klik op de button vragen over het object in de rechter kolom. Een bezichtiging is voor u geheel vrijblijvend.
Algemene voorwaarden:
Door een klik op de button"Bekijk de locatie van het object op Google maps " ziet u nooit de exacte locatie maar altijd alleen maar de locatie van de dichstbijzijnde plaats / stad
Voor het juiste adres klik in de rechter colom "Vragen over het object"
Alle aanbiedingen zijn onderhevig aan wijzigingen zonder voorafgaande kennisgeving en zijn gebaseerd op door de eigenaar verstrekte informatie; er kan dan ook geen enkele aansprakelijkheid worden aanvaard voor de juistheid en volledigheid ervan. Onder voorbehoud van voorafgaande verkoop of verhuur door de eigenaar.
Voor het juiste adres klik in de rechter colom "Vragen over het object"
Alle aanbiedingen zijn onderhevig aan wijzigingen zonder voorafgaande kennisgeving en zijn gebaseerd op door de eigenaar verstrekte informatie; er kan dan ook geen enkele aansprakelijkheid worden aanvaard voor de juistheid en volledigheid ervan. Onder voorbehoud van voorafgaande verkoop of verhuur door de eigenaar.
Lees meer over de mogelijke valkuilen bij de aankoop van een huis in Duitsland op onze blog
Boordevol informatie m.b.t. een mogelijke emigratie naar Duitsland en over de aankoop of nieuwbouw van een huis in Duitsland:
Meer weten over wonen in Duitsland? Link opent in nieuw venster
Boordevol informatie m.b.t. een mogelijke emigratie naar Duitsland en over de aankoop of nieuwbouw van een huis in Duitsland:
Meer weten over wonen in Duitsland? Link opent in nieuw venster
Uw contactpersoon
Terug naar het overzicht











