Object 49 van 106
Volgende object
Vorige object
Terug naar het overzicht
Terug naar het overzicht
Volgende object
Vorige object
Terug naar het overzichtLingen: Smart Living Lingen Neubau-Eigentumswohnungen incl. Kellerraum
Object-Nr.: 11285-01.05
Snel contact
Links
Links
Opties
Opties
Kerngegevens
Adres:
49809 Lingen
Emsland
Niedersachsen
Emsland
Niedersachsen
Stadswijk:
Niedersachsen
Prijs:
212.336 €
Woonoppervlak ca.:
28,78 m2.
Aantal kamers:
1
Verdere gegevens
Verdere gegevens
Woningtype:
Begane grond
Op provisiebasis:
nee
Provisie:
prov.frei
Nuttig oppervlak.:
6 m2.
Lift:
ja
Bouwjaar:
2026
Te betrekken vanaf:
ab Fertigstellung
Toestand:
Nieuw te betrekken
Verwarmingssoort:
Alternatief
Type energiebewijs:
Dit gebouw valt niet onder de eisen van de GEG
Uitvoerige beschrijving
Uitvoerige beschrijving
Objectbeschrijving:
Im Kaufpreis ist Folgendes enthalten:
- Anteilige Fläche Gemeinschaftsbalkon ca. 2 m² = Ausweis im Exposé unter Balkonfläche
- Abstellraum pro Wohnung = ca. 6 m² im Keller
- Komplette Möblierung des Apartments
- Photovoltaikanlage mit Speicher
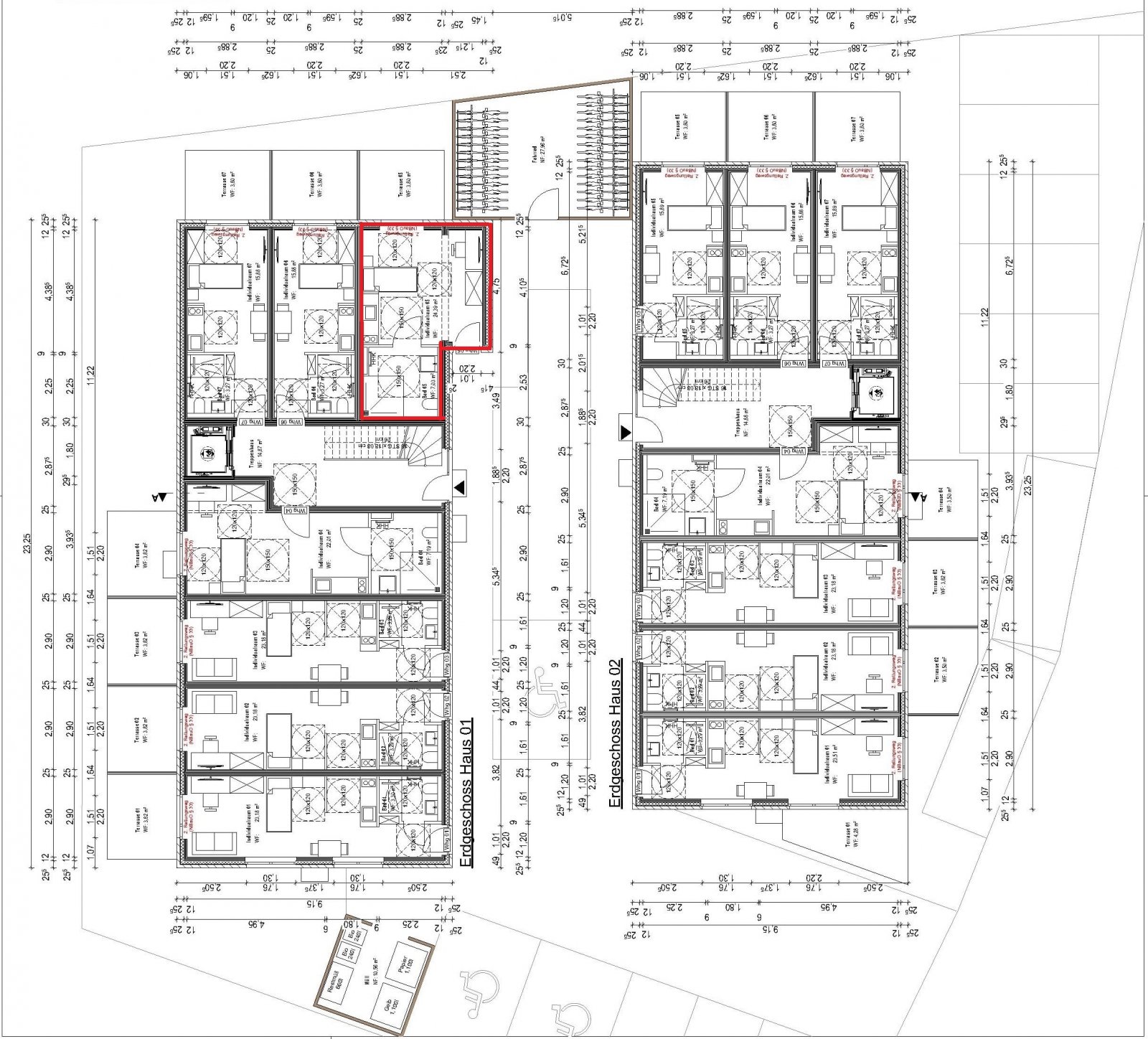
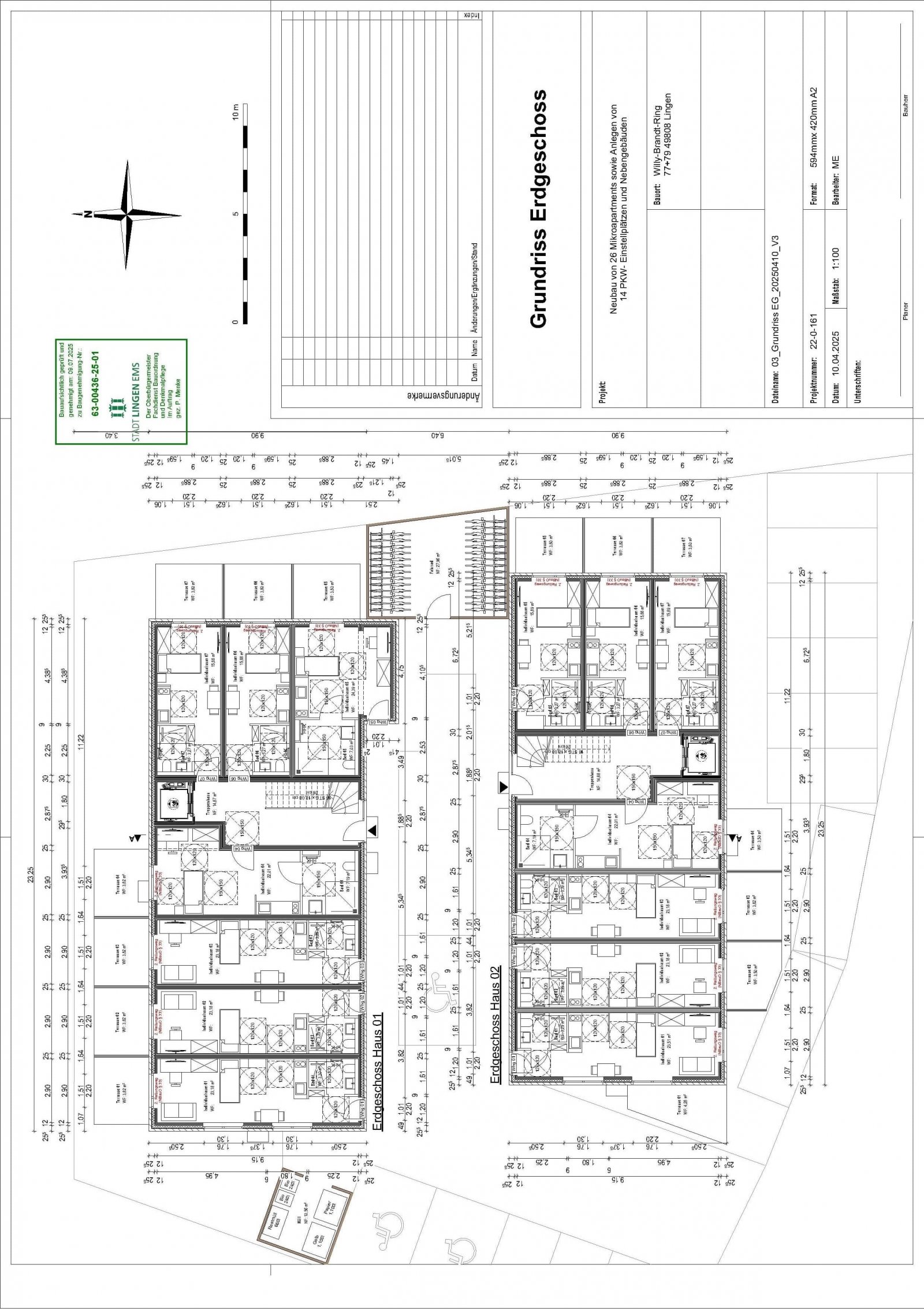
Inmitten der Stadt Lingen entstehen zwei moderne Apartmenthäuser mit jeweils 13 hochwertig ausgestatteten Wohneinheiten.
Das Projekt wird, in zentralster Lage, im energieeffizienten KfW-40-Standard mit QNG-Zertifizierung errichtet und vereint damit nachhaltige Bauweise, hervorragende Energieeffizienz und langfristige Wertstabilität – ideal für Kapitalanleger.
Die Apartmenthäuser verfügen über 1- Zimmer-Wohnungen mit intelligent geplanten Grundrissen. Hochwertige Ausstattungsdetails wie die komplette Möblierung, Infrarotheizung und großzügige Fensterflächen sorgen für eine moderne Wohnqualität.
Die Apartments bieten Wohnflächen inklusive der anteiligen Gemeinschaftsflächen sowie der Kellerräume von ca. 30,77 m² bis ca. 40,88 m².
Helle Klinkerfassaden mit anthrazitfarbenen Fenstern und Türen schaffen angenehme Kontraste in der weitgehenden homogenen Gestaltung.
Die Apartments werden in Holzmodulbauweise erstellt. Die Holzoptik wird sich auch im Inneren der Apartments wiederfinden. Dadurch wird nicht nur eine positive Ökobilanz garantiert, sondern auch ein angenehmes Raumklima.
Die Photovoltaikanlage inklusive Speicher sorgt gemeinsam mit den ausreichend dimensionierten Infrarotheizkörpern an den Decken und Wänden sowie einer dezentralen Lüftungsanlage für ein umweltfreundliches Wohnen.
Die tatsächliche Wirtschaftlichkeit aus der Kombination der Photovoltaikanlage und der Infrarotheizung ist abhängig von der Nutzung, der Eigenverbrauchsquote und der Strompreisentwicklung.
Die Wohneinheiten verfügen über einen Balkon oder einen Gartenanteil im Erdgeschoss.
Die Fertigstellung und der Erstbezug sind voraussichtlich für das Jahr 2026 geplant – eine ideale Gelegenheit für Kapitalanleger oder Eigennutzer, die ein nachhaltiges und komfortables Investment in bester Lage suchen.
Außenbereich:
Im Außenbereich können die Mieter einen zentralen Fahrradschuppen nutzen.
Auf dem Grundstück werden insgesamt 14 PKW-Stellplätze angelegt.
Ein PKW-Stellplatz kann gegen einen Aufpreis erworben werden.
Die Zufahrt erfolgt direkt vom Willy-Brandt-Ring.
Für die Fahrräder und die Abfallbehälter werden separate Nebengebäude beziehungsweise Abstellflächen geschaffen.
Early-Bird-Rabatt:
Bei einer verbindlichen Kaufzusage bis zum 30.04.2026 wird ein Rabatt von 2% auf den Wohnungskaufpreis gewährt.
Zinsgünstiger KfW-Kredit:
Dank des KfW-40- QNG-Standards profitieren Kapitalanleger von einem zinsgünstigen Darlehen der Kreditanstalt für Wiederaufbau von bis zu 150.000 € pro Wohneinheit. Weitere Informationen zur Förderfähigkeit sowie zur Antragstellung finden Sie in den Exposé-Unterlagen – gerne beraten wir Sie auch persönlich.
Die Förderprogramme der KfW unterliegen dem Vorbehalt der jeweils gültigen Bedingungen und Verfügbarkeit zum Zeitpunkt der Antragstellung.
Steuervorteile:
Profitieren Sie von außergewöhnlichen Steuervorteilen durch die Kombination aus degressiver AfA von bis zu 5 % und der Sonder-AfA gemäß § 7b EStG von weiteren
5 % jährlich. Dadurch sind in den ersten Jahren Abschreibungen von bis zu 10 % pro Jahr möglich – ein wesentlicher Faktor für Rendite und Liquidität.
Die steuerlichen Abschreibungsmöglichkeiten sind an gesetzliche Voraussetzungen geknüpft. Da die steuerlichen Auswirkungen von der persönlichen Situation abhängen, sollte vor dem Erwerb ein Gespräch mit einer Steuerberaterin oder Steuerberater stattfinden.
Auf einen Blick:
- Zentrale Lage
- Modernes Wohnquartier
- Innerstädtische und verkehrsgünstige Lage
- Holzmodulbauweise
- Effiziente Gestaltung der Grundrisse
- Verwendung von nachhaltigen Materialien und Rohstoffen
- Hohe Energieeffizienz KfW-QNG-40 Plus
- KfW Kredit über 150.000,00€ für jede Wohneinheit
- Komplettes Möblierungspaket
- Attraktive Steuervorteile
- Anteilige Fläche Gemeinschaftsbalkon ca. 2 m² = Ausweis im Exposé unter Balkonfläche
- Abstellraum pro Wohnung = ca. 6 m² im Keller
- Komplette Möblierung des Apartments
- Photovoltaikanlage mit Speicher
Inmitten der Stadt Lingen entstehen zwei moderne Apartmenthäuser mit jeweils 13 hochwertig ausgestatteten Wohneinheiten.
Das Projekt wird, in zentralster Lage, im energieeffizienten KfW-40-Standard mit QNG-Zertifizierung errichtet und vereint damit nachhaltige Bauweise, hervorragende Energieeffizienz und langfristige Wertstabilität – ideal für Kapitalanleger.
Die Apartmenthäuser verfügen über 1- Zimmer-Wohnungen mit intelligent geplanten Grundrissen. Hochwertige Ausstattungsdetails wie die komplette Möblierung, Infrarotheizung und großzügige Fensterflächen sorgen für eine moderne Wohnqualität.
Die Apartments bieten Wohnflächen inklusive der anteiligen Gemeinschaftsflächen sowie der Kellerräume von ca. 30,77 m² bis ca. 40,88 m².
Helle Klinkerfassaden mit anthrazitfarbenen Fenstern und Türen schaffen angenehme Kontraste in der weitgehenden homogenen Gestaltung.
Die Apartments werden in Holzmodulbauweise erstellt. Die Holzoptik wird sich auch im Inneren der Apartments wiederfinden. Dadurch wird nicht nur eine positive Ökobilanz garantiert, sondern auch ein angenehmes Raumklima.
Die Photovoltaikanlage inklusive Speicher sorgt gemeinsam mit den ausreichend dimensionierten Infrarotheizkörpern an den Decken und Wänden sowie einer dezentralen Lüftungsanlage für ein umweltfreundliches Wohnen.
Die tatsächliche Wirtschaftlichkeit aus der Kombination der Photovoltaikanlage und der Infrarotheizung ist abhängig von der Nutzung, der Eigenverbrauchsquote und der Strompreisentwicklung.
Die Wohneinheiten verfügen über einen Balkon oder einen Gartenanteil im Erdgeschoss.
Die Fertigstellung und der Erstbezug sind voraussichtlich für das Jahr 2026 geplant – eine ideale Gelegenheit für Kapitalanleger oder Eigennutzer, die ein nachhaltiges und komfortables Investment in bester Lage suchen.
Außenbereich:
Im Außenbereich können die Mieter einen zentralen Fahrradschuppen nutzen.
Auf dem Grundstück werden insgesamt 14 PKW-Stellplätze angelegt.
Ein PKW-Stellplatz kann gegen einen Aufpreis erworben werden.
Die Zufahrt erfolgt direkt vom Willy-Brandt-Ring.
Für die Fahrräder und die Abfallbehälter werden separate Nebengebäude beziehungsweise Abstellflächen geschaffen.
Early-Bird-Rabatt:
Bei einer verbindlichen Kaufzusage bis zum 30.04.2026 wird ein Rabatt von 2% auf den Wohnungskaufpreis gewährt.
Zinsgünstiger KfW-Kredit:
Dank des KfW-40- QNG-Standards profitieren Kapitalanleger von einem zinsgünstigen Darlehen der Kreditanstalt für Wiederaufbau von bis zu 150.000 € pro Wohneinheit. Weitere Informationen zur Förderfähigkeit sowie zur Antragstellung finden Sie in den Exposé-Unterlagen – gerne beraten wir Sie auch persönlich.
Die Förderprogramme der KfW unterliegen dem Vorbehalt der jeweils gültigen Bedingungen und Verfügbarkeit zum Zeitpunkt der Antragstellung.
Steuervorteile:
Profitieren Sie von außergewöhnlichen Steuervorteilen durch die Kombination aus degressiver AfA von bis zu 5 % und der Sonder-AfA gemäß § 7b EStG von weiteren
5 % jährlich. Dadurch sind in den ersten Jahren Abschreibungen von bis zu 10 % pro Jahr möglich – ein wesentlicher Faktor für Rendite und Liquidität.
Die steuerlichen Abschreibungsmöglichkeiten sind an gesetzliche Voraussetzungen geknüpft. Da die steuerlichen Auswirkungen von der persönlichen Situation abhängen, sollte vor dem Erwerb ein Gespräch mit einer Steuerberaterin oder Steuerberater stattfinden.
Auf einen Blick:
- Zentrale Lage
- Modernes Wohnquartier
- Innerstädtische und verkehrsgünstige Lage
- Holzmodulbauweise
- Effiziente Gestaltung der Grundrisse
- Verwendung von nachhaltigen Materialien und Rohstoffen
- Hohe Energieeffizienz KfW-QNG-40 Plus
- KfW Kredit über 150.000,00€ für jede Wohneinheit
- Komplettes Möblierungspaket
- Attraktive Steuervorteile
Indeling:
Individuelle Ausstattungsmerkmale:
- Effizienzhaus 40 mit QNG Plus
- Holzmodulbauweise
- Infrarotheizung
- Möblierung mit Einbauküche
- elektrische Rollläden
- SAT-TV
- Glasfaser
- gemeinschaftlicher Fahrradschuppen
- Stellplatz 5.000,00€ extra inklusive Infrastruktur Ladestation ohne Wallbox
- Effizienzhaus 40 mit QNG Plus
- Holzmodulbauweise
- Infrarotheizung
- Möblierung mit Einbauküche
- elektrische Rollläden
- SAT-TV
- Glasfaser
- gemeinschaftlicher Fahrradschuppen
- Stellplatz 5.000,00€ extra inklusive Infrastruktur Ladestation ohne Wallbox
Ligging:
Die Stadt Lingen ist die größte Stadt im Landkreis Emsland und besticht durch ihre exzellente Infrastruktur, das breite gefächerte Freizeit und Kulturangebot.
In unmittelbarer Nähe zum Objekt sind Einkaufsmöglichkeiten, Schulen, Kindergärten und medizinische Einrichtungen erreichbar. Die grüne Umgebung mit Rad- und Wanderwegen bietet zahlreiche Möglichkeiten zur Erholung und zu Aktivitäten in der Natur. Die Stadt verfügt über ein umfangreiches Bildungsangebot mit zahlreichen allgemeinbildenden Schulen und zwei Gymnasien. Die Berufsakademie Emsland bietet die Bachelorstudiengänge Betriebswirtschaftslehre, Wirtschaftsinformatik, Engineering technischer Systeme und Wirtschaftsingenieurwesen an. Die Hochschule Osnabrück hat in Lingen einen Standort mit den Schwerpunkten Management, Technik, Kommunikationsmanagement und Theaterpädagogik umfasst.
In unmittelbarer Nähe zum Objekt sind Einkaufsmöglichkeiten, Schulen, Kindergärten und medizinische Einrichtungen erreichbar. Die grüne Umgebung mit Rad- und Wanderwegen bietet zahlreiche Möglichkeiten zur Erholung und zu Aktivitäten in der Natur. Die Stadt verfügt über ein umfangreiches Bildungsangebot mit zahlreichen allgemeinbildenden Schulen und zwei Gymnasien. Die Berufsakademie Emsland bietet die Bachelorstudiengänge Betriebswirtschaftslehre, Wirtschaftsinformatik, Engineering technischer Systeme und Wirtschaftsingenieurwesen an. Die Hochschule Osnabrück hat in Lingen einen Standort mit den Schwerpunkten Management, Technik, Kommunikationsmanagement und Theaterpädagogik umfasst.
Overige:
VERBRAUCHERINFO
1. Maklerleistung ist der Nachweis der Gelegenheit zum Abschluss eines Vertrages bzw. Vermittlung eines Vertrages über eine Immobilie gegen die Courtagezahlungspflicht des Kunden
2. Unternehmer,Anschrift,Beschwerdeadressat
LBSi NordWest, Himmelreichallee 40, 48149 Münster, Tel:0251/973233-997, eMail:info@lbsi-nw.de
GF:Martin Englert, Volker Goldbeck
3. Es besteht ein Widerrufsrecht
4. Weitere Infos: verbraucherinfo.lbsi-nordwest.de
1. Maklerleistung ist der Nachweis der Gelegenheit zum Abschluss eines Vertrages bzw. Vermittlung eines Vertrages über eine Immobilie gegen die Courtagezahlungspflicht des Kunden
2. Unternehmer,Anschrift,Beschwerdeadressat
LBSi NordWest, Himmelreichallee 40, 48149 Münster, Tel:0251/973233-997, eMail:info@lbsi-nw.de
GF:Martin Englert, Volker Goldbeck
3. Es besteht ein Widerrufsrecht
4. Weitere Infos: verbraucherinfo.lbsi-nordwest.de
Opmerking:
Mocht u interesse aan een van de door ons aangeboden huizen hebben klik op de button vragen over het object in de rechter kolom. Een bezichtiging is voor u geheel vrijblijvend.
Algemene voorwaarden:
Door een klik op de button"Bekijk de locatie van het object op Google maps " ziet u nooit de exacte locatie maar altijd alleen maar de locatie van de dichstbijzijnde plaats / stad
Voor het juiste adres klik in de rechter colom "Vragen over het object"
Alle aanbiedingen zijn onderhevig aan wijzigingen zonder voorafgaande kennisgeving en zijn gebaseerd op door de eigenaar verstrekte informatie; er kan dan ook geen enkele aansprakelijkheid worden aanvaard voor de juistheid en volledigheid ervan. Onder voorbehoud van voorafgaande verkoop of verhuur door de eigenaar.
Voor het juiste adres klik in de rechter colom "Vragen over het object"
Alle aanbiedingen zijn onderhevig aan wijzigingen zonder voorafgaande kennisgeving en zijn gebaseerd op door de eigenaar verstrekte informatie; er kan dan ook geen enkele aansprakelijkheid worden aanvaard voor de juistheid en volledigheid ervan. Onder voorbehoud van voorafgaande verkoop of verhuur door de eigenaar.
Lees meer over de mogelijke valkuilen bij de aankoop van een huis in Duitsland op onze blog
Boordevol informatie m.b.t. een mogelijke emigratie naar Duitsland en over de aankoop of nieuwbouw van een huis in Duitsland:
Meer weten over wonen in Duitsland? Link opent in nieuw venster
Boordevol informatie m.b.t. een mogelijke emigratie naar Duitsland en over de aankoop of nieuwbouw van een huis in Duitsland:
Meer weten over wonen in Duitsland? Link opent in nieuw venster
Uw contactpersoon
Sparkasse Emsland
Mijnheer Markus Heymann
Zum Stadtgraben 1
49716 Meppen
Telefoon: 05931/151-7313
Fax: 05931/151-997327
Mijnheer Markus Heymann
Zum Stadtgraben 1
49716 Meppen
Telefoon: 05931/151-7313
Fax: 05931/151-997327
Terug naar het overzicht











