Object 102 van 106
Volgende object
Vorige object
Terug naar het overzicht
Terug naar het overzicht
Volgende object
Vorige object
Terug naar het overzichtEmlichheim: Energetisch top! Moderne Erdgeschosswohnung mit Garten
Object-Nr.: 225#TXSo2A
Snel contact
Links
Links
Opties
Opties
Kerngegevens
Adres:
49824 Emlichheim
Grafschaft Bentheim
Niedersachsen
Grafschaft Bentheim
Niedersachsen
Prijs:
259.000 €
Woonoppervlak ca.:
85,90 m2.
Aantal kamers:
2,5
Verdere gegevens
Verdere gegevens
Woningtype:
Begane grond
Etage:
1
Aantal etages:
2
Op provisiebasis:
ja
Provisie:
2,975% (inkl. MwSt.)
Keuken:
Inbouwkeuken
Bad:
Douche, Raam
Aantal slaapkamers:
2
Aantal badkamers:
1
Terras:
1
Tuin:
ja
Toegankelijk zonder hindernissen:
ja
Geschikt voor senioren:
ja
Aantal parkeerplaatsen:
2
Aantal parkeerplaatsen:
2 x Parkeerplaats buiten
Bouwjaar:
2013
Vloerbedekking:
Vloertegels, PVC
Toestand:
Goed onderhouden
Verwarming:
Afgelegen
Verwarmingssoort:
Verwarming op afstand
Type energiebewijs:
verbruik certificaat - geldig vanaf 13.12.2025 tot 12.12.2035
Energie-efficiëntieklasse:
A
Kengetal energieverbruik:
35 kWh/(m²*a)
Uitvoerige beschrijving
Uitvoerige beschrijving
Objectbeschrijving:
Effizientes Wohnen im KfW-55-EE-Haus
Diese moderne und großzügig geschnittene Erdgeschosswohnung befindet sich in einem gepflegten 4-Parteienhaus und überzeugt durch ihre hochwertige Ausstattung sowie den außergewöhnlich großen Außenbereich. Die Wohnung ist nicht vermietet und bietet auf ca. 86 m² Wohnfläche ein komfortables und zeitgemäßes Wohnambiente.
Der weitläufige Wohn-Ess-Kochbereich bildet das Herzstück der Wohnung und ermöglicht dank seiner offenen Gestaltung ein lichtdurchflutetes und harmonisches Wohngefühl. Ein gut geschnittene Schlafzimmer sowie ein zusätzliches Schlaf-/Mehrzweckzimmer bieten vielfältige Nutzungsmöglichkeiten – ideal für Familien, Homeoffice oder Gäste. Das moderne Badezimmer ist mit einer ebenerdigen Dusche ausgestattet und hochwertig gestaltet. Ein Hauswirtschaftsraum (HWR) ergänzt das Raumangebot sinnvoll.
Ein Highlight dieser Wohnung ist der weitläufige Gartenanteil von ca. 250 m², der Ihnen vielfältige Gestaltungsmöglichkeiten bietet. Die Terrasse verfügt über 5,60 m² anrechenbare Fläche und lädt zum Entspannen im Freien ein. Zur Wohnung gehören zudem zwei Stellplätze, davon ein Carport, dem ein praktischer Abstellraum direkt angrenzt.
Das KfW-55-Haus überzeugt durch energieeffiziente Bauweise. Die 3-fach verglasten Fenster, Rollladen sowie die für jede Wohneinheit separat angeschlossene Nahwärmeversorgung sorgen für hohen Wohnkomfort und niedrige Betriebskosten.
Das jährliche Hausgeld beläuft sich derzeit auf ca. EUR 350.
Diese Wohnung eignet sich ideal für Eigennutzer wie auch Kapitalanleger, die Wert auf Qualität, Effizienz und ein ansprechendes Wohnumfeld legen.
Gartenfläche: 250.0 m² •
Diese moderne und großzügig geschnittene Erdgeschosswohnung befindet sich in einem gepflegten 4-Parteienhaus und überzeugt durch ihre hochwertige Ausstattung sowie den außergewöhnlich großen Außenbereich. Die Wohnung ist nicht vermietet und bietet auf ca. 86 m² Wohnfläche ein komfortables und zeitgemäßes Wohnambiente.
Der weitläufige Wohn-Ess-Kochbereich bildet das Herzstück der Wohnung und ermöglicht dank seiner offenen Gestaltung ein lichtdurchflutetes und harmonisches Wohngefühl. Ein gut geschnittene Schlafzimmer sowie ein zusätzliches Schlaf-/Mehrzweckzimmer bieten vielfältige Nutzungsmöglichkeiten – ideal für Familien, Homeoffice oder Gäste. Das moderne Badezimmer ist mit einer ebenerdigen Dusche ausgestattet und hochwertig gestaltet. Ein Hauswirtschaftsraum (HWR) ergänzt das Raumangebot sinnvoll.
Ein Highlight dieser Wohnung ist der weitläufige Gartenanteil von ca. 250 m², der Ihnen vielfältige Gestaltungsmöglichkeiten bietet. Die Terrasse verfügt über 5,60 m² anrechenbare Fläche und lädt zum Entspannen im Freien ein. Zur Wohnung gehören zudem zwei Stellplätze, davon ein Carport, dem ein praktischer Abstellraum direkt angrenzt.
Das KfW-55-Haus überzeugt durch energieeffiziente Bauweise. Die 3-fach verglasten Fenster, Rollladen sowie die für jede Wohneinheit separat angeschlossene Nahwärmeversorgung sorgen für hohen Wohnkomfort und niedrige Betriebskosten.
Das jährliche Hausgeld beläuft sich derzeit auf ca. EUR 350.
Diese Wohnung eignet sich ideal für Eigennutzer wie auch Kapitalanleger, die Wert auf Qualität, Effizienz und ein ansprechendes Wohnumfeld legen.
Gartenfläche: 250.0 m² •
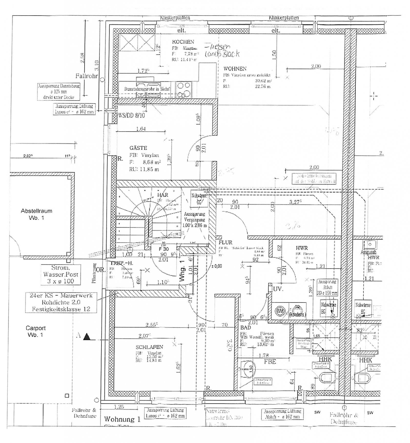
Indeling:
Wohnen/Küche: ca. 37,70 qm
Schlafen: ca. 13,50 qm
Gäste: ca. 8,90 qm
Bad: ca. 9,10 qm
HWR: ca. 6,00 qm
Flur: ca. 5,10 qm
Terrasse: ca. 5,60 qm anrechenbare Fläche
Weitere Informationen erhalten Sie gerne auf Anfrage.
Die in diesem Exposé enthaltenen Angaben beruhen auf Informationen des Eigentümers und dienen ausschließlich der unverbindlichen Vorabinformation. Für die Richtigkeit und Vollständigkeit wird keine Haftung übernommen. Irrtum und Zwischenverkauf vorbehalten.
Schlafen: ca. 13,50 qm
Gäste: ca. 8,90 qm
Bad: ca. 9,10 qm
HWR: ca. 6,00 qm
Flur: ca. 5,10 qm
Terrasse: ca. 5,60 qm anrechenbare Fläche
Weitere Informationen erhalten Sie gerne auf Anfrage.
Die in diesem Exposé enthaltenen Angaben beruhen auf Informationen des Eigentümers und dienen ausschließlich der unverbindlichen Vorabinformation. Für die Richtigkeit und Vollständigkeit wird keine Haftung übernommen. Irrtum und Zwischenverkauf vorbehalten.
Ligging:
Die Immobilie befindet sich in der ruhigen Straße aber dennoch zentralen Lage in Emlichheim, einer attraktiven Gemeinde im niedersächsischen Landkreis Grafschaft Bentheim. Die Straße liegt in einem überwiegend gepflegten Wohngebiet mit Einfamilien- und Reihenhäusern, das durch geringe Verkehrsdichte und eine angenehme Nachbarschaft besticht.
Emlichheim selbst liegt direkt an der deutsch-niederländischen Grenze und bietet damit eine besonders verkehrsgünstige Lage für Pendler sowie kurze Wege zu Einkaufsmöglichkeiten, Schulen und Kindergärten. Das Ortszentrum ist in wenigen Minuten erreichbar und bietet alle wichtigen Versorgungs- und Freizeiteinrichtungen, darunter Supermärkte, Apotheken, Banken, Cafés und Restaurants.
Die Umgebung zeichnet sich durch eine attraktive Naturlandschaft aus: Flüsse wie die Vechte, Kanäle und weitläufige Grünflächen laden zu Spaziergängen, Radtouren oder Outdoor-Aktivitäten ein. Auch Sport- und Freizeitvereine sind im Ort gut vertreten.
Verkehrstechnisch ist Emlichheim gut angebunden: Neben regionalen Buslinien ist die B403 nur wenige Minuten entfernt, wodurch umliegende Städte wie Nordhorn, Lingen oder die niederländische Grenze schnell erreichbar sind. Die ruhige, grüne Lage in Kombination mit der guten Infrastruktur macht die Adresse ideal für Familien, Paare oder Berufspendler, die Wohnen mit hoher Lebensqualität suchen.
Emlichheim selbst liegt direkt an der deutsch-niederländischen Grenze und bietet damit eine besonders verkehrsgünstige Lage für Pendler sowie kurze Wege zu Einkaufsmöglichkeiten, Schulen und Kindergärten. Das Ortszentrum ist in wenigen Minuten erreichbar und bietet alle wichtigen Versorgungs- und Freizeiteinrichtungen, darunter Supermärkte, Apotheken, Banken, Cafés und Restaurants.
Die Umgebung zeichnet sich durch eine attraktive Naturlandschaft aus: Flüsse wie die Vechte, Kanäle und weitläufige Grünflächen laden zu Spaziergängen, Radtouren oder Outdoor-Aktivitäten ein. Auch Sport- und Freizeitvereine sind im Ort gut vertreten.
Verkehrstechnisch ist Emlichheim gut angebunden: Neben regionalen Buslinien ist die B403 nur wenige Minuten entfernt, wodurch umliegende Städte wie Nordhorn, Lingen oder die niederländische Grenze schnell erreichbar sind. Die ruhige, grüne Lage in Kombination mit der guten Infrastruktur macht die Adresse ideal für Familien, Paare oder Berufspendler, die Wohnen mit hoher Lebensqualität suchen.
Provisie:
Provisionsteilung
Opmerking:
Mocht u interesse aan een van de door ons aangeboden huizen hebben klik op de button vragen over het object in de rechter kolom. Een bezichtiging is voor u geheel vrijblijvend.
Algemene voorwaarden:
Door een klik op de button"Bekijk de locatie van het object op Google maps " ziet u nooit de exacte locatie maar altijd alleen maar de locatie van de dichstbijzijnde plaats / stad
Voor het juiste adres klik in de rechter colom "Vragen over het object"
Alle aanbiedingen zijn onderhevig aan wijzigingen zonder voorafgaande kennisgeving en zijn gebaseerd op door de eigenaar verstrekte informatie; er kan dan ook geen enkele aansprakelijkheid worden aanvaard voor de juistheid en volledigheid ervan. Onder voorbehoud van voorafgaande verkoop of verhuur door de eigenaar.
Voor het juiste adres klik in de rechter colom "Vragen over het object"
Alle aanbiedingen zijn onderhevig aan wijzigingen zonder voorafgaande kennisgeving en zijn gebaseerd op door de eigenaar verstrekte informatie; er kan dan ook geen enkele aansprakelijkheid worden aanvaard voor de juistheid en volledigheid ervan. Onder voorbehoud van voorafgaande verkoop of verhuur door de eigenaar.
Lees meer over de mogelijke valkuilen bij de aankoop van een huis in Duitsland op onze blog
Boordevol informatie m.b.t. een mogelijke emigratie naar Duitsland en over de aankoop of nieuwbouw van een huis in Duitsland:
Meer weten over wonen in Duitsland? Link opent in nieuw venster
Boordevol informatie m.b.t. een mogelijke emigratie naar Duitsland en over de aankoop of nieuwbouw van een huis in Duitsland:
Meer weten over wonen in Duitsland? Link opent in nieuw venster
Uw contactpersoon
Raiffeisenbank Ems-Vechte eG
Mijnheer Bernd Sieve
Am Markt 5
49751 Sögel
Mijnheer Bernd Sieve
Am Markt 5
49751 Sögel
Terug naar het overzicht






















