Object 203 van 382
Volgende object
Vorige object
Terug naar het overzicht
Terug naar het overzicht
Volgende object
Vorige object
Terug naar het overzichtHaren: Gepflegtes Einfamilienhaus in Sackgassenlage von Haren zum Kauf
Object-Nr.: 251068
Snel contact
Opties
Opties
Kerngegevens
Adres:
49733 Haren
Emsland
Niedersachsen
Emsland
Niedersachsen
Stadswijk:
Niedersachsen
Prijs:
299.000 €
Woonoppervlak ca.:
165 m2.
Grondstuk:
724 m2.
Aantal kamers:
6
Verdere gegevens
Verdere gegevens
Woningtype:
Eengezinswoning
Provisie:
3,57% inkl. der gesetzlichen MwSt.
Keuken:
Inbouwkeuken
Aantal slaapkamers:
4
Aantal badkamers:
3
Terras:
1
Galerij:
1
Gastentoilet:
ja
Zolder:
ja
Kelder:
deels onderkelderd
Kwaliteit van de uitrusting:
Normaal
Bouwjaar:
1976
Vloerbedekking:
Vloertegels, Parketvloer, Laminaat
Toestand:
Goed onderhouden
Verwarmingssoort:
Gas
Type energiebewijs:
certificaat vraag - vervaldatum 16.10.2035
Energie-efficiëntieklasse:
F
Behoefte eindenergie:
192 kWh/(m²*a)
Bouwjaar volgens energiecertificatie:
1976
Uitvoerige beschrijving
Uitvoerige beschrijving
Objectbeschrijving:
Dieses großzügige Einfamilienhaus in Haren vereint durchdachte Architektur mit vielseitigen Nutzungsmöglichkeiten und schafft damit ideale Voraussetzungen für komfortables Wohnen – sowohl für Familien als auch für Mehrgenerationenkonzepte.
Bereits beim Betreten des Erdgeschosses beeindruckt der großzügige Wohn- und Essbereich, der sich über zwei Ebenen erstreckt und durch seine Offenheit ein besonderes Raumgefühl vermittelt. Große Fensterflächen sorgen für viel Tageslicht und bieten einen herrlichen Blick in den Garten. Von hier aus gelangen Sie direkt auf die Terrasse, die zu entspannten Stunden im Freien einlädt. Die angrenzende Küche mit praktischem Hauswirtschaftsraum überzeugt durch kurze Wege und viel Stauraum.
Für Eltern bietet das Erdgeschoss ein komfortables Schlafzimmer mit eigenem Bad en Suite, das Privatsphäre und Komfort vereint. Zwei weitere Kinderzimmer verfügen über ein eigenes Badezimmer, sodass auch für die jüngeren Familienmitglieder genügend Raum und Rückzugsmöglichkeiten vorhanden sind. Ergänzt wird die Ebene durch einen Teilkeller, der zusätzlichen Stauraum für Vorräte, Waschküche und Werkraum bereithält.
Das Obergeschoss erweitert die Wohnfläche um eine flexible Einheit, die sich hervorragend als separate Wohnung nutzen lässt – ideal für erwachsene Kinder, Angehörige oder auch zur Vermietung. Alternativ kann es problemlos in die eigene Wohnnutzung integriert werden. Hier erwarten Sie ein gemütlicher Wohn- und Essbereich mit Zugang zum Balkon, ein modernes Badezimmer, eine kompakte Küche sowie ein großes Schlafzimmer. Diese Aufteilung bietet viele Gestaltungsmöglichkeiten und macht das Haus besonders zukunftssicher.
Abgerundet wird die Immobilie durch eine Garage und einen Carport, die ausreichend Platz für Fahrzeuge, Fahrräder oder Gartengeräte bieten.
Dank der gelungenen Kombination aus großzügigem Raumangebot, praktischen Nebenflächen und flexibler Nutzung ist dieses Einfamilienhaus ein echtes Zuhause mit Perspektive. Ob als klassisches Familienhaus, Mehrgenerationenlösung oder mit teilweiser Vermietung – hier eröffnen sich zahlreiche Möglichkeiten für individuelle Wohnkonzepte.
Der Energieausweis befindet sich in Vorbereitung und kann bei der Besichtigung eingesehen werden.
Bereits beim Betreten des Erdgeschosses beeindruckt der großzügige Wohn- und Essbereich, der sich über zwei Ebenen erstreckt und durch seine Offenheit ein besonderes Raumgefühl vermittelt. Große Fensterflächen sorgen für viel Tageslicht und bieten einen herrlichen Blick in den Garten. Von hier aus gelangen Sie direkt auf die Terrasse, die zu entspannten Stunden im Freien einlädt. Die angrenzende Küche mit praktischem Hauswirtschaftsraum überzeugt durch kurze Wege und viel Stauraum.
Für Eltern bietet das Erdgeschoss ein komfortables Schlafzimmer mit eigenem Bad en Suite, das Privatsphäre und Komfort vereint. Zwei weitere Kinderzimmer verfügen über ein eigenes Badezimmer, sodass auch für die jüngeren Familienmitglieder genügend Raum und Rückzugsmöglichkeiten vorhanden sind. Ergänzt wird die Ebene durch einen Teilkeller, der zusätzlichen Stauraum für Vorräte, Waschküche und Werkraum bereithält.
Das Obergeschoss erweitert die Wohnfläche um eine flexible Einheit, die sich hervorragend als separate Wohnung nutzen lässt – ideal für erwachsene Kinder, Angehörige oder auch zur Vermietung. Alternativ kann es problemlos in die eigene Wohnnutzung integriert werden. Hier erwarten Sie ein gemütlicher Wohn- und Essbereich mit Zugang zum Balkon, ein modernes Badezimmer, eine kompakte Küche sowie ein großes Schlafzimmer. Diese Aufteilung bietet viele Gestaltungsmöglichkeiten und macht das Haus besonders zukunftssicher.
Abgerundet wird die Immobilie durch eine Garage und einen Carport, die ausreichend Platz für Fahrzeuge, Fahrräder oder Gartengeräte bieten.
Dank der gelungenen Kombination aus großzügigem Raumangebot, praktischen Nebenflächen und flexibler Nutzung ist dieses Einfamilienhaus ein echtes Zuhause mit Perspektive. Ob als klassisches Familienhaus, Mehrgenerationenlösung oder mit teilweiser Vermietung – hier eröffnen sich zahlreiche Möglichkeiten für individuelle Wohnkonzepte.
Der Energieausweis befindet sich in Vorbereitung und kann bei der Besichtigung eingesehen werden.
Indeling:
Kabel Sat TV •
Ligging:
Dieses Einfamilienhaus befindet sich in einer zentralen und zugleich ruhigen Wohnlage von Altharen. Die Umgebung ist geprägt von Einfamilienhäusern und kleinen Nebenstraßen, die überwiegend von Anwohnern genutzt werden und damit nur wenig Durchgangsverkehr aufweisen. In fußläufiger Entfernung liegen verschiedene Einrichtungen des täglichen Bedarfs: Supermärkte, Bäckereien, Ärzte und Apotheken sind schnell erreichbar, ebenso wie Cafés und kleinere Geschäfte in der Harener Innenstadt. Schulen und Kindergärten befinden sich ebenfalls in der näheren Umgebung, was die Lage besonders für Familien attraktiv macht.
Haren bietet zudem vielfältige Möglichkeiten zur Erholung. Spazier- und Radwege entlang der Ems oder den umliegenden Kanälen laden zu Aktivitäten im Grünen ein, während städtische Angebote wie Gastronomie und Kultur für Abwechslung sorgen. Die Verkehrsanbindung ist sehr gut: Über die nahegelegene Autobahn A31 sowie die Bundesstraßen B70 und B408 ist die Stadt schnell an das regionale und überregionale Straßennetz angeschlossen. Der Bahnhof Haren (Ems) verbindet die Stadt zudem mit der Emslandstrecke Richtung Münster und Emden. Auch innerstädtisch bestehen Busverbindungen, während die kompakte Stadtstruktur viele Wege zu Fuß oder mit dem Fahrrad ermöglicht.
Insgesamt bietet die Lage eine ausgewogene Kombination aus Ruhe und guter Erreichbarkeit. Das Haus liegt in einem gewachsenen Wohngebiet, das durch kurze Wege zu Versorgungseinrichtungen und die Nähe zur Natur überzeugt, während gleichzeitig eine solide Verkehrsanbindung an größere Städte und das Umland gewährleistet ist.
Haren bietet zudem vielfältige Möglichkeiten zur Erholung. Spazier- und Radwege entlang der Ems oder den umliegenden Kanälen laden zu Aktivitäten im Grünen ein, während städtische Angebote wie Gastronomie und Kultur für Abwechslung sorgen. Die Verkehrsanbindung ist sehr gut: Über die nahegelegene Autobahn A31 sowie die Bundesstraßen B70 und B408 ist die Stadt schnell an das regionale und überregionale Straßennetz angeschlossen. Der Bahnhof Haren (Ems) verbindet die Stadt zudem mit der Emslandstrecke Richtung Münster und Emden. Auch innerstädtisch bestehen Busverbindungen, während die kompakte Stadtstruktur viele Wege zu Fuß oder mit dem Fahrrad ermöglicht.
Insgesamt bietet die Lage eine ausgewogene Kombination aus Ruhe und guter Erreichbarkeit. Das Haus liegt in einem gewachsenen Wohngebiet, das durch kurze Wege zu Versorgungseinrichtungen und die Nähe zur Natur überzeugt, während gleichzeitig eine solide Verkehrsanbindung an größere Städte und das Umland gewährleistet ist.
Overige:
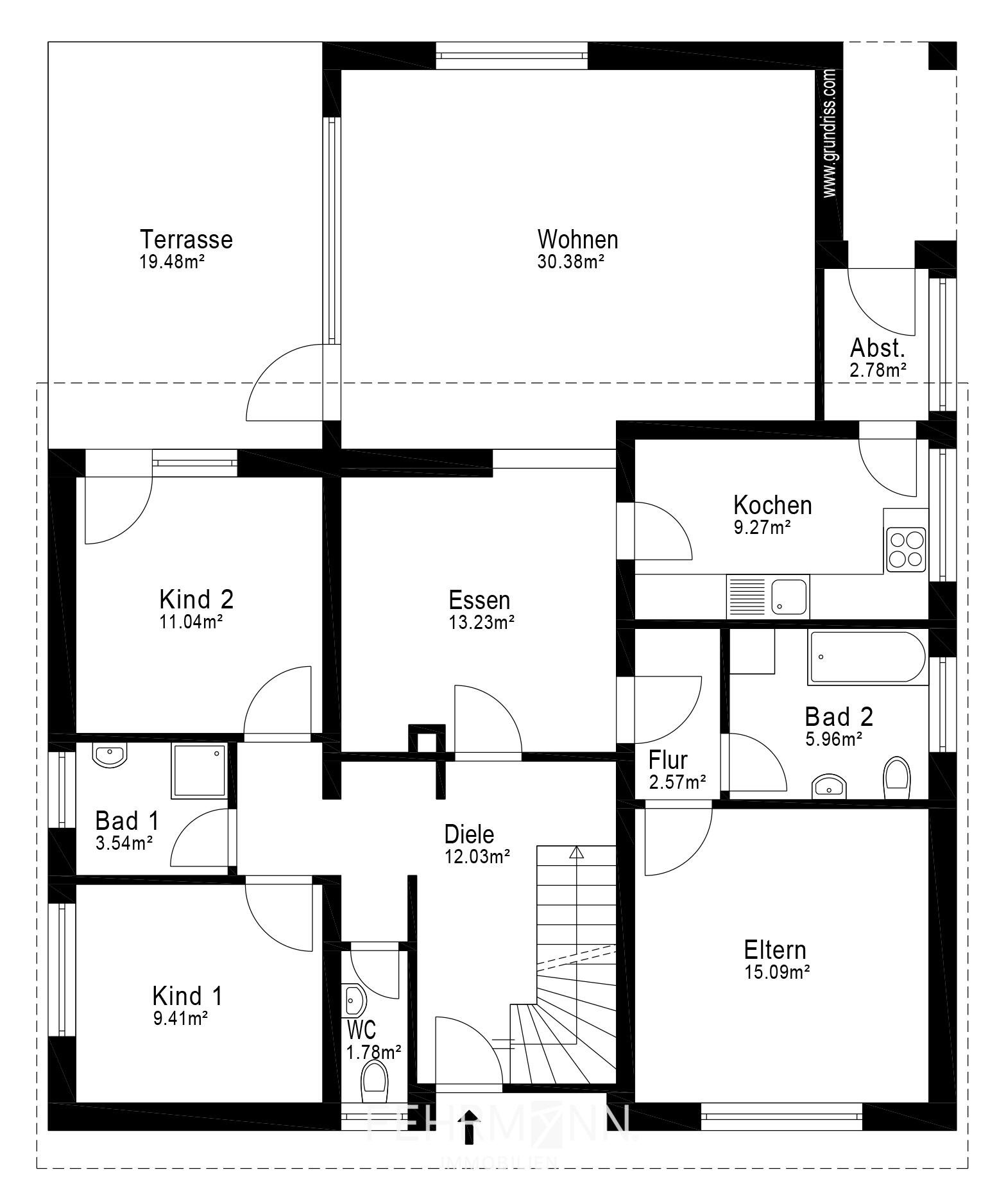
Erdgeschoss:
Wohnen: rd. 30,38 qm
Essen: rd. 13,23 qm
Kochen: rd. 9,27 qm
Diele: rd. 12,03 qm
WC: rd. 1,78 qm
Flur: rd. 2,57 qm
Eltern: rd. 15,09 qm
Kind 1: rd. 9,41 qm
Kind 2: rd. 11,04 qm
Bad 1: rd. 3,54 qm
Bad 2: rd. 5,96 qm
Terrasse: rd. 4,87 qm
––––––––––––––––––––––
Gesamt: rd. 119,17 qm
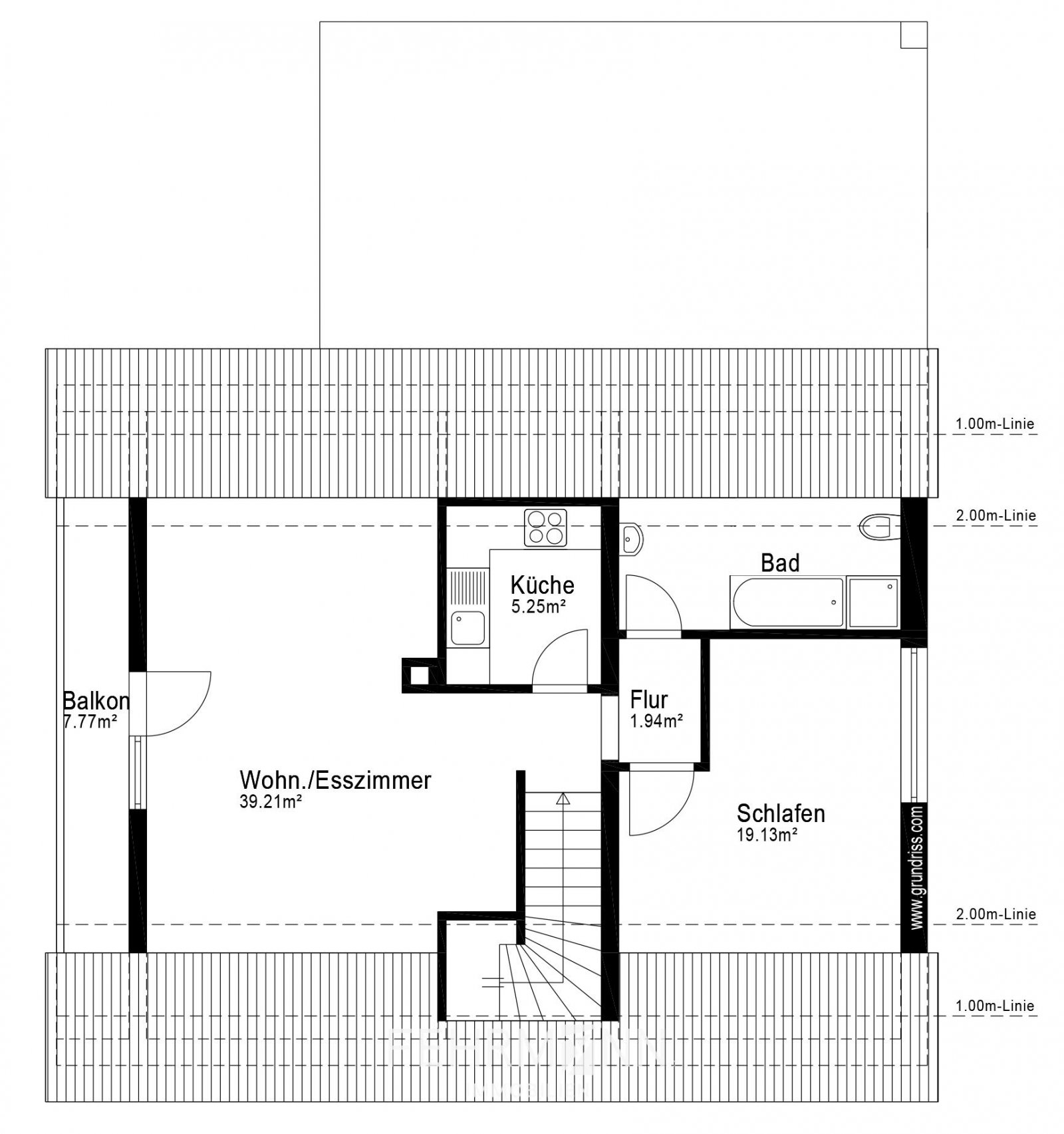
Dachgeschoss:
Wohn- u. Esszimmer: rd. 31,65 qm
Schlafen: rd. 15,46 qm
Bad: rd. 8,02 qm
Küche: rd. 4,95 qm
Flur: rd. 1,94 qm
Balkon: rd. 1,94 qm
––––––––––––––––––––––
Gesamt: rd. 63,96 qm
Wohnflächenberechnung nach WoFlV, laut der Unterlagen des Auftraggebers.
Wohnen: rd. 30,38 qm
Essen: rd. 13,23 qm
Kochen: rd. 9,27 qm
Diele: rd. 12,03 qm
WC: rd. 1,78 qm
Flur: rd. 2,57 qm
Eltern: rd. 15,09 qm
Kind 1: rd. 9,41 qm
Kind 2: rd. 11,04 qm
Bad 1: rd. 3,54 qm
Bad 2: rd. 5,96 qm
Terrasse: rd. 4,87 qm
––––––––––––––––––––––
Gesamt: rd. 119,17 qm
Dachgeschoss:
Wohn- u. Esszimmer: rd. 31,65 qm
Schlafen: rd. 15,46 qm
Bad: rd. 8,02 qm
Küche: rd. 4,95 qm
Flur: rd. 1,94 qm
Balkon: rd. 1,94 qm
––––––––––––––––––––––
Gesamt: rd. 63,96 qm
Wohnflächenberechnung nach WoFlV, laut der Unterlagen des Auftraggebers.
Opmerking:
Mocht u interesse aan een van de door ons aangeboden huizen hebben klik op de button vragen over het object in de rechter kolom. Een bezichtiging is voor u geheel vrijblijvend.
Algemene voorwaarden:
Door een klik op de button"Bekijk de locatie van het object op Google maps " ziet u nooit de exacte locatie maar altijd alleen maar de locatie van de dichstbijzijnde plaats / stad
Voor het juiste adres klik in de rechter colom "Vragen over het object"
Alle aanbiedingen zijn onderhevig aan wijzigingen zonder voorafgaande kennisgeving en zijn gebaseerd op door de eigenaar verstrekte informatie; er kan dan ook geen enkele aansprakelijkheid worden aanvaard voor de juistheid en volledigheid ervan. Onder voorbehoud van voorafgaande verkoop of verhuur door de eigenaar.
Voor het juiste adres klik in de rechter colom "Vragen over het object"
Alle aanbiedingen zijn onderhevig aan wijzigingen zonder voorafgaande kennisgeving en zijn gebaseerd op door de eigenaar verstrekte informatie; er kan dan ook geen enkele aansprakelijkheid worden aanvaard voor de juistheid en volledigheid ervan. Onder voorbehoud van voorafgaande verkoop of verhuur door de eigenaar.
Lees meer over de mogelijke valkuilen bij de aankoop van een huis in Duitsland op onze blog
Boordevol informatie m.b.t. een mogelijke emigratie naar Duitsland en over de aankoop of nieuwbouw van een huis in Duitsland:
Meer weten over wonen in Duitsland? Link opent in nieuw venster
Boordevol informatie m.b.t. een mogelijke emigratie naar Duitsland en over de aankoop of nieuwbouw van een huis in Duitsland:
Meer weten over wonen in Duitsland? Link opent in nieuw venster
Uw contactpersoon
FEHRMANN Immobilienvermittlungs GmbH & Co. KG
Firma Julian Fehrmann
Boschstr. 15
49733 Haren (Ems)
Telefoon: 004959325009550
Firma Julian Fehrmann
Boschstr. 15
49733 Haren (Ems)
Telefoon: 004959325009550
Terug naar het overzicht









































