Object 7 van 67
Volgende object
Vorige object
Terug naar het overzicht
Terug naar het overzicht
Volgende object
Vorige object
Terug naar het overzichtNordhorn: Denkmal trifft Vision – einzigartige Kirche in Nordhorn mit vielfältigem Potenzial
Object-Nr.: 9101
Snel contact
Opties
Opties
Kerngegevens
Adres:
48529 Nordhorn
Grafschaft Bentheim
Niedersachsen
Grafschaft Bentheim
Niedersachsen
Stadswijk:
Niedersachsen
Objecttype:
Speciaal object
Totaal oppervlakte:
1.044 m2.
Prijs:
950.000 €
Beschikbaar vanaf:
nach Vereinbarung
Verdere gegevens
Verdere gegevens
Grondstuk:
4.770 m2.
Op provisiebasis:
ja
Provisie:
5,95 %
Bouwjaar:
1950
Aantal etages:
2
Aantal parkeerplaatsen:
23
Object onder monumentenzorg:
ja
Kelder:
ja
Toestand:
Goed onderhouden
Type energiebewijs:
Dit gebouw valt niet onder de eisen van de GEG
Uitvoerige beschrijving
Uitvoerige beschrijving
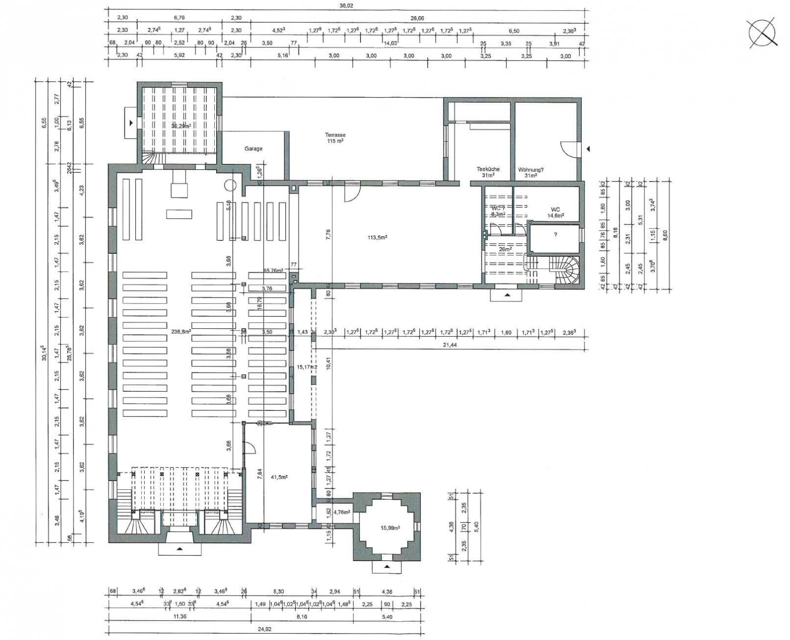
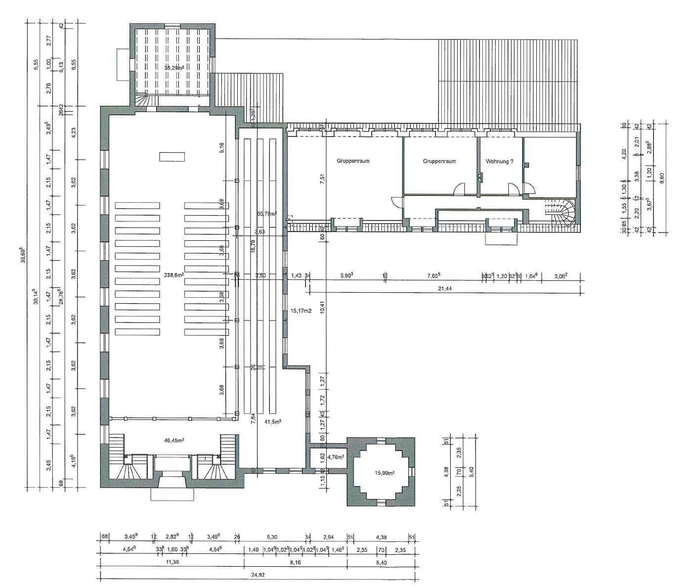
Objectbeschrijving:
Zum Verkauf steht eine einzigartige Immobilie in Nordhorn – eine denkmalgeschützte Kirche mit beeindruckender Architektur und einer Grundstücksfläche von rund 4.770 m². Dieses außergewöhnliche Gebäude bietet eine seltene Gelegenheit, historischen Charme mit modernen Nutzungskonzepten zu verbinden.
Die im Jahr 1951 errichtete Kirche befindet sich in einem gepflegten Zustand und ist bezugsfertig. Das Gebäude überzeugt durch seine massive Bauweise, seine hellen, großzügigen Räume und seine besondere Atmosphäre, die sofort inspiriert. Ob als Kultur- oder Veranstaltungsort, Atelier, Ausstellungsfläche, Büro- oder Seminarhaus, oder als visionäres Wohnprojekt – die Möglichkeiten sind vielfältig. Dank der offenen Raumstruktur und der hohen Decken bietet die ehemalige Kirche eine außergewöhnliche Bühne für kreative und repräsentative Ideen.
Das weitläufige Grundstück eröffnet zusätzliche Perspektiven: Ob als Gartenanlage, Freifläche für Veranstaltungen oder zur Erweiterung bestehender Strukturen – hier ist Raum für Entwicklung, Gestaltung und Visionen.
Die Lage in einer ruhigen, gewachsenen Umgebung kombiniert Privatsphäre mit einer guten verkehrlichen Anbindung und der Nähe zu allen wichtigen Einrichtungen des täglichen Bedarfs.
Trotz der zentralen Erreichbarkeit bleibt das Anwesen angenehm abgeschirmt vom städtischen Trubel. Diese Liegenschaft richtet sich an Menschen mit Ideen – an Entwickler, Künstler, Vereine oder Institutionen, die das Potenzial dieses besonderen Ortes erkennen und ihm neues Leben einhauchen möchten.
Lassen Sie sich bei einer Besichtigung von der besonderen Atmosphäre dieser ehemaligen Kirche inspirieren und entdecken Sie die Möglichkeiten, die in diesem außergewöhnlichen Objekt stecken.
Die im Jahr 1951 errichtete Kirche befindet sich in einem gepflegten Zustand und ist bezugsfertig. Das Gebäude überzeugt durch seine massive Bauweise, seine hellen, großzügigen Räume und seine besondere Atmosphäre, die sofort inspiriert. Ob als Kultur- oder Veranstaltungsort, Atelier, Ausstellungsfläche, Büro- oder Seminarhaus, oder als visionäres Wohnprojekt – die Möglichkeiten sind vielfältig. Dank der offenen Raumstruktur und der hohen Decken bietet die ehemalige Kirche eine außergewöhnliche Bühne für kreative und repräsentative Ideen.
Das weitläufige Grundstück eröffnet zusätzliche Perspektiven: Ob als Gartenanlage, Freifläche für Veranstaltungen oder zur Erweiterung bestehender Strukturen – hier ist Raum für Entwicklung, Gestaltung und Visionen.
Die Lage in einer ruhigen, gewachsenen Umgebung kombiniert Privatsphäre mit einer guten verkehrlichen Anbindung und der Nähe zu allen wichtigen Einrichtungen des täglichen Bedarfs.
Trotz der zentralen Erreichbarkeit bleibt das Anwesen angenehm abgeschirmt vom städtischen Trubel. Diese Liegenschaft richtet sich an Menschen mit Ideen – an Entwickler, Künstler, Vereine oder Institutionen, die das Potenzial dieses besonderen Ortes erkennen und ihm neues Leben einhauchen möchten.
Lassen Sie sich bei einer Besichtigung von der besonderen Atmosphäre dieser ehemaligen Kirche inspirieren und entdecken Sie die Möglichkeiten, die in diesem außergewöhnlichen Objekt stecken.
Ligging:
Nordhorn ist die Kreisstadt und mit ca. 57.000 Einwohnern die größte Stadt des Landkreises Grafschaft Bentheim. Die Stadt liegt im äußersten Südwesten von Niedersachsens, ist eine Mitgliedsgemeinde der Euregio und grenzt direkt an die Niederlande. Sie wird auch Wasserstadt genannt, da sie von mehreren Kanälen durchzogen ist und das Stadtzentrum von zwei Armen der Vechte umschlossen ist. Die nächstgrößere Stadt auf niederländischer Seite ist Enschede, ca. 33 km südwestlich von Nordhorn. Auf deutscher Seite sind Münster und Osnabrück die nächstgelegenen größeren Städte. Diese Kirche befindet sich in beliebter Wohnlage von Nordhorn. Die B213 sowie die B403 sind nur ca. 5 Autominuten entfernt, sodass die umliegenden Ortschaften sowie die A30 und A31 gut zu erreichen sind. Das Stadtzentrum liegt nur wenige Fahrrad-Minuten entfernt und bietet als Mittelzentrum eine gute Infrastruktur. Alle Einrichtungen des täglichen Bedarfs wie Banken, Ärzte, Apotheken und einen Lebensmittelmarkt sind in der näheren Umgebung dieser Kirche vorhanden und in wenigen Minuten mit dem Fahrrad zu erreichen.
Opmerking:
Mocht u interesse aan een van de door ons aangeboden huizen hebben klik op de button vragen over het object in de rechter kolom. Een bezichtiging is voor u geheel vrijblijvend.
Algemene voorwaarden:
Door een klik op de button"Bekijk de locatie van het object op Google maps " ziet u nooit de exacte locatie maar altijd alleen maar de locatie van de dichstbijzijnde plaats / stad
Voor het juiste adres klik in de rechter colom "Vragen over het object"
Alle aanbiedingen zijn onderhevig aan wijzigingen zonder voorafgaande kennisgeving en zijn gebaseerd op door de eigenaar verstrekte informatie; er kan dan ook geen enkele aansprakelijkheid worden aanvaard voor de juistheid en volledigheid ervan. Onder voorbehoud van voorafgaande verkoop of verhuur door de eigenaar.
Voor het juiste adres klik in de rechter colom "Vragen over het object"
Alle aanbiedingen zijn onderhevig aan wijzigingen zonder voorafgaande kennisgeving en zijn gebaseerd op door de eigenaar verstrekte informatie; er kan dan ook geen enkele aansprakelijkheid worden aanvaard voor de juistheid en volledigheid ervan. Onder voorbehoud van voorafgaande verkoop of verhuur door de eigenaar.
Lees meer over de mogelijke valkuilen bij de aankoop van een huis in Duitsland op onze blog
Boordevol informatie m.b.t. een mogelijke emigratie naar Duitsland en over de aankoop of nieuwbouw van een huis in Duitsland:
Meer weten over wonen in Duitsland? Link opent in nieuw venster
Boordevol informatie m.b.t. een mogelijke emigratie naar Duitsland en over de aankoop of nieuwbouw van een huis in Duitsland:
Meer weten over wonen in Duitsland? Link opent in nieuw venster
Uw contactpersoon
Kreissparkasse
Grafschaft Bentheim zu Nordhorn
Mijnheer Jens Aldekamp
Bahnhofstraße 11
48529 Nordhorn
Telefoon: +49 (0)5921 98-4698
Fax: 05921 98-5920
Mijnheer Jens Aldekamp
Bahnhofstraße 11
48529 Nordhorn
Telefoon: +49 (0)5921 98-4698
Fax: 05921 98-5920
Terug naar het overzicht






























