Object 73 van 327
Volgende object
Vorige object
Terug naar het overzicht
code
Terug naar het overzicht
Volgende object
Vorige object
Terug naar het overzichtWeener: moderne Doppelhaushälfte zum Kauf
Object-Nr.: 6598#g68zBf
Snel contact
Opties
Opties
Kerngegevens
Adres:
26826 Weener
Leer
Niedersachsen
Leer
Niedersachsen
Prijs:
359.000 €
Woonoppervlak ca.:
126,31 m2.
Grondstuk:
570 m2.
Aantal kamers:
4
Verdere gegevens
Verdere gegevens
Woningtype:
Twee-onder-één-kap woning
Op provisiebasis:
ja
Provisie:
2,38 (inkl. MwSt.)
Keuken:
Inbouwkeuken
Aantal slaapkamers:
3
Aantal badkamers:
2
Terras:
1
Bouwjaar:
2025
Beschikbaar vanaf:
1. Quartal 2026
Toestand:
Nieuw te betrekken
Type energiebewijs:
Energiepas ligt ter inzage
Uitvoerige beschrijving
Uitvoerige beschrijving
Objectbeschrijving:
Traumhaftes Neubau-Doppelhaus
Modernen, energieeffizienten Doppelhaushälfte in ruhiger Lage?
Es freut uns, Ihnen mitteilen zu können, dass die Doppelhaushälften in Stapelmoorerheide voraussichtlich im ersten Quartal 2026 fertiggestellt werden.
Bereits zwei der vier Doppelhäuser sind bereits verkauft, also zögern Sie nicht und verschaffen Sie sich in der jetzigen Anzeige einen Eindruck von den Häusern!
Mit einem großzügigen Grundstück von ca. 570 m² bieten wir kleinen Familien oder Paaren die Möglichkeit, sich in ihrem Eigenheim wohl und frei zu fühlen.
Der Preis liegt bei 359.000 € und beinhaltet einen Carport, Stellplatzmöglichkeiten und eine kleine Terrasse mit Begrünung. Das Haus wird ohne Photovoltaikanlage (PV) und Küche verkauft – so können Sie Ihr neues Zuhause ganz nach Ihren Wünschen gestalten.
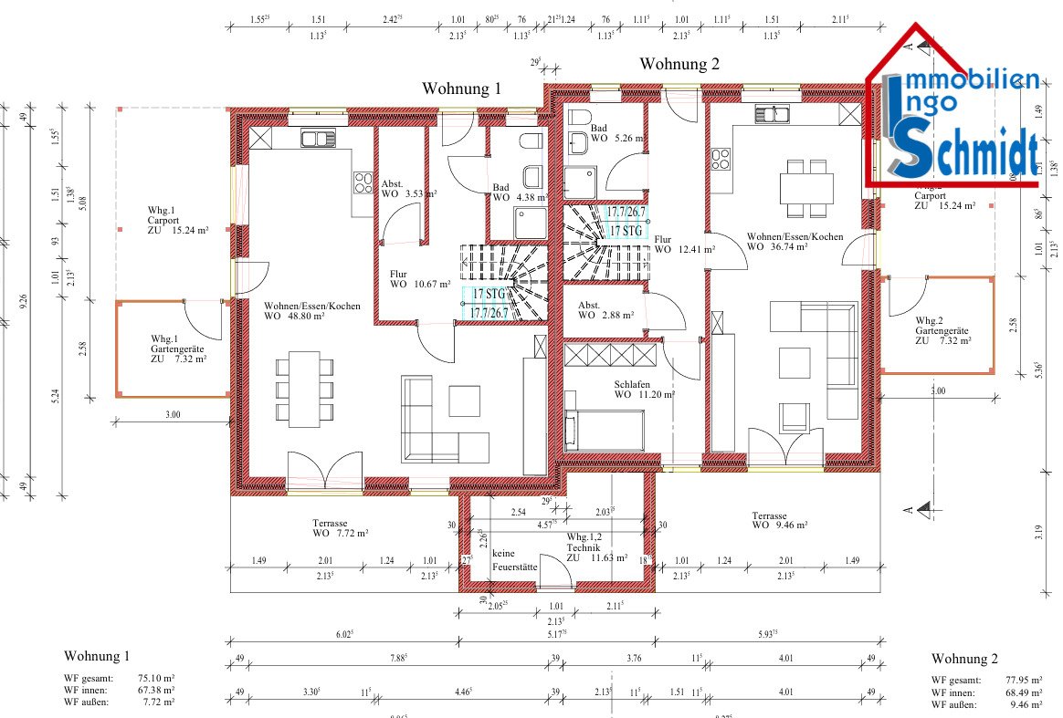
Durch eine durchdachte Raumaufteilung verteilt sich das Haus auf zwei Etagen und bietet insgesamt ca. 123 m² Wohnfläche. Im Erdgeschoss erwartet Sie ein offener Wohn- und Essbereich, der zum Verweilen einlädt.
Ein Hauswirtschaftsraum, ein Badezimmer sowie ein Flur ergänzen das Raumangebot.
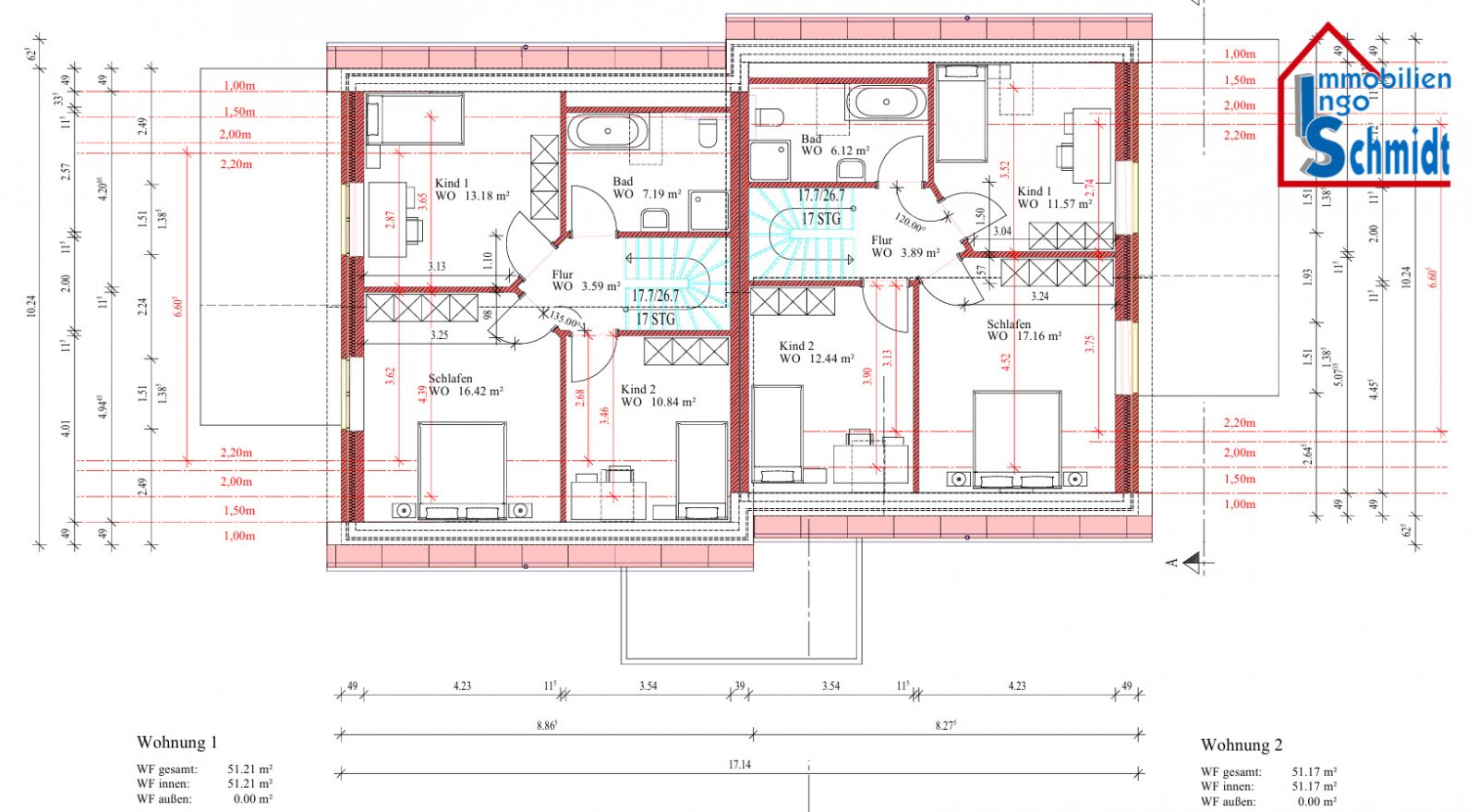
Im Obergeschoss erwarten Sie drei weitere Schlafzimmer sowie ein Badezimmer, das sowohl eine Dusche als auch eine Badewanne bietet.
Ein gemeinschaftlich genutzter Technikraum, der außerhalb der Immobilie liegt, trennt die beiden Terrassen und sorgt für eine saubere Optik. Das Grundstück wird aufgeteilt, wobei ein Wegerecht für die Nachbarn besteht. Zudem wird auf der Grenze zwischen den Doppelhäusern 2 und 3 ein Fußweg zu den Parkplätzen angelegt, um die Erreichbarkeit noch weiter zu verbessern.
Dieses Zuhause ist ideal für alle, die modernes Wohnen in einer ruhigen Lage schätzen.
Haustiere sind herzlich willkommen, sodass auch Ihre vierbeinigen Freunde problemlos einziehen können.
Bitte beachten Sie, dass der Energieausweis derzeit noch nicht vorliegt, da sich das Bauprojekt noch nicht in der finalen Phase befindet.
Selbstverständlich wird dieser nach Fertigstellung nachgereicht.
Aufgrund der noch laufenden Bautätigkeiten, dienen die Aufnahmen der Räumlichkeiten lediglich als Veranschaulichung.
Falls wir Ihr Interesse geweckt haben, zögern Sie bitte nicht, uns zu kontaktieren. Wir freuen uns auf Ihre Nachricht!
Modernen, energieeffizienten Doppelhaushälfte in ruhiger Lage?
Es freut uns, Ihnen mitteilen zu können, dass die Doppelhaushälften in Stapelmoorerheide voraussichtlich im ersten Quartal 2026 fertiggestellt werden.
Bereits zwei der vier Doppelhäuser sind bereits verkauft, also zögern Sie nicht und verschaffen Sie sich in der jetzigen Anzeige einen Eindruck von den Häusern!
Mit einem großzügigen Grundstück von ca. 570 m² bieten wir kleinen Familien oder Paaren die Möglichkeit, sich in ihrem Eigenheim wohl und frei zu fühlen.
Der Preis liegt bei 359.000 € und beinhaltet einen Carport, Stellplatzmöglichkeiten und eine kleine Terrasse mit Begrünung. Das Haus wird ohne Photovoltaikanlage (PV) und Küche verkauft – so können Sie Ihr neues Zuhause ganz nach Ihren Wünschen gestalten.
Durch eine durchdachte Raumaufteilung verteilt sich das Haus auf zwei Etagen und bietet insgesamt ca. 123 m² Wohnfläche. Im Erdgeschoss erwartet Sie ein offener Wohn- und Essbereich, der zum Verweilen einlädt.
Ein Hauswirtschaftsraum, ein Badezimmer sowie ein Flur ergänzen das Raumangebot.
Im Obergeschoss erwarten Sie drei weitere Schlafzimmer sowie ein Badezimmer, das sowohl eine Dusche als auch eine Badewanne bietet.
Ein gemeinschaftlich genutzter Technikraum, der außerhalb der Immobilie liegt, trennt die beiden Terrassen und sorgt für eine saubere Optik. Das Grundstück wird aufgeteilt, wobei ein Wegerecht für die Nachbarn besteht. Zudem wird auf der Grenze zwischen den Doppelhäusern 2 und 3 ein Fußweg zu den Parkplätzen angelegt, um die Erreichbarkeit noch weiter zu verbessern.
Dieses Zuhause ist ideal für alle, die modernes Wohnen in einer ruhigen Lage schätzen.
Haustiere sind herzlich willkommen, sodass auch Ihre vierbeinigen Freunde problemlos einziehen können.
Bitte beachten Sie, dass der Energieausweis derzeit noch nicht vorliegt, da sich das Bauprojekt noch nicht in der finalen Phase befindet.
Selbstverständlich wird dieser nach Fertigstellung nachgereicht.
Aufgrund der noch laufenden Bautätigkeiten, dienen die Aufnahmen der Räumlichkeiten lediglich als Veranschaulichung.
Falls wir Ihr Interesse geweckt haben, zögern Sie bitte nicht, uns zu kontaktieren. Wir freuen uns auf Ihre Nachricht!
Ligging:
Die Doppelhaushälfte befindet sich in einem ruhigen Stadtteil von Weener, einer Kleinstadt im Landkreis Leer in Niedersachsen. Der Stadtteil ist geprägt von gepflegten Vorgärten und freundlichen Nachbarn. In Weener befinden sich verschiedene Einkaufsmöglichkeiten. Schulen und Kindergärten sind vor Ort. Auch die Anbindung an öffentliche Verkehrsmittel ist gut, sodass man schnell in das Stadtzentrum gelangen kann.
Weener selbst ist eine charmante Stadt mit einer historischen Altstadt und einer malerischen Lage an der Ems. Hier finden Bewohner eine Vielzahl an Geschäften, Restaurants und kulturellen Einrichtungen. Das Stadtbild wird geprägt von liebevoll restaurierten Fachwerkhäusern und gemütlichen Plätzen, auf denen man verweilen kann. Auch die Umgebung lädt zu ausgedehnten Spaziergängen oder Radtouren ein.
Die Region um Weener ist bekannt für ihre idyllische Landschaft und die Nähe zur Nordsee. Die grünen Deichlandschaften und die zahlreichen Wasserwege bieten vielfältige Freizeitmöglichkeiten für Naturliebhaber. Zudem sorgen die maritimen Einflüsse für ein angenehmes Klima, das zu entspannten Stunden im Freien einlädt. In dieser Region fühlt man sich fernab von Hektik und Stress, und kann die Schönheit der Natur in vollen Zügen genießen.
Weener selbst ist eine charmante Stadt mit einer historischen Altstadt und einer malerischen Lage an der Ems. Hier finden Bewohner eine Vielzahl an Geschäften, Restaurants und kulturellen Einrichtungen. Das Stadtbild wird geprägt von liebevoll restaurierten Fachwerkhäusern und gemütlichen Plätzen, auf denen man verweilen kann. Auch die Umgebung lädt zu ausgedehnten Spaziergängen oder Radtouren ein.
Die Region um Weener ist bekannt für ihre idyllische Landschaft und die Nähe zur Nordsee. Die grünen Deichlandschaften und die zahlreichen Wasserwege bieten vielfältige Freizeitmöglichkeiten für Naturliebhaber. Zudem sorgen die maritimen Einflüsse für ein angenehmes Klima, das zu entspannten Stunden im Freien einlädt. In dieser Region fühlt man sich fernab von Hektik und Stress, und kann die Schönheit der Natur in vollen Zügen genießen.
Overige:
Das Angebot ist freibleibend und unverbindlich. Es wurde nach den Angaben des Verkäufers erstellt. Zwischenverkauf und Irrtum sind vorbehalten. Eine Weitergabe an Dritte ist nicht gestattet.
Bitte haben Sie Verständnis dafür, dass es bei einer erhöhten Anfrage zu einem Bieterverfahren kommen kann.
Bitte haben Sie Verständnis dafür, dass es bei einer erhöhten Anfrage zu einem Bieterverfahren kommen kann.
Provisie:
Bij de aankoop van een huis in Duitsland moet u rekening houden met in totaal +- 9,5 % bijkomende kosten zoals :
- Notaris- en Grundbuchkosten 1,5%
- 5% overdrachtsbelasting (ook deze is nog al verschillend in de deelstaten "Bundesländer"
(lees meer op ons blog)
- De makelaars provisie
De hoogte van de makelaarsprovisie is per regio en object nogal verschillend) maar let op:
Bij sommige woningen is de provisie van de makelaar al in de koopprijs inbegrepen !
Bij de nieuwbouw van een woning betaalt u alleen kosten koper over de prijs van de kavel
- Notaris- en Grundbuchkosten 1,5%
- 5% overdrachtsbelasting (ook deze is nog al verschillend in de deelstaten "Bundesländer"
(lees meer op ons blog)
- De makelaars provisie
De hoogte van de makelaarsprovisie is per regio en object nogal verschillend) maar let op:
Bij sommige woningen is de provisie van de makelaar al in de koopprijs inbegrepen !
Bij de nieuwbouw van een woning betaalt u alleen kosten koper over de prijs van de kavel
Opmerking:
Mocht u interesse aan een van de door ons aangeboden huizen hebben klik op de button vragen over het object in de rechter kolom. Een bezichtiging is voor u geheel vrijblijvend.
Algemene voorwaarden:
Door een klik op de button"Bekijk de locatie van het object op Google maps " ziet u nooit de exacte locatie maar altijd alleen maar de locatie van de dichstbijzijnde plaats / stad
Voor het juiste adres klik in de rechter colom "Vragen over het object"
Alle aanbiedingen zijn onderhevig aan wijzigingen zonder voorafgaande kennisgeving en zijn gebaseerd op door de eigenaar verstrekte informatie; er kan dan ook geen enkele aansprakelijkheid worden aanvaard voor de juistheid en volledigheid ervan. Onder voorbehoud van voorafgaande verkoop of verhuur door de eigenaar.
Voor het juiste adres klik in de rechter colom "Vragen over het object"
Alle aanbiedingen zijn onderhevig aan wijzigingen zonder voorafgaande kennisgeving en zijn gebaseerd op door de eigenaar verstrekte informatie; er kan dan ook geen enkele aansprakelijkheid worden aanvaard voor de juistheid en volledigheid ervan. Onder voorbehoud van voorafgaande verkoop of verhuur door de eigenaar.
Lees meer over de mogelijke valkuilen bij de aankoop van een huis in Duitsland op onze blog
Boordevol informatie m.b.t. een mogelijke emigratie naar Duitsland en over de aankoop of nieuwbouw van een huis in Duitsland:
Meer weten over wonen in Duitsland? Link opent in nieuw venster
Boordevol informatie m.b.t. een mogelijke emigratie naar Duitsland en over de aankoop of nieuwbouw van een huis in Duitsland:
Meer weten over wonen in Duitsland? Link opent in nieuw venster
Uw contactpersoon
Terug naar het overzicht




















