Object 36 van 56
Volgende object
Vorige object
Terug naar het overzicht
code
Terug naar het overzicht
Volgende object
Vorige object
Terug naar het overzichtBedburg-Hau: Bedburg-Hau: Barrierearme Gewerbefläche - ideal für Praxis, Therapie oder gemeinschaftliches Wohnen
Object-Nr.: 382985
Snel contact
Opties
Opties
Kerngegevens
Adres:
47551 Bedburg-Hau
Kleve
Nordrhein-Westfalen
Kleve
Nordrhein-Westfalen
Stadswijk:
Nordrhein-Westfalen
Objecttype:
Praktijk
Huurprijs incl. gebr.kosten:
2.500 € per maand
Totaal oppervlakte:
372 m2.
Kantoor-/praktijkruimte:
372 m2.
Verdere gegevens
Verdere gegevens
Nevenkosten:
250 € per maand
Op provisiebasis:
nee
Kwaliteit van de uitrusting:
Normaal
Bouwjaar gebouw:
1949
Aantal kamers:
8
Keuken:
Pantry
Vloerbedekking:
Vloertegels, Vast tapijt, Laminaat
Toestand:
Goed onderhouden
Verwarming:
Centrale verwarming
Verwarmingssoort:
Gas
Type energiebewijs:
certificaat vraag - vervaldatum 15.01.2027
Energie-efficiëntieklasse:
G
Behoefte eindenergie:
229 kWh/(m²*a)
Uitvoerige beschrijving
Uitvoerige beschrijving
Objectbeschrijving:
Qualburg: liegt verkehrsgünstig in der Nähe der B9 sowie unweit der A57 und bietet somit eine gute Anbindung in Richtung Kleve, Krefeld und die Niederlande. Die ruhige, aber strategisch gut erreichbare Lage macht den Standort besonders attraktiv.
Grundstück:
ca. 1.091 m²
Baujahr:
ca. 1949
Flächen:
ca. 598 m² gesamt Erdgeschoss
Gewerbefläche:
ca. 372 m²
Umbauter Raum:
ca. 3.042 m³
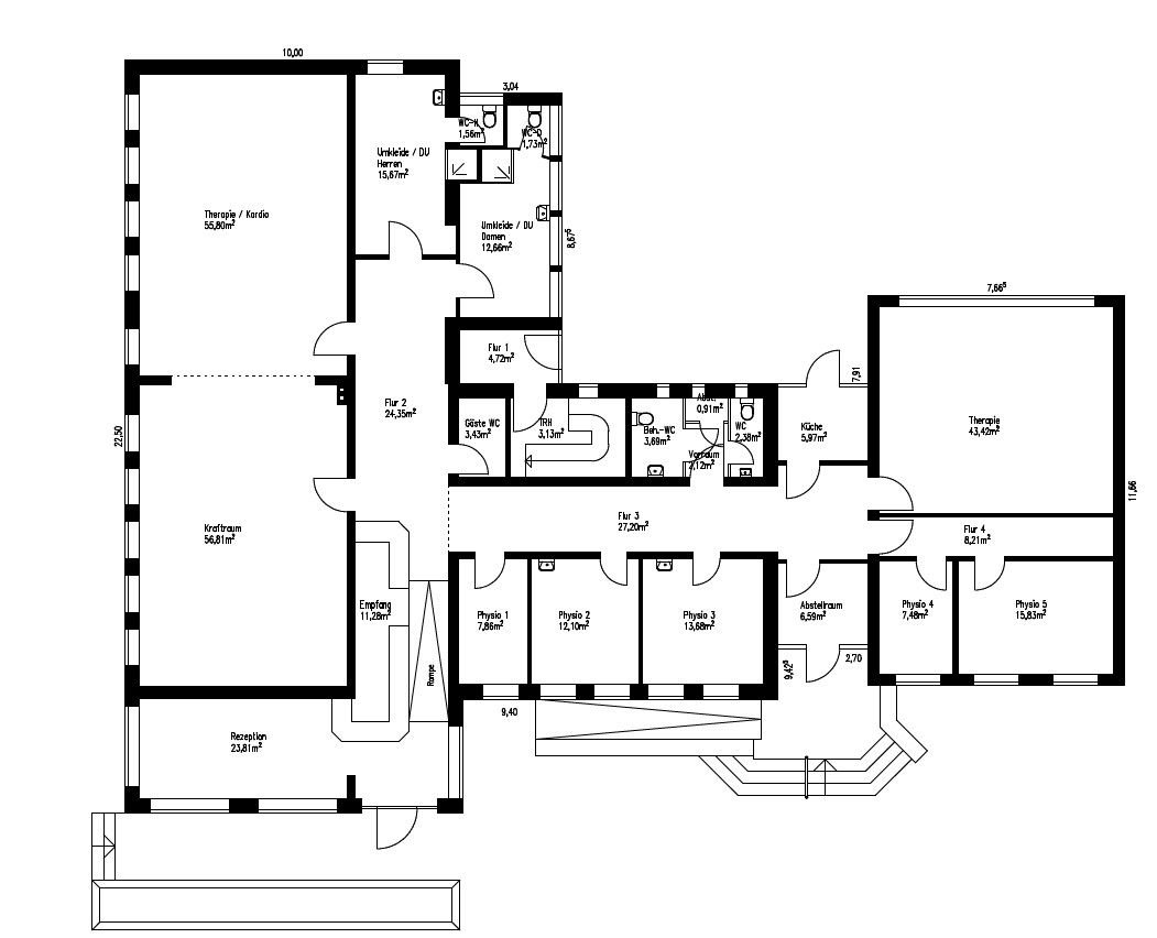
Die Gewerbefläche wurde zuletzt als Rehasport genutzt. Für neue Mieter bieten sich auch weitere Optionen an, z. B. Physiotherapie, Arztpraxis, gemeinschaftliches Wohnen für Senioren oder für Menschen mit Behinderungen. Die Räume eignen sich ideal für diese Nutzungen dank der flexiblen Aufteilung, barrierearmen Zugängen, separatem WC-Bereich, Umkleideflächen und dem großzügigen Grundriss.
Räume und Aufteilung:
WC-Bereich:
jeweils Damen- und Herren-WC
Behinderten-WC
Gäste-WC
Räume:
Zwei großzügige Kraft- und Kardioräume ggf. als Gemeinschafts- und Aufenthalsräume nutzbar
6 Therapieräume
Umkleideräume für Damen und Herren
Küche:
Einbau-Teeküche
Fenster:
Holz- bzw. Kunststofffenster mit Isolierverglasung
Heizung:
Gaszentralheizung, Einbau ca. 2005
Außenbereich:
100 m² Außenbereich gehören zur Gewerbefläche.
Zudem stehen ausreichend Parkplätze zur Verfügung.
Miete:
€ 2.500,- zzgl. € 500, für Betriebskosten und Heizung, seperat wird mit dem Anbieter Strom abgerechent
Grundstück:
ca. 1.091 m²
Baujahr:
ca. 1949
Flächen:
ca. 598 m² gesamt Erdgeschoss
Gewerbefläche:
ca. 372 m²
Umbauter Raum:
ca. 3.042 m³
Die Gewerbefläche wurde zuletzt als Rehasport genutzt. Für neue Mieter bieten sich auch weitere Optionen an, z. B. Physiotherapie, Arztpraxis, gemeinschaftliches Wohnen für Senioren oder für Menschen mit Behinderungen. Die Räume eignen sich ideal für diese Nutzungen dank der flexiblen Aufteilung, barrierearmen Zugängen, separatem WC-Bereich, Umkleideflächen und dem großzügigen Grundriss.
Räume und Aufteilung:
WC-Bereich:
jeweils Damen- und Herren-WC
Behinderten-WC
Gäste-WC
Räume:
Zwei großzügige Kraft- und Kardioräume ggf. als Gemeinschafts- und Aufenthalsräume nutzbar
6 Therapieräume
Umkleideräume für Damen und Herren
Küche:
Einbau-Teeküche
Fenster:
Holz- bzw. Kunststofffenster mit Isolierverglasung
Heizung:
Gaszentralheizung, Einbau ca. 2005
Außenbereich:
100 m² Außenbereich gehören zur Gewerbefläche.
Zudem stehen ausreichend Parkplätze zur Verfügung.
Miete:
€ 2.500,- zzgl. € 500, für Betriebskosten und Heizung, seperat wird mit dem Anbieter Strom abgerechent
Overige:
Übernahme:
Nach Absprache mit dem Verkäufer
Besichtigungen:
Nur nach vorheriger Terminabsprache mit Rücksicht auf den Verkäufer. Terminabsprache unter: +49 2828 92199 (Büro Emmerich-Elten), +49 2824-965211 (Büro Kalkar), +49 2874 902572 (Büro Isselburg-Bocholt)
Provision:
Vom Verkäufer sowie Käufer sind mit Abschluss des Kaufvertrages eine Vermittlungs- bzw. Nachweisprovision vom Gesamtkaufpreis an die Rainer Elsmann Immobilien - Immobilienteam Niederrhein GmbH zu zahlen. Die Provisionshöhe entnehmen Sie bitte den Angaben in der Broschüre bzw. auf unserer Webseite.
Hinweis:
Sind mehrere Kaufinteressenten für die Immobilie vorhanden, wird der Verkäufer seine Verkaufsentscheidung treffen; gegebenenfalls kann es zu einem Bieterverfahren kommen.
Der Makler wird die Entscheidungen den Kaufinteressenten übermitteln. Wir weisen daraufhin, dass den Kaufinteressenten keine Schadensersatzansprüche zustehen weder gegen den Verkäufer noch gegen den Makler. Deshalb Vorsicht bei Vorleistungen (z.B. Gutachterkosten)
Allgemein:
Sämtliche, in diesem Angebot enthaltenen Angaben, Zeichnungen, Abmessungen und Preisangaben beruhen auf Angaben des Verkäufers, oder eines Dritten. Die Benennungen der Räume/Zimmer beziehen sich auf die aktuelle Nutzung und ggf. nicht auf die baurechtlichen Genehmigungen. Insbesondere im Falle älterer, bewohnter oder umgebauter Immobilien kann letzten Endes nicht immer gewährleistet werden, dass der neueste Stand der Technik eingehalten ist und das Objekt daneben allen Anforderungen Stand hält. Der Makler übernimmt in der Folge keine Gewähr für die Richtigkeit der von ihm lediglich weitergegebenen Informationen zur Beschaffenheit der Immobilie und/oder deren uneingeschränkter Eignung zu einer vorgesehenen Nutzung. Soweit der Makler neben der eigenen Sorgfalt auch für eigene Auskünfte haftet, ist diese Haftung auf grobe Fahrlässigkeit oder vorsätzliches Handeln beschränkt. Es gelten die allgemeinen Geschäftsbedingungen.
Übersetzungen:
Die Übersetzungen auf unserer Webseite erfolgen automatisch mit Deepl.
Informatie voor Nederlanders:
Wij spreken Nederlands!
Daarnaast begeleiden wij Nederlanders niet alleen bij de aankoop van een huis in Duitsland en alles wat daarbij komt kijken maar ook bij de emigratie naar Duitsland. Neem gewoon contact met ons op en laat u informeren!
Nach Absprache mit dem Verkäufer
Besichtigungen:
Nur nach vorheriger Terminabsprache mit Rücksicht auf den Verkäufer. Terminabsprache unter: +49 2828 92199 (Büro Emmerich-Elten), +49 2824-965211 (Büro Kalkar), +49 2874 902572 (Büro Isselburg-Bocholt)
Provision:
Vom Verkäufer sowie Käufer sind mit Abschluss des Kaufvertrages eine Vermittlungs- bzw. Nachweisprovision vom Gesamtkaufpreis an die Rainer Elsmann Immobilien - Immobilienteam Niederrhein GmbH zu zahlen. Die Provisionshöhe entnehmen Sie bitte den Angaben in der Broschüre bzw. auf unserer Webseite.
Hinweis:
Sind mehrere Kaufinteressenten für die Immobilie vorhanden, wird der Verkäufer seine Verkaufsentscheidung treffen; gegebenenfalls kann es zu einem Bieterverfahren kommen.
Der Makler wird die Entscheidungen den Kaufinteressenten übermitteln. Wir weisen daraufhin, dass den Kaufinteressenten keine Schadensersatzansprüche zustehen weder gegen den Verkäufer noch gegen den Makler. Deshalb Vorsicht bei Vorleistungen (z.B. Gutachterkosten)
Allgemein:
Sämtliche, in diesem Angebot enthaltenen Angaben, Zeichnungen, Abmessungen und Preisangaben beruhen auf Angaben des Verkäufers, oder eines Dritten. Die Benennungen der Räume/Zimmer beziehen sich auf die aktuelle Nutzung und ggf. nicht auf die baurechtlichen Genehmigungen. Insbesondere im Falle älterer, bewohnter oder umgebauter Immobilien kann letzten Endes nicht immer gewährleistet werden, dass der neueste Stand der Technik eingehalten ist und das Objekt daneben allen Anforderungen Stand hält. Der Makler übernimmt in der Folge keine Gewähr für die Richtigkeit der von ihm lediglich weitergegebenen Informationen zur Beschaffenheit der Immobilie und/oder deren uneingeschränkter Eignung zu einer vorgesehenen Nutzung. Soweit der Makler neben der eigenen Sorgfalt auch für eigene Auskünfte haftet, ist diese Haftung auf grobe Fahrlässigkeit oder vorsätzliches Handeln beschränkt. Es gelten die allgemeinen Geschäftsbedingungen.
Übersetzungen:
Die Übersetzungen auf unserer Webseite erfolgen automatisch mit Deepl.
Informatie voor Nederlanders:
Wij spreken Nederlands!
Daarnaast begeleiden wij Nederlanders niet alleen bij de aankoop van een huis in Duitsland en alles wat daarbij komt kijken maar ook bij de emigratie naar Duitsland. Neem gewoon contact met ons op en laat u informeren!
Opmerking:
Mocht u interesse aan een van de door ons aangeboden huizen hebben klik op de button vragen over het object in de rechter kolom. Een bezichtiging is voor u geheel vrijblijvend.
Algemene voorwaarden:
Door een klik op de button"Bekijk de locatie van het object op Google maps " ziet u nooit de exacte locatie maar altijd alleen maar de locatie van de dichstbijzijnde plaats / stad
Voor het juiste adres klik in de rechter colom "Vragen over het object"
Alle aanbiedingen zijn onderhevig aan wijzigingen zonder voorafgaande kennisgeving en zijn gebaseerd op door de eigenaar verstrekte informatie; er kan dan ook geen enkele aansprakelijkheid worden aanvaard voor de juistheid en volledigheid ervan. Onder voorbehoud van voorafgaande verkoop of verhuur door de eigenaar.
Voor het juiste adres klik in de rechter colom "Vragen over het object"
Alle aanbiedingen zijn onderhevig aan wijzigingen zonder voorafgaande kennisgeving en zijn gebaseerd op door de eigenaar verstrekte informatie; er kan dan ook geen enkele aansprakelijkheid worden aanvaard voor de juistheid en volledigheid ervan. Onder voorbehoud van voorafgaande verkoop of verhuur door de eigenaar.
Lees meer over de mogelijke valkuilen bij de aankoop van een huis in Duitsland op onze blog
Boordevol informatie m.b.t. een mogelijke emigratie naar Duitsland en over de aankoop of nieuwbouw van een huis in Duitsland:
Meer weten over wonen in Duitsland? Link opent in nieuw venster
Boordevol informatie m.b.t. een mogelijke emigratie naar Duitsland en over de aankoop of nieuwbouw van een huis in Duitsland:
Meer weten over wonen in Duitsland? Link opent in nieuw venster
Uw contactpersoon
Rainer Elsmann Immobilien
Büro Emmerich
Eltener Markt 15
46446 Emmerich
Telefoon: +49 2828 92199
Fax: +49 2828 93699
Büro Emmerich
Eltener Markt 15
46446 Emmerich
Telefoon: +49 2828 92199
Fax: +49 2828 93699
Terug naar het overzicht
























