Object 23 van 65
Volgende object
Vorige object
Terug naar het overzicht
code
Terug naar het overzicht
Volgende object
Vorige object
Terug naar het overzichtNordhorn: Repräsentatives Büro-/Verwaltungsgebäude in Top-Lage von Nordhorn, direkt am Bahnhof
Object-Nr.: 8407
Snel contact
Opties
Opties
Kerngegevens
Adres:
48529 Nordhorn
Grafschaft Bentheim
Niedersachsen
Grafschaft Bentheim
Niedersachsen
Stadswijk:
Niedersachsen
Huurprijs incl. gebr.kosten:
12.278 € per maand
Totaal oppervlakte:
1.889 m2.
Beschikbaar vanaf:
nach Vereinbarung
Verdere gegevens
Verdere gegevens
Op provisiebasis:
ja
Provisie:
1,19 KM
Bouwjaar gebouw:
1989
Verwarmingssoort:
Gas
Type energiebewijs:
certificaat vraag - geldig vanaf 12.03.2024 tot 11.03.2034
Energie-efficiëntieklasse:
E
Behoefte eindenergie:
157 kWh/(m²*a)
Bouwjaar volgens energiecertificatie:
1989
Uitvoerige beschrijving
Uitvoerige beschrijving
Objectbeschrijving:
Zur Vermietung an einen oder zwei separate Mieter steht dieses repräsentative Büro-/Verwaltungsgebäude direkt am Bahn- und Busbahnhof in Nordhorn.
Die Flächen sind teilbar in:
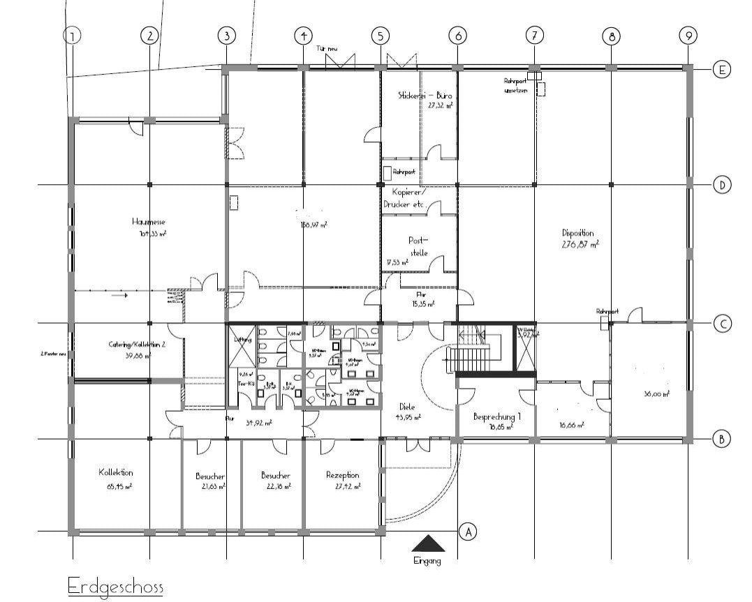
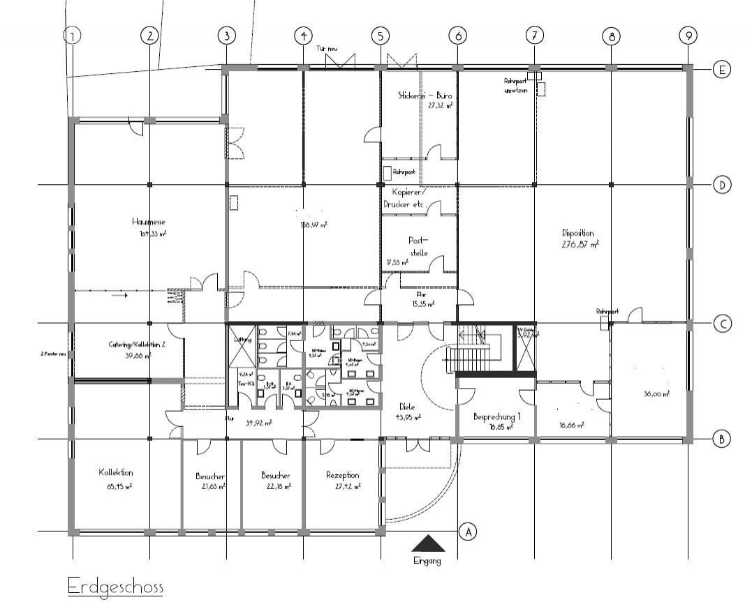
1. Erdgeschoss (ca. 948 QM Nfl.) und
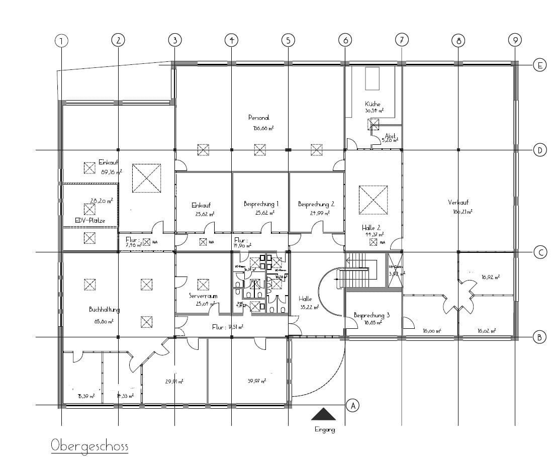
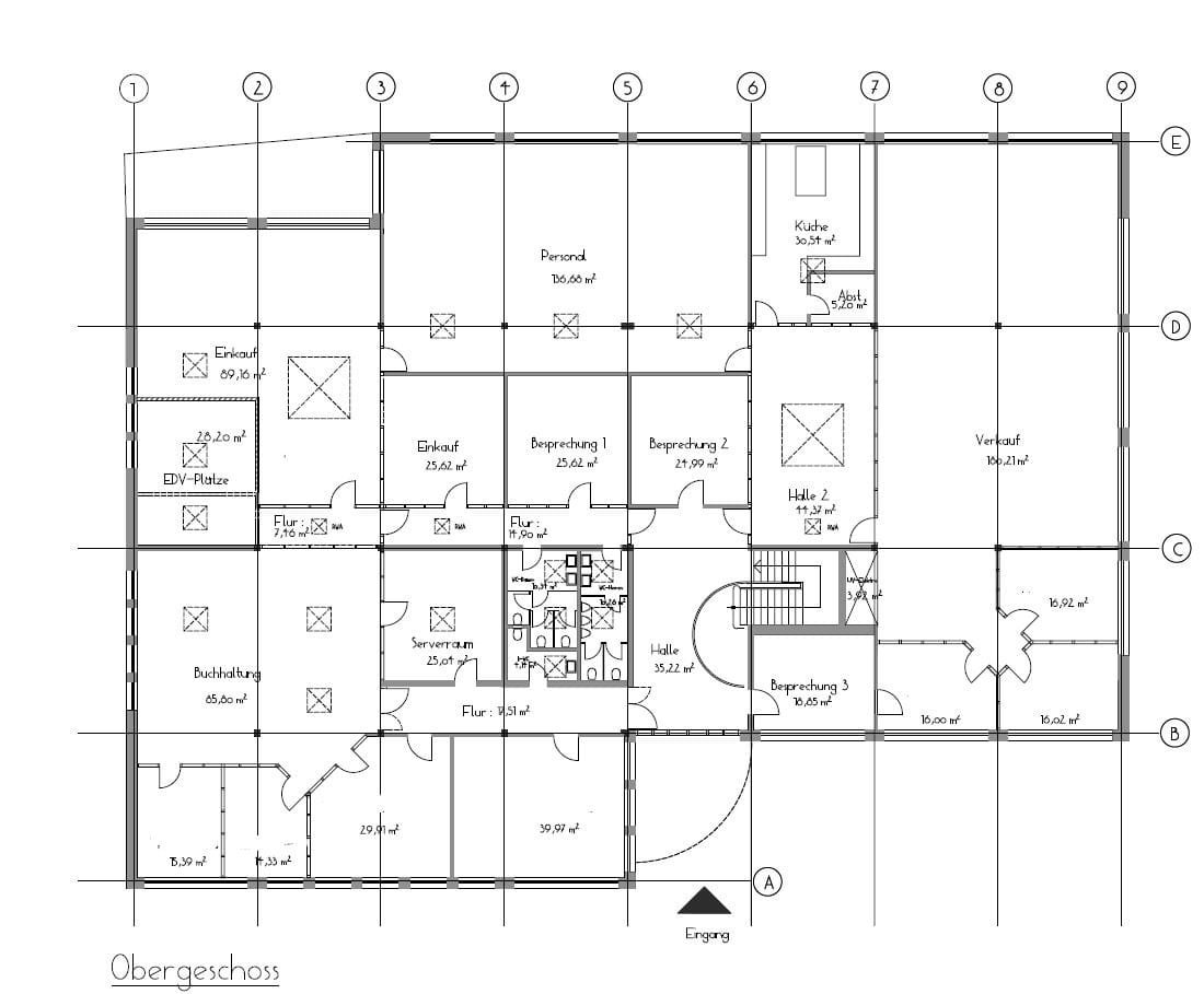
2. Obergeschoss (ca. 941 QM NFL.)
sowie ein ca. 120 QM großes Kellergeschoss.
Im Erdgeschoss befindet sich eine sehr große, beeindruckende Empfangshalle mit Empfangsbüro und großzügiger Treppe ins Obergeschoss.
Alle Räume sind mit fast allem ausgestattet, was moderne Büroräume erfordern: Sanitärräume, Personalräume, Küchen, teils flexibel änderbare Büroräume (Leichtbauwände), Großraumbüros, Besprechnungsräume, IT-Verkabelung uvm.
Im Objekt wurde 2023 eine neue Gasheizungsanlage eingebaut.
Wer weitere Räume benötigt, findet direkt gegenüber weitere Flächen zur Anmietung (ca. 394 QM Büro/Verwaltung) sowie ca. 1.115 QM Gewerbefläche). Fragen Sie uns gerne nach dem konkreten Angebot.
Die Flächen sind teilbar in:
1. Erdgeschoss (ca. 948 QM Nfl.) und
2. Obergeschoss (ca. 941 QM NFL.)
sowie ein ca. 120 QM großes Kellergeschoss.
Im Erdgeschoss befindet sich eine sehr große, beeindruckende Empfangshalle mit Empfangsbüro und großzügiger Treppe ins Obergeschoss.
Alle Räume sind mit fast allem ausgestattet, was moderne Büroräume erfordern: Sanitärräume, Personalräume, Küchen, teils flexibel änderbare Büroräume (Leichtbauwände), Großraumbüros, Besprechnungsräume, IT-Verkabelung uvm.
Im Objekt wurde 2023 eine neue Gasheizungsanlage eingebaut.
Wer weitere Räume benötigt, findet direkt gegenüber weitere Flächen zur Anmietung (ca. 394 QM Büro/Verwaltung) sowie ca. 1.115 QM Gewerbefläche). Fragen Sie uns gerne nach dem konkreten Angebot.
Ligging:
Das Objekt grenzt direkt an den Bahn- und Busbahnhof in Nordhorn. Im direkten Umfeld befinden sich das Wirtschaftskompetenzzentrum mit verschiedenen Anbietern und Unternehmen. Zur weiteren Nachbarschaft gehören die Großverwaltungen von Ingenieurbüros (Lindschulte), Bauunternehmen (List) sowie die Volkshochschule, das evangelische Gymnasium Nordhorn, Banken uvm.
Einkaufsmöglichkeiten, Kindergarten, Schulen - sind in wenigen Minuten zu Fuß oder auch mit dem Fahrrad zu erreichen. In 10 Autominuten erreichen Sie die Autobahnen A30/A31. In 5-10 Minuten erreichen Sie die niederländische Grenze bei Denekamp.
Nordhorn ist die wunderschöne Kreisstadt der Grafschaft Bentheim und hat ca. 55.000 Einwohner. Nordhorn ist geprägt von Einfamilienhaus-Bebauung und bietet nahezu alle Einrichtungen des täglichen Bedarfs. Kulturelle Einrichtungen, Freibad, zahlreiche Sportvereine, sämtliche Schulformen und eine schöne Innenstadt machen Nordhorn lebens- und liebenswert.
Der Fluss Vechte fließt durch Nordhorn und prägt mit vielen Kanälen sowie dem Vechtesee die Innenstadt.
Die Grafschaft Bentheim als Landkreis hat ca. 135.000 Einwohner, ist eher ländlich geprägt mit wunderschöner Natur. Die Städte Bad Bentheim, Schüttorf, Gildehaus, Neuenhaus, Uelsen, Emlichheim gehören in der Grafschaft zum näheren Einzugsgebiet Nordhorns.
Die nächstgrößeren Städte sind Lingen (Ems), Rheine, Osnabrück und Münster. In ca. 1,5 Auto-Stunden erreicht man die Nordsee und in ca. 1 Autostunde das Ruhrgebiet. Nordhorn hat Autobahnanbindungen an die A31 und A30. Der nächste Flughafen ist ca. 45 Autominuten entfernt in Münster-Greven.
Die niederländische Grenze ist nur wenige Meter entfernt. Auf der niederländischen Seite sind die Nachbarorte Denekamp und Oldenzaal sowie die Großstadt Enschede in wenigen Minuten erreichbar und bieten Abwechslung, Einkaufsmöglichkeiten uvm.
Mehr Informationen: https://de.wikipedia.org/wiki/Nordhorn
Einkaufsmöglichkeiten, Kindergarten, Schulen - sind in wenigen Minuten zu Fuß oder auch mit dem Fahrrad zu erreichen. In 10 Autominuten erreichen Sie die Autobahnen A30/A31. In 5-10 Minuten erreichen Sie die niederländische Grenze bei Denekamp.
Nordhorn ist die wunderschöne Kreisstadt der Grafschaft Bentheim und hat ca. 55.000 Einwohner. Nordhorn ist geprägt von Einfamilienhaus-Bebauung und bietet nahezu alle Einrichtungen des täglichen Bedarfs. Kulturelle Einrichtungen, Freibad, zahlreiche Sportvereine, sämtliche Schulformen und eine schöne Innenstadt machen Nordhorn lebens- und liebenswert.
Der Fluss Vechte fließt durch Nordhorn und prägt mit vielen Kanälen sowie dem Vechtesee die Innenstadt.
Die Grafschaft Bentheim als Landkreis hat ca. 135.000 Einwohner, ist eher ländlich geprägt mit wunderschöner Natur. Die Städte Bad Bentheim, Schüttorf, Gildehaus, Neuenhaus, Uelsen, Emlichheim gehören in der Grafschaft zum näheren Einzugsgebiet Nordhorns.
Die nächstgrößeren Städte sind Lingen (Ems), Rheine, Osnabrück und Münster. In ca. 1,5 Auto-Stunden erreicht man die Nordsee und in ca. 1 Autostunde das Ruhrgebiet. Nordhorn hat Autobahnanbindungen an die A31 und A30. Der nächste Flughafen ist ca. 45 Autominuten entfernt in Münster-Greven.
Die niederländische Grenze ist nur wenige Meter entfernt. Auf der niederländischen Seite sind die Nachbarorte Denekamp und Oldenzaal sowie die Großstadt Enschede in wenigen Minuten erreichbar und bieten Abwechslung, Einkaufsmöglichkeiten uvm.
Mehr Informationen: https://de.wikipedia.org/wiki/Nordhorn
Opmerking:
Mocht u interesse aan een van de door ons aangeboden huizen hebben klik op de button vragen over het object in de rechter kolom. Een bezichtiging is voor u geheel vrijblijvend.
Algemene voorwaarden:
Door een klik op de button"Bekijk de locatie van het object op Google maps " ziet u nooit de exacte locatie maar altijd alleen maar de locatie van de dichstbijzijnde plaats / stad
Voor het juiste adres klik in de rechter colom "Vragen over het object"
Alle aanbiedingen zijn onderhevig aan wijzigingen zonder voorafgaande kennisgeving en zijn gebaseerd op door de eigenaar verstrekte informatie; er kan dan ook geen enkele aansprakelijkheid worden aanvaard voor de juistheid en volledigheid ervan. Onder voorbehoud van voorafgaande verkoop of verhuur door de eigenaar.
Voor het juiste adres klik in de rechter colom "Vragen over het object"
Alle aanbiedingen zijn onderhevig aan wijzigingen zonder voorafgaande kennisgeving en zijn gebaseerd op door de eigenaar verstrekte informatie; er kan dan ook geen enkele aansprakelijkheid worden aanvaard voor de juistheid en volledigheid ervan. Onder voorbehoud van voorafgaande verkoop of verhuur door de eigenaar.
Lees meer over de mogelijke valkuilen bij de aankoop van een huis in Duitsland op onze blog
Boordevol informatie m.b.t. een mogelijke emigratie naar Duitsland en over de aankoop of nieuwbouw van een huis in Duitsland:
Meer weten over wonen in Duitsland? Link opent in nieuw venster
Boordevol informatie m.b.t. een mogelijke emigratie naar Duitsland en over de aankoop of nieuwbouw van een huis in Duitsland:
Meer weten over wonen in Duitsland? Link opent in nieuw venster
Uw contactpersoon
Kreissparkasse
Grafschaft Bentheim zu Nordhorn
Mijnheer Jens Aldekamp
Bahnhofstraße 11
48529 Nordhorn
Telefoon: +49 (0)5921 98-4698
Fax: 05921 98-5920
Mijnheer Jens Aldekamp
Bahnhofstraße 11
48529 Nordhorn
Telefoon: +49 (0)5921 98-4698
Fax: 05921 98-5920
Terug naar het overzicht
















































