Object 75 van 77
Volgende object
Vorige object
Terug naar het overzicht
Terug naar het overzicht
Volgende object
Vorige object
Terug naar het overzichtXanten: Historische Stadtvilla in Xanten – Wohnen, Arbeiten und Geschäftemachen unter einem Dach
Object-Nr.: 372421
Snel contact
Opties
Opties
Kerngegevens
Adres:
46509 Xanten
Wesel
Nordrhein-Westfalen
Wesel
Nordrhein-Westfalen
Stadswijk:
Nordrhein-Westfalen
Objecttype:
Pension
Prijs:
1.495.000 €
Totaal oppervlakte:
409 m2.
Verdere gegevens
Verdere gegevens
Bouwjaar gebouw:
1870
Grondstuk:
673 m2.
Op provisiebasis:
ja
Provisie:
1,78% vom Kaufpreis (inkl. MwSt.)
Aantal kamers:
11
Aantal bedden:
1
Keuken:
Inbouwkeuken, Open
Kelder:
ja
Verwarming:
Centrale verwarming
Verwarmingssoort:
Olie, Gas
Type energiebewijs:
certificaat vraag - vervaldatum 28.01.2034
Energie-efficiëntieklasse:
E
Behoefte eindenergie:
140,30 kWh/(m²*a)
Uitvoerige beschrijving
Uitvoerige beschrijving
Objectbeschrijving:
Einzigartige Gelegenheit im Herzen von Xanten!
Diese historische Immobilie an der Bahnhofstraße, direkt neben einem der alten Stadttore von Xanten, bietet Ihnen die Chance, Eigentümer einer majestätischen Stadtvilla mit einer reichen Geschichte zu werden. Früher als Zigarrenlager und Fabrik genutzt, hat dieses besondere Gebäude seinen industriellen Charme bewahrt und mit modernen Annehmlichkeiten kombiniert. Derzeit als private Wohnung in Kombination mit einem charmanten Gästehaus/B&B genutzt, bietet das Gebäude jedoch weit mehr Potenzial für die Zukunft.
Mit einer flexiblen Raumaufteilung und einer zentralen Lage bietet diese Immobilie unbegrenzte Möglichkeiten für verschiedene geschäftliche und private Nutzungen. Ob Sie auf der Suche nach einem beeindruckenden Wohnsitz, einem gewerblichen Projekt oder einer Geschäftslocation sind dies ist die Gelegenheit, in ein Stück Geschichte mit Perspektive zu investieren.
Merkmale der Immobilie
Historische Stadtvilla: Das imposante Erscheinungsbild des Gebäudes, kombiniert mit authentischen Elementen wie hohen Decken, großen Fenstern und originalen Details, sorgt für eine unvergleichliche
Atmosphäre und Charme.
Vielseitige Raumaufteilung: Das Gebäude ist derzeit als private Wohnung mit einem B&B eingerichtet, doch die Raumaufteilung kann problemlos an unterschiedliche Bedürfnisse angepasst werden, von
Büroräumen bis hin zu Praxisräumen.
Vielseitige Nutzungsmöglichkeiten
Büroflächen: Aufgrund der zentralen Lage und großzügigen Räumlichkeiten ist das Gebäude ideal für Büros. Die Nähe zum alten Stadttor und dem Stadtzentrum sorgt für eine hervorragende Sichtbarkeit
und Erreichbarkeit für Kunden.
Praxisräume für Gesundheitsberufe: Die geräumigen Zimmer und das ruhige Ambiente machen das Gebäude zur perfekten Wahl für eine Arztpraxis oder therapeutische Räume. Die Aufteilung bietet
zahlreiche Möglichkeiten, Behandlungsräume, Wartezimmer und Büros einzurichten.
Beauty- oder Wellnesszentrum: Die ruhige und gleichzeitig charaktervolle Atmosphäre des Gebäudes macht es ideal für ein Beauty- oder Wellnesszentrum. Stellen Sie sich ein Spa, einen
Schönheitssalon oder eine Massagepraxis in einer stilvollen Umgebung vor.
Wohnen & Arbeiten: Die Kombination aus privatem Wohnraum und einem kleinen Gästehaus macht die Immobilie besonders geeignet für Unternehmer, die Wohnen und Arbeiten miteinander verbinden
möchten. Sie bietet sowohl Komfort als auch die Möglichkeit, Gäste zu empfangen.
Die perfekte Lage in Xanten
Die Bahnhofstraße liegt an einer hervorragenden Adresse im Zentrum von Xanten, direkt neben einem der alten Stadttore, die der Stadt ihren historischen Charme verleihen. Diese historische und zentrale Lage bietet nicht nur wunderschöne Ausblicke, sondern auch hervorragende Erreichbarkeit für Kunden, Gäste oder Patienten. Xanten ist eine beliebte Stadt für sowohl Einwohner als auch Touristen und stellt somit einen idealen Standort für geschäftliche Aktivitäten dar von Tourismus bis hin zu Gesundheitsdiensten.
Warum diese Immobilie?
Reich an Geschichte: Das Gebäude hat eine reiche und einzigartige Geschichte, die zur besonderen Atmosphäre beiträgt. Früher als Zigarrenlager, Lagerhaus und Fabrik genutzt, ist es heute eine
charmante Mischung aus Alt und Neu.
Vielseitigkeit: Ob Sie nach einer stilvollen Wohnung, Büroflächen oder einer Location für Ihre Praxis oder Ihr Geschäft suchen dieses Gebäude bietet zahlreiche Möglichkeiten.
Großzügig und lichtdurchflutet: Mit hohen Decken, großen Fenstern und einer offenen Raumaufteilung bieten sich zahlreiche Möglichkeiten, das Gebäude nach eigenen Vorstellungen zu gestalten.
Ihre Chance, ein historisches Gebäude mit Zukunft zu erwerben
Mit einer reichen Geschichte, einer ausgezeichneten Lage und unbegrenzten Nutzungsmöglichkeiten ist dieses Gebäude an der Bahnhofstraße eine einzigartige Gelegenheit für sowohl Privatkäufer als auch Unternehmer. Egal, ob Sie auf der Suche nach einem charaktervollen Wohnsitz oder einer idealen Geschäftsadresse sind, diese Immobilie bietet beides.
Kontaktieren Sie uns noch heute für weitere Informationen oder um einen Besichtigungstermin zu vereinbaren.
Verpassen Sie nicht die Gelegenheit, Eigentümer dieses ikonischen historischen Gebäudes im Herzen von Xanten zu werden!
Diese historische Immobilie an der Bahnhofstraße, direkt neben einem der alten Stadttore von Xanten, bietet Ihnen die Chance, Eigentümer einer majestätischen Stadtvilla mit einer reichen Geschichte zu werden. Früher als Zigarrenlager und Fabrik genutzt, hat dieses besondere Gebäude seinen industriellen Charme bewahrt und mit modernen Annehmlichkeiten kombiniert. Derzeit als private Wohnung in Kombination mit einem charmanten Gästehaus/B&B genutzt, bietet das Gebäude jedoch weit mehr Potenzial für die Zukunft.
Mit einer flexiblen Raumaufteilung und einer zentralen Lage bietet diese Immobilie unbegrenzte Möglichkeiten für verschiedene geschäftliche und private Nutzungen. Ob Sie auf der Suche nach einem beeindruckenden Wohnsitz, einem gewerblichen Projekt oder einer Geschäftslocation sind dies ist die Gelegenheit, in ein Stück Geschichte mit Perspektive zu investieren.
Merkmale der Immobilie
Historische Stadtvilla: Das imposante Erscheinungsbild des Gebäudes, kombiniert mit authentischen Elementen wie hohen Decken, großen Fenstern und originalen Details, sorgt für eine unvergleichliche
Atmosphäre und Charme.
Vielseitige Raumaufteilung: Das Gebäude ist derzeit als private Wohnung mit einem B&B eingerichtet, doch die Raumaufteilung kann problemlos an unterschiedliche Bedürfnisse angepasst werden, von
Büroräumen bis hin zu Praxisräumen.
Vielseitige Nutzungsmöglichkeiten
Büroflächen: Aufgrund der zentralen Lage und großzügigen Räumlichkeiten ist das Gebäude ideal für Büros. Die Nähe zum alten Stadttor und dem Stadtzentrum sorgt für eine hervorragende Sichtbarkeit
und Erreichbarkeit für Kunden.
Praxisräume für Gesundheitsberufe: Die geräumigen Zimmer und das ruhige Ambiente machen das Gebäude zur perfekten Wahl für eine Arztpraxis oder therapeutische Räume. Die Aufteilung bietet
zahlreiche Möglichkeiten, Behandlungsräume, Wartezimmer und Büros einzurichten.
Beauty- oder Wellnesszentrum: Die ruhige und gleichzeitig charaktervolle Atmosphäre des Gebäudes macht es ideal für ein Beauty- oder Wellnesszentrum. Stellen Sie sich ein Spa, einen
Schönheitssalon oder eine Massagepraxis in einer stilvollen Umgebung vor.
Wohnen & Arbeiten: Die Kombination aus privatem Wohnraum und einem kleinen Gästehaus macht die Immobilie besonders geeignet für Unternehmer, die Wohnen und Arbeiten miteinander verbinden
möchten. Sie bietet sowohl Komfort als auch die Möglichkeit, Gäste zu empfangen.
Die perfekte Lage in Xanten
Die Bahnhofstraße liegt an einer hervorragenden Adresse im Zentrum von Xanten, direkt neben einem der alten Stadttore, die der Stadt ihren historischen Charme verleihen. Diese historische und zentrale Lage bietet nicht nur wunderschöne Ausblicke, sondern auch hervorragende Erreichbarkeit für Kunden, Gäste oder Patienten. Xanten ist eine beliebte Stadt für sowohl Einwohner als auch Touristen und stellt somit einen idealen Standort für geschäftliche Aktivitäten dar von Tourismus bis hin zu Gesundheitsdiensten.
Warum diese Immobilie?
Reich an Geschichte: Das Gebäude hat eine reiche und einzigartige Geschichte, die zur besonderen Atmosphäre beiträgt. Früher als Zigarrenlager, Lagerhaus und Fabrik genutzt, ist es heute eine
charmante Mischung aus Alt und Neu.
Vielseitigkeit: Ob Sie nach einer stilvollen Wohnung, Büroflächen oder einer Location für Ihre Praxis oder Ihr Geschäft suchen dieses Gebäude bietet zahlreiche Möglichkeiten.
Großzügig und lichtdurchflutet: Mit hohen Decken, großen Fenstern und einer offenen Raumaufteilung bieten sich zahlreiche Möglichkeiten, das Gebäude nach eigenen Vorstellungen zu gestalten.
Ihre Chance, ein historisches Gebäude mit Zukunft zu erwerben
Mit einer reichen Geschichte, einer ausgezeichneten Lage und unbegrenzten Nutzungsmöglichkeiten ist dieses Gebäude an der Bahnhofstraße eine einzigartige Gelegenheit für sowohl Privatkäufer als auch Unternehmer. Egal, ob Sie auf der Suche nach einem charaktervollen Wohnsitz oder einer idealen Geschäftsadresse sind, diese Immobilie bietet beides.
Kontaktieren Sie uns noch heute für weitere Informationen oder um einen Besichtigungstermin zu vereinbaren.
Verpassen Sie nicht die Gelegenheit, Eigentümer dieses ikonischen historischen Gebäudes im Herzen von Xanten zu werden!
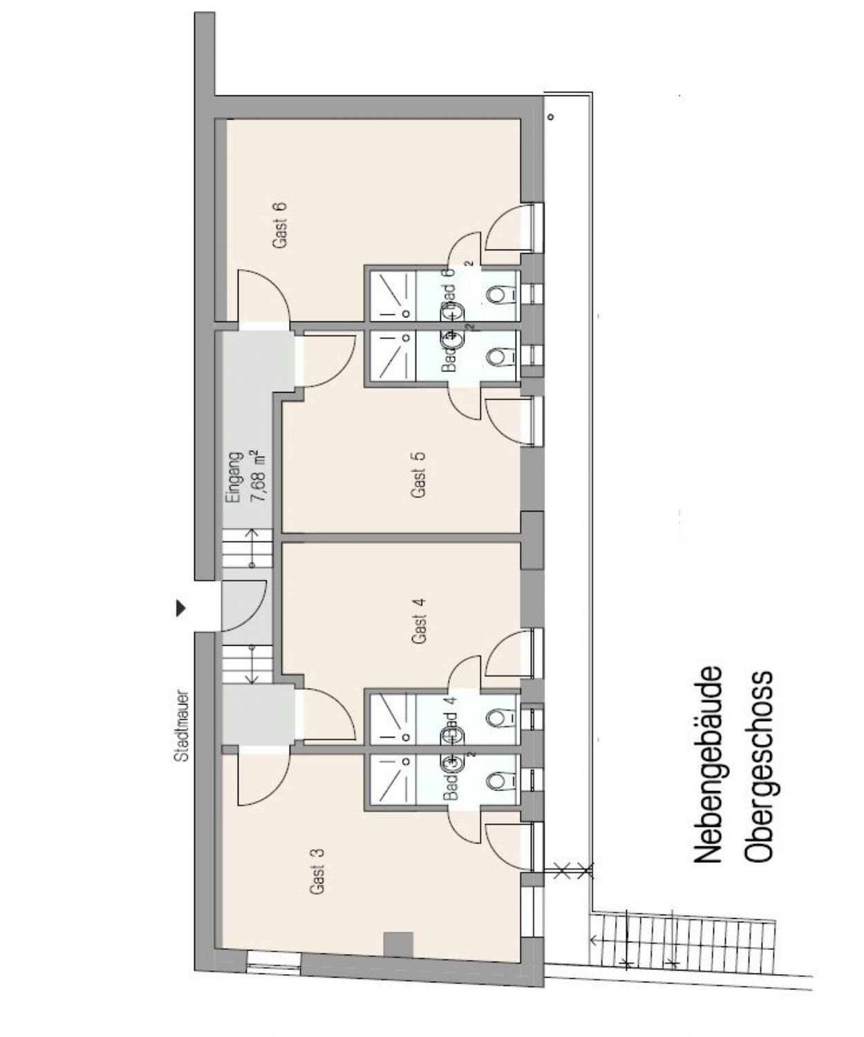
Indeling:
Historische Stadtvilla an der Bahnhofstraße in Xanten Wohnen, Arbeiten und Geschäftemachen unter einem Dach
Einzigartige Gelegenheit im Herzen von Xanten! Diese historische Immobilie an der Bahnhofstraße, direkt neben einem der alten Stadttore von Xanten, bietet Ihnen die Chance, Eigentümer einer majestätischen Stadtvilla mit einer reichen Geschichte zu werden. Früher als Zigarrenlager und Fabrik genutzt, hat dieses besondere Gebäude seinen industriellen Charme bewahrt und mit modernen Annehmlichkeiten kombiniert. Derzeit als private Wohnung in Kombination mit einem charmanten Gästehaus/B&B genutzt, bietet das Gebäude jedoch weit mehr Potenzial für die Zukunft.
Mit einer flexiblen Raumaufteilung und einer zentralen Lage bietet diese Immobilie unbegrenzte Möglichkeiten für verschiedene geschäftliche und private Nutzungen. Ob Sie auf der Suche nach einem beeindruckenden Wohnsitz, einem gewerblichen Projekt oder einer Geschäftslocation sind dies ist die Gelegenheit, in ein Stück Geschichte mit Perspektive zu investieren.
Merkmale der Immobilie:
Historische Stadtvilla: Das imposante Erscheinungsbild des Gebäudes, kombiniert mit authentischen Elementen wie hohen Decken, großen Fenstern und originalen Details, sorgt für eine unvergleichliche Atmosphäre und Charme.
Vielseitige Raumaufteilung: Das Gebäude ist derzeit als private Wohnung mit einem B&B eingerichtet, doch die Raumaufteilung kann problemlos an unterschiedliche Bedürfnisse angepasst werden, von Büroräumen bis hin zu Praxisräumen.
Vielseitige Nutzungsmöglichkeiten:
Büroflächen: Aufgrund der zentralen Lage und großzügigen Räumlichkeiten ist das Gebäude ideal für Büros. Die Nähe zum alten Stadttor und dem Stadtzentrum sorgt für eine hervorragende Sichtbarkeit und Erreichbarkeit für Kunden.
Praxisräume für Gesundheitsberufe: Die geräumigen Zimmer und das ruhige Ambiente machen das Gebäude zur perfekten Wahl für eine Arztpraxis oder therapeutische Räume. Die Aufteilung bietet zahlreiche Möglichkeiten, Behandlungsräume, Wartezimmer und Büros einzurichten.
Beauty- oder Wellnesszentrum: Die ruhige und gleichzeitig charaktervolle Atmosphäre des Gebäudes macht es ideal für ein Beauty- oder Wellnesszentrum. Stellen Sie sich ein Spa, einen Schönheitssalon oder eine Massagepraxis in einer stilvollen Umgebung vor.
Wohnen & Arbeiten: Die Kombination aus privatem Wohnraum und einem kleinen Gästehaus macht die Immobilie besonders geeignet für Unternehmer, die Wohnen und Arbeiten miteinander verbinden möchten. Sie bietet sowohl Komfort als auch die Möglichkeit, Gäste zu empfangen.
Die perfekte Lage in Xanten
Die Bahnhofstraße liegt an einer hervorragenden Adresse im Zentrum von Xanten, direkt neben einem der alten Stadttore, die der Stadt ihren historischen Charme verleihen. Diese historische und zentrale Lage bietet nicht nur wunderschöne Ausblicke, sondern auch hervorragende Erreichbarkeit für Kunden, Gäste oder Patienten. Xanten ist eine beliebte Stadt für sowohl Einwohner als auch Touristen und stellt somit einen idealen Standort für geschäftliche Aktivitäten dar von Tourismus bis hin zu Gesundheitsdiensten.
Warum diese Immobilie?
Reich an Geschichte: Das Gebäude hat eine reiche und einzigartige Geschichte, die zur besonderen Atmosphäre beiträgt. Früher als Zigarrenlager, Lagerhaus und Fabrik genutzt, ist es heute eine charmante Mischung aus Alt und Neu.
Vielseitigkeit: Ob Sie nach einer stilvollen Wohnung, Büroflächen oder einer Location für Ihre Praxis oder Ihr Geschäft suchen dieses Gebäude bietet zahlreiche Möglichkeiten.
Großzügig und lichtdurchflutet: Mit hohen Decken, großen Fenstern und einer offenen Raumaufteilung bieten sich zahlreiche Möglichkeiten, das Gebäude nach eigenen Vorstellungen zu gestalten.
Ihre Chance, ein historisches Gebäude mit Zukunft zu erwerben
Mit einer reichen Geschichte, einer ausgezeichneten Lage und unbegrenzten Nutzungsmöglichkeiten ist dieses Gebäude an der Bahnhofstraße eine einzigartige Gelegenheit für sowohl Privatkäufer als auch Unternehmer. Egal, ob Sie auf der Suche nach einem charaktervollen Wohnsitz oder einer idealen Geschäftsadresse sind, diese Immobilie bietet beides.
Kontaktieren Sie uns noch heute für weitere Informationen oder um einen Besichtigungstermin zu vereinbaren. Verpassen Sie nicht die Gelegenheit, Eigentümer dieses ikonischen historischen Gebäudes im Herzen von Xanten zu werden!
Einzigartige Gelegenheit im Herzen von Xanten! Diese historische Immobilie an der Bahnhofstraße, direkt neben einem der alten Stadttore von Xanten, bietet Ihnen die Chance, Eigentümer einer majestätischen Stadtvilla mit einer reichen Geschichte zu werden. Früher als Zigarrenlager und Fabrik genutzt, hat dieses besondere Gebäude seinen industriellen Charme bewahrt und mit modernen Annehmlichkeiten kombiniert. Derzeit als private Wohnung in Kombination mit einem charmanten Gästehaus/B&B genutzt, bietet das Gebäude jedoch weit mehr Potenzial für die Zukunft.
Mit einer flexiblen Raumaufteilung und einer zentralen Lage bietet diese Immobilie unbegrenzte Möglichkeiten für verschiedene geschäftliche und private Nutzungen. Ob Sie auf der Suche nach einem beeindruckenden Wohnsitz, einem gewerblichen Projekt oder einer Geschäftslocation sind dies ist die Gelegenheit, in ein Stück Geschichte mit Perspektive zu investieren.
Merkmale der Immobilie:
Historische Stadtvilla: Das imposante Erscheinungsbild des Gebäudes, kombiniert mit authentischen Elementen wie hohen Decken, großen Fenstern und originalen Details, sorgt für eine unvergleichliche Atmosphäre und Charme.
Vielseitige Raumaufteilung: Das Gebäude ist derzeit als private Wohnung mit einem B&B eingerichtet, doch die Raumaufteilung kann problemlos an unterschiedliche Bedürfnisse angepasst werden, von Büroräumen bis hin zu Praxisräumen.
Vielseitige Nutzungsmöglichkeiten:
Büroflächen: Aufgrund der zentralen Lage und großzügigen Räumlichkeiten ist das Gebäude ideal für Büros. Die Nähe zum alten Stadttor und dem Stadtzentrum sorgt für eine hervorragende Sichtbarkeit und Erreichbarkeit für Kunden.
Praxisräume für Gesundheitsberufe: Die geräumigen Zimmer und das ruhige Ambiente machen das Gebäude zur perfekten Wahl für eine Arztpraxis oder therapeutische Räume. Die Aufteilung bietet zahlreiche Möglichkeiten, Behandlungsräume, Wartezimmer und Büros einzurichten.
Beauty- oder Wellnesszentrum: Die ruhige und gleichzeitig charaktervolle Atmosphäre des Gebäudes macht es ideal für ein Beauty- oder Wellnesszentrum. Stellen Sie sich ein Spa, einen Schönheitssalon oder eine Massagepraxis in einer stilvollen Umgebung vor.
Wohnen & Arbeiten: Die Kombination aus privatem Wohnraum und einem kleinen Gästehaus macht die Immobilie besonders geeignet für Unternehmer, die Wohnen und Arbeiten miteinander verbinden möchten. Sie bietet sowohl Komfort als auch die Möglichkeit, Gäste zu empfangen.
Die perfekte Lage in Xanten
Die Bahnhofstraße liegt an einer hervorragenden Adresse im Zentrum von Xanten, direkt neben einem der alten Stadttore, die der Stadt ihren historischen Charme verleihen. Diese historische und zentrale Lage bietet nicht nur wunderschöne Ausblicke, sondern auch hervorragende Erreichbarkeit für Kunden, Gäste oder Patienten. Xanten ist eine beliebte Stadt für sowohl Einwohner als auch Touristen und stellt somit einen idealen Standort für geschäftliche Aktivitäten dar von Tourismus bis hin zu Gesundheitsdiensten.
Warum diese Immobilie?
Reich an Geschichte: Das Gebäude hat eine reiche und einzigartige Geschichte, die zur besonderen Atmosphäre beiträgt. Früher als Zigarrenlager, Lagerhaus und Fabrik genutzt, ist es heute eine charmante Mischung aus Alt und Neu.
Vielseitigkeit: Ob Sie nach einer stilvollen Wohnung, Büroflächen oder einer Location für Ihre Praxis oder Ihr Geschäft suchen dieses Gebäude bietet zahlreiche Möglichkeiten.
Großzügig und lichtdurchflutet: Mit hohen Decken, großen Fenstern und einer offenen Raumaufteilung bieten sich zahlreiche Möglichkeiten, das Gebäude nach eigenen Vorstellungen zu gestalten.
Ihre Chance, ein historisches Gebäude mit Zukunft zu erwerben
Mit einer reichen Geschichte, einer ausgezeichneten Lage und unbegrenzten Nutzungsmöglichkeiten ist dieses Gebäude an der Bahnhofstraße eine einzigartige Gelegenheit für sowohl Privatkäufer als auch Unternehmer. Egal, ob Sie auf der Suche nach einem charaktervollen Wohnsitz oder einer idealen Geschäftsadresse sind, diese Immobilie bietet beides.
Kontaktieren Sie uns noch heute für weitere Informationen oder um einen Besichtigungstermin zu vereinbaren. Verpassen Sie nicht die Gelegenheit, Eigentümer dieses ikonischen historischen Gebäudes im Herzen von Xanten zu werden!
Ligging:
Xanten ist eine historische Stadt am Niederrhein in Nordrhein-Westfalen, die für ihre gut erhaltene Altstadt und ihre bedeutenden archäologischen Stätten bekannt ist. Die Stadt beherbergt den Archäologischen Park Xanten, auch bekannt als "APX", das als größtes archäologisches Freilichtmuseum Deutschlands gilt. Xanten bietet zudem eine Vielzahl von kulturellen Veranstaltungen, wie das alljährliche Siegfriedspektakel, und ist ein beliebtes Ziel für Touristen und Geschichtsinteressierte. Die idyllische Lage am Rhein und die vielfältigen Freizeitmöglichkeiten machen Xanten zu einem attraktiven Wohn- und Ausflugsort. Wohnen und ggf. arbeiten Sie im historischen Zentrum vom Xanten.
Overige:
Übernahme:
Nach Absprache mit dem Verkäufer
Besichtigungen:
Nur nach vorheriger Terminabsprache mit Rücksicht auf den Verkäufer. Terminabsprache unter: 02828 92199 (Büro Emmerich-Elten), 02824-965211 (Büro Kalkar), 02871 2945633 (Büro Bocholt)
Provision:
Vom Verkäufer sowie Käufer sind mit Abschluss des Kaufvertrages eine Vermittlungs- bzw. Nachweisprovision vom Gesamtkaufpreis an die Rainer Elsmann Immobilien GmbH zu zahlen. Die Provisionshöhe entnehmen Sie bitte den Angaben in der Broschüre bzw. auf unserer Webseite.
Hinweis:
Sind mehrere Kaufinteressenten für die Immobilie vorhanden, wird der Verkäufer seine Verkaufsentscheidung treffen; gegebenenfalls kann es zu einem Bieterverfahren kommen.
Der Makler wird die Entscheidungen den Kaufinteressenten übermitteln. Wir weisen daraufhin, dass den Kaufinteressenten keine Schadensersatzansprüche zustehen weder gegen den Verkäufer noch gegen den Makler. Deshalb Vorsicht bei Vorleistungen (z.B. Gutachterkosten)
Allgemein:
Sämtliche, in diesem Angebot enthaltenen Angaben, Zeichnungen, Abmessungen und Preisangaben beruhen auf Angaben des Verkäufers, oder eines Dritten. Die Benennungen der Räume/Zimmer beziehen sich auf die aktuelle Nutzung und ggf. nicht auf die baurechtlichen Genehmigungen. Insbesondere im Falle älterer, bewohnter oder umgebauter Immobilien kann letzten Endes nicht immer gewährleistet werden, dass der neueste Stand der Technik eingehalten ist und das Objekt daneben allen Anforderungen Stand hält. Der Makler übernimmt in der Folge keine Gewähr für die Richtigkeit der von ihm lediglich weitergegebenen Informationen zur Beschaffenheit der Immobilie und/oder deren uneingeschränkter Eignung zu einer vorgesehenen Nutzung. Soweit der Makler neben der eigenen Sorgfalt auch für eigene Auskünfte haftet, ist diese Haftung auf grobe Fahrlässigkeit oder vorsätzliches Handeln beschränkt. Es gelten die allgemeinen Geschäftsbedingungen.
Informatie voor Nederlanders:
Wij spreken Nederlands!
Daarnaast begeleiden wij Nederlanders niet alleen bij de aankoop van een huis in Duitsland en alles wat daarbij komt kijken maar ook bij de emigratie naar Duitsland. Neem gewoon contact met ons op en laat u informeren!
Nach Absprache mit dem Verkäufer
Besichtigungen:
Nur nach vorheriger Terminabsprache mit Rücksicht auf den Verkäufer. Terminabsprache unter: 02828 92199 (Büro Emmerich-Elten), 02824-965211 (Büro Kalkar), 02871 2945633 (Büro Bocholt)
Provision:
Vom Verkäufer sowie Käufer sind mit Abschluss des Kaufvertrages eine Vermittlungs- bzw. Nachweisprovision vom Gesamtkaufpreis an die Rainer Elsmann Immobilien GmbH zu zahlen. Die Provisionshöhe entnehmen Sie bitte den Angaben in der Broschüre bzw. auf unserer Webseite.
Hinweis:
Sind mehrere Kaufinteressenten für die Immobilie vorhanden, wird der Verkäufer seine Verkaufsentscheidung treffen; gegebenenfalls kann es zu einem Bieterverfahren kommen.
Der Makler wird die Entscheidungen den Kaufinteressenten übermitteln. Wir weisen daraufhin, dass den Kaufinteressenten keine Schadensersatzansprüche zustehen weder gegen den Verkäufer noch gegen den Makler. Deshalb Vorsicht bei Vorleistungen (z.B. Gutachterkosten)
Allgemein:
Sämtliche, in diesem Angebot enthaltenen Angaben, Zeichnungen, Abmessungen und Preisangaben beruhen auf Angaben des Verkäufers, oder eines Dritten. Die Benennungen der Räume/Zimmer beziehen sich auf die aktuelle Nutzung und ggf. nicht auf die baurechtlichen Genehmigungen. Insbesondere im Falle älterer, bewohnter oder umgebauter Immobilien kann letzten Endes nicht immer gewährleistet werden, dass der neueste Stand der Technik eingehalten ist und das Objekt daneben allen Anforderungen Stand hält. Der Makler übernimmt in der Folge keine Gewähr für die Richtigkeit der von ihm lediglich weitergegebenen Informationen zur Beschaffenheit der Immobilie und/oder deren uneingeschränkter Eignung zu einer vorgesehenen Nutzung. Soweit der Makler neben der eigenen Sorgfalt auch für eigene Auskünfte haftet, ist diese Haftung auf grobe Fahrlässigkeit oder vorsätzliches Handeln beschränkt. Es gelten die allgemeinen Geschäftsbedingungen.
Informatie voor Nederlanders:
Wij spreken Nederlands!
Daarnaast begeleiden wij Nederlanders niet alleen bij de aankoop van een huis in Duitsland en alles wat daarbij komt kijken maar ook bij de emigratie naar Duitsland. Neem gewoon contact met ons op en laat u informeren!
Provisie:
Bij de aankoop van een huis in Duitsland moet u rekening houden met in totaal +- 9,5 % bijkomende kosten zoals :
- Notaris- en Grundbuchkosten 1,5%
- 5% overdrachtsbelasting (ook deze is nog al verschillend in de deelstaten "Bundesländer"
(lees meer op ons blog)
- De makelaars provisie
De hoogte van de makelaarsprovisie is per regio en object nogal verschillend) maar let op:
Bij sommige woningen is de provisie van de makelaar al in de koopprijs inbegrepen !
Bij de nieuwbouw van een woning betaalt u alleen kosten koper over de prijs van de kavel
- Notaris- en Grundbuchkosten 1,5%
- 5% overdrachtsbelasting (ook deze is nog al verschillend in de deelstaten "Bundesländer"
(lees meer op ons blog)
- De makelaars provisie
De hoogte van de makelaarsprovisie is per regio en object nogal verschillend) maar let op:
Bij sommige woningen is de provisie van de makelaar al in de koopprijs inbegrepen !
Bij de nieuwbouw van een woning betaalt u alleen kosten koper over de prijs van de kavel
Opmerking:
Mocht u interesse aan een van de door ons aangeboden huizen hebben klik op de button vragen over het object in de rechter kolom. Een bezichtiging is voor u geheel vrijblijvend.
Algemene voorwaarden:
Door een klik op de button"Bekijk de locatie van het object op Google maps " ziet u nooit de exacte locatie maar altijd alleen maar de locatie van de dichstbijzijnde plaats / stad
Voor het juiste adres klik in de rechter colom "Vragen over het object"
Alle aanbiedingen zijn onderhevig aan wijzigingen zonder voorafgaande kennisgeving en zijn gebaseerd op door de eigenaar verstrekte informatie; er kan dan ook geen enkele aansprakelijkheid worden aanvaard voor de juistheid en volledigheid ervan. Onder voorbehoud van voorafgaande verkoop of verhuur door de eigenaar.
Voor het juiste adres klik in de rechter colom "Vragen over het object"
Alle aanbiedingen zijn onderhevig aan wijzigingen zonder voorafgaande kennisgeving en zijn gebaseerd op door de eigenaar verstrekte informatie; er kan dan ook geen enkele aansprakelijkheid worden aanvaard voor de juistheid en volledigheid ervan. Onder voorbehoud van voorafgaande verkoop of verhuur door de eigenaar.
Lees meer over de mogelijke valkuilen bij de aankoop van een huis in Duitsland op onze blog
Boordevol informatie m.b.t. een mogelijke emigratie naar Duitsland en over de aankoop of nieuwbouw van een huis in Duitsland:
Meer weten over wonen in Duitsland? Link opent in nieuw venster
Boordevol informatie m.b.t. een mogelijke emigratie naar Duitsland en over de aankoop of nieuwbouw van een huis in Duitsland:
Meer weten over wonen in Duitsland? Link opent in nieuw venster
Uw contactpersoon
Rainer Elsmann Immobilien GmbH
Mijnheer Rainer Elsmann
Eltener Markt 15
46446 Emmerich-Elten
Telefoon: +49 2828 92199
Fax: +49 2828 903699
Mijnheer Rainer Elsmann
Eltener Markt 15
46446 Emmerich-Elten
Telefoon: +49 2828 92199
Fax: +49 2828 903699
Terug naar het overzicht





















